Maison à construire à Amboise (37400)
Images
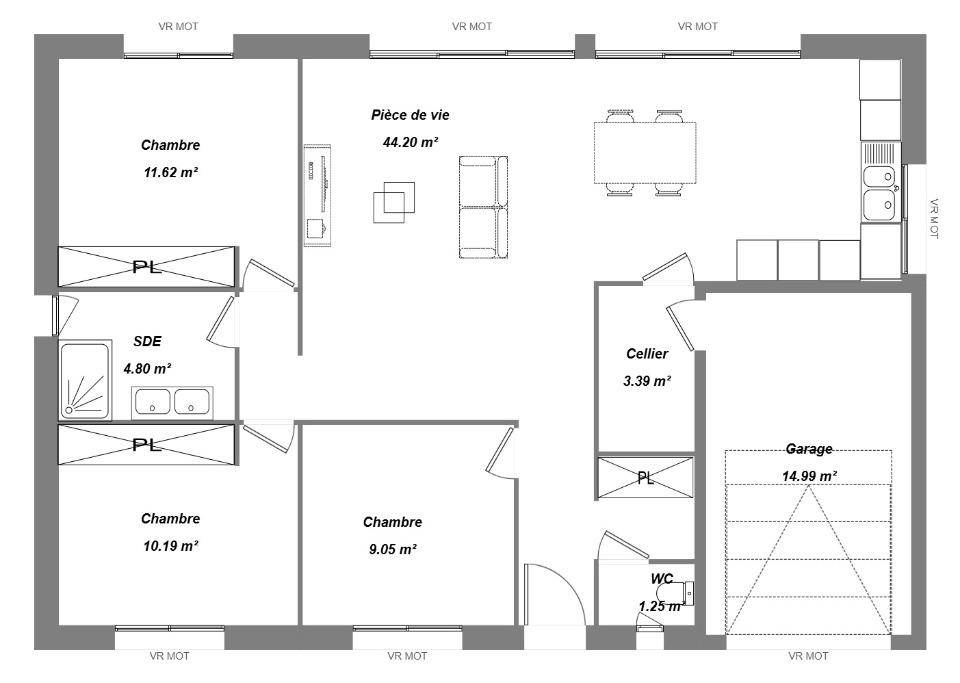
Description
Belle maison de 84 m² de plain-pied.
Vous retrouverez 3 chambres spacieuses avec rangements intégrés, une salle de bain, un cellier et une grande pièce de vie ouverte de 44 m².
Les grandes baies vitrées (3 mètres)et les fenêtres panoramiques apportent une touche moderne et lumineuse. La maison sera chauffée par une pompe à chaleur et plancher chauffant.
Je reste disponible pour toutes demandes de renseignements, n'hésitez pas me contacter : Stéphane Digneton : (Numéro supprimé).
Logement susceptibles de vous intéresser
Nous vous proposons de découvrir aussi cette sélection de logements situés à moins de 10km de Amboise et qui seraient susceptibles de vous intéresser.
Chenonceaux
TERRAIN ET MAISONBeau terrain de 712m2 dans secteur calme. Bel environnement. Fonctionnelle et lumineuse, cette charmante maison rectangulaire de plain-pied, vous propose une vaste pièce de vie éclairée de 48 m² environ par sa grande baie vitrée avec cuisine ouverte et cellier indépendant, côté nuit, trois chambres, salle de bains et wc séparés. Pour vous assurer un confort de vie et conformément à la RE2025, nous avons choisi un mode de chauffage par PAC + plancher chauffant, volets roulants électriques. Prix hors fourniture et pose : des appareils sanitaires (sauf système de chauffage et d'eau chaude sanitaire), du carrelage et de la faïence, des revêtements de sol dans les chambres. Hors décoration et aménagement intérieur et peinture. Hors raccordements, frais de notaire et dommage ouvrage. // Réf. : 939-213541-ALD. Prix terrain : 59 000 €, hors frais d'agence à la charge de l'acquéreur. Ce terrain vous est proposé, par nos partenaires fonciers, dans le cadre d'un projet de construction avec nous. Les informations sur les risques auxquels ce bien est exposé sont disponibles sur le site Géorisques (www.georisques.gouv.fr). Prix maison : 120 569 €.
Amboise
TERRAIN ET MAISONBelle maison de 84 m² de plain-pied. Vous retrouverez 3 chambres spacieuses avec rangements intégrés, une salle de bain, un cellier et une grande pièce de vie ouverte de 44 m².Les grandes baies vitrées (3 mètres)et les fenêtres panoramiques apportent une touche moderne et lumineuse. La maison sera chauffée par une pompe à chaleur et plancher chauffant. Je reste disponible pour toutes demandes de renseignements, n’hésitez pas me contacter : Stéphane Digneton : (Numéro supprimé).
Amboise
TERRAIN ET MAISONVoici une belle maison de 89m² à construire, offrant une grande pièce de vie lumineuse grâce à sa triple exposition. Elle comprend deux chambres confortables, une salle de bain équipée d’une douche et d’une baignoire, ainsi qu’un grand garage. Un atout majeur de cette maison est sa terrasse couverte, idéale pour profiter de l’extérieur en toute saison. De plus, elle est entièrement personnalisable selon vos envies et besoins.Je reste disponible pour toutes demandes de renseignements, n’hésitez pas me contacter : Stéphane Digneton : (Numéro supprimé).
La Croix-en-Touraine
TERRAIN ET MAISONBeau terrain de 700m2 déjà viabilisé, dans quartier calme. Proche de la gare SNCF qui relie Tours en moins de 30 minutes. Une maison à imaginer, un espace à créer ! Et si votre futur chez-vous était entièrement modulable ? Avec un salon-séjour lumineux de plus de 50 m², un bureau indépendant pour le télétravail et une cuisine spacieuse, cette maison vous offre une liberté totale d’aménagement. À l’étage, trois chambres et un dressing généreux dessinent un espace nuit confortable, complété par une salle de bain et une salle d’eau pour plus de praticité. Un garage et un carport viennent parfaire ce cocon moderne et fonctionnel. . Un cadre de vie unique, pensé pour évoluer avec vous… Prêts à le façonner ?. . Pour un confort optimal et conforme à la RE2025, cette maison dispose d’une PAC avec plancher chauffant, radiateurs à l’étage et volets roulants électriques. À noter : Le prix indiqué exclut les revêtements de sol des chambres, la cuisine aménagée, la peinture, la décoration, les raccordements, les frais de notaire et l’assurance dommages-ouvrage. . // Réf. : 1734-213533-ALD. Prix terrain : 73 000 €, hors frais d'agence à la charge de l'acquéreur. Ce terrain vous est proposé, par nos partenaires fonciers, dans le cadre d'un projet de construction avec nous. Les informations sur les risques auxquels ce bien est exposé sont disponibles sur le site Géorisques (www.georisques.gouv.fr). Prix maison : 276 242 €.
Chenonceaux
TERRAIN ET MAISONBeau terrain de 712m2 dans secteur calme. Bel environnement. Un espace à vivre, une maison à imaginer ! Envie d’un intérieur qui vous ressemble ? Découvrez un vaste espace de vie de près de 58 m², baigné de lumière et ouvert sur l’extérieur. Avec 4 chambres, un bureau indépendant, et des espaces bien pensés comme un cellier et un grand garage, cette maison est prête à évoluer avec vous. Besoin d’un dressing, d’un espace télétravail ou d’une salle de jeux ? Ici, tout est possible ! Personnalisez chaque mètre carré pour créer un lieu unique, façonné selon vos envies. Plus qu’une maison, un projet à votre image… Prêts à vous lancer ?. . Pour un confort optimal et conforme à la RE2025, cette maison dispose d’une PAC avec plancher chauffant et volets roulants électriques. À noter : Le prix indiqué exclut les revêtements de sol des chambres, la cuisine aménagée, la peinture, la décoration, les raccordements, les frais de notaire et l’assurance dommages-ouvrage. . // Réf. : 2-213541-ALD. Prix terrain : 59 000 €, hors frais d'agence à la charge de l'acquéreur. Ce terrain vous est proposé, par nos partenaires fonciers, dans le cadre d'un projet de construction avec nous. Les informations sur les risques auxquels ce bien est exposé sont disponibles sur le site Géorisques (www.georisques.gouv.fr). Prix maison : 280 302 €.
Chenonceaux
TERRAINBeau terrain de 712m2 dans secteur calme. Bel environnement. // Réf. : T213541. Prix terrain : 59 000 €, hors frais d'agence et de notaire à la charge de l'acquéreur. Ce terrain vous est proposé, par nos partenaires fonciers, dans le cadre d'un projet de construction avec nous. Les informations sur les risques auxquels ce bien est exposé sont disponibles sur le site Géorisques (www.georisques.gouv.fr).
Chenonceaux
TERRAINBeau terrain de 712m2 dans secteur calme. Bel environnement. // Réf. : T213541. Prix terrain : 59 000 €, hors frais d'agence et de notaire à la charge de l'acquéreur. Ce terrain vous est proposé, par nos partenaires fonciers, dans le cadre d'un projet de construction avec nous. Les informations sur les risques auxquels ce bien est exposé sont disponibles sur le site Géorisques (www.georisques.gouv.fr).
Amboise
TERRAINRare terrain à bâtir de 460 m² à Amboise, entièrement viabilisé .Idéalement situé, à moins de 300 m du Leclerc Drive et proche de toutes les commodités .Opportunité rare pour une construction résidentielle ou un investissement locatif à visiter rapidement ! N’hésitez pas à contacter Stéphane Digneton au (Numéro supprimé) qui se fera une joie de vous présenter un projet terrain + maison en accord avec vos attentes.
Chenonceaux
TERRAIN ET MAISONBeau terrain de 712m2 dans secteur calme. Bel environnement. Un cocon moderne et fonctionnel, pensé pour vous ! Découvrez cette maison au design intelligent, où chaque espace est optimisé pour conjuguer confort et praticité. Son vaste espace de vie baigné de lumière est l’endroit idéal pour partager des moments chaleureux. Avec 3 chambres bien séparées, dont une suite parentale avec salle d’eau privative, un vestiaire pratique, un cellier attenant à la cuisine, et un garage double, cette maison est faite pour simplifier votre quotidien. Un intérieur fluide, une architecture élégante et des espaces qui respirent : imaginez-vous déjà chez vous !. . Pour un confort optimal et conforme à la RE2025, cette maison dispose d’une PAC avec plancher chauffant et volets roulants électriques. À noter : Le prix indiqué exclut les revêtements de sol des chambres, la cuisine aménagée, la peinture, la décoration, les raccordements, les frais de notaire et l’assurance dommages-ouvrage. . // Réf. : 149-213541-ALD. Prix terrain : 59 000 €, hors frais d'agence à la charge de l'acquéreur. Ce terrain vous est proposé, par nos partenaires fonciers, dans le cadre d'un projet de construction avec nous. Les informations sur les risques auxquels ce bien est exposé sont disponibles sur le site Géorisques (www.georisques.gouv.fr). Prix maison : 231 486 €.
L’actualité immobilière à Amboise
27/11/2023
02/11/2023
30/10/2023
20/10/2023
16/10/2023
16/10/2023