Images
Description
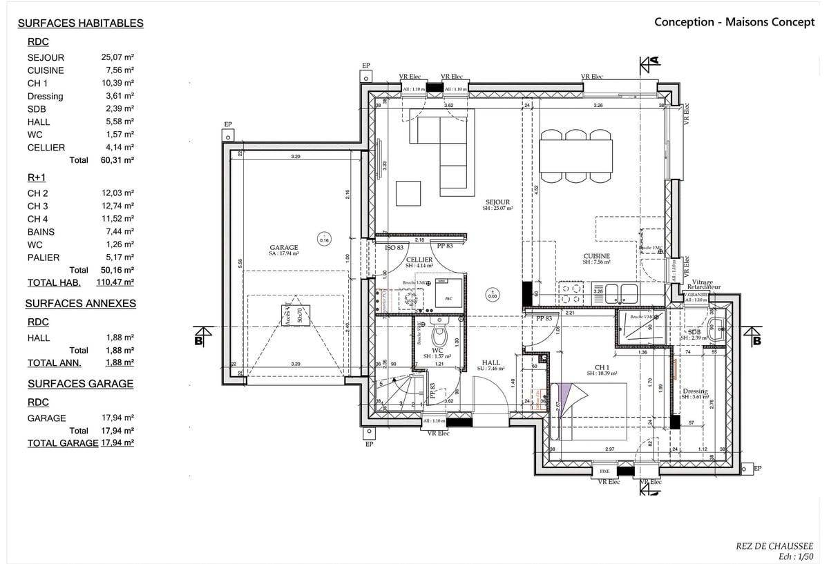
Sur ce terrain, nous vous proposons cette maison neuve : la Conception, un modèle exclusif signé Maisons Concept, constructeur reconnu pour offrir le meilleur rapport qualité/prix du marché.
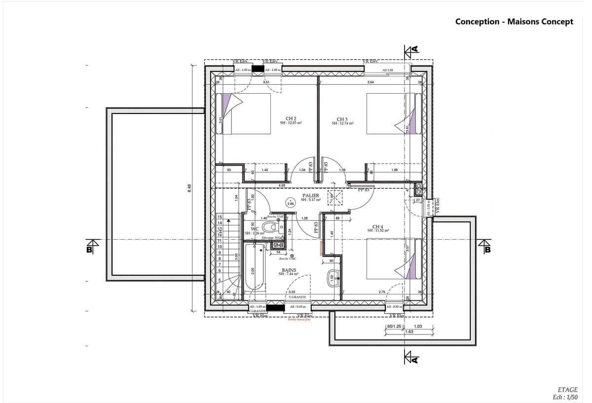
Cette maison contemporaine à étage, d’une superficie de 110 m², allie lignes traditionnelles et touches de design moderne pour une esthétique épurée et captivante. La Conception se distingue par son architecture compacte et son garage accolé à toit plat, garantissant une intégration harmonieuse dans son environnement.
À l’intérieur, la Conception est pensée pour le confort et la fonctionnalité. Elle offre 4 chambres spacieuses dont une suite parentale, ainsi qu’une vaste pièce de vie ouverte, idéale pour partager des moments conviviaux en famille ou entre amis. La dalle béton à l’étage assure une isolation phonique et thermique optimale, renforçant le confort au quotidien.
Cette maison neuve est conforme à la norme RE2020, gage de basse consommation énergétique et de respect des exigences environnementales les plus récentes. Les options les plus plébiscitées, telles que la domotique ou les menuiseries aluminium, sont disponibles afin de personnaliser votre future maison selon vos envies.
Optez pour la Conception et découvrez une maison où chaque détail est pensé pour offrir une expérience de vie harmonieuse et moderne. Ne manquez pas cette opportunité unique de devenir propriétaire d’un modèle alliant élégance, praticité et performance énergétique.
Logement susceptibles de vous intéresser
Nous vous proposons de découvrir aussi cette sélection de logements situés à moins de 10km de Anché et qui seraient susceptibles de vous intéresser.
Brizay
TERRAIN ET MAISONVenez Imaginer Votre Projet de Construction sur Ce Terrain de 806 m² !. Terrain borné de 806 m², non viabilisé, offrant de belles possibilités pour réaliser le projet de vos rêves. Idéalement situé dans un cadre calme et agréable, ce terrain vous permettra de créer une maison qui vous ressemble. Contactez-nous dès aujourd'hui pour plus d'informations et découvrir ce terrain !. Compacte et fonctionnelle, cette maison de plain-pied vous propose un bel espace de vie lumineux, avec une grande baie vitrée donnant sur le jardin. Sa cuisine est ouverte sur le séjour et dispose d'un accès direct au cellier, et au garage intégré. Son espace nuit est composé de deux chambres avec rangements, d'une salle de bains et de wc séparés. Pour vous assurer un confort de vie et conformément à la RE2025, nous avons choisi un mode de chauffage par PAC + plancher chauffant, volets roulants électriques. Prix hors fourniture et pose : des appareils sanitaires (sauf système de chauffage et d'eau chaude sanitaire), du carrelage et de la faïence, des revêtements de sol dans les chambres. Hors décoration et aménagement intérieur et peinture. Hors raccordements, frais de notaire et dommage ouvrage. // Réf. : 838-213565-BEF. Prix terrain : 18 000 €, hors frais d'agence à la charge de l'acquéreur. Ce terrain vous est proposé, par nos partenaires fonciers, dans le cadre d'un projet de construction avec nous. Les informations sur les risques auxquels ce bien est exposé sont disponibles sur le site Géorisques (www.georisques.gouv.fr). Prix maison : 128 229 €.
Chinon
TERRAINDécouvrez ce magnifique terrain de 527 m², parfaitement situé dans le lotissement de Chinon, une charmante commune d’Indre-et-Loire. Viabilisé et prêt à accueillir votre projet de construction, ce terrain offre une opportunité inégalée pour réaliser la maison de vos rêves. Grâce à sa superficie généreuse, il permet d’envisager diverses configurations architecturales et un aménagement sur mesure à votre image. Chinon, célèbre pour son patrimoine historique et ses paysages enchanteurs, vous séduira par son ambiance conviviale et ses atraits culturels uniques. Profitez des ruelles pittoresques, des restaurants de qualité, des marchés animés et des nombreuses facettes que cette ville a à offrir. À proximité, vous trouverez également des écoles, des commerces de proximité et des espaces verts propices à la détente. Ce terrain bénéficie d’un environnement où il fait bon vivre, alliant tranquillité et dynamisme. Ne manquez pas cette occasion de concrétiser votre projet immobilier dans un cadre idyllique et attractif. Contactez-nous pour explorer le potentiel de cette opportunité d’achat unique. À noter qu’en tant que constructeur, nous ne sommes pas mandatés pour réaliser la vente de ce terrain.
L'Île-Bouchard
TERRAINNous vous présentons un terrain idéal pour la réalisation de votre projet de construction de maison, situé à L’Île-Bouchard, en Indre-et-Loire. Avec une superficie de 909 m², ce terrain non viabilisé offre une possibilité d’aménagement personnalisée, vous permettant d’exprimer pleinement vos ambitions architecturales. L’Île-Bouchard, ville charmante de la région Centre-Val de Loire, est réputée pour son cadre paisible et son ambiance conviviale, faisant d’elle un emplacement de choix pour bâtir votre havre de paix. À L’Île-Bouchard, vous bénéficierez d’une qualité de vie inégalée grâce à la proximité avec les commodités essentielles telles que commerces, écoles et services de santé. La ville est entourée de paysages enchanteurs, parfaits pour les amateurs de nature et de promenades. De plus, le riche patrimoine culturel de la région, avec ses monuments historiques et ses événements locaux, témoigne d’une vie communautaire dynamique. Que vous soyez en quête de tranquillité ou d’activités culturelles, cet emplacement saura satisfaire toutes vos attentes. Ce terrain constitue une opportunité rare pour tous ceux qui souhaitent réaliser leur rêve immobilier. N’hésitez pas à envisager ce projet qui pourrait transformer votre vision en réalité. À noter qu’en tant que constructeur, nous ne sommes pas mandatés pour réaliser la vente de ce terrain.
Chinon
TERRAIN ET MAISONNous vous proposons cette maison neuve, baptisée « »Élégance » », un modèle qui se distingue par sa forme en L, offrant à la fois style et fonctionnalité. Avec une surface habitable de 93 m², cette maison de plain-pied est conçue pour maximiser l’espace et le confort de ses résidents. Elle comprend un grand salon-séjour lumineux, ouvert sur une cuisine moderne, idéale pour partager des moments conviviaux en famille ou entre amis. L’architecture en L permet une séparation naturelle entre l’espace de vie et l’espace nuit, ce dernier étant composé de 3 chambres spacieuses, garantissant intimité et tranquillité. La maison dispose également d’un garage intégré, pratique pour sécuriser votre véhicule ou pour du stockage supplémentaire, ainsi qu’un cellier adjacent à la cuisine, parfait pour organiser vos provisions et ustensiles de cuisine.L’une des caractéristiques les plus appréciées de ce modèle est son enduit bi-ton, qui ajoute une touche d’élégance et de modernité à l’extérieur de la maison, la faisant ressortir dans n’importe quel environnement. Construite dans le respect des normes de la RE2020, cette maison basse consommation est un choix judicieux pour ceux qui cherchent à réduire leur empreinte écologique tout en bénéficiant d’un confort optimal. Elle est personnalisable selon vos besoins et vos envies, vous permettant de créer un foyer qui vous ressemble, adapté à votre mode de vie. » »Élégance » » est plus qu’une maison, c’est un lieu de vie pensé pour votre bien-être et celui de votre famille, où chaque détail a été conçu pour répondre à vos attentes les plus élevées. Ne manquez pas l’opportunité de construire la maison de vos rêves, un espace où chaque jour sera empreint de confort, de style et d’efficacité énergétique.
Tavant
TERRAINNous vous proposons un terrain d’exception à la vente, situé dans la charmante commune de Tavant, dans le département de l’Indre-et-Loire. Avec une vaste surface de 998 m², ce terrain non viabilisé est idéal pour concrétiser votre projet de construction de maison. Son orientation et son agencement promettent une belle luminosité, offrant ainsi des possibilités infinies pour aménagement et design selon vos envies. Tavant est une commune agréable située en Centre-Val de Loire, bénéficiant d’un cadre de vie paisible tout en étant proche des commodités essentielles. Vous pourrez profiter des charmantes attractions locales, notamment ses paysages bucoliques et ses infrastructures. La proximité avec des villes dynamiques de la région ainsi que l’accès aux axes routiers majeurs constituent un atout indéniable, garantissant à la fois tranquillité et connectivité. Un cadre parfait pour fonder une famille ou réaliser un investissement immobilier?! Ne manquez pas cette opportunité unique d’acquérir ce terrain au potentiel incroyable. Contactez-nous pour obtenir plus d’informations et envisageons ensemble le futur de votre projet. À noter qu’en tant que constructeur, nous ne sommes pas mandatés pour réaliser la vente de ce terrain.
La Roche-Clermault
TERRAIN ET MAISONÀ Vendre : Terrain Viabilisé de 850 m² à 5 Minutes de Chinon. Offrez-vous la tranquillité et la qualité de vie dans un cadre idyllique ! Situé dans une charmante commune de 500 habitants, ce terrain viabilisé de 850 m² se trouve à seulement 7 kilomètres de Chinon. Caractéristiques du terrain :. Superficie : 850 m². Viabilisé : Oui. Localisation : Petite commune paisible à 5 minutes de Chinon. Points forts :. Environnement calme et de qualité : Profitez d'un cadre de vie serein, loin du tumulte de la ville. Proximité des commodités : À seulement quelques minutes de Chinon, vous bénéficiez de toutes les commodités nécessaires. Opportunité unique : Idéal pour construire la maison de vos rêves dans un environnement privilégié. Ne manquez pas cette occasion exceptionnelle de devenir propriétaire d'un terrain dans un cadre paisible et recherché. Contactez-nous dès maintenant pour plus d'informations et pour organiser une visite !. Est-ce que cela vous convient ? ????. Une maison qui coche toutes les cases ! Avec son agencement clair et fonctionnel, ce modèle est un vrai coup de cœur pour les familles en quête de simplicité efficace. L’espace de vie traversant invite à la lumière naturelle, tandis que les 3 chambres sont idéalement réparties pour préserver l’intimité de chacun. Un bureau discret s’adapte à tous les projets, qu’ils soient pro ou perso. Salle de bain, cellier, WC séparé et garage attenant : chaque détail a été pensé pour vous simplifier la vie au quotidien. Une maison qui s’adapte à vos besoins, à votre rythme, et à vos envies d’évolution. Pour un confort optimal et conforme à la RE2025, cette maison dispose d’une PAC avec plancher chauffant et volets roulants électriques. À noter : Le prix indiqué exclut les revêtements de sol des chambres, la cuisine aménagée, la peinture, la décoration, les raccordements, les frais de notaire et l’assurance dommages-ouvrage. . Contactez-nous dès aujourd’hui pour personnaliser cette maison selon vos envies et construire le projet de vos rêves !. // Réf. : 120-213558-BEF. Prix terrain : 25 000 €, hors frais d'agence à la charge de l'acquéreur. Ce terrain vous est proposé, par nos partenaires fonciers, dans le cadre d'un projet de construction avec nous. Les informations sur les risques auxquels ce bien est exposé sont disponibles sur le site Géorisques (www.georisques.gouv.fr). Prix maison : 161 653 €.
Brizay
TERRAIN ET MAISONVenez Imaginer Votre Projet de Construction sur Ce Terrain de 806 m² !. Terrain borné de 806 m², non viabilisé, offrant de belles possibilités pour réaliser le projet de vos rêves. Idéalement situé dans un cadre calme et agréable, ce terrain vous permettra de créer une maison qui vous ressemble. Contactez-nous dès aujourd'hui pour plus d'informations et découvrir ce terrain !. Une maison généreuse pour voir grand !. Pensée pour ceux qui aiment l’espace et l’équilibre, cette maison familiale offre une configuration remarquable. L’entrée s’ouvre sur une pièce de vie fluide et lumineuse, parfaite pour recevoir ou simplement profiter du quotidien. Le coin nuit accueille quatre chambres confortables, dont une suite parentale avec salle d’eau et dressing, bien séparée pour préserver l’intimité. Une salle de bain, un cellier malin, un grand garage… Chaque détail a été conçu pour conjuguer fonctionnalité et confort de vie. Un modèle à personnaliser, taillé pour accompagner tous vos projets de vie. Pour un confort optimal et conforme à la RE2025, cette maison dispose d’une PAC avec plancher chauffant et volets roulants électriques. À noter : Le prix indiqué exclut les revêtements de sol des chambres, la cuisine aménagée, la peinture, la décoration, les raccordements, les frais de notaire et l’assurance dommages-ouvrage. (Piscine non contractuelle, non comprise dans le prix). // Réf. : 84-213565-BEF. Prix terrain : 18 000 €, hors frais d'agence à la charge de l'acquéreur. Ce terrain vous est proposé, par nos partenaires fonciers, dans le cadre d'un projet de construction avec nous. Les informations sur les risques auxquels ce bien est exposé sont disponibles sur le site Géorisques (www.georisques.gouv.fr). Prix maison : 314 177 €.
Rivière
TERRAIN ET MAISONNous vous proposons cette maison neuve, baptisée « »City Cosy » », un véritable havre de paix alliant design, confort et respect de l’environnement. Avec une surface habitable de 86 m², cette maison est idéalement conçue pour répondre aux besoins d’une famille moderne, offrant 3 chambres et un total de 4 pièces, chacune pensée pour maximiser l’espace et la lumière naturelle.Le design de « »City Cosy » » ne laisse personne indifférent. Son architecture moderne, agrémentée d’une lucarne élégante, confère à la maison un caractère unique et une identité visuelle forte. Le car port intégré ajoute une touche pratique et esthétique, tandis que les options les plus plébiscitées telles qu’une pergola, un garage ou un sous-sol sont disponibles pour personnaliser votre maison selon vos désirs et besoins.Confort est le maître-mot de « »City Cosy » ». Chaque pièce est équipée des dernières innovations pour garantir un quotidien agréable et fonctionnel. La maison est conçue pour offrir un cadre de vie exceptionnel, où chaque membre de la famille peut trouver son espace et son intimité.Sur le plan écologique, « »City Cosy » » se distingue par sa basse consommation énergétique, conforme à la norme RE2020, la réglementation thermique la plus exigeante à ce jour. Cette maison est un investissement pour l’avenir, vous permettant de réaliser d’importantes économies d’énergie tout en réduisant votre empreinte carbone. La RT2020 garantit une isolation optimale, une ventilation efficace et l’utilisation de matériaux respectueux de l’environnement.En choisissant « »City Cosy » », vous optez pour une maison qui incarne le design, le confort et l’écologie. C’est l’assurance d’un habitat sain, économique et esthétiquement plaisant, idéal pour une famille cherchant à conjuguer vie moderne et respect de l’environnement. Avec un rapport qualité/prix exceptionnel, « »City Cosy » » est la promesse d’un foyer où il fait bon vivre, une invitation à poser vos valises dans un espace pensé pour le bonheur de tou
Lémeré
TERRAIN ET MAISONNous vous proposons cette maison neuve, baptisée « »Harmonie » », un modèle qui incarne la quintessence de la maison familiale traditionnelle tout en répondant aux exigences contemporaines de confort et d’efficacité énergétique. Conçue pour fusionner convivialité et fonctionnalité, « »Harmonie » » est le choix privilégié de nos clients, devenant ainsi le produit phare de Maisons Concept.Cette élégante demeure de 100 m², dotée de 4 chambres et de 4 pièces au total, est l’incarnation parfaite de l’équilibre entre espace de vie généreux et intimité. Chaque chambre a été pensée pour offrir un cocon de confort et de tranquillité, répondant ainsi aux besoins de chaque membre de la famille.L’architecture d' » »Harmonie » » se distingue par son garage intégré et ses combles aménageables, offrant ainsi une flexibilité remarquable pour s’adapter à vos projets de vie, qu’il s’agisse d’un espace de travail à domicile, d’une salle de jeux pour les enfants ou d’une chambre supplémentaire.L’une des caractéristiques les plus séduisantes de cette maison est son engagement envers la durabilité et l’efficacité énergétique. Conforme à la norme RE2020, « »Harmonie » » est une maison basse consommation qui vous permettra de réduire significativement vos factures d’énergie tout en contribuant à la protection de l’environnement. Cette performance énergétique de pointe, alliée à une isolation optimale et à l’utilisation de matériaux de construction écologiques, fait d' » »Harmonie » » un investissement durable pour votre avenir.L’esthétique d' » »Harmonie » » n’est pas en reste, avec son avancée au niveau du garage et sa toiture à faible pente, elle conserve le charme intemporel de la maison classique tout en y ajoutant une touche d’originalité. Que vous soyez à la recherche de votre première maison ou que vous souhaitiez offrir à votre famille un espace de vie plus adapté, « »Harmonie » » est conçue pour s’adapter à vos rêves et à vos projets.Découvrez « »Harmonie » », où chaque détail a été pensé pour har
L’actualité immobilière à Anché
27/11/2023
20/10/2023
16/10/2023