Maison à construire à Artannes-sur-Indre (37260)
Images
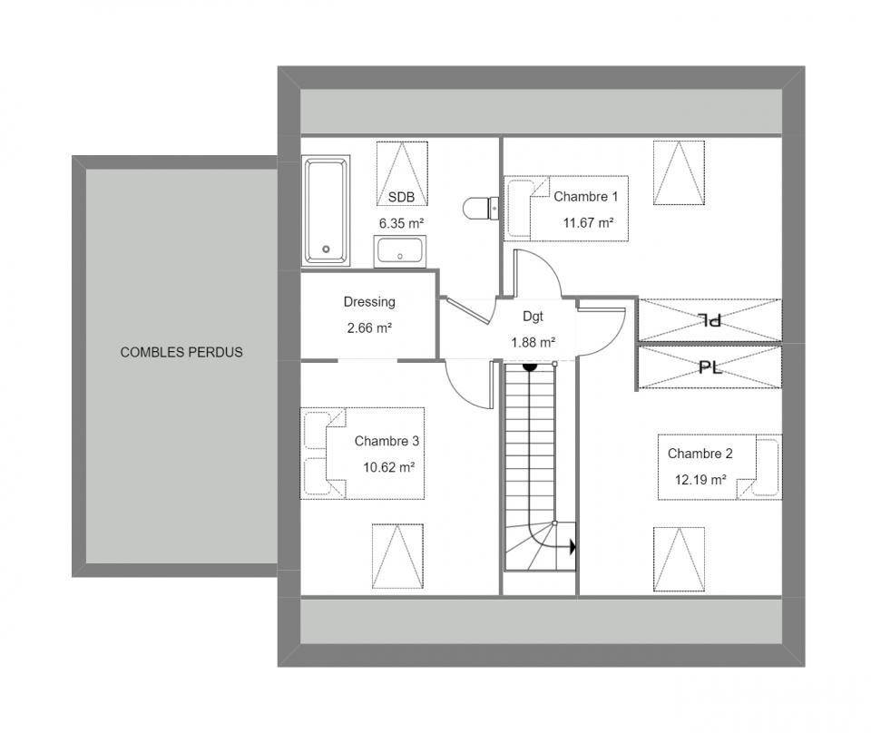
Description
Belle maison de m² avec des combles aménagés.
Cette maison vous offre une grande pièce à vivre de 43 m² et 3 belles chambres dont une chambre avec un dressing.
Vous disposerez également d'un bureau au RDC pouvant se transformer en chambre.
Un garage et un cellier sont également prévus pour un maximum de confort.
Côté prestations : Pompe à chaleur avec plancher chauffant, Menuiseries RAL 7016
CONSTRUCTIONS IDEALE DEMEURE a sélectionné avec un partenaire foncier un terrain pour construire cette maison.
Je reste disponible pour toutes demandes de renseignements, n'hésitez pas me contacter : Stéphane Digneton : (Numéro supprimé).
Logement susceptibles de vous intéresser
Nous vous proposons de découvrir aussi cette sélection de logements situés à moins de 10km de Artannes-sur-Indre et qui seraient susceptibles de vous intéresser.
Saché
TERRAINNous vous présentons ce terrain d’exception situé à Saché, au cœur de l’Indre-et-Loire, d’une superficie généreuse de 997 m². Ce bien unique offre un cadre idéal pour la conception de votre future maison, où vous pourrez exprimer pleinement vos envies et besoins en matière d’habitat. La tranquillité des lieux, combinée à la beauté naturelle environnante, en fait une opportunité à ne pas manquer. Saché, nichée dans la région Centre-Val de Loire, allie à merveille patrimoine et dynamisme. Vous profiterez de la proximité immédiate avec des attractions locales telles que les charmants châteaux de la Loire, ainsi que de commodités diversifiées allant des commerces aux écoles, qui rendent la vie quotidienne agréable et pratique. Sa situation géographique permet également d’accéder facilement aux axes de transport principaux, facilitant ainsi vos déplacements vers Tours et ses alentours. Ce terrain représente un potentiel magnifique pour construire la maison de vos rêves. Nous vous invitons à considérer cette opportunité d’achat unique. À noter qu’en tant que constructeur, nous ne sommes pas mandatés pour réaliser la vente de ce terrain.
Azay-le-Rideau
TERRAIN ET MAISONNous vous proposons cette maison neuve, baptisée « »Hilya » », un modèle d’exception qui allie avec brio charme et modernité. Conçue par un architecte, cette maison en L se distingue par son design contemporain, marqué par un toit plat élégant et un garage accolé, intégré harmonieusement à l’ensemble. Avec une surface habitable de 109 m², elle offre un espace de vie optimal réparti en 4 pièces, dont 4 chambres confortables, répondant ainsi parfaitement aux besoins d’une famille moderne.La Hilya se caractérise par ses finitions haut de gamme et ses équipements à la pointe de la technologie. Les menuiseries en aluminium, choisies pour leur durabilité et leur esthétique, s’associent à la perfection avec la possibilité d’opter pour une toiture quatre pans, ajoutant une touche de tradition à cette demeure résolument moderne. La domotique intégrée vous permettra de contrôler facilement votre environnement, assurant confort et sécurité à ses résidents.Cette maison neuve est également conçue dans le respect des normes environnementales les plus strictes, garantissant une basse consommation énergétique et une conformité totale avec la réglementation RE2020. Ce souci de l’efficacité énergétique se traduit par une réduction significative des charges et par un impact environnemental minimisé, faisant de la Hilya un choix responsable pour votre futur foyer.La Hilya représente l’harmonie parfaite entre esthétique et fonctionnalité, offrant un cadre de vie idéal pour ceux qui cherchent à allier confort moderne et respect de l’environnement. Ne manquez pas l’opportunité de construire la maison de vos rêves, une demeure qui promet de s’adapter à vos envies tout en répondant aux exigences d’un monde en constante évolution.
Vallères
TERRAINBeau terrain dans un petit lotissement. Belle orientation. Belle façade. // Réf. : T213461. Prix terrain : 81 000 €, hors frais d'agence et de notaire à la charge de l'acquéreur. Ce terrain vous est proposé, par nos partenaires fonciers, dans le cadre d'un projet de construction avec nous. Les informations sur les risques auxquels ce bien est exposé sont disponibles sur le site Géorisques (www.georisques.gouv.fr).
Druye
TERRAIN ET MAISONNous vous proposons cette maison neuve, baptisée « »City Cosy » », un véritable havre de paix alliant design, confort et respect de l’environnement. Avec une surface habitable de 86 m², cette maison est idéalement conçue pour répondre aux besoins d’une famille moderne, offrant 3 chambres et un total de 4 pièces, chacune pensée pour maximiser l’espace et la lumière naturelle.Le design de « »City Cosy » » ne laisse personne indifférent. Son architecture moderne, agrémentée d’une lucarne élégante, confère à la maison un caractère unique et une identité visuelle forte. Le car port intégré ajoute une touche pratique et esthétique, tandis que les options les plus plébiscitées telles qu’une pergola, un garage ou un sous-sol sont disponibles pour personnaliser votre maison selon vos désirs et besoins.Confort est le maître-mot de « »City Cosy » ». Chaque pièce est équipée des dernières innovations pour garantir un quotidien agréable et fonctionnel. La maison est conçue pour offrir un cadre de vie exceptionnel, où chaque membre de la famille peut trouver son espace et son intimité.Sur le plan écologique, « »City Cosy » » se distingue par sa basse consommation énergétique, conforme à la norme RE2020, la réglementation thermique la plus exigeante à ce jour. Cette maison est un investissement pour l’avenir, vous permettant de réaliser d’importantes économies d’énergie tout en réduisant votre empreinte carbone. La RT2020 garantit une isolation optimale, une ventilation efficace et l’utilisation de matériaux respectueux de l’environnement.En choisissant « »City Cosy » », vous optez pour une maison qui incarne le design, le confort et l’écologie. C’est l’assurance d’un habitat sain, économique et esthétiquement plaisant, idéal pour une famille cherchant à conjuguer vie moderne et respect de l’environnement. Avec un rapport qualité/prix exceptionnel, « »City Cosy » » est la promesse d’un foyer où il fait bon vivre, une invitation à poser vos valises dans un espace pensé pour le bonheur de tou
Villaines-les-Rochers
TERRAINÀ la recherche d’un terrain idéal pour concrétiser votre projet de construction de maison?? Ne cherchez pas plus loin! Nous vous présentons ce terrain spacieux de 1251 m² situé à Villaines-les-Rochers, en Indre-et-Loire. Ce terrain non viabilisé offre un bel espace pour bâtir la maison de vos rêves, dans un cadre paisible et verdoyant, propice à la tranquillité et à l’épanouissement familial. Villaines-les-Rochers, charmante commune du Centre-Val de Loire, est réputée pour son environnement naturel enchanteur et son attractivité locale. Profitez de la proximité avec les commodités essentielles, tels que magasins, écoles et infrastructures sportives. La ville est également bien desservie par les axes routiers, facilitant l’accès aux villes environnantes. De plus, ses paysages pittoresques et ses richesses culturelles en font un lieu incontournable pour quiconque souhaite s’installer dans la région. Ce terrain offre un potentiel immense pour les futurs acheteurs souhaitant créer leur havre de paix. N’attendez plus pour saisir cette opportunité unique?! À noter qu’en tant que constructeur, nous ne sommes pas mandatés pour réaliser la vente de ce terrain.
Druye
TERRAINDécouvrez cette opportunité unique d’acquérir un terrain de 600 m², prêt à accueillir votre projet de construction de maison ! Situé à Druye, ce terrain viabilisé offre toutes les caractéristiques nécessaires pour réaliser vos rêves d’habitat. Son enveloppe généreuse et son orientation vous permettront d’atteindre une luminosité naturelle optimale, ajoutant une touche chaleureuse à votre futur foyer. Avec cette parcelle, vous aurez la chance de vous établir dans un cadre paisible tout en bénéficiant des atouts d’une ville dynamique. Druye, commune charmante d’Indre-et-Loire, est un véritable havre de paix tout en étant proche de nombreuses activités et commodités. Vous y trouverez des commerces de proximité, des écoles et des infrastructures sportives. La ville est également à proximité de paysages pittoresques, propices aux promenades en pleine nature, ainsi que de sites touristiques majeurs de la région. Quels que soient vos envies de vie citadine ou champêtre, Druye saura vous séduire par son ambiance conviviale et sa qualité de vie. Ne laissez pas passer cette chance unique d’investir dans un terrain qui allie tranquillité et potentiel. Contactez-nous dès aujourd’hui pour envisager les possibilités qui s’offrent à vous à Druye !
Villaines-les-Rochers
TERRAIN ET MAISONNous vous proposons cette maison neuve, baptisée « »Dynamique » », un modèle à étage qui allie parfaitement fonctionnalité, esthétique et performance énergétique. Avec une surface habitable de 95 m², cette maison est conçue pour offrir un cadre de vie confortable et moderne à ses occupants. Elle comprend 2 chambres spacieuses et un total de 3 pièces, permettant ainsi une organisation de l’espace à la fois pratique et agréable.**Un prix très attractif**Le modèle Dynamique se distingue par son excellent rapport qualité/prix. Pensée pour satisfaire toutes vos attentes, cette maison ne fait aucun compromis sur la qualité et l’efficacité. Elle est conforme aux dernières normes en matière d’isolation et d’économie d’énergie, répondant ainsi parfaitement aux exigences de la réglementation environnementale RE2020. Cette maison basse consommation vous garantit des économies d’énergie significatives tout en respectant l’environnement.**Une maison modulable et personnalisable**La grande force de ce modèle réside dans sa capacité à s’adapter à vos besoins et à vos envies. Que vous optiez pour des combles aménagés ou aménageables, avec ou sans garage, le modèle Dynamique offre une flexibilité remarquable. Vous avez la possibilité de personnaliser votre maison en choisissant parmi une large gamme d’options très demandées par nos clients, telles qu’un garage accolé, des menuiseries en aluminium, un système de domotique avancé pour une maison connectée, ou encore un enduit bi-ton pour une façade à votre image.Cette maison est donc une toile vierge sur laquelle vous pouvez projeter vos rêves et vos aspirations, en la façonnant selon vos désirs. Que ce soit en termes d’aménagement intérieur, de choix des matériaux ou de solutions technologiques intégrées, le modèle Dynamique est conçu pour s’adapter à votre mode de vie et refléter votre personnalité.En choisissant le modèle Dynamique, vous optez pour une maison neuve, moderne et économe en énergie, qui saura vous accompagner
Pont-de-Ruan
TERRAIN ET MAISONNous vous proposons cette maison neuve, baptisée « »Saphir » », un modèle de notre gamme Primaciel conçu pour être accessible au plus grand nombre et idéal pour une première acquisition. De plain-pied, cette maison à prix maîtrisé bénéficie d’un aménagement optimisé avec son garage intégré, offrant un confort de vie inégalé sur une surface de 68 m².Le modèle Saphir se distingue par ses 4 pièces bien agencées, comprenant 3 chambres accueillantes pour toute la famille ou pour aménager un espace bureau selon vos besoins. La conception de cette maison a été pensée pour maximiser chaque mètre carré disponible, offrant ainsi un espace de vie chaleureux et fonctionnel.Parmi ses caractéristiques principales, le Saphir présente des combles perdus, permettant une isolation optimale et une réduction significative des besoins en chauffage. Le garage intégré offre non seulement un espace de stationnement sécurisé mais aussi un espace de rangement supplémentaire, très apprécié dans une maison de cette taille.Conscients des attentes de nos clients, nous proposons en option l’aménagement des combles, une demande fréquente qui permet d’augmenter l’espace de vie sans empiéter sur le jardin. Cette option transforme les combles perdus en pièces à vivre, idéales pour une salle de jeux, un bureau ou une chambre supplémentaire.Cette maison neuve est également conçue pour être basse consommation et est conforme à la réglementation environnementale RE2020. Cela signifie que le Saphir bénéficie des dernières innovations en matière d’isolation et de systèmes énergétiques, réduisant ainsi les coûts énergétiques tout en respectant l’environnement.Le modèle Saphir est une invitation à vivre dans une maison moderne, économique et confortable, pensée pour répondre aux besoins des familles d’aujourd’hui. Faites le premier pas vers la maison de vos rêves en choisissant Saphir, un modèle qui allie qualité, confort et respect de l’environnement.
Azay-le-Rideau
TERRAIN ET MAISONA moins de 20 minutes de Tours terrain viabilisé d'une superficie de 448 m² dans un lotissement proche A 85. Collège, écoles et commerces à 5 minutes à pieds. Un premier achat sans compromis ! Vous cherchez une maison moderne, fonctionnelle et accessible ? Ce modèle de 87 m² est idéal pour une première acquisition ! Son grand espace de vie de 45 m², baigné de lumière, offre une pièce centrale chaleureuse et conviviale. Côté nuit, 3 chambres bien agencées garantissent confort et intimité. Un garage attenant et un cellier pratique viennent compléter cet ensemble pensé pour un quotidien fluide et agréable. Facile à personnaliser, évolutive et pensée pour durer, cette maison coche toutes les cases !. Premier achat, premier projet… Prêts à vous lancer ? . Pour un confort optimal et conforme à la RE2025, cette maison dispose d’une PAC avec plancher chauffant et volets roulants électriques. À noter : Le prix indiqué exclut les revêtements de sol des chambres, la cuisine aménagée, la peinture, la décoration, les raccordements, les frais de notaire et l’assurance dommages-ouvrage. // Réf. : 31-213577-JFB. Prix terrain : 64 300 €, hors frais d'agence à la charge de l'acquéreur. Ce terrain vous est proposé, par nos partenaires fonciers, dans le cadre d'un projet de construction avec nous. Les informations sur les risques auxquels ce bien est exposé sont disponibles sur le site Géorisques (www.georisques.gouv.fr). Prix maison : 151 253 €.
L’actualité immobilière à Artannes-sur-Indre
27/11/2023
02/11/2023
30/10/2023
20/10/2023
16/10/2023
16/10/2023