Terrain à vendre

Maison à construire à Azay-le-Rideau (37190)

299200 €
104 m²
Azay-le-Rideau
Indre-et-Loire (37)
TERRAIN ET MAISON
Réf externe: 3520771
Annonce publiée le 9 novembre 2025

Images

Description

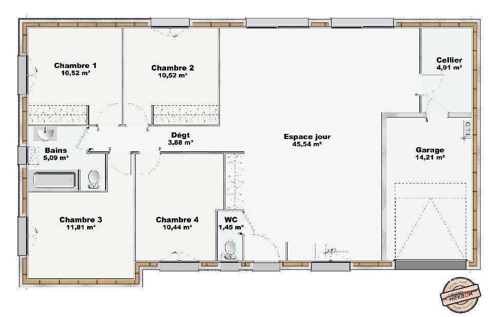
Terra 104 : Confort et Fonctionnalité en Ossature Bois
Le plan Terra 104 propose une maison de plain-pied de 104 m², réalisée avec une ossature bois, conçue pour le confort et la fonctionnalité. L'agencement met l'accent sur un espace jour spacieux et lumineux de 45,54 m², idéal pour les moments de partage en famille ou entre amis. Les quatre chambres, de tailles variées, offrent à chacun son espace d'intimité, tandis que les espaces fonctionnels, tels que le cellier, le garage et la salle de bains, facilitent le quotidien.
L'espace jour, véritable coeur de cette maison en ossature bois, est baigné de lumière naturelle grâce à de larges ouvertures. Il offre un espace de vie ouvert et accueillant, idéal pour se détendre, recevoir des amis ou partager des repas en famille. Les chambres, quant à elles, sont conçues comme des havres de paix, offrant à chacun son espace personnel pour se ressourcer.
Les espaces fonctionnels, tels que le cellier, le garage et la salle de bains, sont pensés pour faciliter le quotidien. Le dégagement central assure une circulation fluide entre les pièces, tandis que les toilettes séparées ajoutent une touche de confort supplémentaire. L'ensemble de la maison en ossature bois est conçu pour offrir un espace de vie agréable et pratique, où chaque membre de la famille se sentira chez soi.

Nous réalisons votre projet sur-mesure, contactez-moi Julie Texier au (Numéro supprimé)

CONSTRUCTIONS IDEALE DEMEURE a sélectionné avec un partenaire foncier un terrain pour construire cette maison.

CONTACTER

Logement susceptibles de vous intéresser

216 813 €
402 m²

Druye

TERRAIN ET MAISON

Terrain à bâtir – Druye (37190)80 000 € – 402 m² – Viabilisé. Terrain viabilisé de 402 m², plat et bien exposé, situé dans un quartier résidentiel calme. La commune de Druye dispose d’écoles, de commerces et de services de proximité. Accès rapide vers Ballan-Miré et Tours, idéal pour un cadre de vie paisible à quelques minutes de la ville. Cette maison de plain-pied en L, fonctionnelle et spacieuse vous propose un bel espace de vie lumineux et traversant. Sa cuisine est ouverte sur le séjour et a un accès direct au cellier. Son espace nuit est composé de trois belles chambres dont une suite parentale avec dressing et salle de bain privative, une deuxième salle de bains équipé ainsi que des wc séparés. Pour vous assurer un confort de vie et conformément à la RE2025, nous avons choisi un mode de chauffage par PAC + plancher chauffant, volets roulants électriques. Prix hors fourniture et pose : des appareils sanitaires (sauf système de chauffage et d'eau chaude sanitaire), du carrelage et de la faïence, des revêtements de sol dans les chambres. Hors décoration et aménagement intérieur et peinture. Hors raccordements, frais de notaire et dommage ouvrage. // Réf. : 784-211142-MGA. Prix terrain : 80 000 €, hors frais d'agence à la charge de l'acquéreur. Ce terrain vous est proposé, par nos partenaires fonciers, dans le cadre d'un projet de construction avec nous. Les informations sur les risques auxquels ce bien est exposé sont disponibles sur le site Géorisques (www.georisques.gouv.fr). Prix maison : 136 813 €.

209 789 €
402 m²

Druye

TERRAIN ET MAISON

Terrain à bâtir – Druye (37190)80 000 € – 402 m² – Viabilisé. Terrain viabilisé de 402 m², plat et bien exposé, situé dans un quartier résidentiel calme. La commune de Druye dispose d’écoles, de commerces et de services de proximité. Accès rapide vers Ballan-Miré et Tours, idéal pour un cadre de vie paisible à quelques minutes de la ville. Fonctionnelle et bien distribuée, La maison CRETE saura vous séduire par ses espaces. Son hall d'entrée ouvre sur un bureau, des wc et une pièce de vie avec cuisine à l'américaine aménagée ayant un accès direct au cellier. Son espace nuit est composé de 3 chambres avec rangement et une salle de bains équipée, dissociées de l'espace bureau. Pour vous assurer un confort de vie et conformément à la RE2025, nous avons choisi un mode de chauffage par PAC + plancher chauffant, volets roulants électriques. Prix hors fourniture et pose : des appareils sanitaires (sauf système de chauffage et d'eau chaude sanitaire), du carrelage et de la faïence, des revêtements de sol dans les chambres. Hors décoration et aménagement intérieur et peinture. Hors raccordements, frais de notaire et dommage ouvrage. // Réf. : 766-211142-MGA. Prix terrain : 80 000 €, hors frais d'agence à la charge de l'acquéreur. Ce terrain vous est proposé, par nos partenaires fonciers, dans le cadre d'un projet de construction avec nous. Les informations sur les risques auxquels ce bien est exposé sont disponibles sur le site Géorisques (www.georisques.gouv.fr). Prix maison : 129 789 €.

197 184 €
402 m²

Druye

TERRAIN ET MAISON

Terrain à bâtir – Druye (37190)80 000 € – 402 m² – Viabilisé. Terrain viabilisé de 402 m², plat et bien exposé, situé dans un quartier résidentiel calme. La commune de Druye dispose d’écoles, de commerces et de services de proximité. Accès rapide vers Ballan-Miré et Tours, idéal pour un cadre de vie paisible à quelques minutes de la ville. Charmante maison de plain-pied spacieuse et stylée. Son entrée est couverte par un porche, qui ouvre sur la pièce de vie de 40 m² environ. L’espace jour et l’espace nuit ont été optimisés par notre bureau d’études. Côté nuit, 3 chambres avec rangement, une salle de bains. Ses jeux d'enduits personnalisables sauront vous séduire. Pour vous assurer un confort de vie et conformément à la RE2025, nous avons choisi un mode de chauffage par PAC + plancher chauffant, volets roulants électriques. Prix hors fourniture et pose : des appareils sanitaires (sauf système de chauffage et d'eau chaude sanitaire), du carrelage et de la faïence, des revêtements de sol dans les chambres. Hors décoration et aménagement intérieur et peinture. Hors raccordements, frais de notaire et dommage ouvrage. Préau en option. // Réf. : 1047-211142-MGA. Prix terrain : 80 000 €, hors frais d'agence à la charge de l'acquéreur. Ce terrain vous est proposé, par nos partenaires fonciers, dans le cadre d'un projet de construction avec nous. Les informations sur les risques auxquels ce bien est exposé sont disponibles sur le site Géorisques (www.georisques.gouv.fr). Prix maison : 117 184 €.

236 376 €
630 m²

Azay-le-Rideau

TERRAIN ET MAISON

À Vendre : Beau Terrain Constructible à Azay-le-Rideau. Situé à seulement 2 minutes du centre d'Azay-le-Rideau et 20 minutes de Tours, ce beau terrain constructible de 630m² offre un cadre de vie exceptionnel. Caractéristiques :. Superficie : 630m²Environnement : Calme et sans vis-à-visFaçade : Près de 20 mètres linéairesRéseaux à proximité :. ÉlectricitéEau potableTéléphoneTout à l'égout (TAE) en bordure de routeProfitez de cette rare opportunité de construire votre maison dans un cadre paisible et de qualité, tout en étant proche des commodités. Pour plus d'informations, n'hésitez pas à nous contacter. Aucune place de perdue pour cette maison de plain-pied familiale et fonctionnelle qui vous propose un très bel espace de vie lumineux avec une grande baie vitrée donnant sur le jardin. Sa cuisine est ouverte sur le séjour et dispose d'un accès direct au cellier, et au garage intégré. Du côté de l'espace nuit quatre chambres avec rangements, d'une salle de bains et de wc séparés. Pour vous assurer un confort de vie et conformément à la RE2025, nous avons choisi un mode de chauffage par PAC + plancher chauffant, volets roulants électriques. Prix hors fourniture et pose : des appareils sanitaires (sauf système de chauffage et d'eau chaude sanitaire), du carrelage et de la faïence, des revêtements de sol dans les chambres. Hors décoration et aménagement intérieur et peinture. Hors raccordements, frais de notaire et dommage ouvrage. // Réf. : 874-211136-BEF. Prix terrain : 78 500 €, hors frais d'agence à la charge de l'acquéreur. Ce terrain vous est proposé, par nos partenaires fonciers, dans le cadre d'un projet de construction avec nous. Les informations sur les risques auxquels ce bien est exposé sont disponibles sur le site Géorisques (www.georisques.gouv.fr). Prix maison : 157 876 €.

226 843 €
630 m²

Azay-le-Rideau

TERRAIN ET MAISON

À Vendre : Beau Terrain Constructible à Azay-le-Rideau. Situé à seulement 2 minutes du centre d'Azay-le-Rideau et 20 minutes de Tours, ce beau terrain constructible de 630m² offre un cadre de vie exceptionnel. Caractéristiques :. Superficie : 630m²Environnement : Calme et sans vis-à-visFaçade : Près de 20 mètres linéairesRéseaux à proximité :. ÉlectricitéEau potableTéléphoneTout à l'égout (TAE) en bordure de routeProfitez de cette rare opportunité de construire votre maison dans un cadre paisible et de qualité, tout en étant proche des commodités. Pour plus d'informations, n'hésitez pas à nous contacter. Une maison compacte et astucieuse, idéale pour tous les terrains ! Pensée pour optimiser chaque mètre carré, cette maison combine modernité et praticité pour un confort au quotidien. Au rez-de-chaussée, une pièce de vie lumineuse et spacieuse accueille un espace salon et salle à manger convivial, ainsi qu’une cuisine ouverte, parfaite pour le partage et la convivialité. Un cellier discret facilite le rangement, et un WC indépendant vient compléter cet espace fonctionnel. À l’étage, trois chambres bien agencées offrent à chacun son espace personnel. Une salle de bain moderne, un WC supplémentaire et un dégagement optimisé assurent praticité et fluidité dans la vie de tous les jours. Un design intelligent, une optimisation parfaite de l’espace et une adaptabilité idéale aux terrains de toutes tailles ! Pour vous assurer un confort de vie optimal et en conformité avec la RE2025, nous avons opté pour un système de chauffage par pompe à chaleur (PAC) avec plancher chauffant au rez-de-chaussée et radiateurs à l’étage. Le logement est également équipé de volets roulants électriques.  Prix hors fourniture et pose : des appareils sanitaires (sauf système de chauffage et d'eau chaude sanitaire), du carrelage et de la faïence, des revêtements de sol dans les chambres. Hors décoration et aménagement intérieur et peinture. Hors raccordements, frais de notaire et dommage ouvrage. // Réf. : 684-211136-BEF. Prix terrain : 78 500 €, hors frais d'agence à la charge de l'acquéreur. Ce terrain vous est proposé, par nos partenaires fonciers, dans le cadre d'un projet de construction avec nous. Les informations sur les risques auxquels ce bien est exposé sont disponibles sur le site Géorisques (www.georisques.gouv.fr). Prix maison : 148 343 €.

240 544 €
630 m²

Azay-le-Rideau

TERRAIN ET MAISON

À Vendre : Beau Terrain Constructible à Azay-le-Rideau. Situé à seulement 2 minutes du centre d'Azay-le-Rideau et 20 minutes de Tours, ce beau terrain constructible de 630m² offre un cadre de vie exceptionnel. Caractéristiques :. Superficie : 630m²Environnement : Calme et sans vis-à-visFaçade : Près de 20 mètres linéairesRéseaux à proximité :. ÉlectricitéEau potableTéléphoneTout à l'égout (TAE) en bordure de routeProfitez de cette rare opportunité de construire votre maison dans un cadre paisible et de qualité, tout en étant proche des commodités. Pour plus d'informations, n'hésitez pas à nous contacter. Une maison élégante et bien pensée pour un quotidien confortable ! Avec ses espaces généreux et son agencement optimisé, cette maison est idéale pour une vie de famille harmonieuse. Au rez-de-chaussée, profitez d’un grand espace de vie ouvert, baigné de lumière, où le salon, la salle à manger et la cuisine se rejoignent en toute fluidité. Un cellier pratique, une salle d’eau et un WC indépendant viennent compléter cet espace. Une chambre au rez-de-chaussée offre une flexibilité précieuse. L’étage se compose de trois belles chambres, parfaites pour accueillir toute la famille. Une grande salle de bain, un second WC et un palier fonctionnel assurent un confort optimal. Une maison moderne, spacieuse et conçue pour répondre à toutes vos attentes !. Pour vous assurer un confort de vie optimal et en conformité avec la RE2025, nous avons opté pour un système de chauffage par pompe à chaleur (PAC) avec plancher chauffant au rez-de-chaussée et radiateurs à l’étage. Le logement est également équipé de volets roulants électriques.  Prix hors fourniture et pose : des appareils sanitaires (sauf système de chauffage et d'eau chaude sanitaire), du carrelage et de la faïence, des revêtements de sol dans les chambres. Hors décoration et aménagement intérieur et peinture. Hors raccordements, frais de notaire et dommage ouvrage. // Réf. : 2504-211136-BEF. Prix terrain : 78 500 €, hors frais d'agence à la charge de l'acquéreur. Ce terrain vous est proposé, par nos partenaires fonciers, dans le cadre d'un projet de construction avec nous. Les informations sur les risques auxquels ce bien est exposé sont disponibles sur le site Géorisques (www.georisques.gouv.fr). Prix maison : 162 044 €.

199 435 €
583 m²

Vallères

TERRAIN ET MAISON

Terrain à bâtir – Vallères (37190)75 000 € – 583 m² – Viabilisé. Terrain viabilisé de 583 m², plat et bien orienté, situé dans un secteur résidentiel agréable. La commune de Vallères dispose d’écoles, de commerces et de services de proximité. Accès facile vers Azay-le-Rideau et Tours, idéal pour concilier tranquillité et mobilité quotidienne.    . Fonctionnelle et lumineuse, cette maison de plain-pied vous propose un espace de vie de plus de 42 m²ouvert sur le jardin et sa cuisine ouverte aménagée avec un accès direct au cellier et à son garage intégré. La partie nuit est composée de trois chambres avec rangement, une salle de bain et wc indépendant. Pour vous assurer un confort de vie et conformément à la RE2025, nous avons choisi un mode de chauffage par PAC + plancher chauffant, volets roulants électriques. Prix hors fourniture et pose : des appareils sanitaires (sauf système de chauffage et d'eau chaude sanitaire), du carrelage et de la faïence, des revêtements de sol dans les chambres. Hors décoration et aménagement intérieur et peinture. Hors raccordements, frais de notaire et dommage ouvrage. // Réf. : 1209-211123-MGA. Prix terrain : 75 000 €, hors frais d'agence à la charge de l'acquéreur. Ce terrain vous est proposé, par nos partenaires fonciers, dans le cadre d'un projet de construction avec nous. Les informations sur les risques auxquels ce bien est exposé sont disponibles sur le site Géorisques (www.georisques.gouv.fr). Prix maison : 124 435 €.

212 475 €
583 m²

Vallères

TERRAIN ET MAISON

Terrain à bâtir – Vallères (37190)75 000 € – 583 m² – Viabilisé. Terrain viabilisé de 583 m², plat et bien orienté, situé dans un secteur résidentiel agréable. La commune de Vallères dispose d’écoles, de commerces et de services de proximité. Accès facile vers Azay-le-Rideau et Tours, idéal pour concilier tranquillité et mobilité quotidienne.    . Traditionnelle et familiale, cette maison est idéalement agencée en deux volumes distincts, l'espace de vie et la zone de nuit. Son espace de vie traversant avec sa cuisine US bénéficie de deux orientations qui favorisent la luminosité. Son espace nuit est composé de 4 belles chambres avec rangements, d'une salle de bains, et des wc séparés. Pour vous assurer un confort de vie et conformément à la RE2025, nous avons choisi un mode de chauffage par PAC + plancher chauffant, volets roulants électriques. Prix hors fourniture et pose : des appareils sanitaires (sauf système de chauffage et d'eau chaude sanitaire), du carrelage et de la faïence, des revêtements de sol dans les chambres. Hors décoration et aménagement intérieur et peinture. Hors raccordements, frais de notaire et dommage ouvrage. // Réf. : 748-211123-MGA. Prix terrain : 75 000 €, hors frais d'agence à la charge de l'acquéreur. Ce terrain vous est proposé, par nos partenaires fonciers, dans le cadre d'un projet de construction avec nous. Les informations sur les risques auxquels ce bien est exposé sont disponibles sur le site Géorisques (www.georisques.gouv.fr). Prix maison : 137 475 €.

L’actualité immobilière à Azay-le-Rideau

Image du post Pourquoi acheter un terrain en lotissement ? 27/11/2023
Lire l’article
Pourquoi acheter un terrain en lotissement ?
Image du post Vendre son terrain à un promoteur : comment procéder ? 02/11/2023
Lire l’article
Vendre son terrain à un promoteur : comment procéder ?
Image du post Diviser le terrain de sa maison pour le vendre : pourquoi et comment ? 30/10/2023
Lire l’article
Diviser le terrain de sa maison pour le vendre : pourquoi et comment ?
Image du post Acheter un terrain viabilisé : quels avantages ? 20/10/2023
Lire l’article
Acheter un terrain viabilisé : quels avantages ?
Image du post Les 7 étapes incontournables pour bien vendre votre terrain constructible 16/10/2023
Lire l’article
Les 7 étapes incontournables pour bien vendre votre terrain constructible
Image du post 5 points clés à vérifier pour l’achat d’un terrain constructible  16/10/2023
Lire l’article
5 points clés à vérifier pour l’achat d’un terrain constructible