Maison à construire à Beaumont-la-Ronce (37360)
Images
Description
Beaumont-la-Ronce : maison T6 (101 m²) à vendre
PROCHE DE TOURS - MAISON 6 PIÈCES NEUVE
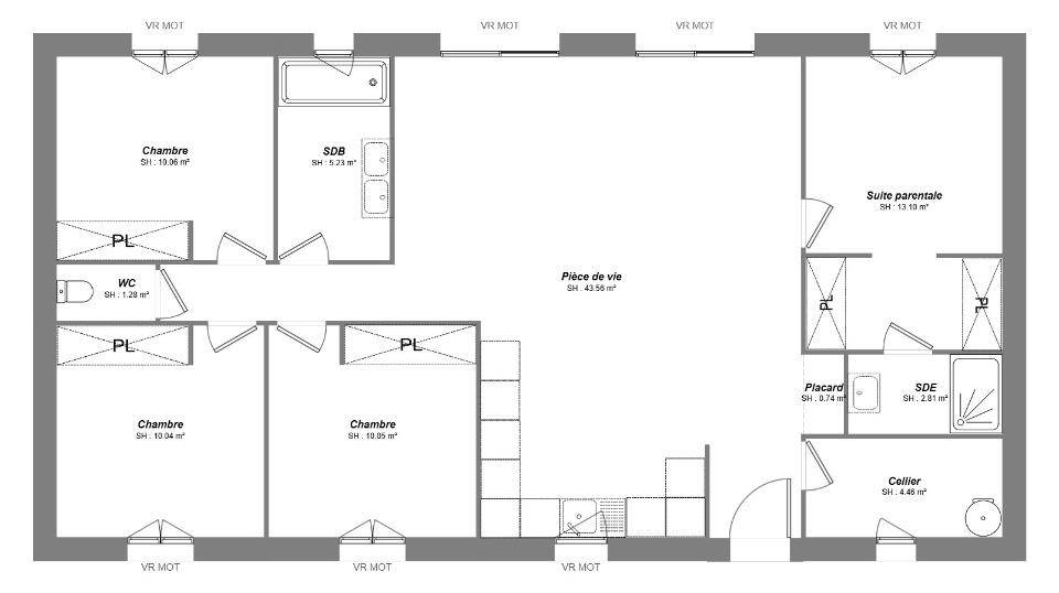
En vente : localisée à 19 km de Tours, Constructions Idéale Demeure Saint-Cyr-sur-Loire vous présente cette maison de 6 pièces de plain-pied de 101 m² à Beaumont-la-Ronce (37360).
Son intérieur propose quatre chambres, une cuisine et deux salles de bains. Cette maison est neuve.
Le terrain de la propriété est de 634 m².
On trouve une école primaire dans le quartier. Niveau transports en commun, il y a les gares Neuillé-Pont-Pierre et Saint-Antoine-du-Rocher à moins de 10 minutes en voiture. L'autoroute A28 est accessible à 6 km. On trouve un tennis et une boulangerie à quelques minutes à peine.
Elle est à vendre pour la somme de 215 400 €.
N'hésitez pas à prendre contact avec notre agence (DIGNETON Stéphane : (Numéro supprimé)) pour toute information sur la maison ou sur les modalités de vente.
Logement susceptibles de vous intéresser
Nous vous proposons de découvrir aussi cette sélection de logements situés à moins de 10km de Beaumont-Louestault et qui seraient susceptibles de vous intéresser.
Beaumont-Louestault
TERRAINDans un environnement calme et agréable, terrain entièrement viabilisé proche toutes commodités. // Réf. : T213586. Prix terrain : 54 500 €, hors frais d'agence et de notaire à la charge de l'acquéreur. Ce terrain vous est proposé, par nos partenaires fonciers, dans le cadre d'un projet de construction avec nous. Les informations sur les risques auxquels ce bien est exposé sont disponibles sur le site Géorisques (www.georisques.gouv.fr).
Nouzilly
TERRAIN ET MAISONTerrain de 424 m² situé à proximité des commodités du village. Accès rapide vers Monnaie et Tours Nord, idéal pour un projet de construction. Une maison spacieuse et astucieuse, idéale pour les terrains optimisés ! Grâce à son conception intelligente, cette maison s’intègre parfaitement sur des terrains plus restreints sans compromettre l’espace et le confort. Au rez-de-chaussée, une grande pièce de vie lumineuse vous accueille, offrant une harmonie parfaite entre salon, salle à manger et cuisine ouverte. Un cellier pratique vient compléter cet espace, facilitant le rangement au quotidien. Une salle d’eau et un WC indépendant apportent un confort supplémentaire. L’étage est dédié au repos avec quatre chambres bien agencées, permettant à chaque membre de la famille de disposer de son propre espace. Une salle de bain fonctionnelle et un second WC garantissent une organisation fluide pour toute la famille. Une maison moderne, compacte et optimisée, idéale pour profiter pleinement de votre terrain !. Pour vous assurer un confort de vie optimal et en conformité avec la RE2025, nous avons opté pour un système de chauffage par pompe à chaleur (PAC) avec plancher chauffant au rez-de-chaussée et radiateurs à l’étage. Le logement est également équipé de volets roulants électriques. Prix hors fourniture et pose : des appareils sanitaires (sauf système de chauffage et d'eau chaude sanitaire), du carrelage et de la faïence, des revêtements de sol dans les chambres. Hors décoration et aménagement intérieur et peinture. Hors raccordements, frais de notaire et dommage ouvrage. // Réf. : 1550-213495-MGA. Prix terrain : 58 300 €, hors frais d'agence à la charge de l'acquéreur. Ce terrain vous est proposé, par nos partenaires fonciers, dans le cadre d'un projet de construction avec nous. Les informations sur les risques auxquels ce bien est exposé sont disponibles sur le site Géorisques (www.georisques.gouv.fr). Prix maison : 166 250 €.
Saint-Laurent-en-Gâtines
TERRAIN ET MAISONDans une commune dynamique à 25 minutes de Tours Nord, terrain viabilisé dans un petit lotissement proche école primaire et commerces. Un équilibre parfait entre élégance et fonctionnalité ! Cette maison est conçue pour allier confort, modernité et espaces bien pensés. Un vaste espace de vie de plus de 43 m², baigné de lumière, invite à la convivialité, tandis que les trois chambres spacieuses assurent calme et intimité. Son garage attenant et son cellier astucieux complètent un agencement pensé pour un quotidien fluide et organisé. Moderne, fonctionnelle et évolutive, elle s’adapte à votre mode de vie et à vos envies. Un cadre de vie idéal pour ceux qui veulent conjuguer confort et raffinement… Prêts à vous y projeter ? . . Pour un confort optimal et conforme à la RE2025, cette maison dispose d’une PAC avec plancher chauffant et volets roulants électriques. À noter : Le prix indiqué exclut les revêtements de sol des chambres, la cuisine aménagée, la peinture, la décoration, les raccordements, les frais de notaire et l’assurance dommages-ouvrage. // Réf. : 130-213573-JFB. Prix terrain : 55 300 €, hors frais d'agence à la charge de l'acquéreur. Ce terrain vous est proposé, par nos partenaires fonciers, dans le cadre d'un projet de construction avec nous. Les informations sur les risques auxquels ce bien est exposé sont disponibles sur le site Géorisques (www.georisques.gouv.fr). Prix maison : 169 410 €.
Beaumont-Louestault
TERRAIN ET MAISONDans un environnement calme et agréable, terrain entièrement viabilisé proche toutes commodités. Une maison familiale spacieuse et parfaitement agencée !. Avec ses 134 m² de surface habitable, ce modèle séduit par une configuration équilibrée et fluide. L’entrée dessert un vaste espace de vie central de près de 50 m², idéal pour partager, recevoir et profiter d’une belle luminosité. Le coin nuit, bien séparé, comprend 4 vraies chambres, deux WC, une salle de bain et une salle d’eau : une vraie réponse aux besoins d’une famille active. Un dressing spacieux, un grand cellier et un garage complètent ce plan bien pensé. Tout est réuni pour une vie de famille sereine dans une maison moderne, confortable et facile à vivre. Pour un confort optimal et conforme à la RE2025, cette maison dispose d’une PAC avec plancher chauffant et volets roulants électriques. À noter : Le prix indiqué exclut les revêtements de sol des chambres, la cuisine aménagée, la peinture, la décoration, les raccordements, les frais de notaire et l’assurance dommages-ouvrage. . // Réf. : 74-213586-JFB. Prix terrain : 54 500 €, hors frais d'agence à la charge de l'acquéreur. Ce terrain vous est proposé, par nos partenaires fonciers, dans le cadre d'un projet de construction avec nous. Les informations sur les risques auxquels ce bien est exposé sont disponibles sur le site Géorisques (www.georisques.gouv.fr). Prix maison : 286 057 €.
Saint-Laurent-en-Gâtines
TERRAIN ET MAISONDans une commune dynamique à 25 minutes de Tours Nord, terrain viabilisé dans un petit lotissement proche école primaire et commerces. Une maison qui s’adapte à vous, et non l’inverse ! Oubliez les plans figés, ici c’est vous qui donnez le ton ! Un vaste espace de vie de près de 50 m², baigné de lumière et pensé pour des moments de convivialité. Une chambre au rez-de-chaussée avec salle d’eau attenante, idéale pour votre confort ou celui de vos invités. À l’étage, trois chambres spacieuses et une salle de bain vous offrent un cocon parfait. Ajoutez à cela un garage pratique et un cellier malin, et vous obtenez une maison qui évolue avec vous. Design, confort et flexibilité. Il ne manque que votre touche ! . Pour un confort optimal et conforme à la RE2025, cette maison dispose d’une PAC avec plancher chauffant, radiateurs à l’étage et volets roulants électriques. À noter : Le prix indiqué exclut les revêtements de sol des chambres, la cuisine aménagée, la peinture, la décoration, les raccordements, les frais de notaire et l’assurance dommages-ouvrage. . // Réf. : 113-213573-JFB. Prix terrain : 55 300 €, hors frais d'agence à la charge de l'acquéreur. Ce terrain vous est proposé, par nos partenaires fonciers, dans le cadre d'un projet de construction avec nous. Les informations sur les risques auxquels ce bien est exposé sont disponibles sur le site Géorisques (www.georisques.gouv.fr). Prix maison : 224 402 €.
Beaumont-Louestault
TERRAIN ET MAISONDans un environnement calme et agréable, terrain entièrement viabilisé proche toutes commodités. Une maison qui s’adapte à vous, et non l’inverse ! Oubliez les plans figés, ici c’est vous qui donnez le ton ! Un vaste espace de vie de près de 50 m², baigné de lumière et pensé pour des moments de convivialité. Une chambre au rez-de-chaussée avec salle d’eau attenante, idéale pour votre confort ou celui de vos invités. À l’étage, trois chambres spacieuses et une salle de bain vous offrent un cocon parfait. Ajoutez à cela un garage pratique et un cellier malin, et vous obtenez une maison qui évolue avec vous. Design, confort et flexibilité. Il ne manque que votre touche ! . Pour un confort optimal et conforme à la RE2025, cette maison dispose d’une PAC avec plancher chauffant, radiateurs à l’étage et volets roulants électriques. À noter : Le prix indiqué exclut les revêtements de sol des chambres, la cuisine aménagée, la peinture, la décoration, les raccordements, les frais de notaire et l’assurance dommages-ouvrage. . // Réf. : 113-213586-JFB. Prix terrain : 54 500 €, hors frais d'agence à la charge de l'acquéreur. Ce terrain vous est proposé, par nos partenaires fonciers, dans le cadre d'un projet de construction avec nous. Les informations sur les risques auxquels ce bien est exposé sont disponibles sur le site Géorisques (www.georisques.gouv.fr). Prix maison : 224 402 €.
Nouzilly
TERRAIN ET MAISONTerrain de 424 m² situé à proximité des commodités du village. Accès rapide vers Monnaie et Tours Nord, idéal pour un projet de construction. Familiale et fonctionnelle, cette maison rectangulaire de plain-pied vous séduira par un espace de vie de 50 m² très lumineux avec sa baie vitrée et ses ouvertures, une cuisine ouverte vous permettra de communiquer aisément. Du côté de l’espace nuit, un dégagement dessert 1 chambre parentale avec dressing et salle d’eau, trois chambres avec rangement, une salle de bain et un wc séparé. Pour vous assurer un confort de vie et conformément à la RE2025, nous avons choisi un mode de chauffage par PAC + plancher chauffant, volets roulants électriques. Prix hors fourniture et pose : des appareils sanitaires (sauf système de chauffage et d'eau chaude sanitaire), du carrelage et de la faïence, des revêtements de sol dans les chambres. Hors décoration et aménagement intérieur et peinture. Hors raccordements, frais de notaire et dommage ouvrage. // Réf. : 1425-213495-MGA. Prix terrain : 58 300 €, hors frais d'agence à la charge de l'acquéreur. Ce terrain vous est proposé, par nos partenaires fonciers, dans le cadre d'un projet de construction avec nous. Les informations sur les risques auxquels ce bien est exposé sont disponibles sur le site Géorisques (www.georisques.gouv.fr). Prix maison : 146 019 €.
Nouzilly
TERRAINEXCLUSIVITE Val Touraine Habitat !Proche de TOURS NORD, venez découvrir le Lotissement » Bellevue » à NOUZILLY.Les terrains à bâtir, vendus bornés et viabilisés (branchements : eau potable, électricité, télécoms et réseaux d’assainissement eaux usées et eaux pluviales), sont prêts à construire avec le libre choix de votre constructeur.Les atouts de ce lotissement :oEmplacement au calme, à proximité des commerces et commodités.oAccès rapide à TOURS.oFort potentiel de valorisation, parfait pour une résidence principale ou un investissement locatif, grâce à l’attractivité résidentielle et une demande locative soutenue pour un investissement rentable.Les terrains sont éligibles au Prêt à Taux Zéro (PTZ) : profitez-en pour devenir propriétaire dès maintenant ! (*)Je suis à votre écoute pour étudier votre projet de construction, répondre à toutes vos questions et vous offrir un accompagnement personnalisé et confidentiel, pour donner vie à votre future maison en toute sérénité.=> Contactez-moi dès aujourd’hui pour recevoir le dossier complet du lotissement, les plans des lots et la grille des prix.Je serai ravi de vous rencontrer et de vous accompagner dans votre projet 😮 Miguel De FARIA : (Numéro supprimé).(*) voir conditions auprès de votre conseiller
Beaumont-Louestault
TERRAINEXCLUSIVITE Val Touraine Habitat !Venez découvrir le lotissement » La Guillonnière » à Beaumont-Louestault.Les terrains à bâtir, vendus bornés et viabilisés (branchements : eau potable, électricité, télécoms et réseaux d’assainissement eaux usées et eaux pluviales), sont prêts à construire avec le libre choix de votre constructeur.Emplacement parfait pour une résidence principale ou un investissement locatif, grâce à une demande locative soutenue pour un investissement rentable.Les terrains sont éligibles au Prêt à Taux Zéro (PTZ) : profitez-en pour devenir propriétaire dès maintenant ! (*)Je suis à votre écoute pour étudier votre projet de construction, répondre à toutes vos questions et vous offrir un accompagnement personnalisé et confidentiel, pour donner vie à votre future maison en toute sérénité.> Contactez-moi dès aujourd’hui pour recevoir le dossier complet du lotissement, les plans des lots et la grille des prix.Je serai ravi de vous rencontrer et de vous accompagner dans votre projet 😮 Miguel De FARIA : (Numéro supprimé).(*) voir conditions auprès de votre conseiller
L’actualité immobilière à Beaumont-Louestault
27/11/2023
02/11/2023
30/10/2023
20/10/2023
16/10/2023
16/10/2023