Images
Description
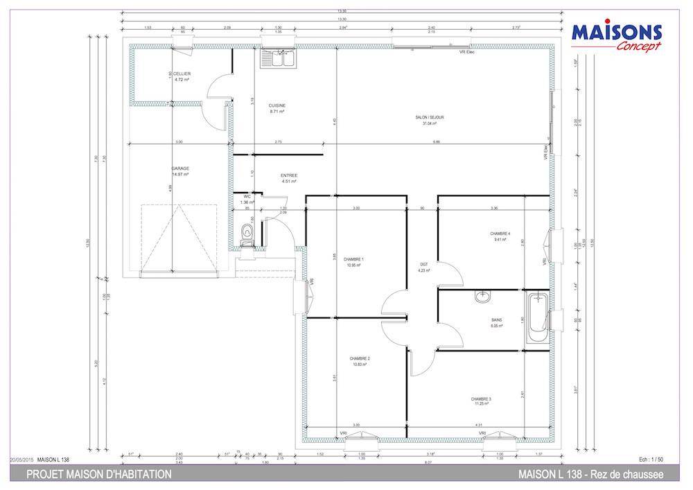
Nous vous proposons cette maison neuve, baptisée ""Élégance"", un modèle qui se distingue par sa forme architecturale en L, offrant à la fois style et fonctionnalité. Avec une surface habitable de 78 m², cette maison de plain-pied est conçue pour optimiser l'espace et la lumière naturelle, créant ainsi un cadre de vie à la fois confortable et esthétique.
L'Élégance se compose de 3 pièces principales, dont 2 chambres spacieuses, promettant un espace de vie idéal pour une petite famille ou un couple. Le grand salon-séjour, cœur de la maison, s'ouvre sur une cuisine moderne et entièrement équipée, formant un espace ouvert parfait pour les moments de partage et de convivialité. Un garage intégré, accessible depuis l'intérieur de la maison, ainsi qu'un cellier pratique, ajoutent à la fonctionnalité de ce modèle.
Cette maison est personnalisable selon vos désirs et besoins, vous permettant de créer un intérieur qui vous ressemble. Que vous rêviez d'une salle de bain supplémentaire, d'un bureau ou d'une chambre d'amis, l'Élégance s'adapte à votre mode de vie.
L'une des caractéristiques les plus appréciées de ce modèle est son enduit bi-ton, qui lui confère une allure moderne et élégante, soulignant ainsi son architecture unique. Mais ce qui distingue véritablement l'Élégance, c'est son engagement envers l'environnement. Cette maison est conçue pour être basse consommation et répond aux exigences de la norme RE2020, garantissant ainsi une efficacité énergétique optimale et une réduction significative de votre empreinte carbone.
En choisissant l'Élégance, vous optez pour une maison qui allie esthétique, confort et respect de l'environnement. Une opportunité à ne pas manquer pour ceux qui cherchent à investir dans un bien immobilier durable et de qualité.
Logement susceptibles de vous intéresser
Nous vous proposons de découvrir aussi cette sélection de logements situés à moins de 10km de Cerelles et qui seraient susceptibles de vous intéresser.
Parçay-Meslay
TERRAIN ET MAISONTerrain à bâtir – Parçay-Meslay (37210)75 500 € – 490 m² – Viabilisé. Terrain viabilisé de 490 m², situé dans un environnement résidentiel calme et recherché. La commune de Parçay-Meslay dispose d’écoles, de commerces et de services de proximité. Accès rapide à Tours Nord et aux grands axes, idéal pour allier confort de vie et mobilité quotidienne. Fonctionnelle et spacieuse, cette maison de plain-pied vous propose un bel espace de vie de 41 m² environ lumineux et traversant. Sa cuisine est ouverte sur le séjour et a un accès direct au cellier. Son espace nuit est composé de trois belles chambres avec rangements, d'une salle de bains et de wc séparés. Pour vous assurer un confort de vie et conformément à la RE2025, nous avons choisi un mode de chauffage par PAC + plancher chauffant, volets roulants électriques. Prix hors fourniture et pose : des appareils sanitaires (sauf système de chauffage et d'eau chaude sanitaire), du carrelage et de la faïence, des revêtements de sol dans les chambres. Hors décoration et aménagement intérieur et peinture. Hors raccordements, frais de notaire et dommage ouvrage. // Réf. : 730-210651-MGA. Prix terrain : 75 500 €, hors frais d'agence à la charge de l'acquéreur. Ce terrain vous est proposé, par nos partenaires fonciers, dans le cadre d'un projet de construction avec nous. Les informations sur les risques auxquels ce bien est exposé sont disponibles sur le site Géorisques (www.georisques.gouv.fr). Prix maison : 125 114 €.
Parçay-Meslay
TERRAIN ET MAISONTerrain à bâtir – Parçay-Meslay (37210)75 500 € – 490 m² – Viabilisé. Terrain viabilisé de 490 m², situé dans un environnement résidentiel calme et recherché. La commune de Parçay-Meslay dispose d’écoles, de commerces et de services de proximité. Accès rapide à Tours Nord et aux grands axes, idéal pour allier confort de vie et mobilité quotidienne. Fonctionnelle et lumineuse, cette charmante maison rectangulaire de plain-pied, vous propose une vaste pièce de vie éclairée de 48 m² environ par sa grande baie vitrée avec cuisine ouverte et cellier indépendant, côté nuit, trois chambres, salle de bains et wc séparés. Pour vous assurer un confort de vie et conformément à la RE2025, nous avons choisi un mode de chauffage par PAC + plancher chauffant, volets roulants électriques. Prix hors fourniture et pose : des appareils sanitaires (sauf système de chauffage et d'eau chaude sanitaire), du carrelage et de la faïence, des revêtements de sol dans les chambres. Hors décoration et aménagement intérieur et peinture. Hors raccordements, frais de notaire et dommage ouvrage. // Réf. : 939-210651-MGA. Prix terrain : 75 500 €, hors frais d'agence à la charge de l'acquéreur. Ce terrain vous est proposé, par nos partenaires fonciers, dans le cadre d'un projet de construction avec nous. Les informations sur les risques auxquels ce bien est exposé sont disponibles sur le site Géorisques (www.georisques.gouv.fr). Prix maison : 120 569 €.
Parçay-Meslay
TERRAIN ET MAISONTerrain à bâtir – Parçay-Meslay (37210)75 500 € – 490 m² – Viabilisé. Terrain viabilisé de 490 m², situé dans un environnement résidentiel calme et recherché. La commune de Parçay-Meslay dispose d’écoles, de commerces et de services de proximité. Accès rapide à Tours Nord et aux grands axes, idéal pour allier confort de vie et mobilité quotidienne. Du charme pour cette maison de plain-pied en V composée d'un très bel espace de vie lumineux avec cuisine US. Le plus pour cette maison est son garage intégré donnant accès au cellier et à la cuisine. Un dégagement dessert l'espace nuit qui vous offre 3 belles chambres avec rangements, une salle de bains, et wc séparés. Pour vous assurer un confort de vie et conformément à la RE2025, nous avons choisi un mode de chauffage par PAC + plancher chauffant, volets roulants électriques. Prix hors fourniture et pose : des appareils sanitaires (sauf système de chauffage et d'eau chaude sanitaire), du carrelage et de la faïence, des revêtements de sol dans les chambres. Hors décoration et aménagement intérieur et peinture. Hors raccordements, frais de notaire et dommage ouvrage. // Réf. : 649-210651-MGA. Prix terrain : 75 500 €, hors frais d'agence à la charge de l'acquéreur. Ce terrain vous est proposé, par nos partenaires fonciers, dans le cadre d'un projet de construction avec nous. Les informations sur les risques auxquels ce bien est exposé sont disponibles sur le site Géorisques (www.georisques.gouv.fr). Prix maison : 130 940 €.
Parçay-Meslay
TERRAINTerrain à bâtir – Parçay-Meslay (37210)62 500 € – 301 m² – Viabilisé. Terrain viabilisé de 301 m², situé dans un quartier résidentiel recherché. La commune de Parçay-Meslay offre écoles, commerces, services de proximité et un accès rapide à Tours Nord ainsi qu’aux principaux axes routiers. Emplacement idéal pour un projet de vie pratique et serein aux portes de Tours. // Réf. : T210650. Prix terrain : 62 500 €, hors frais d'agence et de notaire à la charge de l'acquéreur. Ce terrain vous est proposé, par nos partenaires fonciers, dans le cadre d'un projet de construction avec nous. Les informations sur les risques auxquels ce bien est exposé sont disponibles sur le site Géorisques (www.georisques.gouv.fr).
Parçay-Meslay
TERRAINTerrain à bâtir – Parçay-Meslay (37210)75 500 € – 490 m² – Viabilisé. Terrain viabilisé de 490 m², situé dans un environnement résidentiel calme et recherché. La commune de Parçay-Meslay dispose d’écoles, de commerces et de services de proximité. Accès rapide à Tours Nord et aux grands axes, idéal pour allier confort de vie et mobilité quotidienne. // Réf. : T210651. Prix terrain : 75 500 €, hors frais d'agence et de notaire à la charge de l'acquéreur. Ce terrain vous est proposé, par nos partenaires fonciers, dans le cadre d'un projet de construction avec nous. Les informations sur les risques auxquels ce bien est exposé sont disponibles sur le site Géorisques (www.georisques.gouv.fr).
Parçay-Meslay
TERRAINDécouvrez ce superbe terrain à vendre de 490 m², idéal pour réaliser votre projet de construction de maison personnalisée. Situé dans le lotissement prisé de Parçay-Meslay, ce terrain viabilisé offre une toile de fond exceptionnelle pour votre futur habitat. La parcelle bénéficie d’une vue dégagée, d’une exposition ensoleillée et d’une tranquillité d’esprit inestimable, créant ainsi l’environnement parfait pour votre vie de famille. Idéalement situé en Indre-et-Loire, au cœur de la région Centre-Val de Loire, Parçay-Meslay est une commune qui combine le charme de la campagne avec la proximité des commodités essentielles. Vous pourrez profiter des commerces de centre-ville, des écoles et des établissements secondaires à proximité, ainsi que d’un accès facile aux transports en commun et aux grands axes routiers. Ce quartier recherché offre une qualité de vie incomparable et représente une opportunité rare à un prix exceptionnel. Ne manquez pas cette chance unique d’acquérir un terrain au potentiel immense. Contactez-nous dès aujourd’hui pour en savoir plus sur cette opportunité à ne pas laisser passer. REF:RB2025
Parçay-Meslay
TERRAIN ET MAISONNous vous proposons cette maison neuve, modèle « »Access » », une perle de notre gamme Primaciel, spécialement conçue pour les primo-accédants à la recherche d’un habitat à la fois économique et innovant. Avec son incroyable rapport qualité/prix, l’Access se distingue par sa conception astucieuse et son engagement envers une isolation conforme aux dernières normes, le tout à un prix maîtrisé. Cette maison de plain-pied s’étend sur 73 m² et est judicieusement agencée pour maximiser le confort et l’espace de vie. Elle se compose de 4 pièces, dont 3 chambres spacieuses de plus de 9 m² chacune, promettant intimité et tranquillité pour tous les membres de la famille. Le cœur de cette maison est sans doute son espace de vie lumineux de près de 35 m², comprenant un séjour et une cuisine ouverte, idéal pour partager des moments conviviaux. Un cellier attenant de 3.5 m² offre un espace de rangement supplémentaire très pratique, tandis qu’une salle de bain fonctionnelle de près de 5 m² et des WC séparés viennent compléter l’ensemble.L’Access est également conçu pour évoluer avec vos besoins, grâce à ses combles perdus et ses combles aménageables, vous offrant la possibilité d’agrandir votre espace de vie selon vos envies. Les options les plus plébiscitées, telles qu’un Car Port ou un garage accolé, sont disponibles pour répondre à toutes vos attentes en matière de stationnement et de stockage.Mais ce qui distingue véritablement l’Access, c’est son engagement envers la durabilité et l’économie d’énergie. Cette maison est basse consommation et strictement conforme à la réglementation environnementale RE2020, vous assurant ainsi des économies significatives sur vos factures d’énergie tout en contribuant à la protection de l’environnement.En choisissant le modèle Access, vous optez pour une maison à prix malin, sans compromis sur la qualité et le confort, tout en étant assuré de vivre dans un logement respectueux de l’environnement. Une opportunité à ne pas manquer pour réal
Cerelles
TERRAINNous vous présentons un terrain de 649 m² idéalement situé à Cerelles, une commune prisée de l’Indre-et-Loire. Ce terrain, non viabilisé, offre une belle surface plane et arborée, parfaitement propice à la construction de votre future maison de rêve. En outre, son emplacement ensoleillé et calme dans un quartier privilégié vous promet un cadre de vie des plus sereins. Cerelles, au cœur de la magnifique région du Centre-Val de Loire, se distingue par son ambiance conviviale et ses commodités accessibles. À proximité, vous trouverez des commerces, des services variés, ainsi que des écoles, ce qui en fait un lieu de vie idéal pour les familles. La commune bénéficie également d’un accès facile aux transports et d’une position stratégique près d’un axe routier important, permettant de rejoindre rapidement les grandes agglomérations environnantes. Avec sa qualité de vie, Cerelles est sans conteste un choix judicieux pour votre projet immobilier. Ce terrain représente une opportunité exceptionnelle pour tous ceux qui souhaitent réaliser un projet de construction dans un cadre paisible et agréable. Ne manquez pas cette chance unique d’investir dans l’avenir ! REF:RB2025
Cerelles
TERRAIN ET MAISONNous vous proposons cette maison neuve, modèle « »Access » », une perle de notre gamme Primaciel, spécialement conçue pour les primo-accédants à la recherche d’un habitat à la fois économique et innovant. Avec son incroyable rapport qualité/prix, l’Access se distingue par sa conception astucieuse et son engagement envers une isolation conforme aux dernières normes, le tout à un prix maîtrisé. Cette maison de plain-pied s’étend sur 73 m² et est judicieusement agencée pour maximiser le confort et l’espace de vie. Elle se compose de 4 pièces, dont 3 chambres spacieuses de plus de 9 m² chacune, promettant intimité et tranquillité pour tous les membres de la famille. Le cœur de cette maison est sans doute son espace de vie lumineux de près de 35 m², comprenant un séjour et une cuisine ouverte, idéal pour partager des moments conviviaux. Un cellier attenant de 3.5 m² offre un espace de rangement supplémentaire très pratique, tandis qu’une salle de bain fonctionnelle de près de 5 m² et des WC séparés viennent compléter l’ensemble.L’Access est également conçu pour évoluer avec vos besoins, grâce à ses combles perdus et ses combles aménageables, vous offrant la possibilité d’agrandir votre espace de vie selon vos envies. Les options les plus plébiscitées, telles qu’un Car Port ou un garage accolé, sont disponibles pour répondre à toutes vos attentes en matière de stationnement et de stockage.Mais ce qui distingue véritablement l’Access, c’est son engagement envers la durabilité et l’économie d’énergie. Cette maison est basse consommation et strictement conforme à la réglementation environnementale RE2020, vous assurant ainsi des économies significatives sur vos factures d’énergie tout en contribuant à la protection de l’environnement.En choisissant le modèle Access, vous optez pour une maison à prix malin, sans compromis sur la qualité et le confort, tout en étant assuré de vivre dans un logement respectueux de l’environnement. Une opportunité à ne pas manquer pour réal
L’actualité immobilière à Cerelles
27/11/2023
02/11/2023
30/10/2023
20/10/2023
16/10/2023
16/10/2023