Maison à construire à Chambourg-sur-Indre (37310)
Images
Description
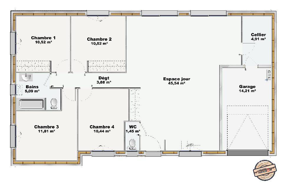
Terra 104 : Confort et Fonctionnalité en Ossature Bois
Le plan Terra 104 propose une maison de plain-pied de 104 m², réalisée avec une ossature bois, conçue pour le confort et la fonctionnalité. L'agencement met l'accent sur un espace jour spacieux et lumineux de 45,54 m², idéal pour les moments de partage en famille ou entre amis. Les quatre chambres, de tailles variées, offrent à chacun son espace d'intimité, tandis que les espaces fonctionnels, tels que le cellier, le garage et la salle de bains, facilitent le quotidien.
L'espace jour, véritable coeur de cette maison en ossature bois, est baigné de lumière naturelle grâce à de larges ouvertures. Il offre un espace de vie ouvert et accueillant, idéal pour se détendre, recevoir des amis ou partager des repas en famille. Les chambres, quant à elles, sont conçues comme des havres de paix, offrant à chacun son espace personnel pour se ressourcer.
Les espaces fonctionnels, tels que le cellier, le garage et la salle de bains, sont pensés pour faciliter le quotidien. Le dégagement central assure une circulation fluide entre les pièces, tandis que les toilettes séparées ajoutent une touche de confort supplémentaire. L'ensemble de la maison en ossature bois est conçu pour offrir un espace de vie agréable et pratique, où chaque membre de la famille se sentira chez soi.
Nous réalisons votre projet sur-mesure, contactez-moi Julie Texier au (Numéro supprimé)
CONSTRUCTIONS IDEALE DEMEURE a sélectionné avec un partenaire foncier un terrain pour construire cette maison.
Logement susceptibles de vous intéresser
Nous vous proposons de découvrir aussi cette sélection de logements situés à moins de 10km de Chambourg-sur-Indre et qui seraient susceptibles de vous intéresser.
Loches
TERRAIN ET MAISONTrès beau terrain de 1328m2, situé dans environnement calme. Une maison spacieuse et bien pensée pour toute la famille ! Pensée pour allier confort et modernité, cette maison vous séduira par ses volumes optimisés et son agencement fonctionnel. Dès l’entrée, vous découvrez un vaste espace de vie, baigné de lumière, où le salon et la salle à manger offrent un cadre chaleureux pour des moments de partage. La cuisine ouverte, à la fois moderne et fonctionnelle, s’accompagne d’un cellier attenant, idéal pour faciliter le rangement et l’organisation du quotidien. Toujours au rez-de-chaussée, une suite parentale élégante avec salle d’eau privative offre un véritable espace de détente, parfait pour préserver son intimité. À l’étage, trois chambres confortables et bien agencées permettent à chacun d’avoir son espace personnel. Une spacieuse salle de bain vient compléter cet étage, assurant praticité et bien-être pour toute la famille. Pour vous assurer un confort de vie optimal et en conformité avec la RE2025, nous avons opté pour un système de chauffage par pompe à chaleur (PAC) avec plancher chauffant au rez-de-chaussée et radiateurs à l’étage. Le logement est également équipé de volets roulants électriques. Prix hors fourniture et pose : des appareils sanitaires (sauf système de chauffage et d'eau chaude sanitaire), du carrelage et de la faïence, des revêtements de sol dans les chambres. Hors décoration et aménagement intérieur et peinture. Hors raccordements, frais de notaire et dommage ouvrage. // Réf. : 2470-213531-ALD. Prix terrain : 85 000 €, hors frais d'agence à la charge de l'acquéreur. Ce terrain vous est proposé, par nos partenaires fonciers, dans le cadre d'un projet de construction avec nous. Les informations sur les risques auxquels ce bien est exposé sont disponibles sur le site Géorisques (www.georisques.gouv.fr). Prix maison : 161 986 €.
Reignac-sur-Indre
TERRAIN ET MAISONTrès beau terrain plat de 1800m2 bien orienté. Idéal pour première construction. Une maison familiale spacieuse et parfaitement agencée !. Avec ses 134 m² de surface habitable, ce modèle séduit par une configuration équilibrée et fluide. L’entrée dessert un vaste espace de vie central de près de 50 m², idéal pour partager, recevoir et profiter d’une belle luminosité. Le coin nuit, bien séparé, comprend 4 vraies chambres, deux WC, une salle de bain et une salle d’eau : une vraie réponse aux besoins d’une famille active. Un dressing spacieux, un grand cellier et un garage complètent ce plan bien pensé. Tout est réuni pour une vie de famille sereine dans une maison moderne, confortable et facile à vivre. Pour un confort optimal et conforme à la RE2025, cette maison dispose d’une PAC avec plancher chauffant et volets roulants électriques. À noter : Le prix indiqué exclut les revêtements de sol des chambres, la cuisine aménagée, la peinture, la décoration, les raccordements, les frais de notaire et l’assurance dommages-ouvrage. . // Réf. : 74-213535-ALD. Prix terrain : 64 800 €, hors frais d'agence à la charge de l'acquéreur. Ce terrain vous est proposé, par nos partenaires fonciers, dans le cadre d'un projet de construction avec nous. Les informations sur les risques auxquels ce bien est exposé sont disponibles sur le site Géorisques (www.georisques.gouv.fr). Prix maison : 286 057 €.
Saint-Quentin-sur-Indrois
TERRAINTrès beau terrain plat de 1256m2, plat et situé dans un environnement calme. A 10 minutes de l'A85. // Réf. : T213530. Prix terrain : 28 000 €, hors frais d'agence et de notaire à la charge de l'acquéreur. Ce terrain vous est proposé, par nos partenaires fonciers, dans le cadre d'un projet de construction avec nous. Les informations sur les risques auxquels ce bien est exposé sont disponibles sur le site Géorisques (www.georisques.gouv.fr).
Saint-Quentin-sur-Indrois
TERRAINTrès beau terrain plat de 1256m2, plat et situé dans un environnement calme. A 10 minutes de l'A85. // Réf. : T213530. Prix terrain : 28 000 €, hors frais d'agence et de notaire à la charge de l'acquéreur. Ce terrain vous est proposé, par nos partenaires fonciers, dans le cadre d'un projet de construction avec nous. Les informations sur les risques auxquels ce bien est exposé sont disponibles sur le site Géorisques (www.georisques.gouv.fr).
Saint-Quentin-sur-Indrois
TERRAIN ET MAISONTrès beau terrain plat de 1256m2, plat et situé dans un environnement calme. A 10 minutes de l'A85. Un espace à vivre, une maison à imaginer ! Envie d’un intérieur qui vous ressemble ? Découvrez un vaste espace de vie de près de 58 m², baigné de lumière et ouvert sur l’extérieur. Avec 4 chambres, un bureau indépendant, et des espaces bien pensés comme un cellier et un grand garage, cette maison est prête à évoluer avec vous. Besoin d’un dressing, d’un espace télétravail ou d’une salle de jeux ? Ici, tout est possible ! Personnalisez chaque mètre carré pour créer un lieu unique, façonné selon vos envies. Plus qu’une maison, un projet à votre image… Prêts à vous lancer ?. . Pour un confort optimal et conforme à la RE2025, cette maison dispose d’une PAC avec plancher chauffant et volets roulants électriques. À noter : Le prix indiqué exclut les revêtements de sol des chambres, la cuisine aménagée, la peinture, la décoration, les raccordements, les frais de notaire et l’assurance dommages-ouvrage. . // Réf. : 2-213530-ALD. Prix terrain : 28 000 €, hors frais d'agence à la charge de l'acquéreur. Ce terrain vous est proposé, par nos partenaires fonciers, dans le cadre d'un projet de construction avec nous. Les informations sur les risques auxquels ce bien est exposé sont disponibles sur le site Géorisques (www.georisques.gouv.fr). Prix maison : 280 302 €.
Loches
TERRAIN ET MAISONTrès beau terrain de 1328m2, situé dans environnement calme. Une maison à votre image, prête à évoluer ! Ici, tout est pensé pour s’adapter à vos envies. Un vaste espace de vie lumineux, une suite parentale avec dressing et salle d’eau, un bureau inspirant et un cellier pratique pour un quotidien fluide et organisé. À l’étage, deux belles chambres et une grande mezzanine, idéale pour un coin détente, une salle de jeux ou un espace télétravail. Personnalisez chaque mètre carré et créez un intérieur qui vous ressemble !. Ici, tout est modulable… et si vous lui donniez votre touche ?. . Pour un confort optimal et conforme à la RE2025, cette maison dispose d’une PAC avec plancher chauffant, radiateurs à l’étage et volets roulants électriques. À noter : Le prix indiqué exclut les revêtements de sol des chambres, la cuisine aménagée, la peinture, la décoration, les raccordements, les frais de notaire et l’assurance dommages-ouvrage. . // Réf. : 108-213531-ALD. Prix terrain : 85 000 €, hors frais d'agence à la charge de l'acquéreur. Ce terrain vous est proposé, par nos partenaires fonciers, dans le cadre d'un projet de construction avec nous. Les informations sur les risques auxquels ce bien est exposé sont disponibles sur le site Géorisques (www.georisques.gouv.fr). Prix maison : 228 343 €.
Saint-Quentin-sur-Indrois
TERRAIN ET MAISONTrès beau terrain plat de 1256m2, plat et situé dans un environnement calme. A 10 minutes de l'A85. Transformez votre maison avec Evolia. Avec Evolia, construisez la maison de vos rêves, étape par étape. Profitez d'une modularité unique et faites de votre foyer un espace évolutif et adaptable à chaque moment de votre vie. Notre atout majeur ? Un garage de 41 m² transformable en un espace de vie exceptionnel. Ce vaste garage peut devenir trois chambres supplémentaires et une salle d'eau, vous permettant d'agrandir votre maison sans déménagement et en maximisant chaque mètre carré pour répondre à vos besoins changeants. Prix hors fourniture et pose : des appareils sanitaires (sauf système de chauffage et d'eau chaude sanitaire), du carrelage, de la faïence, de la cuisine aménagée, des revêtements de sol dans les chambres. Hors décoration, aménagement intérieur, peinture, raccordements, frais de notaire et dommage ouvrage. (Surface habitable 49 m²+garage 41 m²). // Réf. : 2600-213530-ALD. Prix terrain : 28 000 €, hors frais d'agence à la charge de l'acquéreur. Ce terrain vous est proposé, par nos partenaires fonciers, dans le cadre d'un projet de construction avec nous. Les informations sur les risques auxquels ce bien est exposé sont disponibles sur le site Géorisques (www.georisques.gouv.fr). Prix maison : 99 423 €.
Loches
TERRAIN ET MAISONTrès beau terrain de 1328m2, situé dans environnement calme. Une maison qui s’adapte à vous, et non l’inverse ! Oubliez les plans figés, ici c’est vous qui donnez le ton ! Un vaste espace de vie de près de 50 m², baigné de lumière et pensé pour des moments de convivialité. Une chambre au rez-de-chaussée avec salle d’eau attenante, idéale pour votre confort ou celui de vos invités. À l’étage, trois chambres spacieuses et une salle de bain vous offrent un cocon parfait. Ajoutez à cela un garage pratique et un cellier malin, et vous obtenez une maison qui évolue avec vous. Design, confort et flexibilité. Il ne manque que votre touche ! . Pour un confort optimal et conforme à la RE2025, cette maison dispose d’une PAC avec plancher chauffant, radiateurs à l’étage et volets roulants électriques. À noter : Le prix indiqué exclut les revêtements de sol des chambres, la cuisine aménagée, la peinture, la décoration, les raccordements, les frais de notaire et l’assurance dommages-ouvrage. . // Réf. : 113-213531-ALD. Prix terrain : 85 000 €, hors frais d'agence à la charge de l'acquéreur. Ce terrain vous est proposé, par nos partenaires fonciers, dans le cadre d'un projet de construction avec nous. Les informations sur les risques auxquels ce bien est exposé sont disponibles sur le site Géorisques (www.georisques.gouv.fr). Prix maison : 224 402 €.
Loches
TERRAINTrès beau terrain de 1328m2, situé dans environnement calme. // Réf. : T213531. Prix terrain : 85 000 €, hors frais d'agence et de notaire à la charge de l'acquéreur. Ce terrain vous est proposé, par nos partenaires fonciers, dans le cadre d'un projet de construction avec nous. Les informations sur les risques auxquels ce bien est exposé sont disponibles sur le site Géorisques (www.georisques.gouv.fr).
L’actualité immobilière à Chambourg-sur-Indre
27/11/2023
02/11/2023
30/10/2023
20/10/2023
16/10/2023
16/10/2023