Images
Description
Sur ce terrain, nous vous proposons cette maison neuve : la Conception, un modèle exclusif signé Maisons Concept, constructeur reconnu pour offrir le meilleur rapport qualité/prix du marché.
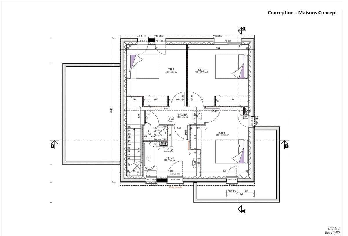
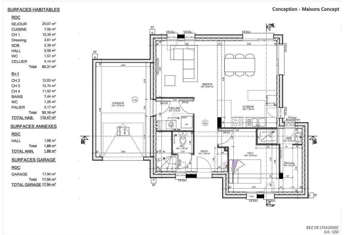
Cette maison contemporaine à étage, d’une superficie de 110 m², allie lignes traditionnelles et touches de design moderne pour une esthétique épurée et captivante. La Conception se distingue par son architecture compacte et son garage accolé à toit plat, garantissant une intégration harmonieuse dans son environnement.
À l’intérieur, la Conception est pensée pour le confort et la fonctionnalité. Elle offre 4 chambres spacieuses dont une suite parentale, ainsi qu’une vaste pièce de vie ouverte, idéale pour partager des moments conviviaux en famille ou entre amis. La dalle béton à l’étage assure une isolation phonique et thermique optimale, renforçant le confort au quotidien.
Cette maison neuve est conforme à la norme RE2020, gage de basse consommation énergétique et de respect des exigences environnementales les plus récentes. Les options les plus plébiscitées, telles que la domotique ou les menuiseries aluminium, sont disponibles afin de personnaliser votre future maison selon vos envies.
Optez pour la Conception et découvrez une maison où chaque détail est pensé pour offrir une expérience de vie harmonieuse et moderne. Ne manquez pas cette opportunité unique de devenir propriétaire d’un modèle alliant élégance, praticité et performance énergétique.
Logement susceptibles de vous intéresser
Nous vous proposons de découvrir aussi cette sélection de logements situés à moins de 10km de Chinon et qui seraient susceptibles de vous intéresser.
Beaumont-en-Véron
TERRAIN ET MAISONNous vous proposons cette maison neuve, baptisée « »City Cosy » », un véritable havre de paix alliant design, confort et respect de l’environnement. Avec une surface habitable de 86 m², cette maison est idéalement conçue pour répondre aux besoins d’une famille moderne, offrant 3 chambres et un total de 4 pièces, chacune pensée pour maximiser l’espace et la lumière naturelle.Le design de « »City Cosy » » ne laisse personne indifférent. Son architecture moderne, agrémentée d’une lucarne élégante, confère à la maison un caractère unique et une identité visuelle forte. Le car port intégré ajoute une touche pratique et esthétique, tandis que les options les plus plébiscitées telles qu’une pergola, un garage ou un sous-sol sont disponibles pour personnaliser votre maison selon vos désirs et besoins.Confort est le maître-mot de « »City Cosy » ». Chaque pièce est équipée des dernières innovations pour garantir un quotidien agréable et fonctionnel. La maison est conçue pour offrir un cadre de vie exceptionnel, où chaque membre de la famille peut trouver son espace et son intimité.Sur le plan écologique, « »City Cosy » » se distingue par sa basse consommation énergétique, conforme à la norme RE2020, la réglementation thermique la plus exigeante à ce jour. Cette maison est un investissement pour l’avenir, vous permettant de réaliser d’importantes économies d’énergie tout en réduisant votre empreinte carbone. La RT2020 garantit une isolation optimale, une ventilation efficace et l’utilisation de matériaux respectueux de l’environnement.En choisissant « »City Cosy » », vous optez pour une maison qui incarne le design, le confort et l’écologie. C’est l’assurance d’un habitat sain, économique et esthétiquement plaisant, idéal pour une famille cherchant à conjuguer vie moderne et respect de l’environnement. Avec un rapport qualité/prix exceptionnel, « »City Cosy » » est la promesse d’un foyer où il fait bon vivre, une invitation à poser vos valises dans un espace pensé pour le bonheur de tou
Chinon
TERRAINDécouvrez ce magnifique terrain de 527 m², parfaitement situé dans le lotissement de Chinon, une charmante commune d’Indre-et-Loire. Viabilisé et prêt à accueillir votre projet de construction, ce terrain offre une opportunité inégalée pour réaliser la maison de vos rêves. Grâce à sa superficie généreuse, il permet d’envisager diverses configurations architecturales et un aménagement sur mesure à votre image. Chinon, célèbre pour son patrimoine historique et ses paysages enchanteurs, vous séduira par son ambiance conviviale et ses atraits culturels uniques. Profitez des ruelles pittoresques, des restaurants de qualité, des marchés animés et des nombreuses facettes que cette ville a à offrir. À proximité, vous trouverez également des écoles, des commerces de proximité et des espaces verts propices à la détente. Ce terrain bénéficie d’un environnement où il fait bon vivre, alliant tranquillité et dynamisme. Ne manquez pas cette occasion de concrétiser votre projet immobilier dans un cadre idyllique et attractif. Contactez-nous pour explorer le potentiel de cette opportunité d’achat unique. À noter qu’en tant que constructeur, nous ne sommes pas mandatés pour réaliser la vente de ce terrain.
Avoine
TERRAINNous sommes ravis de vous présenter un terrain à la vente de 475 m² situé à Avoine, dans le magnifique département de l’Indre-et-Loire. Ce terrain non viabilisé représente une opportunité exceptionnelle pour réaliser votre projet de construction de maison. Niché dans un environnement paisible, il offre une certaine intimité tout en permettant un accès facilité aux commodités locales. Avoine, avec son ambiance chaleureuse et conviviale, saura séduire quiconque cherche à établir un foyer accueillant. Avoine est une charmante commune de l’Indre-et-Loire, bénéfice d’une localisation stratégique à proximité de Tours, tout en conservant une atmosphère sereine. Vilaine de paysages naturels parcourus de sentiers, la région invite à la découverte. Les habitants apprécieront la proximité avec les attractions locales telles que les célèbres châteaux de la Loire, ainsi que des commerces, des services scolaires et de loisirs à portée de main. Ce terrain est donc idéalement situé pour ceux qui souhaitent allier tranquillité et vie active, tout en profitant de la richesse culturelle et historique de la région. Ce terrain représente une opportunité unique pour les acheteurs souhaitant bâtir leur rêve. Ne manquez pas l’occasion de concrétiser votre projet dans un cadre idyllique. Contactez-nous dès maintenant pour organiser une visite et explorer le potentiel de cette belle parcelle !
Chinon
TERRAIN ET MAISONNous vous proposons cette maison neuve, baptisée « »Élégance » », un modèle qui se distingue par sa forme en L, offrant à la fois style et fonctionnalité. Avec une surface habitable de 93 m², cette maison de plain-pied est conçue pour maximiser l’espace et le confort de ses résidents. Elle comprend un grand salon-séjour lumineux, ouvert sur une cuisine moderne, idéale pour partager des moments conviviaux en famille ou entre amis. L’architecture en L permet une séparation naturelle entre l’espace de vie et l’espace nuit, ce dernier étant composé de 3 chambres spacieuses, garantissant intimité et tranquillité. La maison dispose également d’un garage intégré, pratique pour sécuriser votre véhicule ou pour du stockage supplémentaire, ainsi qu’un cellier adjacent à la cuisine, parfait pour organiser vos provisions et ustensiles de cuisine.L’une des caractéristiques les plus appréciées de ce modèle est son enduit bi-ton, qui ajoute une touche d’élégance et de modernité à l’extérieur de la maison, la faisant ressortir dans n’importe quel environnement. Construite dans le respect des normes de la RE2020, cette maison basse consommation est un choix judicieux pour ceux qui cherchent à réduire leur empreinte écologique tout en bénéficiant d’un confort optimal. Elle est personnalisable selon vos besoins et vos envies, vous permettant de créer un foyer qui vous ressemble, adapté à votre mode de vie. » »Élégance » » est plus qu’une maison, c’est un lieu de vie pensé pour votre bien-être et celui de votre famille, où chaque détail a été conçu pour répondre à vos attentes les plus élevées. Ne manquez pas l’opportunité de construire la maison de vos rêves, un espace où chaque jour sera empreint de confort, de style et d’efficacité énergétique.
Huismes
TERRAIN ET MAISONMagnifique terrain à Huismes – Idéal pour les amateurs de nature. Situé sur la commune de Huismes, ce terrain de 1200 m² offre une large façade de 22 mètres. À seulement 2 minutes d'Avoine, 7 minutes de Chinon et 40 minutes de Tours, il bénéficie d'une localisation privilégiée. De plus, il est possible d'acquérir jusqu'à 15 000 m² supplémentaires en zone agricole, parfait pour les propriétaires de chevaux ou les projets agricoles. À ne pas manquer !. Pour plus de détails ou pour organiser une visite, veuillez nous contacter. Familiale et fonctionnelle cette maison de 106 m² habitables vous séduira par ses volumes et son aménagement. Son très bel espace de vie de 47 m² environ avec sa cuisine ouverte avec accès direct au jardin grâce à sa baie vitrée. L’espace nuit est composé d’une suite parentale avec dressing et salle d’eau privative, à l’opposé trois chambres avec rangements, une salle de bains indépendante. Pour vous assurer un confort de vie et conformément à la RE2025, nous avons choisi un mode de chauffage par PAC + plancher chauffant, volets roulants électriques. Prix hors fourniture et pose : des appareils sanitaires (sauf système de chauffage et d'eau chaude sanitaire), du carrelage et de la faïence, des revêtements de sol dans les chambres. Hors décoration et aménagement intérieur et peinture. Hors raccordements, frais de notaire et dommage ouvrage. // Réf. : 1245-213557-BEF. Prix terrain : 40 000 €, hors frais d'agence à la charge de l'acquéreur. Ce terrain vous est proposé, par nos partenaires fonciers, dans le cadre d'un projet de construction avec nous. Les informations sur les risques auxquels ce bien est exposé sont disponibles sur le site Géorisques (www.georisques.gouv.fr). Prix maison : 143 925 €.
La Roche-Clermault
TERRAIN ET MAISONÀ Vendre : Terrain Viabilisé de 850 m² à 5 Minutes de Chinon. Offrez-vous la tranquillité et la qualité de vie dans un cadre idyllique ! Situé dans une charmante commune de 500 habitants, ce terrain viabilisé de 850 m² se trouve à seulement 7 kilomètres de Chinon. Caractéristiques du terrain :. Superficie : 850 m². Viabilisé : Oui. Localisation : Petite commune paisible à 5 minutes de Chinon. Points forts :. Environnement calme et de qualité : Profitez d'un cadre de vie serein, loin du tumulte de la ville. Proximité des commodités : À seulement quelques minutes de Chinon, vous bénéficiez de toutes les commodités nécessaires. Opportunité unique : Idéal pour construire la maison de vos rêves dans un environnement privilégié. Ne manquez pas cette occasion exceptionnelle de devenir propriétaire d'un terrain dans un cadre paisible et recherché. Contactez-nous dès maintenant pour plus d'informations et pour organiser une visite !. Est-ce que cela vous convient ? ????. Une maison qui coche toutes les cases ! Avec son agencement clair et fonctionnel, ce modèle est un vrai coup de cœur pour les familles en quête de simplicité efficace. L’espace de vie traversant invite à la lumière naturelle, tandis que les 3 chambres sont idéalement réparties pour préserver l’intimité de chacun. Un bureau discret s’adapte à tous les projets, qu’ils soient pro ou perso. Salle de bain, cellier, WC séparé et garage attenant : chaque détail a été pensé pour vous simplifier la vie au quotidien. Une maison qui s’adapte à vos besoins, à votre rythme, et à vos envies d’évolution. Pour un confort optimal et conforme à la RE2025, cette maison dispose d’une PAC avec plancher chauffant et volets roulants électriques. À noter : Le prix indiqué exclut les revêtements de sol des chambres, la cuisine aménagée, la peinture, la décoration, les raccordements, les frais de notaire et l’assurance dommages-ouvrage. . Contactez-nous dès aujourd’hui pour personnaliser cette maison selon vos envies et construire le projet de vos rêves !. // Réf. : 120-213558-BEF. Prix terrain : 25 000 €, hors frais d'agence à la charge de l'acquéreur. Ce terrain vous est proposé, par nos partenaires fonciers, dans le cadre d'un projet de construction avec nous. Les informations sur les risques auxquels ce bien est exposé sont disponibles sur le site Géorisques (www.georisques.gouv.fr). Prix maison : 161 653 €.
Rivière
TERRAIN ET MAISONNous vous proposons cette maison neuve, baptisée « »City Cosy » », un véritable havre de paix alliant design, confort et respect de l’environnement. Avec une surface habitable de 86 m², cette maison est idéalement conçue pour répondre aux besoins d’une famille moderne, offrant 3 chambres et un total de 4 pièces, chacune pensée pour maximiser l’espace et la lumière naturelle.Le design de « »City Cosy » » ne laisse personne indifférent. Son architecture moderne, agrémentée d’une lucarne élégante, confère à la maison un caractère unique et une identité visuelle forte. Le car port intégré ajoute une touche pratique et esthétique, tandis que les options les plus plébiscitées telles qu’une pergola, un garage ou un sous-sol sont disponibles pour personnaliser votre maison selon vos désirs et besoins.Confort est le maître-mot de « »City Cosy » ». Chaque pièce est équipée des dernières innovations pour garantir un quotidien agréable et fonctionnel. La maison est conçue pour offrir un cadre de vie exceptionnel, où chaque membre de la famille peut trouver son espace et son intimité.Sur le plan écologique, « »City Cosy » » se distingue par sa basse consommation énergétique, conforme à la norme RE2020, la réglementation thermique la plus exigeante à ce jour. Cette maison est un investissement pour l’avenir, vous permettant de réaliser d’importantes économies d’énergie tout en réduisant votre empreinte carbone. La RT2020 garantit une isolation optimale, une ventilation efficace et l’utilisation de matériaux respectueux de l’environnement.En choisissant « »City Cosy » », vous optez pour une maison qui incarne le design, le confort et l’écologie. C’est l’assurance d’un habitat sain, économique et esthétiquement plaisant, idéal pour une famille cherchant à conjuguer vie moderne et respect de l’environnement. Avec un rapport qualité/prix exceptionnel, « »City Cosy » » est la promesse d’un foyer où il fait bon vivre, une invitation à poser vos valises dans un espace pensé pour le bonheur de tou
Chinon
TERRAIN ET MAISONNous vous proposons cette maison neuve, baptisée « »Élégance » », un modèle qui se distingue par sa forme architecturale en L, offrant à la fois style et fonctionnalité sur une surface habitable de 103 m². Conçue pour répondre aux attentes des plus exigeants, cette maison de plain-pied combine harmonieusement espace et confort, avec un total de 4 pièces, dont 4 chambres spacieuses, promettant ainsi un cadre de vie idéal pour toute la famille.L’entrée s’ouvre sur un vaste salon-séjour baigné de lumière, grâce à sa conception ouverte qui s’étend jusqu’à la cuisine, créant un espace de vie convivial et accueillant. L’intégration d’un garage attenant et d’un cellier pratique souligne la pensée méticuleuse mise dans la conception de cette maison, visant à allier esthétique et fonctionnalité.L’une des caractéristiques les plus appréciées de ce modèle est son enduit bi-ton, qui ajoute une touche de modernité et d’élégance à l’extérieur, reflétant le nom même de la maison. De plus, cette maison est entièrement personnalisable, vous permettant d’adapter chaque espace à votre mode de vie et à vos préférences, assurant ainsi que votre futur foyer réponde parfaitement à vos attentes.Au-delà de son design attrayant, « »Élégance » » est une maison basse consommation, rigoureusement conçue pour respecter les normes de la RE2020. Cette caractéristique garantit non seulement un confort optimal tout au long de l’année mais aussi des économies significatives sur les factures d’énergie, soulignant notre engagement envers la durabilité et le respect de l’environnement.En choisissant « »Élégance » », vous optez pour une maison qui allie beauté, confort et responsabilité environnementale. Une opportunité à ne pas manquer pour ceux qui cherchent à construire leur nid familial dans un cadre de vie à la fois moderne et économe en énergie.
Huismes
TERRAIN ET MAISONMagnifique terrain à Huismes – Idéal pour les amateurs de nature. Situé sur la commune de Huismes, ce terrain de 1200 m² offre une large façade de 22 mètres. À seulement 2 minutes d'Avoine, 7 minutes de Chinon et 40 minutes de Tours, il bénéficie d'une localisation privilégiée. De plus, il est possible d'acquérir jusqu'à 15 000 m² supplémentaires en zone agricole, parfait pour les propriétaires de chevaux ou les projets agricoles. À ne pas manquer !. Pour plus de détails ou pour organiser une visite, veuillez nous contacter. Craquez pour cette maison de plain-pied au style parfait qui allie confort et praticité. L'espace de vie lumineux, avec sa cuisine ouverte sur le séjour, est pensé pour créer un lieu de vie convivial et chaleureux. Côté nuit, une suite parentale avec salle d’eau privative pour votre intimité, ainsi que trois chambres, une salle de bains et des espaces optimisés pour le quotidien. Le cellier attenant à la cuisine, avec un accès direct au garage, apporte une fonctionnalité supplémentaire. Equipements performants : PAC, plancher chauffant et volets roulants électriques pour un confort optimal conforme à la RE2025. À noter : Le prix indiqué exclut les revêtements de sol des chambres, la cuisine aménagée, la peinture, la décoration, les raccordements, les frais de notaire et l’assurance dommages ouvrage. . // Réf. : 133-213557-BEF. Prix terrain : 40 000 €, hors frais d'agence à la charge de l'acquéreur. Ce terrain vous est proposé, par nos partenaires fonciers, dans le cadre d'un projet de construction avec nous. Les informations sur les risques auxquels ce bien est exposé sont disponibles sur le site Géorisques (www.georisques.gouv.fr). Prix maison : 172 571 €.
L’actualité immobilière à Chinon
27/11/2023
02/11/2023
30/10/2023
20/10/2023
16/10/2023
16/10/2023