Maison à construire à Esvres (37320)
Images
Description
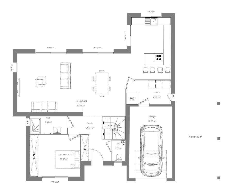
Jolie maison tradi-moderne sur étage d'une superficie globale de 143m².
Au rez-de-chaussée, vous trouverez un garage spacieux ainsi qu'un carport en toit terrasse, une belle pièce de vie de 55m², deux grandes chambres, une salle d'eau commune, un cellier et un WC.
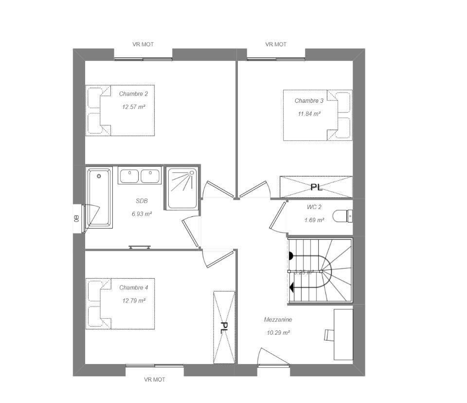
A l'étage, vous trouverez trois grandes chambres ainsi qu'une belle salle de bain et une mezzanine.
Concernant les prestations de la maison, vous retrouverez une pompe à chaleur couplée avec un plancher chauffant, des menuiseries de couleur en aluminium, un plancher béton, des ardoises artificielles, toiture 4 pans, carport en toit plat...
CONSTRUCTIONS IDEALE DEMEURE a sélectionné avec un partenaire foncier un terrain pour construire cette maison.
Logement susceptibles de vous intéresser
Nous vous proposons de découvrir aussi cette sélection de logements situés à moins de 10km de Esvres et qui seraient susceptibles de vous intéresser.
Chambray-lès-Tours
TERRAIN ET MAISONDEVENEZ PROPRIÉTAIRE DE VOTRE MAISON SUR-MESURE – OPPORTUNITE A SAISIR Découvrez cette demeure conçue et bâtie avec tout le savoir-faire des Maisons de Stéphanie, constructeur reconnu pour ses 30 années d’expérience et son exigence de qualité.Chaque détail est pensé pour votre confort et vos envies : une architecture élégante, des espaces lumineux et fonctionnels, et la possibilité d’adapter les plans selon votre mode de vie.Saisissez dès maintenant l’opportunité de faire de cette maison votre nouveau lieu de vie !Contactez Maëlle VECHTE dès maintenant au *2 47 48 09 30 pour plus d’informations et concrétiser votre projet.
Saint-Branchs
TERRAIN ET MAISONDans un cadre champêtre, dans un environnement préservé, terrain à viabiliser proche toutes commodités et écoles. Votre maison, votre signature ! Ici, tout est possible : un vaste salon-séjour lumineux, une cuisine à façonner selon vos envies, et une chambre en rez-de-chaussée pour plus de confort. À l’étage, trois chambres et une salle de bain créent un espace nuit chaleureux et fonctionnel. Besoin d’un coin télétravail, d’un dressing ou d’un grenier aménageable ? Adaptez chaque m² à votre mode de vie !. Créez un espace qui vous ressemble, imaginez votre futur chez-vous !. Pour un confort optimal et conforme à la RE2025, cette maison dispose d’une PAC avec plancher chauffant, radiateurs à l’étage et volets roulants électriques. À noter : Le prix indiqué exclut les revêtements de sol des chambres, la cuisine aménagée, la peinture, la décoration, les raccordements, les frais de notaire et l’assurance dommages-ouvrage. . // Réf. : 126-213581-JFB. Prix terrain : 86 000 €, hors frais d'agence à la charge de l'acquéreur. Ce terrain vous est proposé, par nos partenaires fonciers, dans le cadre d'un projet de construction avec nous. Les informations sur les risques auxquels ce bien est exposé sont disponibles sur le site Géorisques (www.georisques.gouv.fr). Prix maison : 187 780 €.
Chambray-lès-Tours
TERRAINEXCLUSIVITE MAISONS STEPHANIE – TERRAIN À BÂTIR – CHAMBRAY LES TOURS (37170)Proximité immédiate de TOURS et de toutes les commodités, découvrez ce terrain à bâtir idéal pour donner vie à votre projet de construction.Situé dans un environnement privilégié, ne tardez pas à visiter ce terrain RARE sur le secteur.Avec plus de 30 ans d’expérience, Maisons Stéphanie, constructeur de maisons individuelles, vous accompagne avec soin dans la conception de votre projet sur-mesure.Contactez Maëlle VECHTE dès aujourd’hui au *2 47 48 09 30 pour plus d’informations et concrétiser votre projet.
Chambray-lès-Tours
TERRAIN ET MAISONDEVENEZ PROPRIÉTAIRE DE VOTRE MAISON SUR-MESURE – OPPORTUNITE A SAISIR Découvrez cette demeure conçue et bâtie avec tout le savoir-faire des Maisons de Stéphanie, constructeur reconnu pour ses 30 années d’expérience et son exigence de qualité.Chaque détail est pensé pour votre confort et vos envies : une architecture élégante, des espaces lumineux et fonctionnels, et la possibilité d’adapter les plans selon votre mode de vie.Saisissez dès maintenant l’opportunité de faire de cette maison votre nouveau lieu de vie !Contactez Maëlle VECHTE dès maintenant au *2 47 48 09 30 pour plus d’informations et concrétiser votre projet
Chambray-lès-Tours
TERRAINEXCLUSIVITE MAISNS STEPHANIE – TERRAIN À BÂTIR – CHAMBRAY LES TOURS (37170)Proximité immédiate de TOURS et de toutes les commodités, découvrez ce terrain à bâtir idéal pour donner vie à votre projet de construction.Situé dans un environnement privilégié, ne tardez pas à visiter ce terrain RARE sur le secteur.Avec plus de 30 ans d’expérience, Maisons Stéphanie, constructeur de maisons individuelles, vous accompagne avec soin dans la conception de votre projet sur-mesure.Contactez Maëlle VECHTE dès aujourd’hui au *2 47 48 09 30 pour plus d’informations et concrétiser votre projet.
Saint-Branchs
TERRAIN ET MAISONDans un cadre champêtre, dans un environnement préservé, terrain à viabiliser proche toutes commodités et écoles. Une maison qui vous laisse toutes les possibilités ! Ici, l’espace et la lumière sont au rendez-vous ! Un vaste séjour de plus de 53 m², conçu pour accueillir vos moments de vie, et une cuisine qui ne demande qu’à être aménagée selon vos envies. Avec 4 belles chambres, dont une suite avec dressing et salle d’eau, chacun trouve son cocon. Deux salles de bain, un cellier malin, un garage fonctionnel… Tout est pensé pour un quotidien fluide et agréable. Une maison où chaque détail peut être façonné selon vos besoins… Prêts à vous projeter ?. . Pour un confort optimal et conforme à la RE2025, cette maison dispose d’une PAC avec plancher chauffant et volets roulants électriques. À noter : Le prix indiqué exclut les revêtements de sol des chambres, la cuisine aménagée, la peinture, la décoration, les raccordements, les frais de notaire et l’assurance dommages-ouvrage. // Réf. : 78-213581-JFB. Prix terrain : 86 000 €, hors frais d'agence à la charge de l'acquéreur. Ce terrain vous est proposé, par nos partenaires fonciers, dans le cadre d'un projet de construction avec nous. Les informations sur les risques auxquels ce bien est exposé sont disponibles sur le site Géorisques (www.georisques.gouv.fr). Prix maison : 284 048 €.
Chambray-lès-Tours
TERRAINEXCLUSIVITE – TERRAIN À BÂTIR – CHAMBRAY LES TOURS (37170)Proximité immédiate de TOURS et de toutes les commodités, découvrez ce terrain à bâtir idéal pour donner vie à votre projet de construction.Situé dans un environnement privilégié, ne tardez pas à visiter ce terrain RARE sur le secteur.Avec plus de 30 ans d’expérience, Maisons Stéphanie, constructeur de maisons individuelles, vous accompagne avec soin dans la conception de votre projet sur-mesure.Contactez Maëlle VECHTE dès aujourd’hui au *2 47 48 09 30 pour plus d’informations et concrétiser votre projet.
Saint-Branchs
TERRAIN ET MAISONDans un cadre champêtre, dans un environnement préservé, terrain à viabiliser proche toutes commodités et écoles. Une façade optimisée, une maison qui s’intègre partout ! Avec sa façade pensée pour les terrains étroits, cette maison allie design compact et espaces généreux. Son architecture moderne maximise la lumière et l’ouverture, tout en offrant un intérieur spacieux et fonctionnel. Profitez d’un séjour convivial et lumineux, de 3 belles chambres, d’une salle de bain spacieuse, et d’un garage astucieusement intégré. Chaque détail est optimisé pour un confort absolu. Pour un confort optimal et conforme à la RE2025, cette maison dispose d’une PAC avec plancher chauffant, radiateurs à l’étage et volets roulants électriques. À noter : Le prix indiqué exclut les revêtements de sol des chambres, la cuisine aménagée, la peinture, la décoration, les raccordements, les frais de notaire et l’assurance dommages-ouvrage. Une maison élégante et adaptable – idéale pour donner vie à vos envies !. // Réf. : 25-213581-JFB. Prix terrain : 86 000 €, hors frais d'agence à la charge de l'acquéreur. Ce terrain vous est proposé, par nos partenaires fonciers, dans le cadre d'un projet de construction avec nous. Les informations sur les risques auxquels ce bien est exposé sont disponibles sur le site Géorisques (www.georisques.gouv.fr). Prix maison : 171 558 €.
Chambray-lès-Tours
TERRAIN ET MAISONDEVENEZ PROPRIÉTAIRE DE VOTRE MAISON SUR-MESURE – OPPORTUNITE A SAISIR Découvrez cette demeure conçue et bâtie avec tout le savoir-faire des Maisons de Stéphanie, constructeur reconnu pour ses 30 années d’expérience et son exigence de qualité.Chaque détail est pensé pour votre confort et vos envies : une architecture élégante, des espaces lumineux et fonctionnels, et la possibilité d’adapter les plans selon votre mode de vie.Saisissez dès maintenant l’opportunité de faire de cette maison votre nouveau lieu de vie !Contactez Maëlle VECHTE dès maintenant au *2 47 48 09 30 pour plus d’informations et concrétiser votre projet.
L’actualité immobilière à Esvres
27/11/2023
02/11/2023
30/10/2023
20/10/2023
16/10/2023
16/10/2023