Terrain à vendre

Maison à construire à Fondettes (37230)

919800 €
281 m²
Fondettes
Indre-et-Loire (37)
TERRAIN ET MAISON
Réf externe: 3564050
Annonce publiée le 8 novembre 2025

Images

Description

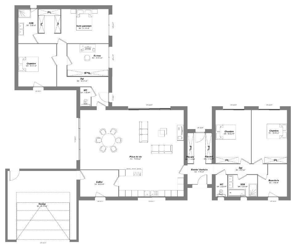
Belle et spacieuse maison à construire de plus de 281 m², offrant un plan moderne et lumineux.
Elle comprend un garage de 42 m² et une grande pièce de vie de 70 m², idéale pour recevoir.
Le logement comporte quatre grandes chambres dont une suite parentale, un bureau, deux salles de bains et deux WC pour un confort optimal.
La maison est entièrement personnalisable pour adapter les volumes et les finitions à vos besoins et goûts.

Je reste disponible pour toutes demandes de renseignements, n'hésitez pas me contacter : Stéphane Digneton : (Numéro supprimé).

CONSTRUCTIONS IDEALE DEMEURE a sélectionné avec un partenaire foncier un terrain pour construire cette maison.

CONTACTER

Logement susceptibles de vous intéresser

224 749 €
379 m²

Pernay

TERRAIN ET MAISON

Terrain à bâtir – Pernay (37230)71 700 € – 379 m² – Viabilisé. Terrain viabilisé de 379 m², plat et bien orienté, situé dans un environnement résidentiel paisible. La commune de Pernay dispose d’une école, de commerces et de services de proximité. Accès rapide vers Tours Nord en environ 20 minutes, idéal pour allier confort et mobilité quotidienne. Avec son agencement intelligent et ses volumes généreux, cette maison offre un cadre de vie idéal pour toute la famille. Dès l’entrée, vous êtes accueilli par une grande pièce de vie ouverte, baignée de lumière, où le salon et la salle à manger s’harmonisent avec une cuisine conviviale. À proximité, un cellier pratique facilite le rangement et l’organisation du quotidien. Le rez-de-chaussée abrite également une suite parentale élégante, un véritable cocon privé avec sa salle d’eau attenante, offrant confort et intimité aux parents. À l’étage, trois chambres spacieuses et lumineuses permettent à chacun de disposer de son propre espace. Une grande salle de bain familiale vient compléter cet étage, garantissant un confort optimal pour tous. Avec son design contemporain, ses espaces bien pensés et son ambiance chaleureuse, cette maison est parfaite pour s’adapter à votre mode de vie. Pour vous assurer un confort de vie optimal et en conformité avec la RE2025, nous avons opté pour un système de chauffage par pompe à chaleur (PAC) avec plancher chauffant au rez-de-chaussée et radiateurs à l’étage. Le logement est également équipé de volets roulants électriques. Prix hors fourniture et pose : des appareils sanitaires (sauf système de chauffage et d'eau chaude sanitaire), du carrelage et de la faïence, des revêtements de sol dans les chambres. Hors décoration et aménagement intérieur et peinture. Hors raccordements, frais de notaire et dommage ouvrage. // Réf. : 2462-211137-MGA. Prix terrain : 71 700 €, hors frais d'agence à la charge de l'acquéreur. Ce terrain vous est proposé, par nos partenaires fonciers, dans le cadre d'un projet de construction avec nous. Les informations sur les risques auxquels ce bien est exposé sont disponibles sur le site Géorisques (www.georisques.gouv.fr). Prix maison : 153 049 €.

243 815 €
379 m²

Pernay

TERRAIN ET MAISON

Terrain à bâtir – Pernay (37230)71 700 € – 379 m² – Viabilisé. Terrain viabilisé de 379 m², plat et bien orienté, situé dans un environnement résidentiel paisible. La commune de Pernay dispose d’une école, de commerces et de services de proximité. Accès rapide vers Tours Nord en environ 20 minutes, idéal pour allier confort et mobilité quotidienne. Une maison spacieuse et fonctionnelle, idéale pour toute la famille ! Avec son design moderne et son agencement optimisé, cette maison offre un cadre de vie agréable et lumineux, parfait pour répondre aux besoins de chacun. Au rez-de-chaussée, vous profitez d’un vaste espace de vie ouvert, alliant salon, salle à manger et cuisine dans une atmosphère chaleureuse et conviviale. Un cellier pratique facilite l’organisation et le rangement du quotidien. La suite parentale avec dressing et salle d’eau privative garantit un confort optimal aux parents, offrant un véritable espace d’intimité. À l’étage, trois belles chambres bien réparties permettent à toute la famille de disposer de son propre cocon. Une grande salle de bain et un WC indépendant complètent cet étage pour plus de praticité. Une maison élégante, confortable et pensée pour s’adapter aux modes de vie modernes !. Pour vous assurer un confort de vie optimal et en conformité avec la RE2025, nous avons opté pour un système de chauffage par pompe à chaleur (PAC) avec plancher chauffant au rez-de-chaussée et radiateurs à l’étage. Le logement est également équipé de volets roulants électriques.  Prix hors fourniture et pose : des appareils sanitaires (sauf système de chauffage et d'eau chaude sanitaire), du carrelage et de la faïence, des revêtements de sol dans les chambres. Hors décoration et aménagement intérieur et peinture. Hors raccordements, frais de notaire et dommage ouvrage. // Réf. : 1473-211137-MGA. Prix terrain : 71 700 €, hors frais d'agence à la charge de l'acquéreur. Ce terrain vous est proposé, par nos partenaires fonciers, dans le cadre d'un projet de construction avec nous. Les informations sur les risques auxquels ce bien est exposé sont disponibles sur le site Géorisques (www.georisques.gouv.fr). Prix maison : 172 115 €.

215 625 €
379 m²

Pernay

TERRAIN ET MAISON

Terrain à bâtir – Pernay (37230)71 700 € – 379 m² – Viabilisé. Terrain viabilisé de 379 m², plat et bien orienté, situé dans un environnement résidentiel paisible. La commune de Pernay dispose d’une école, de commerces et de services de proximité. Accès rapide vers Tours Nord en environ 20 minutes, idéal pour allier confort et mobilité quotidienne. Familiale et fonctionnelle cette maison de 106 m² habitables vous séduira par ses volumes et son aménagement. Son très bel espace de vie de 47 m² environ avec sa cuisine ouverte avec accès direct au jardin grâce à sa baie vitrée. L’espace nuit est composé d’une suite parentale avec dressing et salle d’eau privative, à l’opposé trois chambres avec rangements, une salle de bains indépendante. Pour vous assurer un confort de vie et conformément à la RE2025, nous avons choisi un mode de chauffage par PAC + plancher chauffant, volets roulants électriques. Prix hors fourniture et pose : des appareils sanitaires (sauf système de chauffage et d'eau chaude sanitaire), du carrelage et de la faïence, des revêtements de sol dans les chambres. Hors décoration et aménagement intérieur et peinture. Hors raccordements, frais de notaire et dommage ouvrage. // Réf. : 1245-211137-MGA. Prix terrain : 71 700 €, hors frais d'agence à la charge de l'acquéreur. Ce terrain vous est proposé, par nos partenaires fonciers, dans le cadre d'un projet de construction avec nous. Les informations sur les risques auxquels ce bien est exposé sont disponibles sur le site Géorisques (www.georisques.gouv.fr). Prix maison : 143 925 €.

L’actualité immobilière à Fondettes

Image du post Pourquoi acheter un terrain en lotissement ? 27/11/2023
Lire l’article
Pourquoi acheter un terrain en lotissement ?
Image du post Vendre son terrain à un promoteur : comment procéder ? 02/11/2023
Lire l’article
Vendre son terrain à un promoteur : comment procéder ?
Image du post Diviser le terrain de sa maison pour le vendre : pourquoi et comment ? 30/10/2023
Lire l’article
Diviser le terrain de sa maison pour le vendre : pourquoi et comment ?
Image du post Acheter un terrain viabilisé : quels avantages ? 20/10/2023
Lire l’article
Acheter un terrain viabilisé : quels avantages ?
Image du post Les 7 étapes incontournables pour bien vendre votre terrain constructible 16/10/2023
Lire l’article
Les 7 étapes incontournables pour bien vendre votre terrain constructible
Image du post 5 points clés à vérifier pour l’achat d’un terrain constructible  16/10/2023
Lire l’article
5 points clés à vérifier pour l’achat d’un terrain constructible