Maison à construire à Fondettes (37230)
Images
Description
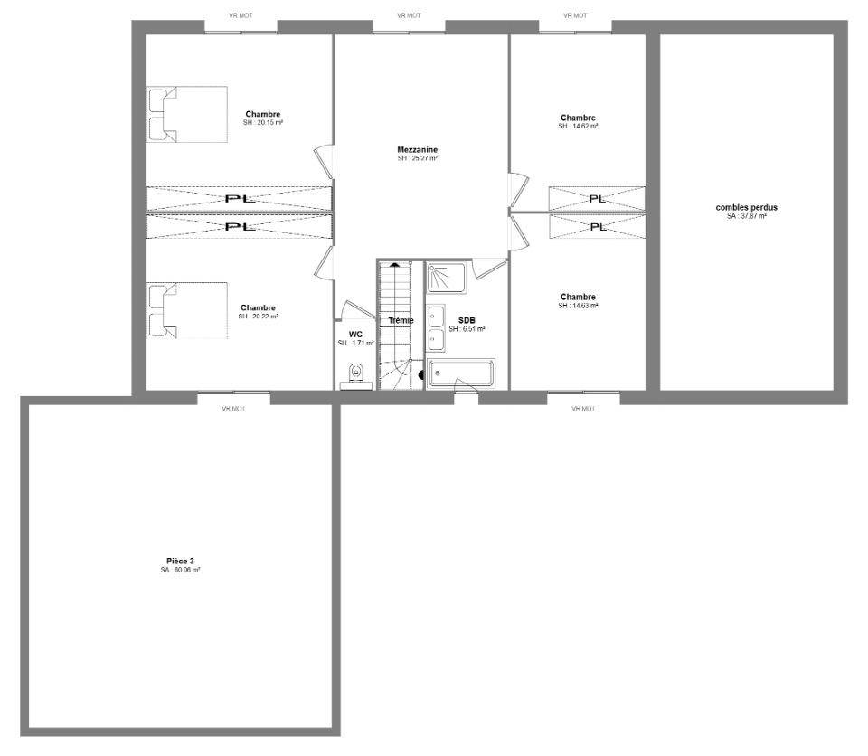
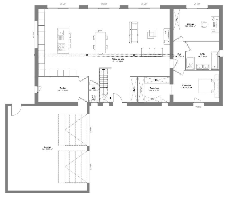
Venez faire construire cette grande maison familiale de 248 m² à étage.
Elle offre une vaste pièce de vie de plus de 87 m² pour recevoir, cinq chambres de 13 à 20 m² et un bureau pouvant faire office de chambre d'amis.
Vous disposez également de deux salles de bains, d'un cellier et d'un double garage.
La maison est entièrement personnalisable pour adapter volumes et finitions à vos besoins et à vos goûts.
Je reste disponible pour toutes demandes de renseignements, n'hésitez pas me contacter : Stéphane Digneton : (Numéro supprimé).
CONSTRUCTIONS IDEALE DEMEURE a sélectionné avec un partenaire foncier un terrain pour construire cette maison.
Logement susceptibles de vous intéresser
Nous vous proposons de découvrir aussi cette sélection de logements situés à moins de 10km de Fondettes et qui seraient susceptibles de vous intéresser.
Pernay
TERRAIN ET MAISONTerrain à bâtir – Pernay (37230)71 700 € – 379 m² – Viabilisé. Terrain viabilisé de 379 m², plat et bien orienté, situé dans un environnement résidentiel paisible. La commune de Pernay dispose d’une école, de commerces et de services de proximité. Accès rapide vers Tours Nord en environ 20 minutes, idéal pour allier confort et mobilité quotidienne. Avec son agencement intelligent et ses volumes généreux, cette maison offre un cadre de vie idéal pour toute la famille. Dès l’entrée, vous êtes accueilli par une grande pièce de vie ouverte, baignée de lumière, où le salon et la salle à manger s’harmonisent avec une cuisine conviviale. À proximité, un cellier pratique facilite le rangement et l’organisation du quotidien. Le rez-de-chaussée abrite également une suite parentale élégante, un véritable cocon privé avec sa salle d’eau attenante, offrant confort et intimité aux parents. À l’étage, trois chambres spacieuses et lumineuses permettent à chacun de disposer de son propre espace. Une grande salle de bain familiale vient compléter cet étage, garantissant un confort optimal pour tous. Avec son design contemporain, ses espaces bien pensés et son ambiance chaleureuse, cette maison est parfaite pour s’adapter à votre mode de vie. Pour vous assurer un confort de vie optimal et en conformité avec la RE2025, nous avons opté pour un système de chauffage par pompe à chaleur (PAC) avec plancher chauffant au rez-de-chaussée et radiateurs à l’étage. Le logement est également équipé de volets roulants électriques. Prix hors fourniture et pose : des appareils sanitaires (sauf système de chauffage et d'eau chaude sanitaire), du carrelage et de la faïence, des revêtements de sol dans les chambres. Hors décoration et aménagement intérieur et peinture. Hors raccordements, frais de notaire et dommage ouvrage. // Réf. : 2462-211137-MGA. Prix terrain : 71 700 €, hors frais d'agence à la charge de l'acquéreur. Ce terrain vous est proposé, par nos partenaires fonciers, dans le cadre d'un projet de construction avec nous. Les informations sur les risques auxquels ce bien est exposé sont disponibles sur le site Géorisques (www.georisques.gouv.fr). Prix maison : 153 049 €.
Pernay
TERRAIN ET MAISONTerrain à bâtir – Pernay (37230)71 700 € – 379 m² – Viabilisé. Terrain viabilisé de 379 m², plat et bien orienté, situé dans un environnement résidentiel paisible. La commune de Pernay dispose d’une école, de commerces et de services de proximité. Accès rapide vers Tours Nord en environ 20 minutes, idéal pour allier confort et mobilité quotidienne. Une maison spacieuse et fonctionnelle, idéale pour toute la famille ! Avec son design moderne et son agencement optimisé, cette maison offre un cadre de vie agréable et lumineux, parfait pour répondre aux besoins de chacun. Au rez-de-chaussée, vous profitez d’un vaste espace de vie ouvert, alliant salon, salle à manger et cuisine dans une atmosphère chaleureuse et conviviale. Un cellier pratique facilite l’organisation et le rangement du quotidien. La suite parentale avec dressing et salle d’eau privative garantit un confort optimal aux parents, offrant un véritable espace d’intimité. À l’étage, trois belles chambres bien réparties permettent à toute la famille de disposer de son propre cocon. Une grande salle de bain et un WC indépendant complètent cet étage pour plus de praticité. Une maison élégante, confortable et pensée pour s’adapter aux modes de vie modernes !. Pour vous assurer un confort de vie optimal et en conformité avec la RE2025, nous avons opté pour un système de chauffage par pompe à chaleur (PAC) avec plancher chauffant au rez-de-chaussée et radiateurs à l’étage. Le logement est également équipé de volets roulants électriques. Prix hors fourniture et pose : des appareils sanitaires (sauf système de chauffage et d'eau chaude sanitaire), du carrelage et de la faïence, des revêtements de sol dans les chambres. Hors décoration et aménagement intérieur et peinture. Hors raccordements, frais de notaire et dommage ouvrage. // Réf. : 1473-211137-MGA. Prix terrain : 71 700 €, hors frais d'agence à la charge de l'acquéreur. Ce terrain vous est proposé, par nos partenaires fonciers, dans le cadre d'un projet de construction avec nous. Les informations sur les risques auxquels ce bien est exposé sont disponibles sur le site Géorisques (www.georisques.gouv.fr). Prix maison : 172 115 €.
Pernay
TERRAIN ET MAISONTerrain à bâtir – Pernay (37230)71 700 € – 379 m² – Viabilisé. Terrain viabilisé de 379 m², plat et bien orienté, situé dans un environnement résidentiel paisible. La commune de Pernay dispose d’une école, de commerces et de services de proximité. Accès rapide vers Tours Nord en environ 20 minutes, idéal pour allier confort et mobilité quotidienne. Familiale et fonctionnelle cette maison de 106 m² habitables vous séduira par ses volumes et son aménagement. Son très bel espace de vie de 47 m² environ avec sa cuisine ouverte avec accès direct au jardin grâce à sa baie vitrée. L’espace nuit est composé d’une suite parentale avec dressing et salle d’eau privative, à l’opposé trois chambres avec rangements, une salle de bains indépendante. Pour vous assurer un confort de vie et conformément à la RE2025, nous avons choisi un mode de chauffage par PAC + plancher chauffant, volets roulants électriques. Prix hors fourniture et pose : des appareils sanitaires (sauf système de chauffage et d'eau chaude sanitaire), du carrelage et de la faïence, des revêtements de sol dans les chambres. Hors décoration et aménagement intérieur et peinture. Hors raccordements, frais de notaire et dommage ouvrage. // Réf. : 1245-211137-MGA. Prix terrain : 71 700 €, hors frais d'agence à la charge de l'acquéreur. Ce terrain vous est proposé, par nos partenaires fonciers, dans le cadre d'un projet de construction avec nous. Les informations sur les risques auxquels ce bien est exposé sont disponibles sur le site Géorisques (www.georisques.gouv.fr). Prix maison : 143 925 €.
Pernay
TERRAINTerrain 379 m² PERNAY Ce beau terrain de 379 m² entièrement viabilisé et situé à PERNAY est proposé par Maisons PRIMEA. Situé dans une commune dynamique, dans un environnement calme et agréable, ce terrain se trouve également à proximité de toutes les commodités. Idéal pour vos déplacements et votre quotidien !. // Réf. : T211139. Prix terrain : 71 700 €, hors frais d'agence et de notaire à la charge de l'acquéreur. Ce terrain vous est proposé, par nos partenaires fonciers, dans le cadre d'un projet de construction avec nous. Les informations sur les risques auxquels ce bien est exposé sont disponibles sur le site Géorisques (www.georisques.gouv.fr).
Pernay
TERRAINTerrain 364 m² PERNAY Ce beau terrain de 364 m² entièrement viabilisé et situé à PERNAY est proposé par Maisons PRIMEA. Situé dans une commune dynamique, dans un environnement calme et agréable, ce terrain se trouve également à proximité de toutes les commodités. Idéal pour vos déplacements et votre quotidien !. // Réf. : T211140. Prix terrain : 67 500 €, hors frais d'agence et de notaire à la charge de l'acquéreur. Ce terrain vous est proposé, par nos partenaires fonciers, dans le cadre d'un projet de construction avec nous. Les informations sur les risques auxquels ce bien est exposé sont disponibles sur le site Géorisques (www.georisques.gouv.fr).
Pernay
TERRAINTerrain à bâtir – Pernay (37230)75 800 € – 387 m² – Viabilisé. Terrain viabilisé de 387 m², plat et bien exposé, situé dans un environnement résidentiel calme. La commune de Pernay propose école, commerces et services de proximité. Accès rapide vers Tours Nord en une vingtaine de minutes, idéal pour un cadre de vie pratique et serein. // Réf. : T211131. Prix terrain : 75 800 €, hors frais d'agence et de notaire à la charge de l'acquéreur. Ce terrain vous est proposé, par nos partenaires fonciers, dans le cadre d'un projet de construction avec nous. Les informations sur les risques auxquels ce bien est exposé sont disponibles sur le site Géorisques (www.georisques.gouv.fr).
Pernay
TERRAINTerrain à bâtir – Pernay (37230)71 700 € – 379 m² – Viabilisé. Terrain viabilisé de 379 m², plat et bien orienté, situé dans un environnement résidentiel paisible. La commune de Pernay dispose d’une école, de commerces et de services de proximité. Accès rapide vers Tours Nord en environ 20 minutes, idéal pour allier confort et mobilité quotidienne. // Réf. : T211137. Prix terrain : 71 700 €, hors frais d'agence et de notaire à la charge de l'acquéreur. Ce terrain vous est proposé, par nos partenaires fonciers, dans le cadre d'un projet de construction avec nous. Les informations sur les risques auxquels ce bien est exposé sont disponibles sur le site Géorisques (www.georisques.gouv.fr).
Fondettes
TERRAIN ET MAISONBeau terrain dans un petit lotissement au calme. Bel environnement. Proche des commodités. Design moderne & volumes optimisés ! Découvrez cette maison personnalisable, pensée pour conjuguer espace et luminosité. Avec 4 chambres, dont une suite parentale au rez-de-chaussée, et deux salles d’eau, chacun profite de son confort. Son vaste salon-séjour de 42 m² ouvert sur une cuisine lumineuse crée un cadre de vie chaleureux et convivial. Un agencement intelligent, un garage pratique et des finitions soignées… Imaginez, personnalisez et réalisez votre projet de vie !. Pour un confort optimal et conforme à la RE2025, cette maison dispose d’une PAC avec plancher chauffant, radiateurs à l’étage et volets roulants électriques. À noter : Le prix indiqué exclut les revêtements de sol des chambres, la cuisine aménagée, la peinture, la décoration, les raccordements, les frais de notaire et l’assurance dommages-ouvrage. // Réf. : 101-211022-YAL. Prix terrain : 220 000 €, hors frais d'agence à la charge de l'acquéreur. Ce terrain vous est proposé, par nos partenaires fonciers, dans le cadre d'un projet de construction avec nous. Les informations sur les risques auxquels ce bien est exposé sont disponibles sur le site Géorisques (www.georisques.gouv.fr). Prix maison : 267 720 €.
Fondettes
TERRAIN ET MAISONBeau terrain dans un petit lotissement au calme. Bel environnement. Proche des commodités. Laissez-vous séduire par l’architecture en L de ce modèle pensé pour allier style et fonctionnalité ! Son espace de vie lumineux avec cuisine ouverte s’ouvre sur l’extérieur, tandis que l’espace nuit accueille 4 chambres, dont une suite parentale avec dressing et salle d’eau privative. Double salle d’eau, cellier, garage intégré : tout y est pour un quotidien fluide. Imaginez-la à votre image et commencez votre projet !. Pour un confort optimal et conforme à la RE2025, cette maison dispose d’une PAC avec plancher chauffant et volets roulants électriques. À noter : Le prix indiqué exclut les revêtements de sol des chambres, la cuisine aménagée, la peinture, la décoration, les raccordements, les frais de notaire et l’assurance dommages-ouvrage. . // Réf. : 64-211022-YAL. Prix terrain : 220 000 €, hors frais d'agence à la charge de l'acquéreur. Ce terrain vous est proposé, par nos partenaires fonciers, dans le cadre d'un projet de construction avec nous. Les informations sur les risques auxquels ce bien est exposé sont disponibles sur le site Géorisques (www.georisques.gouv.fr). Prix maison : 192 288 €.
L’actualité immobilière à Fondettes
27/11/2023
02/11/2023
30/10/2023
20/10/2023
16/10/2023
16/10/2023