Terrain et maison à vendre à La Croix-en-Touraine (37150)
La Croix-en-Touraine
TERRAIN ET MAISONMaison avec comble à aménager de forme compacte. A l’entrée vous disposez d’un placard de rangement sur un espace à vivre traversant et très lumineux.La cuisine intégré donne acces à son cellier. Dans l’espace nuit on retrouve 2 belles chambres avec ses espaces de rangement, wc séparé et une grande salle d’eaucomposé d’une douche et d’un meuble vasque. Un garage intégré de 15m2 le complète; Imaginons ensemble la maison qui vous ressemble pour que votre projet prenne vie, contactez dès aujourd’hui Rodolphe MARY au (Numéro supprimé), conseiller technique de l’habitat.CONSTRUCTIONS IDEALE DEMEURE a sélectionné avec un partenaire foncier un terrain pour construire cette maison.
La Croix-en-Touraine
TERRAIN ET MAISONMaison de forme en V, avec son garage en décroché. Vous accueille avec un Hall ouverte et un espace de rangement .Une grande pièce de vie lumineuse laisse apercevoir une cuisine fonctionnelle. L’espace nuit se compose de 3 belles chambres avec ses placards de rangement,d’une salle d’eau avec douche et meuble vasque, ainsi qu’un Wc séparé. Un garage intégré de 15m2 et son cellier de 5m2;Imaginons ensemble la maison qui vous ressemble pour que votre projet prenne vie, contactez dès aujourd’hui Rodolphe MARY au (Numéro supprimé), conseiller technique de l’habitat.CONSTRUCTIONS IDEALE DEMEURE a sélectionné avec un partenaire foncier un terrain pour construire cette maison.
La Croix-en-Touraine
TERRAIN ET MAISONOPPORTUNITE A SAISIR – DEVENEZ PROPRIÉTAIRE DE VOTRE MAISON SUR-MESUREDécouvrez cette demeure conçue et bâtie avec tout le savoir-faire des Maisons de Stéphanie, constructeur reconnu pour ses 30 années d’expérience et son exigence de qualité.Chaque détail est pensé pour votre confort et vos envies : une architecture élégante, des espaces lumineux et fonctionnels, et la possibilité d’adapter les plans selon votre mode de vie.Saisissez dès maintenant l’opportunité de faire de cette maison votre nouveau lieu de vie !📞 Contactez dès maintenant votre conseillère Tiphanie DUMOND des Maisons Stéphanie pour plus d’informations ou pour planifier une visite.(Numéro supprimé)N’attendez plus pour démarrer votre projet de construction, rencontrons-nous !
La Croix-en-Touraine
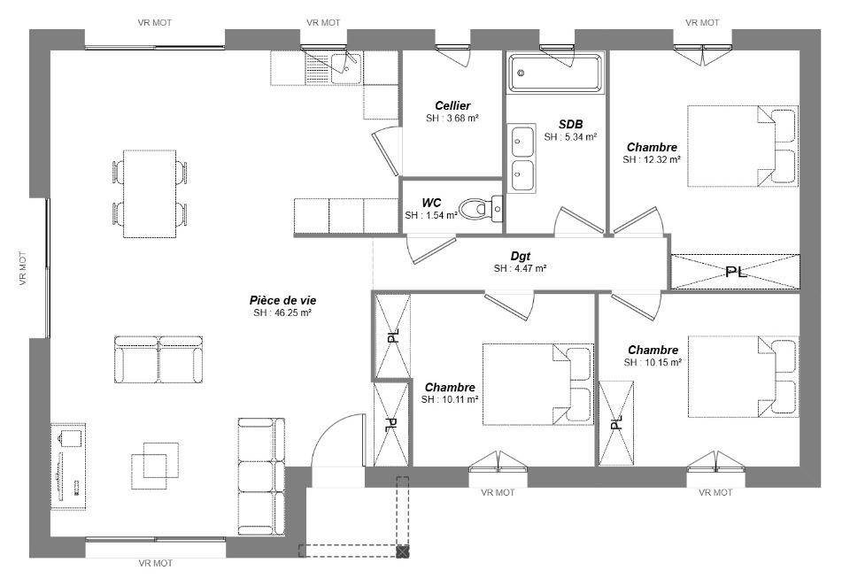
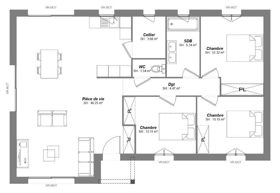
TERRAIN ET MAISONCette maison de plain-pied vous séduira par son aménagement et son style. Vous accueille avec son hall d’entrée ouvert et son espace de rangement. Une pièce de vie de 46 m² lumineuse grâce à ses ouvertures, une cuisine ouverte pour partager des moments en famille, une pièce de 45 m² à amenager selon vos envies. Sur la partie nuit, 1 suite parentale de plus de 11 m² avec salle d’eau privative de 3m², trois chambres de plus de 10 m², une salle de bain et wc indépendant. Un garage intégré de 18m2 la composeImaginons ensemble la maison qui vous ressemble pour que votre projet prenne vie, contactez dès aujourd’hui Rodolphe MARY au (Numéro supprimé), conseiller technique de l’habitat.CONSTRUCTIONS IDEALE DEMEURE a sélectionné avec un partenaire foncier un terrain pour construire cette maison.
La Croix-en-Touraine
TERRAIN ET MAISONOPPORTUNITE A SAISIR – DEVENEZ PROPRIÉTAIRE DE VOTRE MAISON SUR-MESUREDécouvrez cette demeure conçue et bâtie avec tout le savoir-faire des Maisons de Stéphanie, constructeur reconnu pour ses 30 années d’expérience et son exigence de qualité.Chaque détail est pensé pour votre confort et vos envies : une architecture élégante, des espaces lumineux et fonctionnels, et la possibilité d’adapter les plans selon votre mode de vie.Saisissez dès maintenant l’opportunité de faire de cette maison votre nouveau lieu de vie !📞 Contactez dès maintenant votre conseillère Tiphanie DUMOND des Maisons Stéphanie pour plus d’informations ou pour planifier une visite.*2.47.48.09.30N’attendez plus pour démarrer votre projet de construction, rencontrons-nous !
La Croix-en-Touraine
TERRAIN ET MAISONBeau terrain en lotissement familial. Environnement campagne et calme. Proche des commodités. Cette maison familiale moderne séduit par son architecture équilibrée et sa toiture à quatre pans, qui lui confèrent à la fois élégance et caractère. Au rez-de-chaussée, elle offre une vaste pièce de vie lumineuse ouverte sur la terrasse, idéale pour les moments de convivialité. On y trouve également une chambre avec dressing et salle d'eau privative, une cuisine fonctionnelle avec cellier, ainsi qu'un garage attenant. L'étage accueille trois chambres spacieuses, une salle de bains et un WC indépendant, offrant à chacun son espace de confort. Ce projet, entièrement personnalisable, allie modernité, praticité et bien-être familial, pour une maison aussi belle à vivre qu'à regarder. Pour vous assurer un confort de vie et conformément à la RE2025, nous avons choisi un mode de chauffage par PAC + plancher chauffant, volets roulants électriques. Prix hors décoration, revêtement de sol dans les chambres, frais de notaire, raccordements, dommage ouvrage. (Piscine non contractuelle et non comprise dans le prix. ). // Réf. : 2679-211421-JCT. Prix terrain : 73 000 €, hors frais d'agence à la charge de l'acquéreur. Ce terrain vous est proposé, par nos partenaires fonciers, dans le cadre d'un projet de construction avec nous. Les informations sur les risques auxquels ce bien est exposé sont disponibles sur le site Géorisques (www.georisques.gouv.fr). Prix maison : 300 000 €.
La Croix-en-Touraine
TERRAIN ET MAISONBeau terrain en lotissement familial. Environnement campagne et calme. Proche des commodités. Cette maison familiale moderne séduit par son architecture équilibrée et sa toiture à quatre pans, qui lui confèrent à la fois élégance et caractère. Au rez-de-chaussée, elle offre une vaste pièce de vie lumineuse ouverte sur la terrasse, idéale pour les moments de convivialité. On y trouve également une chambre avec dressing et salle d'eau privative, une cuisine fonctionnelle avec cellier, ainsi qu'un garage attenant. L'étage accueille trois chambres spacieuses, une salle de bains et un WC indépendant, offrant à chacun son espace de confort. Ce projet, entièrement personnalisable, allie modernité, praticité et bien-être familial, pour une maison aussi belle à vivre qu'à regarder. Pour vous assurer un confort de vie et conformément à la RE2025, nous avons choisi un mode de chauffage par PAC + plancher chauffant, volets roulants électriques. Prix hors décoration, revêtement de sol dans les chambres, frais de notaire, raccordements, dommage ouvrage. (Piscine non contractuelle et non comprise dans le prix. ). // Réf. : 2679-211420-JCT. Prix terrain : 73 000 €, hors frais d'agence à la charge de l'acquéreur. Ce terrain vous est proposé, par nos partenaires fonciers, dans le cadre d'un projet de construction avec nous. Les informations sur les risques auxquels ce bien est exposé sont disponibles sur le site Géorisques (www.georisques.gouv.fr). Prix maison : 300 000 €.
La Croix-en-Touraine
TERRAIN ET MAISONBeau terrain en lotissement familial. Environnement campagne et calme. Proche des commodités. Cette maison familiale moderne séduit par son architecture équilibrée et sa toiture à quatre pans, qui lui confèrent à la fois élégance et caractère. Au rez-de-chaussée, elle offre une vaste pièce de vie lumineuse ouverte sur la terrasse, idéale pour les moments de convivialité. On y trouve également une chambre avec dressing et salle d'eau privative, une cuisine fonctionnelle avec cellier, ainsi qu'un garage attenant. L'étage accueille trois chambres spacieuses, une salle de bains et un WC indépendant, offrant à chacun son espace de confort. Ce projet, entièrement personnalisable, allie modernité, praticité et bien-être familial, pour une maison aussi belle à vivre qu'à regarder. Pour vous assurer un confort de vie et conformément à la RE2025, nous avons choisi un mode de chauffage par PAC + plancher chauffant, volets roulants électriques. Prix hors décoration, revêtement de sol dans les chambres, frais de notaire, raccordements, dommage ouvrage. (Piscine non contractuelle et non comprise dans le prix. ). // Réf. : 2679-211418-JCT. Prix terrain : 72 000 €, hors frais d'agence à la charge de l'acquéreur. Ce terrain vous est proposé, par nos partenaires fonciers, dans le cadre d'un projet de construction avec nous. Les informations sur les risques auxquels ce bien est exposé sont disponibles sur le site Géorisques (www.georisques.gouv.fr). Prix maison : 300 000 €.
La Croix-en-Touraine
TERRAIN ET MAISONOPPORTUNITE A SAISIR – DEVENEZ PROPRIÉTAIRE DE VOTRE MAISON SUR-MESUREDécouvrez cette demeure conçue et bâtie avec tout le savoir-faire des Maisons de Stéphanie, constructeur reconnu pour ses 30 années d’expérience et son exigence de qualité.Chaque détail est pensé pour votre confort et vos envies : une architecture élégante, des espaces lumineux et fonctionnels, et la possibilité d’adapter les plans selon votre mode de vie.Saisissez dès maintenant l’opportunité de faire de cette maison votre nouveau lieu de vie !📞 Contactez dès maintenant votre conseillère Tiphanie DUMOND des Maisons Stéphanie pour plus d’informations ou pour planifier une visite.*2.47.48.09.30N’attendez plus pour démarrer votre projet de construction, rencontrons-nous !
La Croix-en-Touraine
TERRAIN ET MAISONCette magnifique maison à construire en L de 93m² offre un cadre de vie idéal. Sa pièce de vie spacieuse de plus de 46m² bénéficie d’une triple exposition, garantissant une luminosité optimale tout au long de la journée. Elle comprend également trois belles chambres, parfaites pour accueillir toute la famille. Un projet harmonieux alliant confort, espace et lumière naturelle.Maison entièrement personnalisable. Je reste disponible pour toutes demandes de renseignements, n’hésitez pas me contacter : Stéphane Digneton : (Numéro supprimé).CONSTRUCTIONS IDEALE DEMEURE a sélectionné avec un partenaire foncier un terrain pour construire cette maison.
La Croix-en-Touraine
TERRAIN ET MAISONNous vous proposons cette maison neuve, baptisée « »Élégance » », un modèle qui se distingue par sa forme en L, offrant à la fois style et fonctionnalité. Avec une surface habitable de 93 m², cette maison de plain-pied est conçue pour maximiser l’espace et le confort de ses résidents. Elle comprend un grand salon-séjour lumineux, ouvert sur une cuisine moderne, idéale pour partager des moments conviviaux en famille ou entre amis. L’architecture en L permet une séparation naturelle entre l’espace de vie et l’espace nuit, ce dernier étant composé de 3 chambres spacieuses, garantissant intimité et tranquillité. La maison dispose également d’un garage intégré, pratique pour sécuriser votre véhicule ou pour du stockage supplémentaire, ainsi qu’un cellier adjacent à la cuisine, parfait pour organiser vos provisions et ustensiles de cuisine.L’une des caractéristiques les plus appréciées de ce modèle est son enduit bi-ton, qui ajoute une touche d’élégance et de modernité à l’extérieur de la maison, la faisant ressortir dans n’importe quel environnement. Construite dans le respect des normes de la RE2020, cette maison basse consommation est un choix judicieux pour ceux qui cherchent à réduire leur empreinte écologique tout en bénéficiant d’un confort optimal. Elle est personnalisable selon vos besoins et vos envies, vous permettant de créer un foyer qui vous ressemble, adapté à votre mode de vie. » »Élégance » » est plus qu’une maison, c’est un lieu de vie pensé pour votre bien-être et celui de votre famille, où chaque détail a été conçu pour répondre à vos attentes les plus élevées. Ne manquez pas l’opportunité de construire la maison de vos rêves, un espace où chaque jour sera empreint de confort, de style et d’efficacité énergétique.
La Croix-en-Touraine
TERRAIN ET MAISONBelle maison traditionnelle de plain pied de 71m² comprenant une grande pièce de vie de 40m², 2 chambres, une salle de bain ainsi qu’un cellier et un WC.Parfait pour un premier achat ou un investissement locatif!Le combles aménageables saura suivre l’évolution de votre famille et celle de vos envies.CONSTRUCTIONS IDEALE DEMEURE a sélectionné avec un partenaire foncier un terrain pour construire cette maison. Je reste disponible pour toutes demandes de renseignements, n’hésitez pas me contacter : Stéphane Digneton : (Numéro supprimé)
La Croix-en-Touraine
TERRAIN ET MAISONVoici une belle maison de 107m² à construire, comprenant 5 chambres, dont une suite parentale confortable. Elle dispose de 2 salles de bain modernes pour un confort optimal. Un grand cellier est également prévu, idéal pour le stockage et l’organisation.Cette maison est entièrement personnalisable selon vos envies et besoins.Je reste disponible pour toutes demandes de renseignements, n’hésitez pas me contacter : Stéphane Digneton : (Numéro supprimé).CONSTRUCTIONS IDEALE DEMEURE a sélectionné avec un partenaire foncier un terrain pour construire cette maison.
La Croix-en-Touraine
TERRAIN ET MAISONVoici une belle maison à construire de 101m², comprenant quatre chambres dont une suite parentale. Elle dispose de deux salles de bain pour plus de confort. La grande pièce de vie de plus de 40m² est lumineuse grâce à ses deux baies vitrées. Cette maison allie espace et fonctionnalité pour toute la famille.Je reste disponible pour toutes demandes de renseignements, n’hésitez pas me contacter : Stéphane Digneton : (Numéro supprimé).CONSTRUCTIONS IDEALE DEMEURE a sélectionné avec un partenaire foncier un terrain pour construire cette maison.
La Croix-en-Touraine
TERRAIN ET MAISONMaison de plain-pied avec 3 chambres et une salle d’eau avec WC séparé.Cette maison dispose d’une entrée semi ouverte et fonctionnelle avec deux grand placards, puis d’un grand séjour ouvert de plus de 45 m² avec un accès au cellier au niveau de la cuisine. Un garage de 15 m² vient compléter cette maison.Nous réalisons votre projet sur-mesure, contactez-moi Julie Texier au (Numéro supprimé)CONSTRUCTIONS IDEALE DEMEURE a sélectionné avec un partenaire foncier un terrain pour construire cette maison.
La Croix-en-Touraine
TERRAIN ET MAISONMaison de plain-pied avec 3 chambres et une salle d’eau avec WC séparé.Cette maison dispose d’une entrée semi ouverte et fonctionnelle avec deux grand placards, puis d’un grand séjour ouvert de plus de 45 m² avec un accès au cellier au niveau de la cuisine. Un garage de 15 m² vient compléter cette maison.Nous réalisons votre projet sur-mesure, contactez-moi Julie Texier au (Numéro supprimé)CONSTRUCTIONS IDEALE DEMEURE a sélectionné avec un partenaire foncier un terrain pour construire cette maison.
La Croix-en-Touraine
TERRAIN ET MAISON🏡 Maison à construire – Plain-pied en L de 97 m² + combles aménageables :Laissez-vous séduire par cette maison de plain-pied de 97 m² en forme de L, pensée pour allier confort, fonctionnalité et lumière naturelle.Les + :- Grand espace de vie lumineux avec baie vitrée- 3 chambres bien agencées- Garage intégré- Combles aménageables pour un futur bureau, salle de jeux ou suite parentaleUn projet personnalisable selon vos envies, idéal pour une vie de famille au calme. Contactez- moi au (Numéro supprimé)CONSTRUCTIONS IDEALE DEMEURE a sélectionné avec un partenaire foncier un terrain pour construire cette maison.
La Croix-en-Touraine
TERRAIN ET MAISONCette magnifique maison à construire en L de 93m² offre un cadre de vie idéal. Sa pièce de vie spacieuse de plus de 46m² bénéficie d’une triple exposition, garantissant une luminosité optimale tout au long de la journée. Elle comprend également trois belles chambres, parfaites pour accueillir toute la famille. Un projet harmonieux alliant confort, espace et lumière naturelle.Maison entièrement personnalisable. Je reste disponible pour toutes demandes de renseignements, n’hésitez pas me contacter : Stéphane Digneton : (Numéro supprimé).CONSTRUCTIONS IDEALE DEMEURE a sélectionné avec un partenaire foncier un terrain pour construire cette maison.
De 18 à 36 parmi 62 résultats
En savoir plus sur La Croix-en-Touraine
Vous trouverez 62 terrain et maison disponibles à l’achat dans la ville de La Croix-en-Touraine.
Les prix varient de 175 000€ à 385 650€. Le prix moyen constaté pour une annonce est de 249 302€.
Nos articles concernant La Croix-en-Touraine
27/11/2023
02/11/2023
30/10/2023
20/10/2023
16/10/2023
16/10/2023