Images
Description
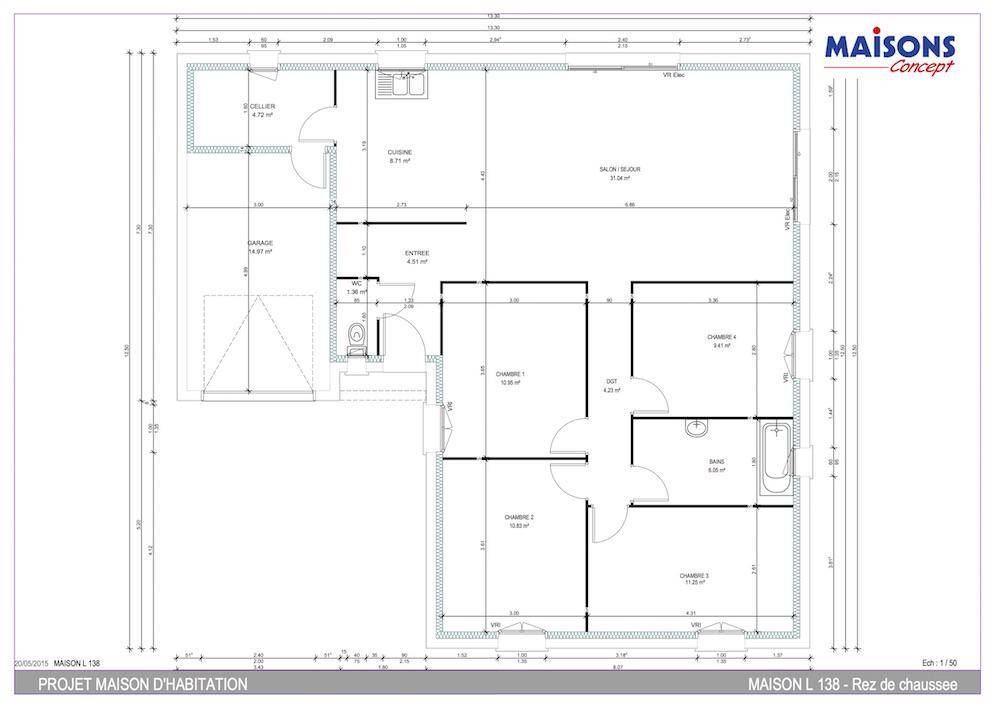
Nous vous proposons cette maison neuve, baptisée ""Élégance"", un modèle qui se distingue par sa forme architecturale en L, offrant à la fois style et fonctionnalité. Avec une surface habitable de 78 m², cette maison de plain-pied est conçue pour optimiser l'espace et la lumière naturelle, créant ainsi un cadre de vie à la fois confortable et esthétique.
L'Élégance se compose de 3 pièces principales, dont 2 chambres spacieuses, promettant un espace de vie idéal pour une petite famille ou un couple. Le grand salon-séjour, cœur de la maison, s'ouvre sur une cuisine moderne et entièrement équipée, formant un espace ouvert parfait pour les moments de partage et de convivialité. Un garage intégré, accessible depuis l'intérieur de la maison, ainsi qu'un cellier pratique, ajoutent à la fonctionnalité de ce modèle.
Cette maison est personnalisable selon vos désirs et besoins, vous permettant de créer un intérieur qui vous ressemble. Que vous rêviez d'une salle de bain supplémentaire, d'un bureau ou d'une chambre d'amis, l'Élégance s'adapte à votre mode de vie.
L'une des caractéristiques les plus appréciées de ce modèle est son enduit bi-ton, qui lui confère une allure moderne et élégante, soulignant ainsi son architecture unique. Mais ce qui distingue véritablement l'Élégance, c'est son engagement envers l'environnement. Cette maison est conçue pour être basse consommation et répond aux exigences de la norme RE2020, garantissant ainsi une efficacité énergétique optimale et une réduction significative de votre empreinte carbone.
En choisissant l'Élégance, vous optez pour une maison qui allie esthétique, confort et respect de l'environnement. Une opportunité à ne pas manquer pour ceux qui cherchent à investir dans un bien immobilier durable et de qualité.
Logement susceptibles de vous intéresser
Nous vous proposons de découvrir aussi cette sélection de logements situés à moins de 10km de Ligueil et qui seraient susceptibles de vous intéresser.
Varennes
TERRAINSuperbe terrain de 1234m² exposé plein sud, dans un quartier recherché pour sa tranquillité. À quelques minutes seulement des commerces et commodités. Environnement de qualité, idéal pour un projet familial. A saisir rapidement !. // Réf. : T210555. Prix terrain : 21 818 €, hors frais d'agence et de notaire à la charge de l'acquéreur. Ce terrain vous est proposé, par nos partenaires fonciers, dans le cadre d'un projet de construction avec nous. Les informations sur les risques auxquels ce bien est exposé sont disponibles sur le site Géorisques (www.georisques.gouv.fr).
Mouzay
TERRAINTerrain constructible de 1254 m², bénéficiant d’une superbe orientation sud. Situé dans un environnement calme et recherché, proche écoles et commerces. Parfait pour bâtir une maison lumineuse et confortable. Produit rare sur le marché local. // Réf. : T210530. Prix terrain : 24 000 €, hors frais d'agence et de notaire à la charge de l'acquéreur. Ce terrain vous est proposé, par nos partenaires fonciers, dans le cadre d'un projet de construction avec nous. Les informations sur les risques auxquels ce bien est exposé sont disponibles sur le site Géorisques (www.georisques.gouv.fr).
Ciran
TERRAINTerrain constructible de 800m², bénéficiant d’une superbe orientation sud. Situé dans un environnement calme et recherché, proche écoles et commerces. Parfait pour bâtir une maison lumineuse et confortable. Produit rare sur le marché local. // Réf. : T210533. Prix terrain : 16 000 €, hors frais d'agence et de notaire à la charge de l'acquéreur. Ce terrain vous est proposé, par nos partenaires fonciers, dans le cadre d'un projet de construction avec nous. Les informations sur les risques auxquels ce bien est exposé sont disponibles sur le site Géorisques (www.georisques.gouv.fr).
Ligueil
TERRAINTerrain constructible de 1490m², bénéficiant d’une superbe orientation sud. Situé dans un environnement calme et recherché, proche écoles et commerces. Parfait pour bâtir une maison lumineuse et confortable. Produit rare sur le marché local. // Réf. : T210540. Prix terrain : 33 280 €, hors frais d'agence et de notaire à la charge de l'acquéreur. Ce terrain vous est proposé, par nos partenaires fonciers, dans le cadre d'un projet de construction avec nous. Les informations sur les risques auxquels ce bien est exposé sont disponibles sur le site Géorisques (www.georisques.gouv.fr).
Varennes
TERRAIN ET MAISONSuperbe terrain de 1234m² exposé plein sud, dans un quartier recherché pour sa tranquillité. À quelques minutes seulement des commerces et commodités. Environnement de qualité, idéal pour un projet familial. A saisir rapidement !. Bienvenue dans l'avenir de l'habitat avec EVOLIA, une maison modulable et transformable qui s'adapte à vos besoins. Transformez facilement une maison d'une chambre en une maison de deux chambres grâce à un garage de 15 m² aménageable. Avec ses nombreuses options de personnalisation, EVOLIA vous offre un confort inégalé et une modernité à un prix abordable. Faites de vos rêves de propriété une réalité et commencez à bâtir votre futur dès aujourd'hui !. Votre avenir commence ici ! Contactez-nous dès maintenant pour plus d'informations. Prix hors fourniture et pose : des appareils sanitaires (sauf système de chauffage et d'eau chaude sanitaire), du carrelage, de la faïence, de la cuisine aménagée, des revêtements de sol dans les chambres. Hors décoration, aménagement intérieur, peinture, raccordements, frais de notaire et dommage ouvrage. (Surface habitable 49 m²+garage 15 m²). // Réf. : 2576-210555-ALD. Prix terrain : 21 818 €, hors frais d'agence à la charge de l'acquéreur. Ce terrain vous est proposé, par nos partenaires fonciers, dans le cadre d'un projet de construction avec nous. Les informations sur les risques auxquels ce bien est exposé sont disponibles sur le site Géorisques (www.georisques.gouv.fr). Prix maison : 89 668 €.
Varennes
TERRAIN ET MAISONSuperbe terrain de 1234m² exposé plein sud, dans un quartier recherché pour sa tranquillité. À quelques minutes seulement des commerces et commodités. Environnement de qualité, idéal pour un projet familial. A saisir rapidement !. Bien pensée et fonctionnelle. Avec son architecture en L et de plain-pied, la maison CARNEY vous séduira par sa cuisine ouverte sur un bel espace de vie lumineux et ses trois chambres. Pour vous assurer un confort de vie et conformément à la RE2025, nous avons choisi un mode de chauffage par PAC + plancher chauffant, volets roulants électriques. Prix hors fourniture et pose : des appareils sanitaires (sauf système de chauffage et d'eau chaude sanitaire), du carrelage et de la faïence, des revêtements de sol dans les chambres. Hors décoration et aménagement intérieur et peinture. Hors raccordements, frais de notaire et dommage ouvrage. // Réf. : 712-210555-ALD. Prix terrain : 21 818 €, hors frais d'agence à la charge de l'acquéreur. Ce terrain vous est proposé, par nos partenaires fonciers, dans le cadre d'un projet de construction avec nous. Les informations sur les risques auxquels ce bien est exposé sont disponibles sur le site Géorisques (www.georisques.gouv.fr). Prix maison : 118 497 €.
Varennes
TERRAIN ET MAISONSuperbe terrain de 1234m² exposé plein sud, dans un quartier recherché pour sa tranquillité. À quelques minutes seulement des commerces et commodités. Environnement de qualité, idéal pour un projet familial. A saisir rapidement !. Cette maison a été pensée pour offrir un cadre de vie chaleureux et optimisé, où chaque espace trouve sa juste place pour allier confort et praticité. Dès l’entrée, une grande pièce de vie lumineuse vous accueille, offrant un espace idéal pour partager des moments en famille ou entre amis. La cuisine, ouverte sur le séjour, allie modernité et fonctionnalité pour simplifier votre quotidien. À l’étage, trois chambres cosy et bien agencées offrent à chacun son propre espace de repos et d’intimité. Une salle de bain moderne et spacieuse vient compléter cet espace nuit pour répondre aux besoins de toute la famille. Un cellier pratique et des rangement optimisés apportent encore plus de confort à cette maison pensée pour s’adapter à votre mode de vie. Moderne, fonctionnelle et pleine de charme, cette maison est une opportunité à ne pas manquer !. Pour vous assurer un confort de vie optimal et en conformité avec la RE2025, nous avons opté pour un système de chauffage par pompe à chaleur (PAC) avec plancher chauffant au rez-de-chaussée et radiateurs à l’étage. Le logement est également équipé de volets roulants électriques. Prix hors fourniture et pose : des appareils sanitaires (sauf système de chauffage et d'eau chaude sanitaire), du carrelage et de la faïence, des revêtements de sol dans les chambres. Hors décoration et aménagement intérieur et peinture. Hors raccordements, frais de notaire et dommage ouvrage. // Réf. : 2477-210555-ALD. Prix terrain : 21 818 €, hors frais d'agence à la charge de l'acquéreur. Ce terrain vous est proposé, par nos partenaires fonciers, dans le cadre d'un projet de construction avec nous. Les informations sur les risques auxquels ce bien est exposé sont disponibles sur le site Géorisques (www.georisques.gouv.fr). Prix maison : 126 018 €.
Ligueil
TERRAIN ET MAISONTerrain constructible de 1490m², bénéficiant d’une superbe orientation sud. Situé dans un environnement calme et recherché, proche écoles et commerces. Parfait pour bâtir une maison lumineuse et confortable. Produit rare sur le marché local. Transformez votre maison avec la gamme Evoliâ. Vous rêvez d'une maison évolutive qui s'adapte parfaitement à vos besoins et à votre budget ? La gamme Evoliâ est conçue pour vous. Avec Evoliâ, commencez petit et imaginez grand, transformant votre espace de vie au fil du temps. Imaginez convertir votre maison deux chambres en une spacieuse maison trois chambres. Notre solution innovante vous permet de tirer parti du garage de 28 m², un atout majeur. Ce garage peut être aménagé en une ou deux chambres supplémentaires selon vos besoins, vous offrant ainsi la possibilité d'agrandir votre maison sans les contraintes d'un déménagement, en optimisant chaque mètre carré. Prix hors fourniture et pose : des appareils sanitaires (sauf système de chauffage et d'eau chaude sanitaire), du carrelage, de la faïence, de la cuisine aménagée, des revêtements de sol dans les chambres. Hors décoration, aménagement intérieur, peinture, raccordements, frais de notaire et dommage ouvrage. (Surface habitable 49 m²+garage 28 m²). // Réf. : 2594-210540-ALD. Prix terrain : 33 280 €, hors frais d'agence à la charge de l'acquéreur. Ce terrain vous est proposé, par nos partenaires fonciers, dans le cadre d'un projet de construction avec nous. Les informations sur les risques auxquels ce bien est exposé sont disponibles sur le site Géorisques (www.georisques.gouv.fr). Prix maison : 91 332 €.
Ligueil
TERRAIN ET MAISONTerrain constructible de 1490m², bénéficiant d’une superbe orientation sud. Situé dans un environnement calme et recherché, proche écoles et commerces. Parfait pour bâtir une maison lumineuse et confortable. Produit rare sur le marché local. Un cocon moderne et fonctionnel pour toute la famille ! Cette maison a été conçue pour offrir un espace optimisé et confortable, idéal pour une vie de famille harmonieuse. Au rez-de-chaussée, une pièce de vie spacieuse et lumineuse vous accueille, combinant un salon convivial, une salle à manger chaleureuse et une cuisine ouverte moderne. Un cellier attenant vient compléter cet espace en facilitant le rangement et l’organisation. L’étage est dédié au repos avec trois belles chambres, offrant à chacun un espace personnel agréable et bien agencé. Une salle de bain fonctionnelle et des WC indépendants apportent un confort supplémentaire à toute la famille. Pour vous assurer un confort de vie optimal et en conformité avec la RE2025, nous avons opté pour un système de chauffage par pompe à chaleur (PAC) avec plancher chauffant au rez-de-chaussée et radiateurs à l’étage. Le logement est également équipé de volets roulants électriques. Prix hors fourniture et pose : des appareils sanitaires (sauf système de chauffage et d'eau chaude sanitaire), du carrelage et de la faïence, des revêtements de sol dans les chambres. Hors décoration et aménagement intérieur et peinture. Hors raccordements, frais de notaire et dommage ouvrage. // Réf. : 2483-210540-ALD. Prix terrain : 33 280 €, hors frais d'agence à la charge de l'acquéreur. Ce terrain vous est proposé, par nos partenaires fonciers, dans le cadre d'un projet de construction avec nous. Les informations sur les risques auxquels ce bien est exposé sont disponibles sur le site Géorisques (www.georisques.gouv.fr). Prix maison : 140 698 €.
L’actualité immobilière à Ligueil
27/11/2023
02/11/2023
30/10/2023
20/10/2023
16/10/2023
16/10/2023