Images
Description
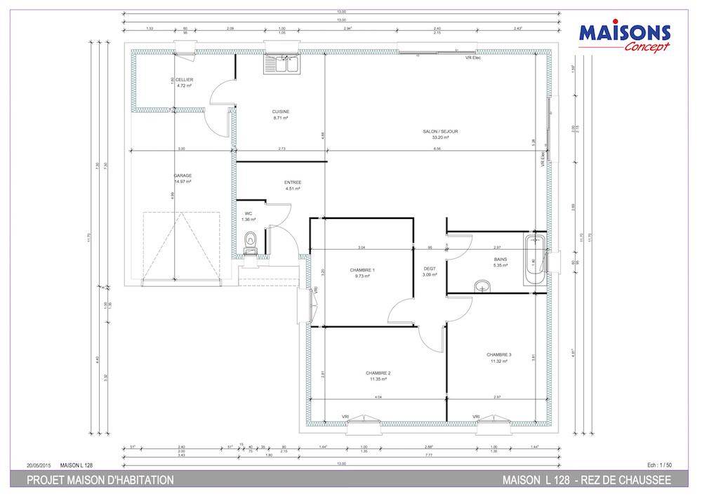
Nous vous proposons cette maison neuve, baptisée ""Élégance"", un modèle qui se distingue par sa forme architecturale en L, offrant à la fois style et fonctionnalité. Avec une surface habitable de 78 m², cette maison de plain-pied est conçue pour optimiser l'espace et la lumière naturelle, créant ainsi un cadre de vie à la fois confortable et esthétique.
L'Élégance se compose de 3 pièces principales, dont 2 chambres spacieuses, promettant un espace de vie idéal pour une petite famille ou un couple. Le grand salon-séjour, cœur de la maison, s'ouvre sur une cuisine moderne et entièrement équipée, formant un espace ouvert parfait pour les moments de partage et de convivialité. Un garage intégré, accessible depuis l'intérieur de la maison, ainsi qu'un cellier pratique, ajoutent à la fonctionnalité de ce modèle.
Cette maison est personnalisable selon vos désirs et besoins, vous permettant de créer un intérieur qui vous ressemble. Que vous rêviez d'une salle de bain supplémentaire, d'un bureau ou d'une chambre d'amis, l'Élégance s'adapte à votre mode de vie.
L'une des caractéristiques les plus appréciées de ce modèle est son enduit bi-ton, qui lui confère une allure moderne et élégante, soulignant ainsi son architecture unique. Mais ce qui distingue véritablement l'Élégance, c'est son engagement envers l'environnement. Cette maison est conçue pour être basse consommation et répond aux exigences de la norme RE2020, garantissant ainsi une efficacité énergétique optimale et une réduction significative de votre empreinte carbone.
En choisissant l'Élégance, vous optez pour une maison qui allie esthétique, confort et respect de l'environnement. Une opportunité à ne pas manquer pour ceux qui cherchent à investir dans un bien immobilier durable et de qualité.
Logement susceptibles de vous intéresser
Nous vous proposons de découvrir aussi cette sélection de logements situés à moins de 10km de Loches et qui seraient susceptibles de vous intéresser.
Loches
TERRAIN ET MAISONSuperbe terrain viabilisé de 925m² exposé sud-ouest, dans un quartier recherché pour sa tranquillité. À quelques minutes seulement des commerces et commodités. Environnement de qualité, idéal pour un projet familial. A saisir rapidement !. Découvrez cette maison compacte et bien agencée, idéale sur un petit terrain. Profitez d’un espace de vie optimisé de 40 m² avec une cuisine ouverte, idéale pour les moments en famille ou entre amis. Un cellier attenant vous offre un espace de rangement supplémentaire. Cette maison comprend également 3 chambres confortables, une salle de bains et des wc séparés pour plus de praticité. Pour vous assurer un confort de vie et conformément à la RE2025, nous avons choisi un mode de chauffage par PAC + plancher chauffant, volets roulants électriques. Prix hors fourniture et pose : des appareils sanitaires (sauf système de chauffage et d'eau chaude sanitaire), du carrelage et de la faïence, des revêtements de sol dans les chambres. Hors décoration et aménagement intérieur et peinture. Hors raccordements, frais de notaire et dommage ouvrage. . // Réf. : 2529-210828-ALD. Prix terrain : 57 500 €, hors frais d'agence à la charge de l'acquéreur. Ce terrain vous est proposé, par nos partenaires fonciers, dans le cadre d'un projet de construction avec nous. Les informations sur les risques auxquels ce bien est exposé sont disponibles sur le site Géorisques (www.georisques.gouv.fr). Prix maison : 124 235 €.
Loches
TERRAIN ET MAISONSuperbe terrain viabilisé de 925m² exposé sud-ouest, dans un quartier recherché pour sa tranquillité. À quelques minutes seulement des commerces et commodités. Environnement de qualité, idéal pour un projet familial. A saisir rapidement !. Un cocon moderne et fonctionnel pour toute la famille ! Cette maison a été conçue pour offrir un espace optimisé et confortable, idéal pour une vie de famille harmonieuse. Au rez-de-chaussée, une pièce de vie spacieuse et lumineuse vous accueille, combinant un salon convivial, une salle à manger chaleureuse et une cuisine ouverte moderne. Un cellier attenant vient compléter cet espace en facilitant le rangement et l’organisation. L’étage est dédié au repos avec trois belles chambres, offrant à chacun un espace personnel agréable et bien agencé. Une salle de bain fonctionnelle et des WC indépendants apportent un confort supplémentaire à toute la famille. Pour vous assurer un confort de vie optimal et en conformité avec la RE2025, nous avons opté pour un système de chauffage par pompe à chaleur (PAC) avec plancher chauffant au rez-de-chaussée et radiateurs à l’étage. Le logement est également équipé de volets roulants électriques. Prix hors fourniture et pose : des appareils sanitaires (sauf système de chauffage et d'eau chaude sanitaire), du carrelage et de la faïence, des revêtements de sol dans les chambres. Hors décoration et aménagement intérieur et peinture. Hors raccordements, frais de notaire et dommage ouvrage. // Réf. : 2483-210828-ALD. Prix terrain : 57 500 €, hors frais d'agence à la charge de l'acquéreur. Ce terrain vous est proposé, par nos partenaires fonciers, dans le cadre d'un projet de construction avec nous. Les informations sur les risques auxquels ce bien est exposé sont disponibles sur le site Géorisques (www.georisques.gouv.fr). Prix maison : 140 698 €.
Loches
TERRAIN ET MAISONSuperbe terrain viabilisé de 925m² exposé sud-ouest, dans un quartier recherché pour sa tranquillité. À quelques minutes seulement des commerces et commodités. Environnement de qualité, idéal pour un projet familial. A saisir rapidement !. Une maison spacieuse et astucieuse, idéale pour les terrains optimisés ! Grâce à son conception intelligente, cette maison s’intègre parfaitement sur des terrains plus restreints sans compromettre l’espace et le confort. Au rez-de-chaussée, une grande pièce de vie lumineuse vous accueille, offrant une harmonie parfaite entre salon, salle à manger et cuisine ouverte. Un cellier pratique vient compléter cet espace, facilitant le rangement au quotidien. Une salle d’eau et un WC indépendant apportent un confort supplémentaire. L’étage est dédié au repos avec quatre chambres bien agencées, permettant à chaque membre de la famille de disposer de son propre espace. Une salle de bain fonctionnelle et un second WC garantissent une organisation fluide pour toute la famille. Une maison moderne, compacte et optimisée, idéale pour profiter pleinement de votre terrain !. Pour vous assurer un confort de vie optimal et en conformité avec la RE2025, nous avons opté pour un système de chauffage par pompe à chaleur (PAC) avec plancher chauffant au rez-de-chaussée et radiateurs à l’étage. Le logement est également équipé de volets roulants électriques. Prix hors fourniture et pose : des appareils sanitaires (sauf système de chauffage et d'eau chaude sanitaire), du carrelage et de la faïence, des revêtements de sol dans les chambres. Hors décoration et aménagement intérieur et peinture. Hors raccordements, frais de notaire et dommage ouvrage. // Réf. : 1550-210828-ALD. Prix terrain : 57 500 €, hors frais d'agence à la charge de l'acquéreur. Ce terrain vous est proposé, par nos partenaires fonciers, dans le cadre d'un projet de construction avec nous. Les informations sur les risques auxquels ce bien est exposé sont disponibles sur le site Géorisques (www.georisques.gouv.fr). Prix maison : 166 250 €.
Loches
TERRAINSuperbe terrain viabilisé de 925m² exposé sud-ouest, dans un quartier recherché pour sa tranquillité. À quelques minutes seulement des commerces et commodités. Environnement de qualité, idéal pour un projet familial. A saisir rapidement !. // Réf. : T210828. Prix terrain : 57 500 €, hors frais d'agence et de notaire à la charge de l'acquéreur. Ce terrain vous est proposé, par nos partenaires fonciers, dans le cadre d'un projet de construction avec nous. Les informations sur les risques auxquels ce bien est exposé sont disponibles sur le site Géorisques (www.georisques.gouv.fr).
Loches
TERRAIN ET MAISONSuperbe terrain viabilisé de 925m² exposé sud-ouest, dans un quartier recherché pour sa tranquillité. À quelques minutes seulement des commerces et commodités. Environnement de qualité, idéal pour un projet familial. A saisir rapidement !. Un espace qui évolue avec vous ! Ici, tout est possible : un vaste salon-séjour lumineux de plus de 60 m², deux chambres confortables au rez-de-chaussée, et un étage modulable pour laisser libre cours à vos envies. Besoin d’une salle de jeux, d’un espace télétravail ou de chambres supplémentaires ? C’est vous qui décidez ! Avec une architecture élégante et un volume repensé pour la lumière, cette maison personnalisable n’attend que votre touche pour devenir votre chez-vous idéal. Une maison unique, pensée pour vous et par vous. Prêts à la façonner ?. Pour un confort optimal et conforme à la RE2025, cette maison dispose d’une PAC avec plancher chauffant, radiateurs à l’étage et volets roulants électriques. À noter : Le prix indiqué exclut les revêtements de sol des chambres, la cuisine aménagée, la peinture, la décoration, les raccordements, les frais de notaire et l’assurance dommages-ouvrage. (Piscine non contractuelle, non comprise dans le prix). // Réf. : 39-210828-ALD. Prix terrain : 57 500 €, hors frais d'agence à la charge de l'acquéreur. Ce terrain vous est proposé, par nos partenaires fonciers, dans le cadre d'un projet de construction avec nous. Les informations sur les risques auxquels ce bien est exposé sont disponibles sur le site Géorisques (www.georisques.gouv.fr). Prix maison : 310 850 €.
Loches
TERRAIN ET MAISONSuperbe terrain viabilisé de 925m² exposé sud-ouest, dans un quartier recherché pour sa tranquillité. À quelques minutes seulement des commerces et commodités. Environnement de qualité, idéal pour un projet familial. A saisir rapidement !. Laissez-vous séduire par l’architecture en L de ce modèle pensé pour allier style et fonctionnalité ! Son espace de vie lumineux avec cuisine ouverte s’ouvre sur l’extérieur, tandis que l’espace nuit accueille 4 chambres, dont une suite parentale avec dressing et salle d’eau privative. Double salle d’eau, cellier, garage intégré : tout y est pour un quotidien fluide. Imaginez-la à votre image et commencez votre projet !. Pour un confort optimal et conforme à la RE2025, cette maison dispose d’une PAC avec plancher chauffant et volets roulants électriques. À noter : Le prix indiqué exclut les revêtements de sol des chambres, la cuisine aménagée, la peinture, la décoration, les raccordements, les frais de notaire et l’assurance dommages-ouvrage. . // Réf. : 64-210828-ALD. Prix terrain : 57 500 €, hors frais d'agence à la charge de l'acquéreur. Ce terrain vous est proposé, par nos partenaires fonciers, dans le cadre d'un projet de construction avec nous. Les informations sur les risques auxquels ce bien est exposé sont disponibles sur le site Géorisques (www.georisques.gouv.fr). Prix maison : 192 288 €.
Loches
TERRAIN ET MAISONSuperbe terrain viabilisé de 925m² exposé sud-ouest, dans un quartier recherché pour sa tranquillité. À quelques minutes seulement des commerces et commodités. Environnement de qualité, idéal pour un projet familial. A saisir rapidement !. Maison plain-pied personnalisable : idéale pour un premier investissement. Craquez pour cette maison de plain-pied au style à la fois moderne et épuré, parfaite pour allier confort et praticité. L'espace de vie lumineux, avec sa cuisine ouverte sur le séjour, est pensé pour créer un lieu de vie convivial et chaleureux, idéal pour des moments partagés en famille ou entre amis. La configuration intérieure propose une suite parentale avec salle d’eau privative pour votre intimité, ainsi que trois chambres, une salle de bains et des espaces optimisés pour le quotidien. Le cellier attenant à la cuisine, avec un accès direct au garage, apporte une fonctionnalité supplémentaire. Profitez de prestations de qualité, avec du carrelage de standing et un système de chauffage écologique par pompe à chaleur combiné à un plancher chauffant. Conforme à la RE2025, cette maison garantit un confort optimal tout en respectant l’environnement. Prix indicatif selon région et prestations, hors peinture, décoration, revêtements de sol dans les chambres, cuisine équipée, frais de notaire, raccordements et assurance dommage ouvrage. Contactez-nous dès aujourd’hui pour personnaliser cette maison et donner vie à votre projet immobilier !. // Réf. : 133-210828-ALD. Prix terrain : 57 500 €, hors frais d'agence à la charge de l'acquéreur. Ce terrain vous est proposé, par nos partenaires fonciers, dans le cadre d'un projet de construction avec nous. Les informations sur les risques auxquels ce bien est exposé sont disponibles sur le site Géorisques (www.georisques.gouv.fr). Prix maison : 172 571 €.
Loches
TERRAINSuperbe terrain viabilisé de 925m² exposé sud-ouest, dans un quartier recherché pour sa tranquillité. À quelques minutes seulement des commerces et commodités. Environnement de qualité, idéal pour un projet familial. A saisir rapidement !. // Réf. : T210828. Prix terrain : 57 500 €, hors frais d'agence et de notaire à la charge de l'acquéreur. Ce terrain vous est proposé, par nos partenaires fonciers, dans le cadre d'un projet de construction avec nous. Les informations sur les risques auxquels ce bien est exposé sont disponibles sur le site Géorisques (www.georisques.gouv.fr).
Beaulieu-lès-Loches
TERRAINÀ découvrir : terrain de 280m² idéalement orienté sud. Emplacement de premier choix : secteur résidentiel calme, à proximité immédiate des services. Cadre de vie paisible et agréable. Votre futur projet de vie commence ici !. // Réf. : T210552. Prix terrain : 33 280 €, hors frais d'agence et de notaire à la charge de l'acquéreur. Ce terrain vous est proposé, par nos partenaires fonciers, dans le cadre d'un projet de construction avec nous. Les informations sur les risques auxquels ce bien est exposé sont disponibles sur le site Géorisques (www.georisques.gouv.fr).
L’actualité immobilière à Loches
27/11/2023
02/11/2023
30/10/2023
20/10/2023
16/10/2023
16/10/2023