Maison à construire à Luynes (37230)
Images
Description
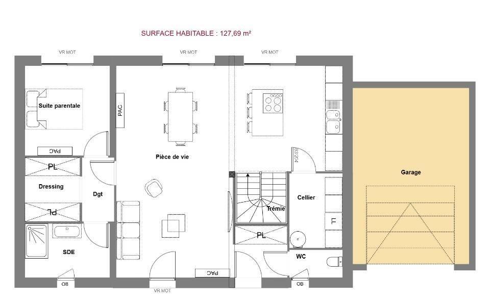
Offrez-vous une maison moderne et fonctionnelle à construire :
Surface de 127 m² : idéale pour toute la famille.
Rez-de-chaussée : suite parentale avec salle d'eau, garage attenant et belle pièce de vie spacieuse et lumineuse.
À l'étage : 3 chambres confortables et salle de bain.
Conception moderne et agencement optimisé.
Contactez-moi pour personnaliser votre future maison Julie (Numéro supprimé)
CONSTRUCTIONS IDEALE DEMEURE a sélectionné avec un partenaire foncier un terrain pour construire cette maison.
Logement susceptibles de vous intéresser
Nous vous proposons de découvrir aussi cette sélection de logements situés à moins de 10km de Luynes et qui seraient susceptibles de vous intéresser.
Fondettes
TERRAIN ET MAISONBeau terrain en lotissement. Proche des commerces. Environnement calme. Une maison familiale spacieuse et parfaitement agencée !. Avec ses 134 m² de surface habitable, ce modèle séduit par une configuration équilibrée et fluide. L’entrée dessert un vaste espace de vie central de près de 50 m², idéal pour partager, recevoir et profiter d’une belle luminosité. Le coin nuit, bien séparé, comprend 4 vraies chambres, deux WC, une salle de bain et une salle d’eau : une vraie réponse aux besoins d’une famille active. Un dressing spacieux, un grand cellier et un garage complètent ce plan bien pensé. Tout est réuni pour une vie de famille sereine dans une maison moderne, confortable et facile à vivre. Pour un confort optimal et conforme à la RE2025, cette maison dispose d’une PAC avec plancher chauffant et volets roulants électriques. À noter : Le prix indiqué exclut les revêtements de sol des chambres, la cuisine aménagée, la peinture, la décoration, les raccordements, les frais de notaire et l’assurance dommages-ouvrage. . // Réf. : 74-213528-YAL. Prix terrain : 219 000 €, hors frais d'agence à la charge de l'acquéreur. Ce terrain vous est proposé, par nos partenaires fonciers, dans le cadre d'un projet de construction avec nous. Les informations sur les risques auxquels ce bien est exposé sont disponibles sur le site Géorisques (www.georisques.gouv.fr). Prix maison : 286 057 €.
Mettray
TERRAIN ET MAISONTerrain à bâtir – 407 m² – 102 000 € – Mettray (37). À Mettray, commune très prisée du nord de Tours, terrain viabilisé de 407 m², proposé au prix de 102 000 €. Parcelle idéalement située, dans un environnement calme et résidentiel, à proximité immédiate de Tours Nord, des écoles et des commerces. Cette maison familiale moderne séduit par son architecture équilibrée et sa toiture à quatre pans, qui lui confèrent à la fois élégance et caractère. Au rez-de-chaussée, elle offre une vaste pièce de vie lumineuse ouverte sur la terrasse, idéale pour les moments de convivialité. On y trouve également une chambre avec dressing et salle d'eau privative, une cuisine fonctionnelle avec cellier, ainsi qu'un garage attenant. L'étage accueille trois chambres spacieuses, une salle de bains et un WC indépendant, offrant à chacun son espace de confort. Ce projet, entièrement personnalisable, allie modernité, praticité et bien-être familial, pour une maison aussi belle à vivre qu'à regarder. Pour vous assurer un confort de vie et conformément à la RE2025, nous avons choisi un mode de chauffage par PAC + plancher chauffant, volets roulants électriques. Prix hors décoration, revêtement de sol dans les chambres, frais de notaire, raccordements, dommage ouvrage. (Piscine non contractuelle et non comprise dans le prix. ). // Réf. : 2679-213481-JCT. Prix terrain : 102 000 €, hors frais d'agence à la charge de l'acquéreur. Ce terrain vous est proposé, par nos partenaires fonciers, dans le cadre d'un projet de construction avec nous. Les informations sur les risques auxquels ce bien est exposé sont disponibles sur le site Géorisques (www.georisques.gouv.fr). Prix maison : 300 000 €.
Fondettes
TERRAIN ET MAISONBeau terrain en lotissement. Proche des commerces. Environnement calme. Une maison à votre image, prête à évoluer ! Ici, tout est pensé pour s’adapter à vos envies. Un vaste espace de vie lumineux, une suite parentale avec dressing et salle d’eau, un bureau inspirant et un cellier pratique pour un quotidien fluide et organisé. À l’étage, deux belles chambres et une grande mezzanine, idéale pour un coin détente, une salle de jeux ou un espace télétravail. Personnalisez chaque mètre carré et créez un intérieur qui vous ressemble !. Ici, tout est modulable… et si vous lui donniez votre touche ?. . Pour un confort optimal et conforme à la RE2025, cette maison dispose d’une PAC avec plancher chauffant, radiateurs à l’étage et volets roulants électriques. À noter : Le prix indiqué exclut les revêtements de sol des chambres, la cuisine aménagée, la peinture, la décoration, les raccordements, les frais de notaire et l’assurance dommages-ouvrage. . // Réf. : 108-213528-YAL. Prix terrain : 219 000 €, hors frais d'agence à la charge de l'acquéreur. Ce terrain vous est proposé, par nos partenaires fonciers, dans le cadre d'un projet de construction avec nous. Les informations sur les risques auxquels ce bien est exposé sont disponibles sur le site Géorisques (www.georisques.gouv.fr). Prix maison : 228 343 €.
Mettray
TERRAIN ET MAISONTerrain à bâtir – 407 m² – 102 000 € – Mettray (37). À Mettray, commune très prisée du nord de Tours, terrain viabilisé de 407 m², proposé au prix de 102 000 €. Parcelle idéalement située, dans un environnement calme et résidentiel, à proximité immédiate de Tours Nord, des écoles et des commerces. Le modèle Islette séduit par son élégance intemporelle et son agencement en L parfaitement pensé. Avec ses 122 m² de plain-pied, cette maison contemporaine allie confort, fonctionnalité et luminosité, pour un cadre de vie à la fois convivial et apaisant. La pièce de vie centrale, baignée de lumière naturelle, devient le cœur de la maison, idéale pour partager des moments en famille ou entre amis. L’espace nuit, bien séparé, comprend 3 chambres, dont une suite parentale avec salle d’eau privative, ainsi qu’une seconde salle de bain pour encore plus de confort. Un cellier attenant à la cuisine, deux garages pratiques et une ouverture fluide sur le jardin complètent ce modèle au design soigné. Le modèle Islette se distingue par sa configuration astucieuse, son style modulable et ses prestations de qualité, pensées pour offrir un bien-être durable au quotidien. Pour vous assurer un confort de vie et conformément à la RE2025, nous avons choisi un mode de chauffage par PAC + plancher chauffant et volets roulants électriques. Prix hors décoration, frais de notaire, raccordements, dommage ouvrage. (Piscine non contractuelle et non comprise dans le prix. ). // Réf. : 2657-213481-JCT. Prix terrain : 102 000 €, hors frais d'agence à la charge de l'acquéreur. Ce terrain vous est proposé, par nos partenaires fonciers, dans le cadre d'un projet de construction avec nous. Les informations sur les risques auxquels ce bien est exposé sont disponibles sur le site Géorisques (www.georisques.gouv.fr). Prix maison : 304 000 €.
Fondettes
TERRAINBeau terrain en lotissement. Proche des commerces. Environnement calme. // Réf. : T213528. Prix terrain : 219 000 €, hors frais d'agence et de notaire à la charge de l'acquéreur. Ce terrain vous est proposé, par nos partenaires fonciers, dans le cadre d'un projet de construction avec nous. Les informations sur les risques auxquels ce bien est exposé sont disponibles sur le site Géorisques (www.georisques.gouv.fr).
Charentilly
TERRAIN ET MAISONA deux pas du bourg de Charentilly, terrain entièrement viabilisé dans un environnement calme et agréable. Le cocon idéal pour une première acquisition ! À la recherche d’un chez-vous accessible et fonctionnel ? Cette maison est parfaite pour un premier achat ! Son espace de vie lumineux de près de 40 m² invite à la convivialité, tandis que ses 2 chambres cosy offrent un coin nuit confortable et bien pensé. Un garage attenant et un cellier pratique complètent ce cocon malin et optimisé. Facile à vivre, évolutive et personnalisable, elle coche toutes les cases pour bien débuter ! Et si c’était le point de départ de votre nouvelle vie ?. Pour un confort optimal et conforme à la RE2025, cette maison dispose d’une PAC avec plancher chauffant et volets roulants électriques. À noter : Le prix indiqué exclut les revêtements de sol des chambres, la cuisine aménagée, la peinture, la décoration, les raccordements, les frais de notaire et l’assurance dommages-ouvrage. // Réf. : 13-213578-JFB. Prix terrain : 136 000 €, hors frais d'agence à la charge de l'acquéreur. Ce terrain vous est proposé, par nos partenaires fonciers, dans le cadre d'un projet de construction avec nous. Les informations sur les risques auxquels ce bien est exposé sont disponibles sur le site Géorisques (www.georisques.gouv.fr). Prix maison : 126 423 €.
Charentilly
TERRAINA deux pas du bourg de Charentilly, terrain entièrement viabilisé dans un environnement calme et agréable. // Réf. : T213578. Prix terrain : 136 000 €, hors frais d'agence et de notaire à la charge de l'acquéreur. Ce terrain vous est proposé, par nos partenaires fonciers, dans le cadre d'un projet de construction avec nous. Les informations sur les risques auxquels ce bien est exposé sont disponibles sur le site Géorisques (www.georisques.gouv.fr).
Mettray
TERRAIN ET MAISONTerrain à bâtir – 436 m² – 94 000 € – Mettray (37). À Mettray, commune très prisée du nord de Tours, terrain viabilisé de 436 m², proposé au prix de 94 000 €. Parcelle idéalement située, dans un environnement calme et résidentiel, à proximité immédiate de Tours Nord, des écoles et des commerces. Cette maison familiale moderne séduit par son architecture équilibrée et sa toiture à quatre pans, qui lui confèrent à la fois élégance et caractère. Au rez-de-chaussée, elle offre une vaste pièce de vie lumineuse ouverte sur la terrasse, idéale pour les moments de convivialité. On y trouve également une chambre avec dressing et salle d'eau privative, une cuisine fonctionnelle avec cellier, ainsi qu'un garage attenant. L'étage accueille trois chambres spacieuses, une salle de bains et un WC indépendant, offrant à chacun son espace de confort. Ce projet, entièrement personnalisable, allie modernité, praticité et bien-être familial, pour une maison aussi belle à vivre qu'à regarder. Pour vous assurer un confort de vie et conformément à la RE2025, nous avons choisi un mode de chauffage par PAC + plancher chauffant, volets roulants électriques. Prix hors décoration, revêtement de sol dans les chambres, frais de notaire, raccordements, dommage ouvrage. (Piscine non contractuelle et non comprise dans le prix. ). // Réf. : 2679-213484-JCT. Prix terrain : 94 000 €, hors frais d'agence à la charge de l'acquéreur. Ce terrain vous est proposé, par nos partenaires fonciers, dans le cadre d'un projet de construction avec nous. Les informations sur les risques auxquels ce bien est exposé sont disponibles sur le site Géorisques (www.georisques.gouv.fr). Prix maison : 300 000 €.
Charentilly
TERRAIN ET MAISONA deux pas du bourg de Charentilly, terrain entièrement viabilisé dans un environnement calme et agréable. Lignes contemporaines & espaces optimisés ! Offrez-vous une maison personnalisable, conçue pour le confort et la convivialité. Avec 4 chambres, dont une suite parentale avec dressing et salle d’eau au rez-de-chaussée, cette maison allie fonctionnalité et élégance. Son vaste espace de vie lumineux est l’endroit idéal pour partager des moments en famille. À l’étage, trois chambres bien agencées, une salle de bain moderne et un WC séparé offrent un espace nuit parfait. Un garage et un cellier viennent compléter ce projet pensé pour s’adapter à votre style de vie. Pour un confort optimal et conforme à la RE2025, cette maison dispose d’une PAC avec plancher chauffant, radiateurs à l’étage et volets roulants électriques. À noter : Le prix indiqué exclut les revêtements de sol des chambres, la cuisine aménagée, la peinture, la décoration, les raccordements, les frais de notaire et l’assurance dommages-ouvrage. N’attendez plus pour concrétiser votre projet de vie ! Contactez-nous pour plus d’informations et une étude personnalisée. // Réf. : 1743-213578-JFB. Prix terrain : 136 000 €, hors frais d'agence à la charge de l'acquéreur. Ce terrain vous est proposé, par nos partenaires fonciers, dans le cadre d'un projet de construction avec nous. Les informations sur les risques auxquels ce bien est exposé sont disponibles sur le site Géorisques (www.georisques.gouv.fr). Prix maison : 252 914 €.
L’actualité immobilière à Luynes
27/11/2023
02/11/2023
30/10/2023
20/10/2023
16/10/2023
16/10/2023