Maison à construire à Luynes (37230)
Images
Description
Origin 75 Nord
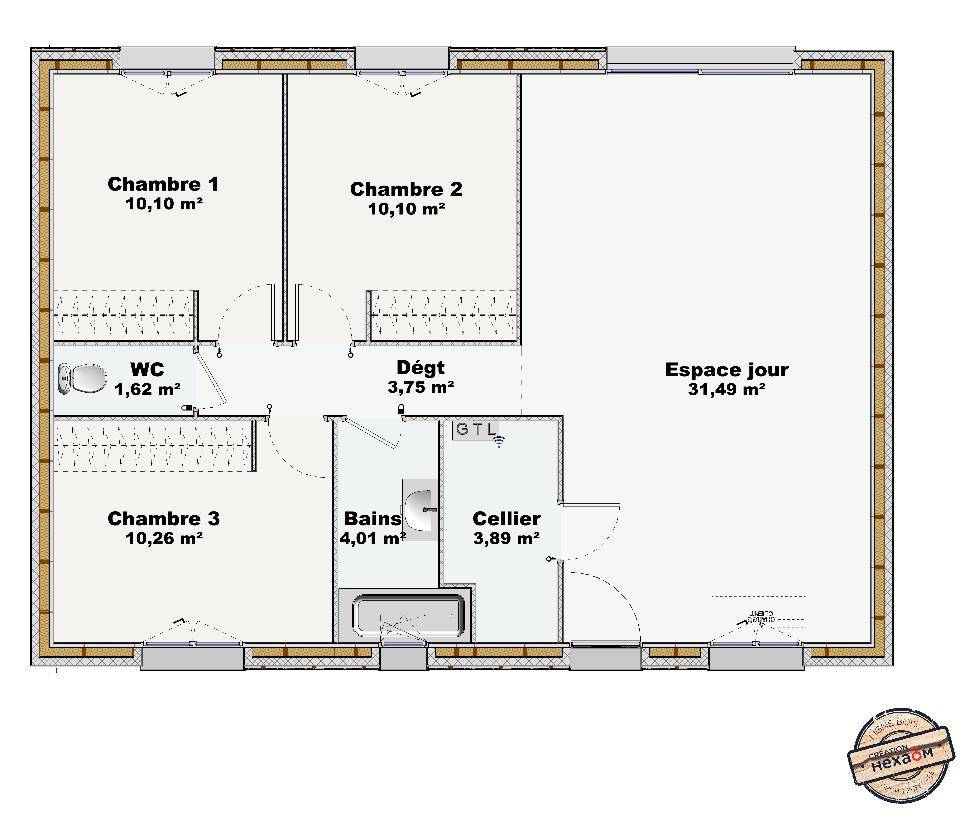
Ce plan présente une maison de plain-pied optimisée pour le confort et la fonctionnalité. Avec une surface habitable de 75 m², elle comprend trois chambres de tailles similaires (environ 10 m² chacune), un espace jour spacieux de 31 m², une salle de bains de 4 m², un cellier de 3,89 m², des WC séparés de 1,62 m² et un dégagement central de 3,75 m². La disposition des pièces favorise une circulation fluide et une utilisation efficace de l'espace. L'espace jour, baigné de lumière naturelle, constitue le coeur de la maison, idéal pour les moments de partage en famille ou entre amis.
La construction en ossature bois offre de nombreux avantages. Elle permet une excellente isolation thermique et acoustique, réduisant ainsi les besoins en chauffage et en climatisation. De plus, le bois est un matériau renouvelable et écologique, contribuant à la réduction de l'empreinte carbone de la maison. La préfabrication des éléments en bois permet également un montage rapide sur le chantier, réduisant les délais de construction. Enfin, le bois crée une atmosphère chaleureuse et naturelle, favorisant le bien-être des occupants.
N'hésitez pas à contacter Céline SAANOUN au (Numéro supprimé)
Logement susceptibles de vous intéresser
Nous vous proposons de découvrir aussi cette sélection de logements situés à moins de 10km de Luynes et qui seraient susceptibles de vous intéresser.
Luynes
TERRAIN ET MAISONOrigin 75 Nord Ce plan présente une maison de plain-pied optimisée pour le confort et la fonctionnalité. Avec une surface habitable de 75 m², elle comprend trois chambres de tailles similaires (environ 10 m² chacune), un espace jour spacieux de 31 m², une salle de bains de 4 m², un cellier de 3,89 m², des WC séparés de 1,62 m² et un dégagement central de 3,75 m². La disposition des pièces favorise une circulation fluide et une utilisation efficace de l’espace. L’espace jour, baigné de lumière naturelle, constitue le coeur de la maison, idéal pour les moments de partage en famille ou entre amis.La construction en ossature bois offre de nombreux avantages. Elle permet une excellente isolation thermique et acoustique, réduisant ainsi les besoins en chauffage et en climatisation. De plus, le bois est un matériau renouvelable et écologique, contribuant à la réduction de l’empreinte carbone de la maison. La préfabrication des éléments en bois permet également un montage rapide sur le chantier, réduisant les délais de construction. Enfin, le bois crée une atmosphère chaleureuse et naturelle, favorisant le bien-être des occupants.N’hésitez pas à contacter Céline SAANOUN au (Numéro supprimé)
Mazières-de-Touraine
TERRAINVenez découvrir cette opportunité de terrain à bâtir dans la commune de proposé par l » »un de nos partenaires fonciers et en vue de faire un projet de construction par Constructions Idéale Demeure.N » »hésitez pas à contacter votre expert en construction madame Céline SAANOUN au (Numéro supprimé) qui se fera une joie de vous présenter un projet terrain + maison en accord avec vos attentes.Optimisation des plans sur-mesureRecherche foncière approfonditPhoto non contractuelle
Savonnières
TERRAINVenez découvrir cette opportunité de terrain à bâtir, proposé par l » »un de nos partenaires fonciers et en vue de faire un projet de construction par Constructions Idéale Demeure.N » »hésitez pas à contacter votre expert en construction Céline SAANOUN au (Numéro supprimé) qui se fera une joie de vous présenter un projet terrain + maison en accord avec vos attentes.Optimisation des plans sur-mesureRecherche foncière approfonditPhoto non contractuelle
Ambillou
TERRAINUn terrain rare et magnifique de 513m² est disponible sur la commune d » »Ambillou, offrant un cadre idéal pour construire votre projet résidentiel. Situé à proximité de toutes les commodités, ce terrain bénéficie d » »une situation géographique privilégiée. Avec ses dimensions généreuses, il offre de multiples possibilités d » »aménagement selon vos besoins et préférences. Ne manquez pas cette opportunité unique d » »acquérir un terrain d » »exception dans un environnement recherché.Je reste disponible pour toutes demandes de renseignements, n » »hésitez pas à me contacter : Stéphane Digneton : (Numéro supprimé)
Savonnières
TERRAIN ET MAISONCharmante maison avec combles aménageables. Très lumineuse, cette maison deviendra votre nid douillet et laisse place à votre imagination. Vous profiterez d’une belle pièce à vivre de plus de 55 m²avec cuisine ouverte. Du côté nuit, deux belles chambres dont une suite parentale. La production d’eau chaude et de chauffage sont réalisées par une pompe à chaleur. Construction de haute qualité par Constructions Idéale Demeure depuis 1993.Suivi du projet de A à ZOptimisation des plans sur mesures.Matériaux de qualité.N’hésitez pas à contacter Céline SAANOUN au (Numéro supprimé) pour plus d’informations.
Mettray
TERRAIN ET MAISONOrigin 83 est une maison de plain-pied de 83 m² conçue pour offrir un espace de vie confortable et fonctionnel, idéal pour une famille. L’agencement privilégie la convivialité avec un espace jour spacieux et lumineux de 36,06 m², parfait pour les moments de partage. Les trois chambres, de tailles similaires, offrent à chacun son espace d’intimité, tandis que les espaces fonctionnels, tels que le cellier, le garage et la salle de bains, facilitent le quotidien.L’espace jour, véritable coeur de la maison, est baigné de lumière naturelle grâce à de larges ouvertures. Il offre un espace de vie ouvert et accueillant, idéal pour se détendre, recevoir des amis ou partager des repas en famille. Les chambres, quant à elles, sont conçues comme des havres de paix, offrant à chacun son espace personnel.Les espaces fonctionnels, tels que le cellier, le garage et la salle de bains, sont pensés pour faciliter le quotidien. Le dégagement central assure une circulation fluide entre les pièces, tandis que les toilettes séparées ajoutent une touche de confort supplémentaire. L’ensemble de la maison est conçu pour offrir un espace de vie agréable et pratique, où chaque membre de la famille se sentira chez soi.N’hésitez pas à contacter Céline SAANOUN au (Numéro supprimé) pour plus d’informations.
Mettray
TERRAINVenez découvrir cette opportunité de terrain à bâtir, proposé par l » »un de nos partenaires fonciers et en vue de faire un projet de construction par Constructions Idéale Demeure.N » »hésitez pas à contacter Céline SAANOUN au (Numéro supprimé) Optimisation des plans sur-mesureRecherche foncière approfonditPhoto non contractuelle
Mazières-de-Touraine
TERRAIN ET MAISON**L’harmonie du bois et de la lumière**Imaginez un espace de vie où la chaleur du bois s’entrelace avec la lumière naturelle, créant une atmosphère douce et apaisante. Bienvenue au Loft 120, un magnifique espace de 120 m² de plain-pied, pensé pour vous offrir un confort inégalé au quotidien.Dès que vous franchissez la porte d’entrée de 6 m², vous serez accueilli par une sensation d’espace et de sérénité. La pièce de vie de 49 m², véritable coeur battant de la maison, s’ouvre sur l’extérieur grâce à de grandes baies vitrées. La lumière inonde l’espace et vous offre une vue relaxante sur votre jardin, parfait pour se ressourcer.Les murs en ossature bois apportent une isolation naturelle, vous garantissant une température agréable tout au long de l’année et une ambiance chaleureuse. Les trois chambres, conçues comme de véritables cocons, vous invitent à la détente et au repos bien mérité. Les deux salles d’eau modernes et fonctionnelles sont pensées pour votre confort, vous permettant de commencer et terminer vos journées en toute sérénité.Et pour couronner le tout, le garage intégré de 14 m² vous offre un espace pratique pour votre véhicule et vos rangements.Le Loft 120 n’est pas qu’une simple maison, c’est un véritable refuge où chaque instant est à savourer. L’alliance harmonieuse du bois, de la lumière et des espaces généreux crée une atmosphère unique, idéale pour le bien-être et la convivialité.CONSTRUCTIONS IDEALE DEMEURE a soigneusement sélectionné, avec un partenaire foncier, un terrain parfait pour donner vie à cette maison.N’hésitez pas à contacter Céline Saanoun (Numéro supprimé) pour découvrir ce projet qui pourrait devenir votre nouveau chez-vous !
Ambillou
TERRAIN ET MAISONBelle maison traditionnelle de plain pied comprenant 3 chambres, une salle de bain ainsi qu’un cellier et un WC.Parfait pour un premier achat ou un investissement locatif!Le combles aménageables saura suivre l’évolution de votre famille et celle de vos envies.CONSTRUCTIONS IDEALE DEMEURE a sélectionné avec un partenaire foncier un terrain pour construire cette maison. Je reste disponible pour toutes demandes de renseignements, n’hésitez pas me contacter : Stéphane Digneton : (Numéro supprimé).
L’actualité immobilière à Luynes
27/11/2023
02/11/2023
30/10/2023
20/10/2023
16/10/2023
16/10/2023