Terrain et maison à vendre à Luynes (37230)
Luynes
TERRAIN ET MAISONDEVENEZ PROPRIÉTAIRE DE VOTRE MAISON SUR-MESURE – OPPORTUNITE A SAISIR Découvrez cette demeure conçue et bâtie avec tout le savoir-faire des Maisons de Stéphanie, constructeur reconnu pour ses 30 années d’expérience et son exigence de qualité.Chaque détail est pensé pour votre confort et vos envies : une architecture élégante, des espaces lumineux et fonctionnels, et la possibilité d’adapter les plans selon votre mode de vie.Saisissez dès maintenant l’opportunité de faire de cette maison votre nouveau lieu de vie !Contactez Maëlle VECHTE dès maintenant au *2 47 48 09 30 pour plus d’informations et concrétiser votre projet.
Luynes
TERRAIN ET MAISONDécouvrez cette maison à étage R+1, alliant élégance et fonctionnalité. Au rez-de-chaussée, profitez d’une suite parentale confortable, idéale pour votre intimité. Le grand séjour de 45 m² vous offre un espace convivial pour recevoir famille et amis. À l’étage, deux chambres supplémentaires et un bureau vous permettent de créer un espace de vie harmonieux. Un cellier pratique et un garage attenant complètent ce bien, offrant à la fois rangement et praticité. Un lieu de vie parfait pour toute la famille !Nous réalisons votre projet sur-mesure, contactez-moi Julie Texier au (Numéro supprimé)CONSTRUCTIONS IDEALE DEMEURE a sélectionné avec un partenaire foncier un terrain pour construire cette maison.
Luynes
TERRAIN ET MAISONOPPORTUNITE A SAISIR – DEVENEZ PROPRIÉTAIRE DE VOTRE MAISON SUR-MESUREDécouvrez cette demeure conçue et bâtie avec tout le savoir-faire des Maisons de Stéphanie, constructeur reconnu pour ses 30 années d’expérience et son exigence de qualité.Chaque détail est pensé pour votre confort et vos envies : une architecture élégante, des espaces lumineux et fonctionnels, et la possibilité d’adapter les plans selon votre mode de vie.Saisissez dès maintenant l’opportunité de faire de cette maison votre nouveau lieu de vie !📞 Contactez dès maintenant votre conseillère Tiphanie DUMOND des Maisons Stéphanie pour plus d’informations ou pour planifier une visite.(Numéro supprimé)N’attendez plus pour démarrer votre projet de construction, rencontrons-nous !
Luynes
TERRAIN ET MAISONTerrains Viabilisés et Calmes 289M² – LUYNES- Une opportunité rare d'acquérir un terrain à bâtir entièrement prêt à accueillir votre future maison. Idéalement situé, à seulement 15 minutes de Tours, le lotissement offre un cadre de vie paisible et recherché. Les Caractéristiques de votre Futur Terrain. Viabilisation Complète : (Eau, Électricité, Assainissement) et raccordée à la FIBRE optique. . Cadre de Vie : Situés dans une impasse, garantissant un calme absolu. !. Aucune place de perdue pour cette maison de plain-pied familiale et fonctionnelle qui vous propose un très bel espace de vie lumineux avec une grande baie vitrée donnant sur le jardin. Sa cuisine est ouverte sur le séjour et dispose d'un accès direct au cellier, et au garage intégré. Du côté de l'espace nuit quatre chambres avec rangements, d'une salle de bains et de wc séparés. Pour vous assurer un confort de vie et conformément à la RE2025, nous avons choisi un mode de chauffage par PAC + plancher chauffant, volets roulants électriques. Prix hors fourniture et pose : des appareils sanitaires (sauf système de chauffage et d'eau chaude sanitaire), du carrelage et de la faïence, des revêtements de sol dans les chambres. Hors décoration et aménagement intérieur et peinture. Hors raccordements, frais de notaire et dommage ouvrage. // Réf. : 874-211605-GHV. Prix terrain : 77 000 €, hors frais d'agence à la charge de l'acquéreur. Ce terrain vous est proposé, par nos partenaires fonciers, dans le cadre d'un projet de construction avec nous. Les informations sur les risques auxquels ce bien est exposé sont disponibles sur le site Géorisques (www.georisques.gouv.fr). Prix maison : 157 876 €.
Luynes
TERRAIN ET MAISONTerrains Viabilisés et Calmes 289M² – LUYNES- Une opportunité rare d'acquérir un terrain à bâtir entièrement prêt à accueillir votre future maison. Idéalement situé, à seulement 15 minutes de Tours, le lotissement offre un cadre de vie paisible et recherché. Les Caractéristiques de votre Futur Terrain. Viabilisation Complète : (Eau, Électricité, Assainissement) et raccordée à la FIBRE optique. . Cadre de Vie : Situés dans une impasse, garantissant un calme absolu. !. Familiale et fonctionnelle cette maison de plain-pied vous séduira par ses volumes, son très bel espace de vie de plus de 43 m² avec cuisine ouverte très lumineuse grâce à ses nombreuses ouvertures US, et cellier indépendant. La partie nuit est composée de 4 chambres avec rangement, une salle de bains et wc indépendant. Pour vous assurer un confort de vie et conformément à la RE2025, nous avons choisi un mode de chauffage par PAC + plancher chauffant, volets roulants électriques. Prix hors fourniture et pose : des appareils sanitaires (sauf système de chauffage et d'eau chaude sanitaire), du carrelage et de la faïence, des revêtements de sol dans les chambres. Hors décoration et aménagement intérieur et peinture. Hors raccordements, frais de notaire et dommage ouvrage. // Réf. : 1011-211605-GHV. Prix terrain : 77 000 €, hors frais d'agence à la charge de l'acquéreur. Ce terrain vous est proposé, par nos partenaires fonciers, dans le cadre d'un projet de construction avec nous. Les informations sur les risques auxquels ce bien est exposé sont disponibles sur le site Géorisques (www.georisques.gouv.fr). Prix maison : 136 832 €.
Luynes
TERRAIN ET MAISONTerrains Viabilisés et Calmes 289M² – LUYNES- Une opportunité rare d'acquérir un terrain à bâtir entièrement prêt à accueillir votre future maison. Idéalement situé, à seulement 15 minutes de Tours, le lotissement offre un cadre de vie paisible et recherché. Les Caractéristiques de votre Futur Terrain. Viabilisation Complète : (Eau, Électricité, Assainissement) et raccordée à la FIBRE optique. . Cadre de Vie : Situés dans une impasse, garantissant un calme absolu. !. Un cocon moderne et fonctionnel pour toute la famille ! Cette maison a été conçue pour offrir un espace optimisé et confortable, idéal pour une vie de famille harmonieuse. Au rez-de-chaussée, une pièce de vie spacieuse et lumineuse vous accueille, combinant un salon convivial, une salle à manger chaleureuse et une cuisine ouverte moderne. Un cellier attenant vient compléter cet espace en facilitant le rangement et l’organisation. L’étage est dédié au repos avec trois belles chambres, offrant à chacun un espace personnel agréable et bien agencé. Une salle de bain fonctionnelle et des WC indépendants apportent un confort supplémentaire à toute la famille. Pour vous assurer un confort de vie optimal et en conformité avec la RE2025, nous avons opté pour un système de chauffage par pompe à chaleur (PAC) avec plancher chauffant au rez-de-chaussée et radiateurs à l’étage. Le logement est également équipé de volets roulants électriques. Prix hors fourniture et pose : des appareils sanitaires (sauf système de chauffage et d'eau chaude sanitaire), du carrelage et de la faïence, des revêtements de sol dans les chambres. Hors décoration et aménagement intérieur et peinture. Hors raccordements, frais de notaire et dommage ouvrage. // Réf. : 2483-211605-GHV. Prix terrain : 77 000 €, hors frais d'agence à la charge de l'acquéreur. Ce terrain vous est proposé, par nos partenaires fonciers, dans le cadre d'un projet de construction avec nous. Les informations sur les risques auxquels ce bien est exposé sont disponibles sur le site Géorisques (www.georisques.gouv.fr). Prix maison : 140 698 €.
Luynes
TERRAIN ET MAISONOPPORTUNITE A SAISIR – DEVENEZ PROPRIÉTAIRE DE VOTRE MAISON SUR-MESUREDécouvrez cette demeure conçue et bâtie avec tout le savoir-faire des Maisons de Stéphanie, constructeur reconnu pour ses 30 années d’expérience et son exigence de qualité.Chaque détail est pensé pour votre confort et vos envies : une architecture élégante, des espaces lumineux et fonctionnels, et la possibilité d’adapter les plans selon votre mode de vie.Saisissez dès maintenant l’opportunité de faire de cette maison votre nouveau lieu de vie !📞 Contactez dès maintenant votre conseillère Tiphanie DUMOND des Maisons Stéphanie pour plus d’informations ou pour planifier une visite.*2.47.48.09.30N’attendez plus pour démarrer votre projet de construction, rencontrons-nous !
Luynes
TERRAIN ET MAISONOPPORTUNITE A SAISIR – DEVENEZ PROPRIÉTAIRE DE VOTRE MAISON SUR-MESUREDécouvrez cette demeure conçue et bâtie avec tout le savoir-faire des Maisons de Stéphanie, constructeur reconnu pour ses 30 années d’expérience et son exigence de qualité.Chaque détail est pensé pour votre confort et vos envies : une architecture élégante, des espaces lumineux et fonctionnels, et la possibilité d’adapter les plans selon votre mode de vie.Saisissez dès maintenant l’opportunité de faire de cette maison votre nouveau lieu de vie !📞 Contactez dès maintenant votre conseillère Tiphanie DUMOND des Maisons Stéphanie pour plus d’informations ou pour planifier une visite.*2.47.48.09.30N’attendez plus pour démarrer votre projet de construction, rencontrons-nous !
Luynes
TERRAIN ET MAISONSitué sur la commune de Luynes, ce terrain entièrement viabilisé est à proximité immédiate des commerces. Belle exposition. Cette maison familiale de plain-pied vous séduira par ses volumes et son agencement. Pour respecter la tranquilité de l'espace nuit, celui-ci a été séparé par l'entréee et se situe à l'opposé de l'espace de vie. D'un côté, une pièce de vie de 48 m² lumineuse grâce à ses ouvertures, une cuisine ouverte pour partager des moments en famille ou entre amis, une pièce de 30 m² à transformer au gré de vos envies en atelier, salle de jeux. . Côté nuit, 1 suite parentale de plus de 13 m² avec salle d'eau privative de 5m², trois chambres de plus de 13 m², une salle de bains et wc indépendant. Pour vous assurer un confort de vie et conformément à la RE2025, nous avons choisi un mode de chauffage par PAC + plancher chauffant, volets roulants électriques. Prix hors peinture, décoration, revêtements de sol dans les chambres, cuisine équipée, frais de notaire, raccordements, dommage ouvrage. (Piscine non contractuelle, non comprise dans le prix). // Réf. : 1692-210068-JFB. Prix terrain : 115 000 €, hors frais d'agence à la charge de l'acquéreur. Ce terrain vous est proposé, par nos partenaires fonciers, dans le cadre d'un projet de construction avec nous. Les informations sur les risques auxquels ce bien est exposé sont disponibles sur le site Géorisques (www.georisques.gouv.fr). Prix maison : 289 579 €.
Luynes
TERRAIN ET MAISONSitué sur la commune de Luynes, ce terrain entièrement viabilisé est à proximité immédiate des commerces. Belle exposition. Une maison qui s’adapte à vous – moderne, lumineuse et 100 % personnalisable ! Et si votre futur chez-vous était à votre image ? Avec 4 chambres, dont une suite parentale avec dressing et salle d’eau, un vaste espace de vie ouvert, et des volumes baignés de lumière, cette maison combine design et confort. L’étage offre trois belles chambres et une salle de bain familiale, parfait pour préserver l’intimité de chacun. . Pour un confort optimal et conforme à la RE2025, cette maison dispose d’une PAC avec plancher chauffant, radiateurs à l’étage et volets roulants électriques. À noter : Le prix indiqué exclut les revêtements de sol des chambres, la cuisine aménagée, la peinture, la décoration, les raccordements, les frais de notaire et l’assurance dommages-ouvrage. . Faites de cette maison votre projet unique, façonné selon vos envies !. // Réf. : 22-210068-JFB. Prix terrain : 115 000 €, hors frais d'agence à la charge de l'acquéreur. Ce terrain vous est proposé, par nos partenaires fonciers, dans le cadre d'un projet de construction avec nous. Les informations sur les risques auxquels ce bien est exposé sont disponibles sur le site Géorisques (www.georisques.gouv.fr). Prix maison : 255 461 €.
Luynes
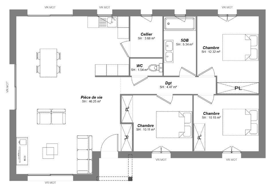
TERRAIN ET MAISONSitué sur la commune de Luynes, ce terrain entièrement viabilisé est à proximité immédiate des commerces. Belle exposition. Laissez-vous séduire par l’architecture en L de ce modèle pensé pour allier style et fonctionnalité ! Son espace de vie lumineux avec cuisine ouverte s’ouvre sur l’extérieur, tandis que l’espace nuit accueille 4 chambres, dont une suite parentale avec dressing et salle d’eau privative. Double salle d’eau, cellier, garage intégré : tout y est pour un quotidien fluide. Imaginez-la à votre image et commencez votre projet !. Pour un confort optimal et conforme à la RE2025, cette maison dispose d’une PAC avec plancher chauffant et volets roulants électriques. À noter : Le prix indiqué exclut les revêtements de sol des chambres, la cuisine aménagée, la peinture, la décoration, les raccordements, les frais de notaire et l’assurance dommages-ouvrage. . // Réf. : 64-210068-JFB. Prix terrain : 115 000 €, hors frais d'agence à la charge de l'acquéreur. Ce terrain vous est proposé, par nos partenaires fonciers, dans le cadre d'un projet de construction avec nous. Les informations sur les risques auxquels ce bien est exposé sont disponibles sur le site Géorisques (www.georisques.gouv.fr). Prix maison : 192 288 €.
Luynes
TERRAIN ET MAISONBelle maison traditionnelle de plain pied de 71m² comprenant une grande pièce de vie de 40m², 2 chambres, une salle de bain ainsi qu’un cellier et un WC.Parfait pour un premier achat ou un investissement locatif!Le combles aménageables saura suivre l’évolution de votre famille et celle de vos envies.CONSTRUCTIONS IDEALE DEMEURE a sélectionné avec un partenaire foncier un terrain pour construire cette maison. Je reste disponible pour toutes demandes de renseignements, n’hésitez pas me contacter : Stéphane Digneton : (Numéro supprimé).
Luynes
TERRAIN ET MAISONBelle maison de plain-pied de 85m², offrant une pièce de vie de plus de 40 m², 3 chambres spacieuses ainsi qu’un un cellier, une salle de bain commune.Le garage dessert directement le cellier attenant à la cuisine ouverte sur la pièce de vie lumineuse.Les combles aménageables seront accompagner l’évolution de la famille et de vos envies !CONSTRUCTIONS IDEALE DEMEURE a sélectionné avec un partenaire foncier un terrain pour construire cette maison. Je reste disponible pour toutes demandes de renseignements, n’hésitez pas me contacter : Stéphane Digneton : (Numéro supprimé).
Luynes
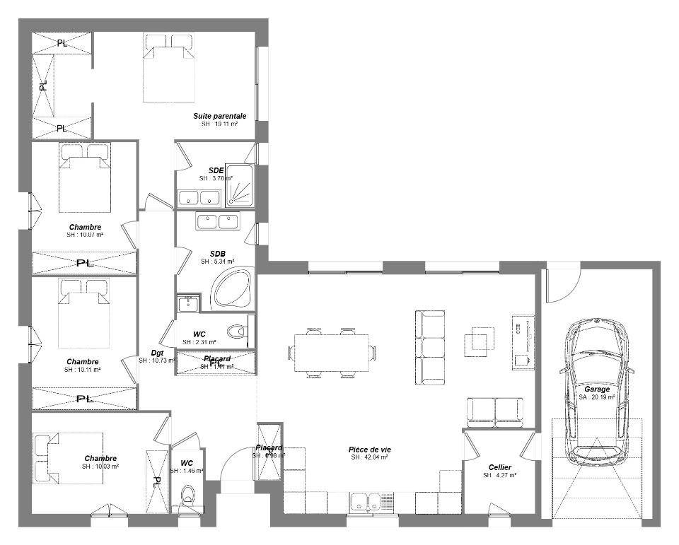
TERRAIN ET MAISONVous rêvez de faire construire ? Stéphane Digneton ( (Numéro supprimé))vous propose cette maison en L de 121m², avec 4 chambres dont une suite parentale. Elle comprend également 2 salles de bain, une belle pièce de vie lumineuse et un grand garage de plus de 20m². Entièrement personnalisable, n’hésitez pas à me contacter pour discuter de votre projet.CONSTRUCTIONS IDEALE DEMEURE a sélectionné avec un partenaire foncier un terrain pour construire cette maison.
Luynes
TERRAIN ET MAISONBelle maison traditionnelle de 85m² de plain pied avec un combles aménageables. Vous retrouverez 3 chambre spacieuses avec rangements intégrés, une salle de bain, un cellier et une grande pièce de vie ouverte de 40m².CONSTRUCTIONS IDEALE DEMEURE a sélectionné avec un partenaire foncier un terrain pour construire cette maison. Je reste disponible pour toutes demandes de renseignements, n’hésitez pas me contacter : Stéphane Digneton : (Numéro supprimé).
Luynes
TERRAIN ET MAISONCette magnifique maison à construire en L de 93m² offre un cadre de vie idéal. Sa pièce de vie spacieuse de plus de 46m² bénéficie d’une triple exposition, garantissant une luminosité optimale tout au long de la journée. Elle comprend également trois belles chambres, parfaites pour accueillir toute la famille. Un projet harmonieux alliant confort, espace et lumière naturelle.Maison entièrement personnalisable. Je reste disponible pour toutes demandes de renseignements, n’hésitez pas me contacter : Stéphane Digneton : (Numéro supprimé).CONSTRUCTIONS IDEALE DEMEURE a sélectionné avec un partenaire foncier un terrain pour construire cette maison.
Luynes
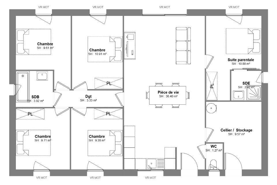
TERRAIN ET MAISONVoici une belle maison de 107m² à construire, comprenant 5 chambres, dont une suite parentale confortable. Elle dispose de 2 salles de bain modernes pour un confort optimal. Un grand cellier est également prévu, idéal pour le stockage et l’organisation.Cette maison est entièrement personnalisable selon vos envies et besoins.Je reste disponible pour toutes demandes de renseignements, n’hésitez pas me contacter : Stéphane Digneton : (Numéro supprimé).CONSTRUCTIONS IDEALE DEMEURE a sélectionné avec un partenaire foncier un terrain pour construire cette maison.
Luynes
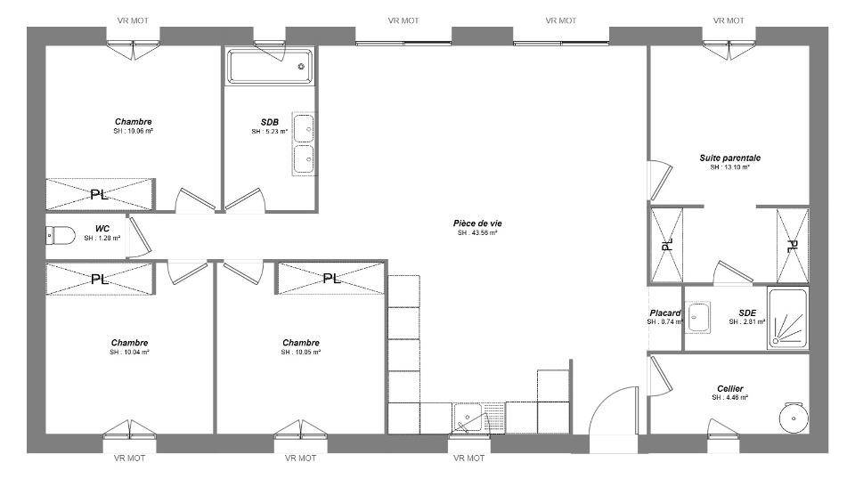
TERRAIN ET MAISONVoici une belle maison à construire de 101m², comprenant quatre chambres dont une suite parentale. Elle dispose de deux salles de bain pour plus de confort. La grande pièce de vie de plus de 40m² est lumineuse grâce à ses deux baies vitrées. Cette maison allie espace et fonctionnalité pour toute la famille.Je reste disponible pour toutes demandes de renseignements, n’hésitez pas me contacter : Stéphane Digneton : (Numéro supprimé).CONSTRUCTIONS IDEALE DEMEURE a sélectionné avec un partenaire foncier un terrain pour construire cette maison.
De 18 à 36 parmi 50 résultats
En savoir plus sur Luynes
Vous trouverez 50 terrain et maison disponibles à l’achat dans la ville de Luynes.
Les prix varient de 203 000€ à 475 000€. Le prix moyen constaté pour une annonce est de 284 036€.
Nos articles concernant Luynes
27/11/2023
02/11/2023
30/10/2023
20/10/2023
16/10/2023
16/10/2023