Images
Description
Sur ce terrain, nous vous proposons cette maison neuve : la Conception, un modèle exclusif signé Maisons Conceot, constructeur reconnu pour offrir le meilleur rapport qualité/prix du marché.
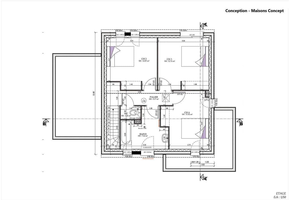
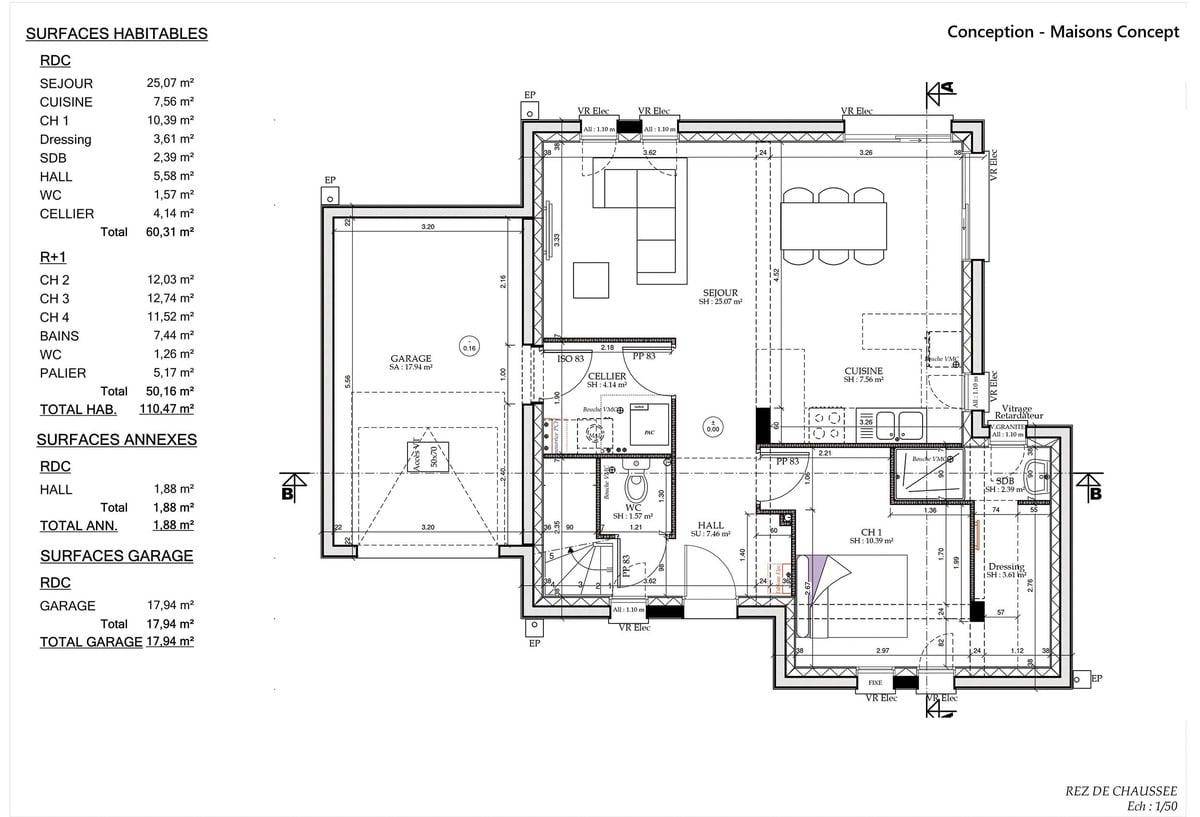
Cette maison contemporaine à étage, d’une superficie de 95 m², allie lignes traditionnelles et touches de design moderne pour créer une esthétique épurée et captivante. La Conception se distingue par son architecture compacte et son garage accolé à toit plat, permettant une intégration harmonieuse dans son environnement.
À l’intérieur, la Conception est pensée pour le confort et la fonctionnalité. Elle comprend 3 chambres spacieuses ainsi qu’une vaste pièce de vie ouverte, parfaite pour partager des moments conviviaux en famille ou entre amis. La dalle béton à l’étage assure une isolation phonique et thermique optimale, renforçant le confort au quotidien.
Cette maison neuve est conforme à la norme RE2020, garantissant une faible consommation énergétique et le respect des réglementations environnementales les plus récentes. Les options les plus plébiscitées, comme la domotique ou les menuiseries aluminium, sont également disponibles afin de personnaliser votre future maison selon vos envies.
Optez pour la Conception et découvrez une maison où chaque détail a été soigneusement pensé pour offrir une expérience de vie harmonieuse et moderne. Ne manquez pas cette opportunité unique de devenir propriétaire d’une maison alliant élégance, praticité et performance énergétique.
Logement susceptibles de vous intéresser
Nous vous proposons de découvrir aussi cette sélection de logements situés à moins de 10km de Marçay et qui seraient susceptibles de vous intéresser.
La Roche-Clermault
TERRAIN ET MAISONÀ Vendre : Terrain Viabilisé de 850 m² à 5 Minutes de Chinon. Offrez-vous la tranquillité et la qualité de vie dans un cadre idyllique ! Situé dans une charmante commune de 500 habitants, ce terrain viabilisé de 850 m² se trouve à seulement 7 kilomètres de Chinon. Caractéristiques du terrain :. Superficie : 850 m². Viabilisé : Oui. Localisation : Petite commune paisible à 5 minutes de Chinon. Points forts :. Environnement calme et de qualité : Profitez d'un cadre de vie serein, loin du tumulte de la ville. Proximité des commodités : À seulement quelques minutes de Chinon, vous bénéficiez de toutes les commodités nécessaires. Opportunité unique : Idéal pour construire la maison de vos rêves dans un environnement privilégié. Ne manquez pas cette occasion exceptionnelle de devenir propriétaire d'un terrain dans un cadre paisible et recherché. Contactez-nous dès maintenant pour plus d'informations et pour organiser une visite !. Est-ce que cela vous convient ? ????. Une maison qui coche toutes les cases ! Avec son agencement clair et fonctionnel, ce modèle est un vrai coup de cœur pour les familles en quête de simplicité efficace. L’espace de vie traversant invite à la lumière naturelle, tandis que les 3 chambres sont idéalement réparties pour préserver l’intimité de chacun. Un bureau discret s’adapte à tous les projets, qu’ils soient pro ou perso. Salle de bain, cellier, WC séparé et garage attenant : chaque détail a été pensé pour vous simplifier la vie au quotidien. Une maison qui s’adapte à vos besoins, à votre rythme, et à vos envies d’évolution. Pour un confort optimal et conforme à la RE2025, cette maison dispose d’une PAC avec plancher chauffant et volets roulants électriques. À noter : Le prix indiqué exclut les revêtements de sol des chambres, la cuisine aménagée, la peinture, la décoration, les raccordements, les frais de notaire et l’assurance dommages-ouvrage. . Contactez-nous dès aujourd’hui pour personnaliser cette maison selon vos envies et construire le projet de vos rêves !. // Réf. : 120-213558-BEF. Prix terrain : 25 000 €, hors frais d'agence à la charge de l'acquéreur. Ce terrain vous est proposé, par nos partenaires fonciers, dans le cadre d'un projet de construction avec nous. Les informations sur les risques auxquels ce bien est exposé sont disponibles sur le site Géorisques (www.georisques.gouv.fr). Prix maison : 161 653 €.
Rivière
TERRAIN ET MAISONNous vous proposons cette maison neuve, baptisée « »City Cosy » », un véritable havre de paix alliant design, confort et respect de l’environnement. Avec une surface habitable de 86 m², cette maison est idéalement conçue pour répondre aux besoins d’une famille moderne, offrant 3 chambres et un total de 4 pièces, chacune pensée pour maximiser l’espace et la lumière naturelle.Le design de « »City Cosy » » ne laisse personne indifférent. Son architecture moderne, agrémentée d’une lucarne élégante, confère à la maison un caractère unique et une identité visuelle forte. Le car port intégré ajoute une touche pratique et esthétique, tandis que les options les plus plébiscitées telles qu’une pergola, un garage ou un sous-sol sont disponibles pour personnaliser votre maison selon vos désirs et besoins.Confort est le maître-mot de « »City Cosy » ». Chaque pièce est équipée des dernières innovations pour garantir un quotidien agréable et fonctionnel. La maison est conçue pour offrir un cadre de vie exceptionnel, où chaque membre de la famille peut trouver son espace et son intimité.Sur le plan écologique, « »City Cosy » » se distingue par sa basse consommation énergétique, conforme à la norme RE2020, la réglementation thermique la plus exigeante à ce jour. Cette maison est un investissement pour l’avenir, vous permettant de réaliser d’importantes économies d’énergie tout en réduisant votre empreinte carbone. La RT2020 garantit une isolation optimale, une ventilation efficace et l’utilisation de matériaux respectueux de l’environnement.En choisissant « »City Cosy » », vous optez pour une maison qui incarne le design, le confort et l’écologie. C’est l’assurance d’un habitat sain, économique et esthétiquement plaisant, idéal pour une famille cherchant à conjuguer vie moderne et respect de l’environnement. Avec un rapport qualité/prix exceptionnel, « »City Cosy » » est la promesse d’un foyer où il fait bon vivre, une invitation à poser vos valises dans un espace pensé pour le bonheur de tou
Lémeré
TERRAIN ET MAISONNous vous proposons cette maison neuve, baptisée « »Harmonie » », un modèle qui incarne la quintessence de la maison familiale traditionnelle tout en répondant aux exigences contemporaines de confort et d’efficacité énergétique. Conçue pour fusionner convivialité et fonctionnalité, « »Harmonie » » est le choix privilégié de nos clients, devenant ainsi le produit phare de Maisons Concept.Cette élégante demeure de 100 m², dotée de 4 chambres et de 4 pièces au total, est l’incarnation parfaite de l’équilibre entre espace de vie généreux et intimité. Chaque chambre a été pensée pour offrir un cocon de confort et de tranquillité, répondant ainsi aux besoins de chaque membre de la famille.L’architecture d' » »Harmonie » » se distingue par son garage intégré et ses combles aménageables, offrant ainsi une flexibilité remarquable pour s’adapter à vos projets de vie, qu’il s’agisse d’un espace de travail à domicile, d’une salle de jeux pour les enfants ou d’une chambre supplémentaire.L’une des caractéristiques les plus séduisantes de cette maison est son engagement envers la durabilité et l’efficacité énergétique. Conforme à la norme RE2020, « »Harmonie » » est une maison basse consommation qui vous permettra de réduire significativement vos factures d’énergie tout en contribuant à la protection de l’environnement. Cette performance énergétique de pointe, alliée à une isolation optimale et à l’utilisation de matériaux de construction écologiques, fait d' » »Harmonie » » un investissement durable pour votre avenir.L’esthétique d' » »Harmonie » » n’est pas en reste, avec son avancée au niveau du garage et sa toiture à faible pente, elle conserve le charme intemporel de la maison classique tout en y ajoutant une touche d’originalité. Que vous soyez à la recherche de votre première maison ou que vous souhaitiez offrir à votre famille un espace de vie plus adapté, « »Harmonie » » est conçue pour s’adapter à vos rêves et à vos projets.Découvrez « »Harmonie » », où chaque détail a été pensé pour har
Lémeré
TERRAINNous vous proposons à la vente un terrain de 1596 m², situé dans la charmante commune de Lémeré, en Indre-et-Loire, au cœur de la région Centre-Val de Loire. Ce terrain, bien orienté, est idéal pour concrétiser votre projet de construction de maison, offrant ainsi l’opportunité de bâtir un véritable havre de paix selon vos envies et préférences. Bien que non viabilisé, ce terrain dispose d’un potentiel unique pour ceux qui souhaitent réaliser un investissement durable dans un cadre paisible. Lémeré est une commune attractive qui allie tranquillité et accessibilité, nichée entre nature et patrimoine. Vous serez à proximité des commodités locales, ainsi que des attractions remarquables de la région. La beauté des paysages environnants et l’hospitalité de ses lieux de vie constituent un cadre de vie idéal pour les familles et les amoureux de la nature. À seulement quelques minutes des villes voisines, vous bénéficierez également d’un accès facilité aux services essentiels, tout en profitant d’un environnement serein et harmonieux. Ne laissez pas passer cette occasion unique d’acquérir un terrain au fort potentiel dans un cadre exceptionnel. Contactez-nous dès maintenant pour en savoir plus sur cette belle opportunité d’achat ! À noter qu’en tant que constructeur, nous ne sommes pas mandatés pour réaliser la vente de ce terrain.
La Roche-Clermault
TERRAIN ET MAISONÀ Vendre : Terrain Viabilisé de 850 m² à 5 Minutes de Chinon. Offrez-vous la tranquillité et la qualité de vie dans un cadre idyllique ! Situé dans une charmante commune de 500 habitants, ce terrain viabilisé de 850 m² se trouve à seulement 7 kilomètres de Chinon. Caractéristiques du terrain :. Superficie : 850 m². Viabilisé : Oui. Localisation : Petite commune paisible à 5 minutes de Chinon. Points forts :. Environnement calme et de qualité : Profitez d'un cadre de vie serein, loin du tumulte de la ville. Proximité des commodités : À seulement quelques minutes de Chinon, vous bénéficiez de toutes les commodités nécessaires. Opportunité unique : Idéal pour construire la maison de vos rêves dans un environnement privilégié. Ne manquez pas cette occasion exceptionnelle de devenir propriétaire d'un terrain dans un cadre paisible et recherché. Contactez-nous dès maintenant pour plus d'informations et pour organiser une visite !. Est-ce que cela vous convient ? ????. Fonctionnelle et spacieuse, cette maison de plain-pied vous propose un bel espace de vie de 41 m² environ lumineux et traversant. Sa cuisine est ouverte sur le séjour et a un accès direct au cellier. Son espace nuit est composé de trois belles chambres avec rangements, d'une salle de bains et de wc séparés. Pour vous assurer un confort de vie et conformément à la RE2025, nous avons choisi un mode de chauffage par PAC + plancher chauffant, volets roulants électriques. Prix hors fourniture et pose : des appareils sanitaires (sauf système de chauffage et d'eau chaude sanitaire), du carrelage et de la faïence, des revêtements de sol dans les chambres. Hors décoration et aménagement intérieur et peinture. Hors raccordements, frais de notaire et dommage ouvrage. // Réf. : 730-213558-BEF. Prix terrain : 25 000 €, hors frais d'agence à la charge de l'acquéreur. Ce terrain vous est proposé, par nos partenaires fonciers, dans le cadre d'un projet de construction avec nous. Les informations sur les risques auxquels ce bien est exposé sont disponibles sur le site Géorisques (www.georisques.gouv.fr). Prix maison : 125 114 €.
Rivière
TERRAIN ET MAISONNous vous proposons cette maison neuve, baptisée « »City Cosy » », un véritable havre de paix alliant design, confort et respect de l’environnement. Avec une surface habitable de 86 m², cette maison est idéalement conçue pour répondre aux besoins d’une famille moderne, offrant 3 chambres et un total de 4 pièces, chacune pensée pour maximiser l’espace et la lumière naturelle.Le design de « »City Cosy » » ne laisse personne indifférent. Son architecture moderne, agrémentée d’une lucarne élégante, confère à la maison un caractère unique et une identité visuelle forte. Le car port intégré ajoute une touche pratique et esthétique, tandis que les options les plus plébiscitées telles qu’une pergola, un garage ou un sous-sol sont disponibles pour personnaliser votre maison selon vos désirs et besoins.Confort est le maître-mot de « »City Cosy » ». Chaque pièce est équipée des dernières innovations pour garantir un quotidien agréable et fonctionnel. La maison est conçue pour offrir un cadre de vie exceptionnel, où chaque membre de la famille peut trouver son espace et son intimité.Sur le plan écologique, « »City Cosy » » se distingue par sa basse consommation énergétique, conforme à la norme RE2020, la réglementation thermique la plus exigeante à ce jour. Cette maison est un investissement pour l’avenir, vous permettant de réaliser d’importantes économies d’énergie tout en réduisant votre empreinte carbone. La RT2020 garantit une isolation optimale, une ventilation efficace et l’utilisation de matériaux respectueux de l’environnement.En choisissant « »City Cosy » », vous optez pour une maison qui incarne le design, le confort et l’écologie. C’est l’assurance d’un habitat sain, économique et esthétiquement plaisant, idéal pour une famille cherchant à conjuguer vie moderne et respect de l’environnement. Avec un rapport qualité/prix exceptionnel, « »City Cosy » » est la promesse d’un foyer où il fait bon vivre, une invitation à poser vos valises dans un espace pensé pour le bonheur de tou
Cinais
TERRAIN ET MAISON« Nous vous proposons cette maison neuve, modèle « »Essentiel » », conçue pour allier fonctionnalité, esthétique et performance énergétique. Avec une surface habitable de 94 m², cette maison à étage offre un cadre de vie idéal pour toute la famille. Elle se compose de 4 chambres et totalise 4 pièces, offrant ainsi un espace de vie confortable et bien organisé.**Un prix très attractif**Le modèle Dynamique se distingue par son excellent rapport qualité/prix. Pensée pour répondre à toutes vos attentes, cette maison vous garantit un produit de qualité, fonctionnel et agréable à vivre. Malgré son prix très compétitif, elle ne fait aucun compromis sur la qualité et répond aux dernières normes en matière d’isolation et d’économie d’énergie, conformément à la réglementation environnementale RE2020. Vous bénéficierez ainsi d’une maison basse consommation, vous permettant de réaliser d’importantes économies sur vos factures énergétiques.**Une maison modulable et personnalisable**Le modèle Dynamique offre la possibilité de choisir entre des combles aménagés ou aménageables, selon vos besoins et vos préférences. Vous avez également la possibilité d’ajouter un garage accolé, avec un choix de toit plat ou mono-pente, pour répondre au mieux à vos attentes en termes d’esthétique et de fonctionnalité. La personnalisation est au cœur de notre proposition, vous permettant de sélectionner la couleur de vos tuiles, de vos menuiseries en aluminium, ainsi que la couleur de votre façade pour une maison qui vous ressemble. Les options les plus plébiscitées, telles que la domotique ou l’enduit bi-ton, sont également disponibles pour vous offrir un confort de vie optimal.Cette maison neuve est la solution idéale pour les primo-accédants désireux de s’installer dans un logement basse consommation, respectueux de l’environnement et conforme aux exigences de la RE2020. Avec le modèle Dynamique, vous faites le choix d’un habitat durable, économique et entièrement adapté à vos besoins.N’at
Marçay
TERRAINDécouvrez ce terrain séduisant de 1178 m² situé à Marçay, au cœur de l’Indre-et-Loire, idéal pour votre projet de construction de maison. Non viabilisé, ce terrain offre une toile vierge pour réaliser la maison de vos rêves, dans un cadre paisible et accueillant. Profitez d’un espace généreux qui vous permettra de concevoir un habitat sur-mesure, tout en vous imprégnant de l’atmosphère unique de cette charmante commune. Marçay est une ville au riche patrimoine, située dans la région Centre-Val de Loire, à proximité de nombreuses attractions locales. Entre la beauté des paysages environnants et les commodités de la ville, vous y trouverez tout ce dont vous avez besoin : commerces, écoles et services de proximité, ainsi que des activités de loisirs variées. Ne manquez pas l’occasion de vivre dans un environnement où nature et convivialité se rencontrent, le tout à quelques pas des joyaux historiques que la région a à offrir. Ce terrain représente une opportunité d’achat unique pour tous ceux qui envisagent de construire dans un cadre enchanteur. N’attendez plus pour saisir cette belle occasion d’investir dans votre futur ! À noter qu’en tant que constructeur, nous ne sommes pas mandatés pour réaliser la vente de ce terrain.
Assay
TERRAINÀ vendre, magnifique terrain non viabilisé de 2068 m² situé dans la charmante commune d’Assay, au cœur de l’Indre-et-Loire, dans la région Centre-Val de Loire. Ce terrain spacieux offre une opportunité unique pour concrétiser votre projet de construction de maison, dans un environnement paisible et agréable, propice à la vie familiale. Les caractéristiques de ce terrain vous permettent de laisser libre cours à votre imagination pour bâtir la maison de vos rêves. Assay, un petit trésor de la région, se distingue par son atmosphère conviviale et ses paysages pittoresques. Idéalement situé, ce terrain se trouve à proximité des commodités essentielles, tout en offrant un cadre de vie serein. La ville bénéficie d’un accès facile aux attractions locales, telles que les charmantes balades en pleine nature et les activités culturelles qui ponctuent la vie quotidienne de ses habitants. En choisissant ce terrain, vous vous offrez un cadre idéal qui combine tranquillité et proximité des services. Ne manquez pas cette occasion d’acquérir un terrain au potentiel remarquable pour concrétiser vos ambitions immobilières. Contactez-nous dès aujourd’hui pour explorer davantage cette opportunité unique. À noter qu’en tant que constructeur, nous ne sommes pas mandatés pour réaliser la vente de ce terrain.
L’actualité immobilière à Marçay
27/11/2023
02/11/2023
30/10/2023
20/10/2023
16/10/2023
16/10/2023