Maison à construire à Montbazon (37250)
Images
Description
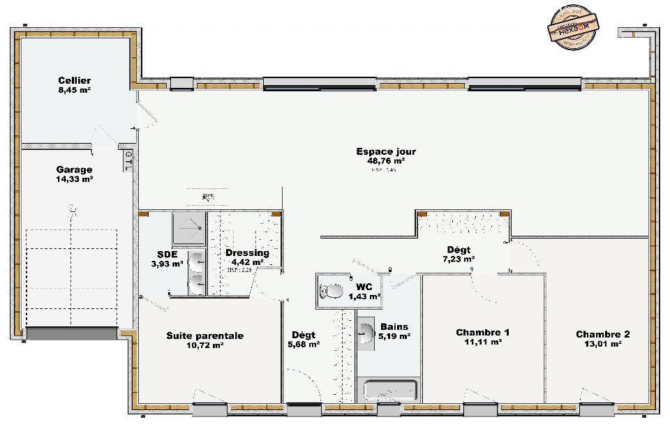
Loft 120 : L'harmonie du bois et de la lumière
Imaginez un espace de vie où la chaleur du bois se marie à la luminosité naturelle, créant une atmosphère de sérénité et de bien-être. Le Loft 120, avec ses 120 m² de plain-pied, est conçu pour vous offrir un confort absolu au quotidien.
Dès l'entrée de 6 m², vous serez enveloppé par une sensation d'espace et de douceur. La pièce de vie de 49 m², véritable coeur de la maison, s'ouvre sur l'extérieur grâce à de larges baies vitrées, laissant entrer la lumière et offrant une vue apaisante sur votre jardin. L'ossature bois des murs apporte une isolation naturelle, garantissant une température agréable en toute saison et une atmosphère chaleureuse.
Les trois chambres, conçues comme de véritables cocons, invitent à la détente et au repos. Les deux salles d'eau, modernes et fonctionnelles, sont pensées pour votre confort. Le garage intégré de 14 m² offre un espace pratique pour votre véhicule et vos rangements.
Le Loft 120 est bien plus qu'une maison, c'est un refuge où vous pourrez vous ressourcer et profiter de chaque instant. L'alliance du bois, de la lumière et des espaces généreux crée une atmosphère unique, propice au bien-être et à la convivialité.
CONSTRUCTIONS IDEALE DEMEURE a sélectionné avec un partenaire foncier un terrain pour construire cette maison.
Logement susceptibles de vous intéresser
Nous vous proposons de découvrir aussi cette sélection de logements situés à moins de 10km de Montbazon et qui seraient susceptibles de vous intéresser.
Chambray-lès-Tours
TERRAIN ET MAISONDEVENEZ PROPRIÉTAIRE DE VOTRE MAISON SUR-MESURE – OPPORTUNITE A SAISIR Découvrez cette demeure conçue et bâtie avec tout le savoir-faire des Maisons de Stéphanie, constructeur reconnu pour ses 30 années d’expérience et son exigence de qualité.Chaque détail est pensé pour votre confort et vos envies : une architecture élégante, des espaces lumineux et fonctionnels, et la possibilité d’adapter les plans selon votre mode de vie.Saisissez dès maintenant l’opportunité de faire de cette maison votre nouveau lieu de vie !Contactez Maëlle VECHTE dès maintenant au *2 47 48 09 30 pour plus d’informations et concrétiser votre projet.
Artannes-sur-Indre
TERRAIN ET MAISONTerrain en lotissement de 567 m² dans un cadre calme et naturel, à 800 mètres du bourg, de ses commerces et services et à quelques pas de l’école primaire Jean Guéhénno, du gymnase et du supermarché. Terrain déjà viabilisé et hors secteur des bâtiments de France. Cette maison familiale moderne séduit par son architecture équilibrée et sa toiture à quatre pans, qui lui confèrent à la fois élégance et caractère. Au rez-de-chaussée, elle offre une vaste pièce de vie lumineuse ouverte sur la terrasse, idéale pour les moments de convivialité. On y trouve également une chambre avec dressing et salle d'eau privative, une cuisine fonctionnelle avec cellier, ainsi qu'un garage attenant. L'étage accueille trois chambres spacieuses, une salle de bains et un WC indépendant, offrant à chacun son espace de confort. Ce projet, entièrement personnalisable, allie modernité, praticité et bien-être familial, pour une maison aussi belle à vivre qu'à regarder. Pour vous assurer un confort de vie et conformément à la RE2025, nous avons choisi un mode de chauffage par PAC + plancher chauffant, volets roulants électriques. Prix hors décoration, revêtement de sol dans les chambres, frais de notaire, raccordements, dommage ouvrage. (Piscine non contractuelle et non comprise dans le prix. ). // Réf. : 2679-213498-JCT. Prix terrain : 87 500 €, hors frais d'agence à la charge de l'acquéreur. Ce terrain vous est proposé, par nos partenaires fonciers, dans le cadre d'un projet de construction avec nous. Les informations sur les risques auxquels ce bien est exposé sont disponibles sur le site Géorisques (www.georisques.gouv.fr). Prix maison : 300 000 €.
Artannes-sur-Indre
TERRAINTerrain en lotissement de 660 m² dans un cadre calme et naturel, à 800 mètres du bourg, de ses commerces et services et à quelques pas de l’école primaire Jean Guéhénno, du gymnase et du supermarché. Terrain déjà viabilisé et hors secteur des bâtiments de France. // Réf. : T213499. Prix terrain : 99 000 €, hors frais d'agence et de notaire à la charge de l'acquéreur. Ce terrain vous est proposé, par nos partenaires fonciers, dans le cadre d'un projet de construction avec nous. Les informations sur les risques auxquels ce bien est exposé sont disponibles sur le site Géorisques (www.georisques.gouv.fr).
Artannes-sur-Indre
TERRAINTerrain en lotissement de 453 m² dans un cadre calme et naturel, à 800 mètres du bourg, de ses commerces et services et à quelques pas de l’école primaire Jean Guéhénno, du gymnase et du supermarché. Terrain déjà viabilisé et hors secteur des bâtiments de France. // Réf. : T213500. Prix terrain : 72 500 €, hors frais d'agence et de notaire à la charge de l'acquéreur. Ce terrain vous est proposé, par nos partenaires fonciers, dans le cadre d'un projet de construction avec nous. Les informations sur les risques auxquels ce bien est exposé sont disponibles sur le site Géorisques (www.georisques.gouv.fr).
Saint-Branchs
TERRAIN ET MAISONDans un cadre champêtre, dans un environnement préservé, terrain à viabiliser proche toutes commodités et écoles. Votre maison, votre signature ! Ici, tout est possible : un vaste salon-séjour lumineux, une cuisine à façonner selon vos envies, et une chambre en rez-de-chaussée pour plus de confort. À l’étage, trois chambres et une salle de bain créent un espace nuit chaleureux et fonctionnel. Besoin d’un coin télétravail, d’un dressing ou d’un grenier aménageable ? Adaptez chaque m² à votre mode de vie !. Créez un espace qui vous ressemble, imaginez votre futur chez-vous !. Pour un confort optimal et conforme à la RE2025, cette maison dispose d’une PAC avec plancher chauffant, radiateurs à l’étage et volets roulants électriques. À noter : Le prix indiqué exclut les revêtements de sol des chambres, la cuisine aménagée, la peinture, la décoration, les raccordements, les frais de notaire et l’assurance dommages-ouvrage. . // Réf. : 126-213581-JFB. Prix terrain : 86 000 €, hors frais d'agence à la charge de l'acquéreur. Ce terrain vous est proposé, par nos partenaires fonciers, dans le cadre d'un projet de construction avec nous. Les informations sur les risques auxquels ce bien est exposé sont disponibles sur le site Géorisques (www.georisques.gouv.fr). Prix maison : 187 780 €.
Artannes-sur-Indre
TERRAIN ET MAISONTerrain en lotissement de 559 m² dans un cadre calme et naturel, à 800 mètres du bourg, de ses commerces et services et à quelques pas de l’école primaire Jean Guéhénno, du gymnase et du supermarché. Terrain déjà viabilisé et hors secteur des bâtiments de France. Cette maison familiale moderne séduit par son architecture équilibrée et sa toiture à quatre pans, qui lui confèrent à la fois élégance et caractère. Au rez-de-chaussée, elle offre une vaste pièce de vie lumineuse ouverte sur la terrasse, idéale pour les moments de convivialité. On y trouve également une chambre avec dressing et salle d'eau privative, une cuisine fonctionnelle avec cellier, ainsi qu'un garage attenant. L'étage accueille trois chambres spacieuses, une salle de bains et un WC indépendant, offrant à chacun son espace de confort. Ce projet, entièrement personnalisable, allie modernité, praticité et bien-être familial, pour une maison aussi belle à vivre qu'à regarder. Pour vous assurer un confort de vie et conformément à la RE2025, nous avons choisi un mode de chauffage par PAC + plancher chauffant, volets roulants électriques. Prix hors décoration, revêtement de sol dans les chambres, frais de notaire, raccordements, dommage ouvrage. (Piscine non contractuelle et non comprise dans le prix. ). // Réf. : 2679-213489-JCT. Prix terrain : 86 500 €, hors frais d'agence à la charge de l'acquéreur. Ce terrain vous est proposé, par nos partenaires fonciers, dans le cadre d'un projet de construction avec nous. Les informations sur les risques auxquels ce bien est exposé sont disponibles sur le site Géorisques (www.georisques.gouv.fr). Prix maison : 300 000 €.
Artannes-sur-Indre
TERRAIN ET MAISONTerrain en lotissement de 542 m² dans un cadre calme et naturel, à 800 mètres du bourg, de ses commerces et services et à quelques pas de l’école primaire Jean Guéhénno, du gymnase et du supermarché. Terrain déjà viabilisé et hors secteur des bâtiments de France. Cette maison familiale moderne séduit par son architecture équilibrée et sa toiture à quatre pans, qui lui confèrent à la fois élégance et caractère. Au rez-de-chaussée, elle offre une vaste pièce de vie lumineuse ouverte sur la terrasse, idéale pour les moments de convivialité. On y trouve également une chambre avec dressing et salle d'eau privative, une cuisine fonctionnelle avec cellier, ainsi qu'un garage attenant. L'étage accueille trois chambres spacieuses, une salle de bains et un WC indépendant, offrant à chacun son espace de confort. Ce projet, entièrement personnalisable, allie modernité, praticité et bien-être familial, pour une maison aussi belle à vivre qu'à regarder. Pour vous assurer un confort de vie et conformément à la RE2025, nous avons choisi un mode de chauffage par PAC + plancher chauffant, volets roulants électriques. Prix hors décoration, revêtement de sol dans les chambres, frais de notaire, raccordements, dommage ouvrage. (Piscine non contractuelle et non comprise dans le prix. ). // Réf. : 2679-213497-JCT. Prix terrain : 85 500 €, hors frais d'agence à la charge de l'acquéreur. Ce terrain vous est proposé, par nos partenaires fonciers, dans le cadre d'un projet de construction avec nous. Les informations sur les risques auxquels ce bien est exposé sont disponibles sur le site Géorisques (www.georisques.gouv.fr). Prix maison : 300 000 €.
Chambray-lès-Tours
TERRAINEXCLUSIVITE MAISONS STEPHANIE – TERRAIN À BÂTIR – CHAMBRAY LES TOURS (37170)Proximité immédiate de TOURS et de toutes les commodités, découvrez ce terrain à bâtir idéal pour donner vie à votre projet de construction.Situé dans un environnement privilégié, ne tardez pas à visiter ce terrain RARE sur le secteur.Avec plus de 30 ans d’expérience, Maisons Stéphanie, constructeur de maisons individuelles, vous accompagne avec soin dans la conception de votre projet sur-mesure.Contactez Maëlle VECHTE dès aujourd’hui au *2 47 48 09 30 pour plus d’informations et concrétiser votre projet.
Chambray-lès-Tours
TERRAIN ET MAISONDEVENEZ PROPRIÉTAIRE DE VOTRE MAISON SUR-MESURE – OPPORTUNITE A SAISIR Découvrez cette demeure conçue et bâtie avec tout le savoir-faire des Maisons de Stéphanie, constructeur reconnu pour ses 30 années d’expérience et son exigence de qualité.Chaque détail est pensé pour votre confort et vos envies : une architecture élégante, des espaces lumineux et fonctionnels, et la possibilité d’adapter les plans selon votre mode de vie.Saisissez dès maintenant l’opportunité de faire de cette maison votre nouveau lieu de vie !Contactez Maëlle VECHTE dès maintenant au *2 47 48 09 30 pour plus d’informations et concrétiser votre projet
L’actualité immobilière à Montbazon
27/11/2023
02/11/2023
30/10/2023
20/10/2023
16/10/2023
16/10/2023