Maison à construire à Montbazon (37250)
Images
Description
Votre future maison sur mesure : élégance, confort et modernité
Découvrez cette maison à construire, pensée pour offrir des espaces de vie lumineux, généreux et fonctionnels.
Chaque détail a été soigneusement conçu pour répondre aux attentes d'une vie confortable et harmonieuse. Au rez-de-chaussée :
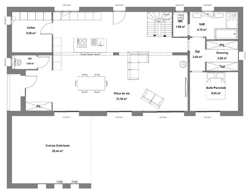
Un grand espace de vie ouvert de 70 m², idéal pour des moments de convivialité, avec une entrée dégagée équipée de rangements.
Accès direct à une cuisine d'extérieur de 28 m², parfaite pour profiter des repas en plein air.
Une suite parentale avec dressing et salle de bain, alliant intimité et confort.
Les espaces de vie donnent sur une terrasse ensoleillée, offrant une possibilité de piscine pour des instants de détente.
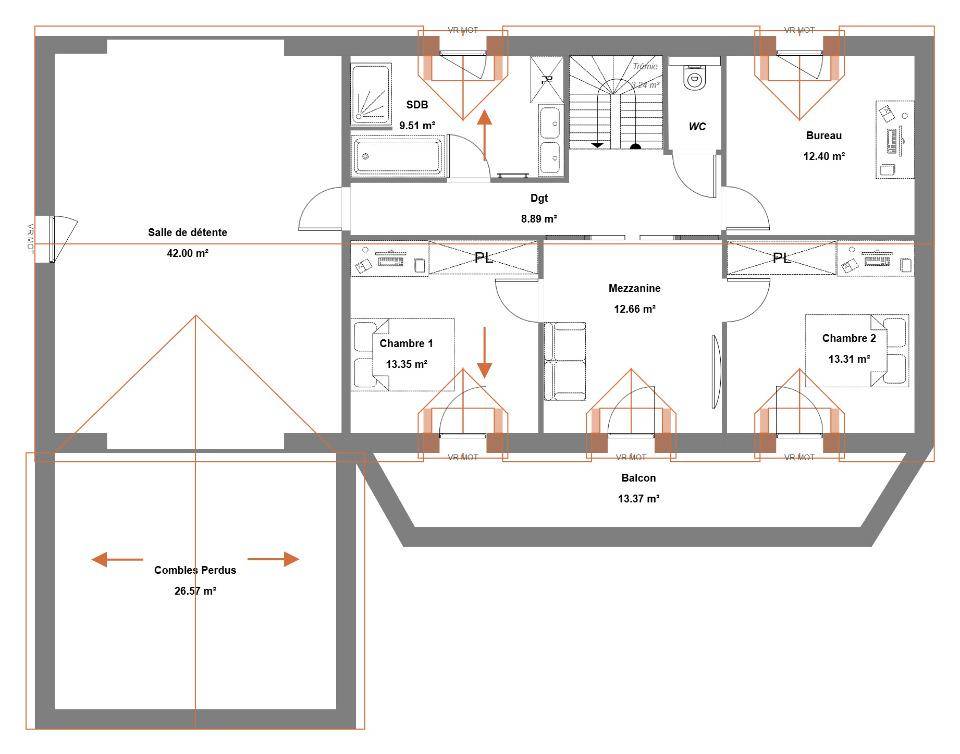
À l'étage :
Une salle de détente modulable de 20 m², transformable selon vos besoins en salle de sport, bureau ou espace de loisirs.
Trois chambres avec accès à un balcon commun, offrant un bel espace de partage et une vue dégagée.
Une mezzanine de 12 m² surplombant le séjour, ajoutant une touche de style à l'ensemble.
Une salle de bain de 10 m², spacieuse et moderne. Cette maison allie charme régional et touches contemporaines, tout en offrant des espaces intérieurs et extérieurs où la lumière est mise à l'honneur.
Cette maison allie charme régional et touches contemporaines, tout en offrant des espaces intérieurs et extérieurs où la lumière est mise à l'honneur.
Pour plus de renseignement, contactez moi au (Numéro supprimé)
CONSTRUCTIONS IDEALE DEMEURE a sélectionné avec un partenaire foncier un terrain pour construire cette maison.
Logement susceptibles de vous intéresser
Nous vous proposons de découvrir aussi cette sélection de logements situés à moins de 10km de Montbazon et qui seraient susceptibles de vous intéresser.
Chambray-lès-Tours
TERRAIN ET MAISONDEVENEZ PROPRIÉTAIRE DE VOTRE MAISON SUR-MESURE – OPPORTUNITE A SAISIR Découvrez cette demeure conçue et bâtie avec tout le savoir-faire des Maisons de Stéphanie, constructeur reconnu pour ses 30 années d’expérience et son exigence de qualité.Chaque détail est pensé pour votre confort et vos envies : une architecture élégante, des espaces lumineux et fonctionnels, et la possibilité d’adapter les plans selon votre mode de vie.Saisissez dès maintenant l’opportunité de faire de cette maison votre nouveau lieu de vie !Contactez Maëlle VECHTE dès maintenant au *2 47 48 09 30 pour plus d’informations et concrétiser votre projet.
Artannes-sur-Indre
TERRAIN ET MAISONTerrain en lotissement de 567 m² dans un cadre calme et naturel, à 800 mètres du bourg, de ses commerces et services et à quelques pas de l’école primaire Jean Guéhénno, du gymnase et du supermarché. Terrain déjà viabilisé et hors secteur des bâtiments de France. Cette maison familiale moderne séduit par son architecture équilibrée et sa toiture à quatre pans, qui lui confèrent à la fois élégance et caractère. Au rez-de-chaussée, elle offre une vaste pièce de vie lumineuse ouverte sur la terrasse, idéale pour les moments de convivialité. On y trouve également une chambre avec dressing et salle d'eau privative, une cuisine fonctionnelle avec cellier, ainsi qu'un garage attenant. L'étage accueille trois chambres spacieuses, une salle de bains et un WC indépendant, offrant à chacun son espace de confort. Ce projet, entièrement personnalisable, allie modernité, praticité et bien-être familial, pour une maison aussi belle à vivre qu'à regarder. Pour vous assurer un confort de vie et conformément à la RE2025, nous avons choisi un mode de chauffage par PAC + plancher chauffant, volets roulants électriques. Prix hors décoration, revêtement de sol dans les chambres, frais de notaire, raccordements, dommage ouvrage. (Piscine non contractuelle et non comprise dans le prix. ). // Réf. : 2679-213498-JCT. Prix terrain : 87 500 €, hors frais d'agence à la charge de l'acquéreur. Ce terrain vous est proposé, par nos partenaires fonciers, dans le cadre d'un projet de construction avec nous. Les informations sur les risques auxquels ce bien est exposé sont disponibles sur le site Géorisques (www.georisques.gouv.fr). Prix maison : 300 000 €.
Artannes-sur-Indre
TERRAINTerrain en lotissement de 660 m² dans un cadre calme et naturel, à 800 mètres du bourg, de ses commerces et services et à quelques pas de l’école primaire Jean Guéhénno, du gymnase et du supermarché. Terrain déjà viabilisé et hors secteur des bâtiments de France. // Réf. : T213499. Prix terrain : 99 000 €, hors frais d'agence et de notaire à la charge de l'acquéreur. Ce terrain vous est proposé, par nos partenaires fonciers, dans le cadre d'un projet de construction avec nous. Les informations sur les risques auxquels ce bien est exposé sont disponibles sur le site Géorisques (www.georisques.gouv.fr).
Artannes-sur-Indre
TERRAINTerrain en lotissement de 453 m² dans un cadre calme et naturel, à 800 mètres du bourg, de ses commerces et services et à quelques pas de l’école primaire Jean Guéhénno, du gymnase et du supermarché. Terrain déjà viabilisé et hors secteur des bâtiments de France. // Réf. : T213500. Prix terrain : 72 500 €, hors frais d'agence et de notaire à la charge de l'acquéreur. Ce terrain vous est proposé, par nos partenaires fonciers, dans le cadre d'un projet de construction avec nous. Les informations sur les risques auxquels ce bien est exposé sont disponibles sur le site Géorisques (www.georisques.gouv.fr).
Saint-Branchs
TERRAIN ET MAISONDans un cadre champêtre, dans un environnement préservé, terrain à viabiliser proche toutes commodités et écoles. Votre maison, votre signature ! Ici, tout est possible : un vaste salon-séjour lumineux, une cuisine à façonner selon vos envies, et une chambre en rez-de-chaussée pour plus de confort. À l’étage, trois chambres et une salle de bain créent un espace nuit chaleureux et fonctionnel. Besoin d’un coin télétravail, d’un dressing ou d’un grenier aménageable ? Adaptez chaque m² à votre mode de vie !. Créez un espace qui vous ressemble, imaginez votre futur chez-vous !. Pour un confort optimal et conforme à la RE2025, cette maison dispose d’une PAC avec plancher chauffant, radiateurs à l’étage et volets roulants électriques. À noter : Le prix indiqué exclut les revêtements de sol des chambres, la cuisine aménagée, la peinture, la décoration, les raccordements, les frais de notaire et l’assurance dommages-ouvrage. . // Réf. : 126-213581-JFB. Prix terrain : 86 000 €, hors frais d'agence à la charge de l'acquéreur. Ce terrain vous est proposé, par nos partenaires fonciers, dans le cadre d'un projet de construction avec nous. Les informations sur les risques auxquels ce bien est exposé sont disponibles sur le site Géorisques (www.georisques.gouv.fr). Prix maison : 187 780 €.
Artannes-sur-Indre
TERRAIN ET MAISONTerrain en lotissement de 559 m² dans un cadre calme et naturel, à 800 mètres du bourg, de ses commerces et services et à quelques pas de l’école primaire Jean Guéhénno, du gymnase et du supermarché. Terrain déjà viabilisé et hors secteur des bâtiments de France. Cette maison familiale moderne séduit par son architecture équilibrée et sa toiture à quatre pans, qui lui confèrent à la fois élégance et caractère. Au rez-de-chaussée, elle offre une vaste pièce de vie lumineuse ouverte sur la terrasse, idéale pour les moments de convivialité. On y trouve également une chambre avec dressing et salle d'eau privative, une cuisine fonctionnelle avec cellier, ainsi qu'un garage attenant. L'étage accueille trois chambres spacieuses, une salle de bains et un WC indépendant, offrant à chacun son espace de confort. Ce projet, entièrement personnalisable, allie modernité, praticité et bien-être familial, pour une maison aussi belle à vivre qu'à regarder. Pour vous assurer un confort de vie et conformément à la RE2025, nous avons choisi un mode de chauffage par PAC + plancher chauffant, volets roulants électriques. Prix hors décoration, revêtement de sol dans les chambres, frais de notaire, raccordements, dommage ouvrage. (Piscine non contractuelle et non comprise dans le prix. ). // Réf. : 2679-213489-JCT. Prix terrain : 86 500 €, hors frais d'agence à la charge de l'acquéreur. Ce terrain vous est proposé, par nos partenaires fonciers, dans le cadre d'un projet de construction avec nous. Les informations sur les risques auxquels ce bien est exposé sont disponibles sur le site Géorisques (www.georisques.gouv.fr). Prix maison : 300 000 €.
Artannes-sur-Indre
TERRAIN ET MAISONTerrain en lotissement de 542 m² dans un cadre calme et naturel, à 800 mètres du bourg, de ses commerces et services et à quelques pas de l’école primaire Jean Guéhénno, du gymnase et du supermarché. Terrain déjà viabilisé et hors secteur des bâtiments de France. Cette maison familiale moderne séduit par son architecture équilibrée et sa toiture à quatre pans, qui lui confèrent à la fois élégance et caractère. Au rez-de-chaussée, elle offre une vaste pièce de vie lumineuse ouverte sur la terrasse, idéale pour les moments de convivialité. On y trouve également une chambre avec dressing et salle d'eau privative, une cuisine fonctionnelle avec cellier, ainsi qu'un garage attenant. L'étage accueille trois chambres spacieuses, une salle de bains et un WC indépendant, offrant à chacun son espace de confort. Ce projet, entièrement personnalisable, allie modernité, praticité et bien-être familial, pour une maison aussi belle à vivre qu'à regarder. Pour vous assurer un confort de vie et conformément à la RE2025, nous avons choisi un mode de chauffage par PAC + plancher chauffant, volets roulants électriques. Prix hors décoration, revêtement de sol dans les chambres, frais de notaire, raccordements, dommage ouvrage. (Piscine non contractuelle et non comprise dans le prix. ). // Réf. : 2679-213497-JCT. Prix terrain : 85 500 €, hors frais d'agence à la charge de l'acquéreur. Ce terrain vous est proposé, par nos partenaires fonciers, dans le cadre d'un projet de construction avec nous. Les informations sur les risques auxquels ce bien est exposé sont disponibles sur le site Géorisques (www.georisques.gouv.fr). Prix maison : 300 000 €.
Chambray-lès-Tours
TERRAINEXCLUSIVITE MAISONS STEPHANIE – TERRAIN À BÂTIR – CHAMBRAY LES TOURS (37170)Proximité immédiate de TOURS et de toutes les commodités, découvrez ce terrain à bâtir idéal pour donner vie à votre projet de construction.Situé dans un environnement privilégié, ne tardez pas à visiter ce terrain RARE sur le secteur.Avec plus de 30 ans d’expérience, Maisons Stéphanie, constructeur de maisons individuelles, vous accompagne avec soin dans la conception de votre projet sur-mesure.Contactez Maëlle VECHTE dès aujourd’hui au *2 47 48 09 30 pour plus d’informations et concrétiser votre projet.
Chambray-lès-Tours
TERRAIN ET MAISONDEVENEZ PROPRIÉTAIRE DE VOTRE MAISON SUR-MESURE – OPPORTUNITE A SAISIR Découvrez cette demeure conçue et bâtie avec tout le savoir-faire des Maisons de Stéphanie, constructeur reconnu pour ses 30 années d’expérience et son exigence de qualité.Chaque détail est pensé pour votre confort et vos envies : une architecture élégante, des espaces lumineux et fonctionnels, et la possibilité d’adapter les plans selon votre mode de vie.Saisissez dès maintenant l’opportunité de faire de cette maison votre nouveau lieu de vie !Contactez Maëlle VECHTE dès maintenant au *2 47 48 09 30 pour plus d’informations et concrétiser votre projet
L’actualité immobilière à Montbazon
27/11/2023
02/11/2023
30/10/2023
20/10/2023
16/10/2023
16/10/2023