Terrain et maison à vendre à Montbazon (37250)
Montbazon
TERRAIN ET MAISONNous vous proposons cette maison neuve, modèle « »Access » », une perle de notre gamme Primaciel, spécialement conçue pour les primo-accédants à la recherche d’un habitat à la fois économique et innovant. Avec son incroyable rapport qualité/prix, l’Access se distingue par sa conception astucieuse et son engagement envers une isolation conforme aux dernières normes, le tout à un prix maîtrisé. Cette maison de plain-pied s’étend sur 73 m² et est judicieusement agencée pour maximiser le confort et l’espace de vie. Elle se compose de 4 pièces, dont 3 chambres spacieuses de plus de 9 m² chacune, promettant intimité et tranquillité pour tous les membres de la famille. Le cœur de cette maison est sans doute son espace de vie lumineux de près de 35 m², comprenant un séjour et une cuisine ouverte, idéal pour partager des moments conviviaux. Un cellier attenant de 3.5 m² offre un espace de rangement supplémentaire très pratique, tandis qu’une salle de bain fonctionnelle de près de 5 m² et des WC séparés viennent compléter l’ensemble.L’Access est également conçu pour évoluer avec vos besoins, grâce à ses combles perdus et ses combles aménageables, vous offrant la possibilité d’agrandir votre espace de vie selon vos envies. Les options les plus plébiscitées, telles qu’un Car Port ou un garage accolé, sont disponibles pour répondre à toutes vos attentes en matière de stationnement et de stockage.Mais ce qui distingue véritablement l’Access, c’est son engagement envers la durabilité et l’économie d’énergie. Cette maison est basse consommation et strictement conforme à la réglementation environnementale RE2020, vous assurant ainsi des économies significatives sur vos factures d’énergie tout en contribuant à la protection de l’environnement.En choisissant le modèle Access, vous optez pour une maison à prix malin, sans compromis sur la qualité et le confort, tout en étant assuré de vivre dans un logement respectueux de l’environnement. Une opportunité à ne pas manquer pour réal
Montbazon
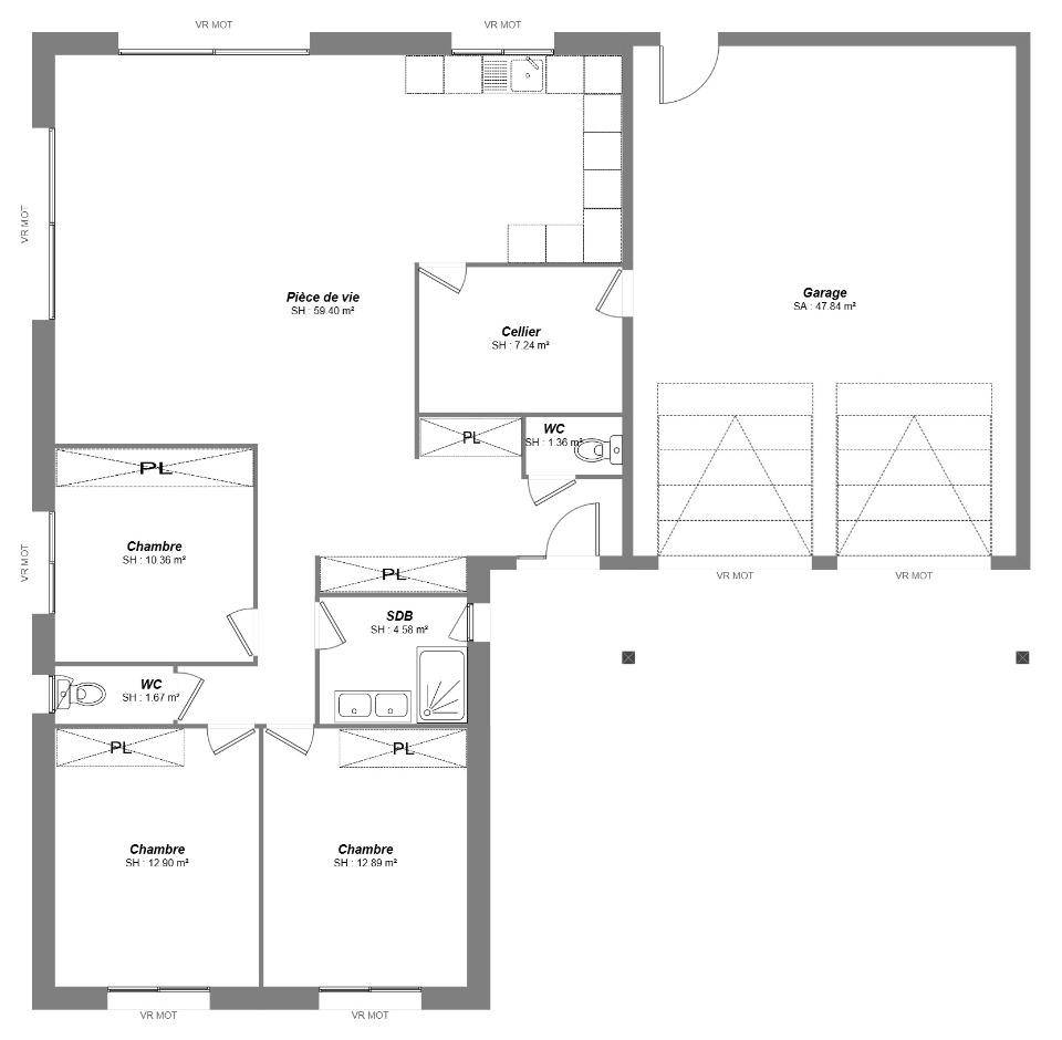
TERRAIN ET MAISONDécouvrez cette magnifique maison de plain-pied, idéale pour les familles, offrant un espace de vie généreux et des prestations de qualité.Caractéristiques principales :- Superficie : 110 m²- Pièce de vie lumineuse de 59 m² avec double exposition, parfaite pour accueillir vos moments en famille ou entre amis- 3 chambres confortables, chacune équipée de placards intégrés pour un rangement optimal- 2 WC séparés pour plus de praticité- Grand cellier attenant, idéal pour le stockage et l’organisation- Double garage, offrant un espace sécurisé pour vos véhicules et du rangement supplémentaireCette maison est située dans un quartier calme et recherché, à proximité des commodités et des écoles. Ne manquez pas cette opportunité de devenir propriétaire d’un bien spacieux et fonctionnel !Je reste disponible pour toutes demandes de renseignements, n’hésitez pas me contacter : Stéphane Digneton : (Numéro supprimé).CONSTRUCTIONS IDEALE DEMEURE a sélectionné avec un partenaire foncier un terrain pour construire cette maison.
Montbazon
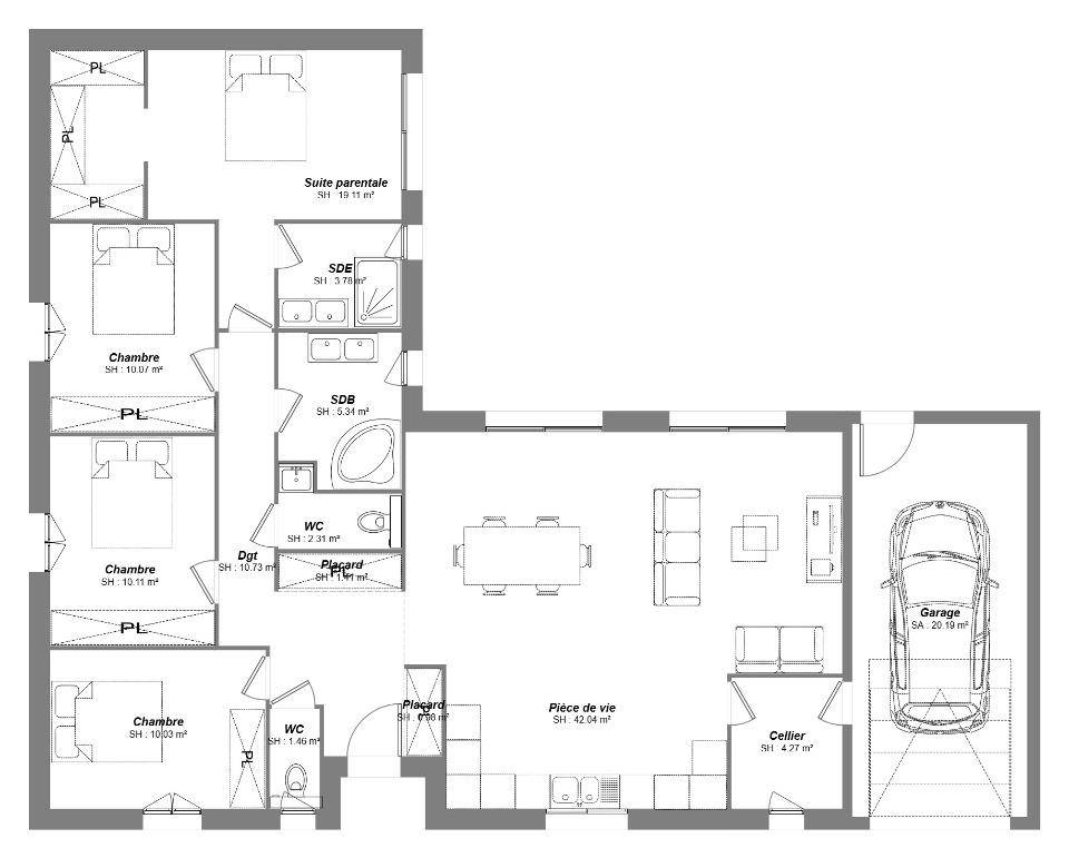
TERRAIN ET MAISONSublime villa contemporaine sur étage d’une superficie globale de 149m².Au rez-de-chaussée, vous trouverez un double garage spacieux, une belle pièce de vie de 66m², une immense suite parentale avec dressing et salle d’eau privative, un bureau, un cellier et un WC.A l’étage, vous trouverez deux grandes chambres ainsi qu’une belle salle de bain et WC.Concernant les prestations de la maison, vous retrouverez une pompe à chaleur couplée avec un plancher chauffant, des menuiseries de couleur en aluminium, un plancher béton, toiture toit plat…À vendre beau terrain constructible de 1000 m², situé à Montbazon, dans un environnement calme et agréable.Belle façade, idéal pour accueillir une maison familiale. Terrain viabilisé (eau, électricité, tout-à-l’égout, EDF, EP) Proche des commerces, écoles et transports.Prix : 165000 €Pour plus d’informations ou convenir d’une visite, n’hésitez à me contacter directement au (Numéro supprimé).
Montbazon
TERRAIN ET MAISONBelle maison moderne de plain-pied en H d’une superficie totale de 144m².Retrouverez dans cette jolie maison un grand garage de 20m², une pièce à vivre spacieuse de 55m², un ensemble de 4 chambres dont une grande suite parentale avec dressing avec un espace enfant à l’opposé, une salle d’eau supplémentaire ainsi d’un cellier et un WC.Le point fort de ce projet est certainement son architecture mélangeant les toitures 4 pans et les décrochés en toit plat.Concernant les prestations globales, vous retrouverez une pompe à chaleur couplée à un plancher chauffant, des menuiseries de couleur en aluminium, des combles aménageables, toiture 4 pans à faible pente…À vendre beau terrain constructible de 1000 m², situé à Montbazon, dans un environnement calme et agréable.Belle façade, idéal pour accueillir une maison familiale. Terrain viabilisé (eau, électricité, tout-à-l’égout, EDF, EP) Proche des commerces, écoles et transports.Prix : 165000 €Pour plus d’informations ou convenir d’une visite, n’hésitez à me contacter directement au (Numéro supprimé).
Montbazon
TERRAIN ET MAISONCette maison de 130 mètres carrés incarne l’élégance moderne et le confort optimal. Dès que l’on pénètre à l’intérieur, on est accueilli par un vaste salon lumineux, où le design épuré et les grandes baies vitrées créent une atmosphère apaisante. La cuisine ouverte adjacente offre un espace idéal pour les réunions familiales et la préparation de délicieux repas.Au rez-de-chaussée, une belle suite parentale offre un havre de paix avec sa salle de bains privative, garantissant intimité et confort. Le garage attenant est accessible depuis l’intérieur, et offre un espace pratique pour le stationnement et le rangement.À l’étage, trois belles chambres lumineuses attendent les membres de la famille, chacune offrant un espace privé pour se retirer et se détendre. Nous réalisons votre projet sur-mesure, contactez-moi Julie Texier au (Numéro supprimé)CONSTRUCTIONS IDEALE DEMEURE a sélectionné avec un partenaire foncier un terrain pour construire cette maison.
Montbazon
TERRAIN ET MAISONSublime maison moderne sur étage d’une superficie globale de 149m².Au rez-de-chaussée, vous trouverez un double garage spacieux, une belle pièce de vie de 60m², une immense suite parentale avec dressing et salle d’eau privative, un cellier et un WC.A l’étage, les trois grandes chambres ainsi qu’une belle salle de bain pourront aisément accueillir votre famille.À vendre beau terrain constructible de 1000 m², situé à Montbazon, dans un environnement calme et agréable.Belle façade, idéal pour accueillir une maison familiale. Terrain viabilisé (eau, électricité, tout-à-l’égout, EDF, EP) Proche des commerces, écoles et transports.Prix : 165000 €Pour plus d’informations ou convenir d’une visite, n’hésitez à me contacter directement au (Numéro supprimé).
Montbazon
TERRAIN ET MAISONVoici une belle maison à construire de 101m², comprenant quatre chambres dont une suite parentale. Elle dispose de deux salles de bain pour plus de confort. La grande pièce de vie de plus de 40m² est lumineuse grâce à ses deux baies vitrées. Cette maison allie espace et fonctionnalité pour toute la famille.Je reste disponible pour toutes demandes de renseignements, n’hésitez pas me contacter : Stéphane Digneton : (Numéro supprimé).CONSTRUCTIONS IDEALE DEMEURE a sélectionné avec un partenaire foncier un terrain pour construire cette maison.
Montbazon
TERRAIN ET MAISONVous rêvez de faire construire ? Stéphane Digneton ( (Numéro supprimé))vous propose cette maison en L de 121m², avec 4 chambres dont une suite parentale. Elle comprend également 2 salles de bain, une belle pièce de vie lumineuse et un grand garage de plus de 20m². Entièrement personnalisable, n’hésitez pas à me contacter pour discuter de votre projet.CONSTRUCTIONS IDEALE DEMEURE a sélectionné avec un partenaire foncier un terrain pour construire cette maison.
Montbazon
TERRAIN ET MAISONMaison à étage à construire !Cette maison dispose de 112 mètres carrés. A l’intérieur, on est accueilli par un grand salon/ séjour suivi d’une cuisine, le tout d’une superficie totale de 51 m².Au rez-de-chaussée, vous trouverez également une belle suite parentale avec sa salle de bain privative et son dressing indépendant. À l’étage, deux belles chambres lumineuses, un grand dressing et une seconde salle de bain.Nous réalisons votre projet sur-mesure. Contactez-moi dès aujourd’hui Julie Texier au (Numéro supprimé), je serai ravie de vous accompagner tout au long de votre projet.CONSTRUCTIONS IDEALE DEMEURE a sélectionné avec un partenaire foncier un terrain pour construire cette maison.
Montbazon
TERRAIN ET MAISONCette belle maison à construire de 150m² offre une grande pièce de vie lumineuse de plus de 74m² avec une triple exposition. Elle comprend quatre belles chambres spacieuses, idéales pour une famille. Un grand garage de 38m² permet de stationner facilement un véhicule et de bénéficier d’un espace de rangement supplémentaire. Enfin, un vaste porche couvert peut accueillir une voiture, offrant une protection supplémentaire contre les intempéries.Je reste disponible pour toutes demandes de renseignements, n’hésitez pas me contacter : Stéphane Digneton : (Numéro supprimé).CONSTRUCTIONS IDEALE DEMEURE a sélectionné avec un partenaire foncier un terrain pour construire cette maison.
Montbazon
TERRAIN ET MAISONVous rêvez de faire construire ? Stéphane Digneton ( (Numéro supprimé))vous propose cette maison en L de 121m², avec 4 chambres dont une suite parentale. Elle comprend également 2 salles de bain, une belle pièce de vie lumineuse et un grand garage de plus de 20m². Entièrement personnalisable, n’hésitez pas à me contacter pour discuter de votre projet.CONSTRUCTIONS IDEALE DEMEURE a sélectionné avec un partenaire foncier un terrain pour construire cette maison.
Montbazon
TERRAIN ET MAISONVoici une belle maison de 107m² à construire, comprenant 5 chambres, dont une suite parentale confortable. Elle dispose de 2 salles de bain modernes pour un confort optimal. Un grand cellier est également prévu, idéal pour le stockage et l’organisation.Cette maison est entièrement personnalisable selon vos envies et besoins.Je reste disponible pour toutes demandes de renseignements, n’hésitez pas me contacter : Stéphane Digneton : (Numéro supprimé).CONSTRUCTIONS IDEALE DEMEURE a sélectionné avec un partenaire foncier un terrain pour construire cette maison.
Montbazon
TERRAIN ET MAISONDécouvrez cette charmante maison contemporaine, offrant un espace de vie spacieux et fonctionnel avec sa cuisine séparé. Son agencement astucieux et ses finitions de qualité en font un lieu de vie idéal.Cette maison se compose de 3 grandes chambres, dont une suite parentale au RDC en accessibilité PMR.Un garage de 40m² vient compléter cette maison aux lignes contemporaines.Nous réalisons votre projet sur-mesure, contactez-moi Julie Texier au (Numéro supprimé)CONSTRUCTIONS IDEALE DEMEURE a sélectionné avec un partenaire foncier un terrain pour construire cette maison.
Montbazon
TERRAIN ET MAISONNous vous proposons cette maison neuve, baptisée « »Topaze » », un modèle de charme issu de la gamme Primaciel, qui se distingue par son design élégant en L. Avec une surface habitable de 68 m², cette maison est parfaitement conçue pour répondre aux besoins d’une vie familiale moderne et confortable. Elle comprend 2 chambres spacieuses et un total de 3 pièces, offrant ainsi un cadre de vie intime et accueillant.La Topaze se fait remarquer par son porche d’entrée accueillant et son garage intégré, des caractéristiques qui allient fonctionnalité et esthétique. Son plan en L n’est pas seulement un choix de design; il permet également une séparation naturelle des espaces de vie, créant ainsi une harmonie parfaite entre les différentes zones de la maison.Parmi les options les plus plébiscitées par nos clients, le cellier se distingue. Pratique et astucieux, il offre un espace de rangement supplémentaire très apprécié, facilitant l’organisation du quotidien.Cette maison neuve est également une championne de la basse consommation, conformément à la réglementation environnementale RE2020. Elle est conçue pour minimiser votre empreinte écologique tout en maximisant votre confort, grâce à des matériaux de construction de dernière génération et à des technologies énergétiques avancées.La Topaze est idéale pour ceux qui font leur premier achat immobilier, offrant un excellent rapport qualité-prix sans compromettre la qualité ou le confort. Disponible en versions 2, 3 ou 4 chambres, elle s’adapte à vos besoins et à ceux de votre famille, vous permettant de créer le foyer dont vous avez toujours rêvé.N’attendez plus pour découvrir cette maison qui combine habilement design, confort et respect de l’environnement. La Topaze est une invitation à vivre dans un espace qui vous ressemble, tout en étant tourné vers l’avenir. Contactez-nous pour plus d’informations et laissez-vous séduire par le charme et les nombreuses possibilités qu’offre ce modèle exceptionnel.
Montbazon
TERRAIN ET MAISONNous vous proposons cette maison neuve, baptisée Univoque, une création qui allie avec brio le design épuré des maisons contemporaines à la chaleur et au confort des constructions traditionnelles. Conçue spécifiquement pour s’adapter aux terrains étroits, Univoque déploie ses 96 m² de surface habitable dans un agencement astucieux en forme de U, optimisant chaque espace disponible.Cette maison de plain-pied se distingue par son clin en bois, qui lui confère un cachet et un raffinement sans pareil, soulignant l’élégance de son architecture moderne. L’intégration d’un garage, non seulement pratique mais également pensé pour s’harmoniser avec l’ensemble de la construction, ajoute une valeur indéniable à ce bien.Univoque offre trois chambres spacieuses, promettant un confort inégalé pour toute la famille. La pièce de vie, cœur battant de la maison, est conçue pour être un espace de partage et de convivialité, baigné de lumière grâce aux baies coulissantes, une des options les plus plébiscitées par nos clients. Ces dernières permettent une transition fluide entre l’intérieur cosy et un extérieur invitant à la détente.Construite dans le respect des normes les plus exigeantes, cette maison est un modèle de basse consommation, conforme à la réglementation environnementale RE2020. Ce choix garantit non seulement un respect de l’environnement mais aussi des économies d’énergie significatives pour ses occupants.Univoque est donc bien plus qu’une maison ; c’est un foyer pensé pour ceux qui rêvent d’un habitat alliant esthétique moderne, fonctionnalité et engagement écologique. Ne laissez pas passer l’opportunité de construire la maison de vos rêves, adaptée à votre style de vie et respectueuse de la planète.
De 36 à 51 parmi 51 résultats
En savoir plus sur Montbazon
Vous trouverez 51 terrain et maison disponibles à l’achat dans la ville de Montbazon.
Les prix varient de 190 166€ à 573 000€. Le prix moyen constaté pour une annonce est de 341 565€.
Nos articles concernant Montbazon
27/11/2023
02/11/2023
30/10/2023
20/10/2023
16/10/2023
16/10/2023