Terrain et maison à vendre à Neuillé-Pont-Pierre (37360)
Neuillé-Pont-Pierre
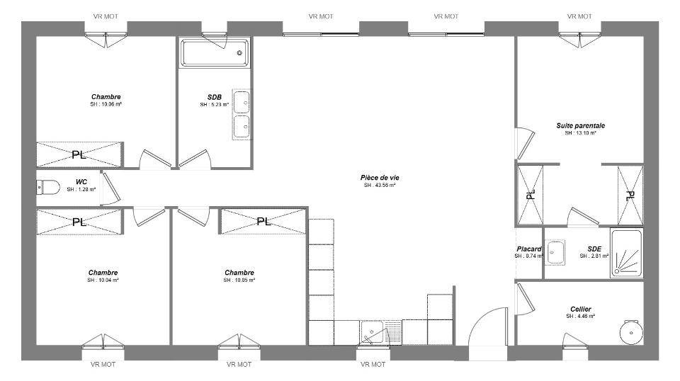
TERRAIN ET MAISONVoici une belle maison à construire de 101m², comprenant quatre chambres dont une suite parentale. Elle dispose de deux salles de bain pour plus de confort. La grande pièce de vie de plus de 40m² est lumineuse grâce à ses deux baies vitrées. Cette maison allie espace et fonctionnalité pour toute la famille.Je reste disponible pour toutes demandes de renseignements, n’hésitez pas me contacter : Stéphane Digneton : (Numéro supprimé).CONSTRUCTIONS IDEALE DEMEURE a sélectionné avec un partenaire foncier un terrain pour construire cette maison.
Neuillé-Pont-Pierre
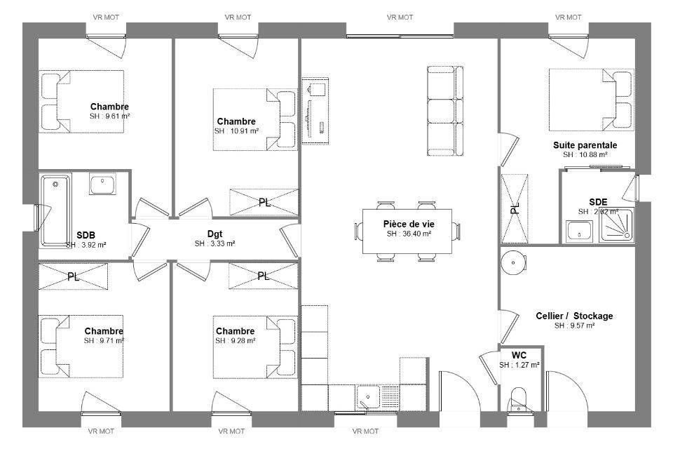
TERRAIN ET MAISONVoici une belle maison de 107m² à construire, comprenant 5 chambres, dont une suite parentale confortable. Elle dispose de 2 salles de bain modernes pour un confort optimal. Un grand cellier est également prévu, idéal pour le stockage et l’organisation.Cette maison est entièrement personnalisable selon vos envies et besoins.Je reste disponible pour toutes demandes de renseignements, n’hésitez pas me contacter : Stéphane Digneton : (Numéro supprimé).CONSTRUCTIONS IDEALE DEMEURE a sélectionné avec un partenaire foncier un terrain pour construire cette maison.
Neuillé-Pont-Pierre
TERRAIN ET MAISONVoici une belle maison de 89m² à construire, offrant une grande pièce de vie lumineuse grâce à sa triple exposition. Elle comprend deux chambres confortables, une salle de bain équipée d’une douche et d’une baignoire, ainsi qu’un grand garage. Un atout majeur de cette maison est sa terrasse couverte, idéale pour profiter de l’extérieur en toute saison. De plus, elle est entièrement personnalisable selon vos envies et besoins.Je reste disponible pour toutes demandes de renseignements, n’hésitez pas me contacter : Stéphane Digneton : (Numéro supprimé).CONSTRUCTIONS IDEALE DEMEURE a sélectionné avec un partenaire foncier un terrain pour construire cette maison.
Neuillé-Pont-Pierre
TERRAIN ET MAISONDécouvrez cette magnifique maison de 70m² habitables, conçue pour votre confort. Elle comprend deux belles chambres lumineuses, idéales pour toute la famille. Une grande pièce de vie de plus de 40m², Un grand garage spacieux vous offre un espace de stockage pratique ou un abri sécurisé pour votre voiture. Faites construire ce projet alliant fonctionnalité et charme pour un cadre de vie agréable.De plus, elle est entièrement personnalisable selon vos envies et besoins.Je reste disponible pour toutes demandes de renseignements, n’hésitez pas me contacter : Stéphane Digneton : (Numéro supprimé).CONSTRUCTIONS IDEALE DEMEURE a sélectionné avec un partenaire foncier un terrain pour construire cette maison.
Neuillé-Pont-Pierre
TERRAIN ET MAISONDEVENEZ PROPRIÉTAIRE DE VOTRE MAISON SUR-MESURE – OPPORTUNITE A SAISIR Découvrez cette demeure conçue et bâtie avec tout le savoir-faire des Maisons de Stéphanie, constructeur reconnu pour ses 30 années d’expérience et son exigence de qualité.Chaque détail est pensé pour votre confort et vos envies : une architecture élégante, des espaces lumineux et fonctionnels, et la possibilité d’adapter les plans selon votre mode de vie.Saisissez dès maintenant l’opportunité de faire de cette maison votre nouveau lieu de vie !Contactez Maëlle VECHTE dès maintenant au *2 47 48 09 30 pour plus d’informations et concrétiser votre projet
Neuillé-Pont-Pierre
TERRAIN ET MAISONDEVENEZ PROPRIÉTAIRE DE VOTRE MAISON SUR-MESURE – OPPORTUNITE A SAISIR Découvrez cette demeure conçue et bâtie avec tout le savoir-faire des Maisons de Stéphanie, constructeur reconnu pour ses 30 années d’expérience et son exigence de qualité.Chaque détail est pensé pour votre confort et vos envies : une architecture élégante, des espaces lumineux et fonctionnels, et la possibilité d’adapter les plans selon votre mode de vie.Saisissez dès maintenant l’opportunité de faire de cette maison votre nouveau lieu de vie !Contactez Maëlle VECHTE dès maintenant au *2 47 48 09 30 pour plus d’informations et concrétiser votre projet
Neuillé-Pont-Pierre
TERRAIN ET MAISONBelle maison de plain-pied de 110 m², combles aménageables, belle pièce à vivre de plus de 50 m², une suite parentale avec salle d’eau et dressing et une chambre avec placard et salle de d’eau privative, un cellier et un grand garage.CONSTRUCTIONS IDEALE DEMEURE a sélectionné avec un partenaire foncier un terrain pour construire cette maison. Je reste disponible pour toutes demandes de renseignements, n’hésitez pas me contacter : Stéphane Digneton : (Numéro supprimé)
Neuillé-Pont-Pierre
TERRAIN ET MAISONTerrain à bâtir – 635 m² – 83 300 € – Neuillé-Pont-Pierre (37). À Neuillé-Pont-Pierre, commune dynamique et bien desservie au nord de Tours, terrain viabilisé de 635 m², proposé au prix de 83 300 €. Parcelle agréable et bien placée, à proximité des écoles, commerces et équipements, avec un accès rapide vers Tours et l’autoroute A28. Une maison compacte et astucieuse, idéale pour tous les terrains ! Pensée pour optimiser chaque mètre carré, cette maison combine modernité et praticité pour un confort au quotidien. Au rez-de-chaussée, une pièce de vie lumineuse et spacieuse accueille un espace salon et salle à manger convivial, ainsi qu’une cuisine ouverte, parfaite pour le partage et la convivialité. Un cellier discret facilite le rangement, et un WC indépendant vient compléter cet espace fonctionnel. À l’étage, trois chambres bien agencées offrent à chacun son espace personnel. Une salle de bain moderne, un WC supplémentaire et un dégagement optimisé assurent praticité et fluidité dans la vie de tous les jours. Un design intelligent, une optimisation parfaite de l’espace et une adaptabilité idéale aux terrains de toutes tailles ! Pour vous assurer un confort de vie optimal et en conformité avec la RE2025, nous avons opté pour un système de chauffage par pompe à chaleur (PAC) avec plancher chauffant au rez-de-chaussée et radiateurs à l’étage. Le logement est également équipé de volets roulants électriques. Prix hors fourniture et pose : des appareils sanitaires (sauf système de chauffage et d'eau chaude sanitaire), du carrelage et de la faïence, des revêtements de sol dans les chambres. Hors décoration et aménagement intérieur et peinture. Hors raccordements, frais de notaire et dommage ouvrage. // Réf. : 684-208250-MGA. Prix terrain : 83 300 €, hors frais d'agence à la charge de l'acquéreur. Ce terrain vous est proposé, par nos partenaires fonciers, dans le cadre d'un projet de construction avec nous. Les informations sur les risques auxquels ce bien est exposé sont disponibles sur le site Géorisques (www.georisques.gouv.fr). Prix maison : 148 343 €.
Neuillé-Pont-Pierre
TERRAIN ET MAISONTerrain à bâtir – 635 m² – 83 300 € – Neuillé-Pont-Pierre (37). À Neuillé-Pont-Pierre, commune dynamique et bien desservie au nord de Tours, terrain viabilisé de 635 m², proposé au prix de 83 300 €. Parcelle agréable et bien placée, à proximité des écoles, commerces et équipements, avec un accès rapide vers Tours et l’autoroute A28. Une maison élégante et bien pensée pour un quotidien confortable ! Avec ses espaces généreux et son agencement optimisé, cette maison est idéale pour une vie de famille harmonieuse. Au rez-de-chaussée, profitez d’un grand espace de vie ouvert, baigné de lumière, où le salon, la salle à manger et la cuisine se rejoignent en toute fluidité. Un cellier pratique, une salle d’eau et un WC indépendant viennent compléter cet espace. Une chambre au rez-de-chaussée offre une flexibilité précieuse. L’étage se compose de trois belles chambres, parfaites pour accueillir toute la famille. Une grande salle de bain, un second WC et un palier fonctionnel assurent un confort optimal. Une maison moderne, spacieuse et conçue pour répondre à toutes vos attentes !. Pour vous assurer un confort de vie optimal et en conformité avec la RE2025, nous avons opté pour un système de chauffage par pompe à chaleur (PAC) avec plancher chauffant au rez-de-chaussée et radiateurs à l’étage. Le logement est également équipé de volets roulants électriques. Prix hors fourniture et pose : des appareils sanitaires (sauf système de chauffage et d'eau chaude sanitaire), du carrelage et de la faïence, des revêtements de sol dans les chambres. Hors décoration et aménagement intérieur et peinture. Hors raccordements, frais de notaire et dommage ouvrage. // Réf. : 2504-208250-MGA. Prix terrain : 83 300 €, hors frais d'agence à la charge de l'acquéreur. Ce terrain vous est proposé, par nos partenaires fonciers, dans le cadre d'un projet de construction avec nous. Les informations sur les risques auxquels ce bien est exposé sont disponibles sur le site Géorisques (www.georisques.gouv.fr). Prix maison : 162 044 €.
Neuillé-Pont-Pierre
TERRAIN ET MAISONTerrain à bâtir – 635 m² – 83 300 € – Neuillé-Pont-Pierre (37). À Neuillé-Pont-Pierre, commune dynamique et bien desservie au nord de Tours, terrain viabilisé de 635 m², proposé au prix de 83 300 €. Parcelle agréable et bien placée, à proximité des écoles, commerces et équipements, avec un accès rapide vers Tours et l’autoroute A28. Familiale et fonctionnelle, cette maison rectangulaire de plain-pied vous séduira par un espace de vie de 50 m² très lumineux avec sa baie vitrée et ses ouvertures, une cuisine ouverte vous permettra de communiquer aisément. Du côté de l’espace nuit, un dégagement dessert 1 chambre parentale avec dressing et salle d’eau, trois chambres avec rangement, une salle de bain et un wc séparé. Pour vous assurer un confort de vie et conformément à la RE2025, nous avons choisi un mode de chauffage par PAC + plancher chauffant, volets roulants électriques. Prix hors fourniture et pose : des appareils sanitaires (sauf système de chauffage et d'eau chaude sanitaire), du carrelage et de la faïence, des revêtements de sol dans les chambres. Hors décoration et aménagement intérieur et peinture. Hors raccordements, frais de notaire et dommage ouvrage. // Réf. : 1425-208250-MGA. Prix terrain : 83 300 €, hors frais d'agence à la charge de l'acquéreur. Ce terrain vous est proposé, par nos partenaires fonciers, dans le cadre d'un projet de construction avec nous. Les informations sur les risques auxquels ce bien est exposé sont disponibles sur le site Géorisques (www.georisques.gouv.fr). Prix maison : 146 019 €.
Neuillé-Pont-Pierre
TERRAIN ET MAISONBelle maison de plain-pied de 110 m², combles aménageables, belle pièce à vivre de plus de 50 m², une suite parentale avec salle d’eau et dressing et une chambre avec placard et salle de d’eau privative, un cellier et un grand garage.CONSTRUCTIONS IDEALE DEMEURE a sélectionné avec un partenaire foncier un terrain pour construire cette maison. Je reste disponible pour toutes demandes de renseignements, n’hésitez pas me contacter : Stéphane Digneton : (Numéro supprimé)
Neuillé-Pont-Pierre
TERRAIN ET MAISON🏡 Charmante maison plain-pied 50m² – Optimisation et harmonieIdéale pour un premier achat ou un pied-à-terre, cette maison de 80m² allie optimisation de l’espace et respect des normes architecturales locales (ABF).✨ Séjour fonctionnel et lumineux🛏️ 3 chambres optimisées, offrant confort et praticité.🏡 Architecture soignée, s’intégrant parfaitement à son environnement.Une maison pensée pour s’adapter aux exigences architecturales tout en offrant un cadre de vie agréable et optimisé. Contactez-moi au (Numéro supprimé)CONSTRUCTIONS IDEALE DEMEURE a sélectionné avec un partenaire foncier un terrain pour construire cette maison.
Neuillé-Pont-Pierre
TERRAIN ET MAISONNous vous proposons cette maison neuve, modèle « »Access » », une perle de notre gamme Primaciel, spécialement conçue pour les primo-accédants à la recherche d’un habitat à la fois économique et innovant. Avec son incroyable rapport qualité/prix, l’Access se distingue par sa conception astucieuse et son engagement envers une isolation conforme aux dernières normes, le tout à un prix maîtrisé. Cette maison de plain-pied s’étend sur 73 m² et est judicieusement agencée pour maximiser le confort et l’espace de vie. Elle se compose de 4 pièces, dont 3 chambres spacieuses de plus de 9 m² chacune, promettant intimité et tranquillité pour tous les membres de la famille. Le cœur de cette maison est sans doute son espace de vie lumineux de près de 35 m², comprenant un séjour et une cuisine ouverte, idéal pour partager des moments conviviaux. Un cellier attenant de 3.5 m² offre un espace de rangement supplémentaire très pratique, tandis qu’une salle de bain fonctionnelle de près de 5 m² et des WC séparés viennent compléter l’ensemble.L’Access est également conçu pour évoluer avec vos besoins, grâce à ses combles perdus et ses combles aménageables, vous offrant la possibilité d’agrandir votre espace de vie selon vos envies. Les options les plus plébiscitées, telles qu’un Car Port ou un garage accolé, sont disponibles pour répondre à toutes vos attentes en matière de stationnement et de stockage.Mais ce qui distingue véritablement l’Access, c’est son engagement envers la durabilité et l’économie d’énergie. Cette maison est basse consommation et strictement conforme à la réglementation environnementale RE2020, vous assurant ainsi des économies significatives sur vos factures d’énergie tout en contribuant à la protection de l’environnement.En choisissant le modèle Access, vous optez pour une maison à prix malin, sans compromis sur la qualité et le confort, tout en étant assuré de vivre dans un logement respectueux de l’environnement. Une opportunité à ne pas manquer pour réal
Neuillé-Pont-Pierre
TERRAIN ET MAISONNous vous proposons cette maison neuve, baptisée « »Rubis » », un modèle conçu pour répondre aux attentes des familles modernes cherchant à allier confort, fonctionnalité et respect de l’environnement. Avec une surface habitable de 68 m², cette maison est l’incarnation parfaite du rapport qualité/prix, offrant des espaces de vie optimisés et un cadre de vie agréable.La « »Rubis » » se distingue par ses 2 chambres spacieuses et son agencement intelligent sur 3 pièces, permettant à chaque membre de la famille de trouver son espace. La pièce de vie, cœur de la maison, s’étend sur plus de 40 m², offrant un espace ouvert et lumineux, idéal pour les moments de partage et de convivialité.L’une des caractéristiques principales de cette maison est son garage intégré, pratique et esthétique, qui s’harmonise parfaitement avec l’architecture de la maison. De plus, les combles aménageables offrent une possibilité d’extension future, permettant ainsi d’adapter la maison aux évolutions de votre famille.Construite dans le respect de la norme RT2020, la « »Rubis » » est une maison basse consommation, minimisant ainsi votre empreinte écologique tout en vous faisant bénéficier d’une réduction significative de vos factures énergétiques. Cette maison est donc parfaitement alignée avec les attentes actuelles en matière de développement durable et de performance énergétique.Les options les plus plébiscitées par nos clients, telles que la personnalisation des finitions ou l’ajout d’équipements éco-responsables, sont disponibles pour faire de la « »Rubis » » votre maison idéale, celle qui répondra à toutes vos attentes.En choisissant la « »Rubis » », vous optez pour une maison familiale par excellence, conçue pour offrir le meilleur à votre famille, aujourd’hui et demain. N’attendez plus pour faire de ce lieu votre nouveau foyer, où confort, bien-être et respect de l’environnement se rencontrent.
Neuillé-Pont-Pierre
TERRAIN ET MAISONVous rêvez d’une maison unique, conçue selon vos envies et vos besoins ? Avec CID, votre constructeur sur-mesure, imaginez et réalisez la maison de vos rêves, à un prix accessible pour tous. Pourquoi choisir CID ?Conception personnalisée : Votre maison, vos choix, 100% sur-mesure !Accessibilité : Une maison originale et adaptée à votre budget.Accompagnement complet : Du plan à la construction, nous sommes à vos côtés.Moderne, traditionnelle, écologique ou innovante – quelle que soit votre vision, nous la concrétisons. Contactez-nous dès aujourd’hui pour une étude GRATUITE et laissez-nous construire ensemble votre avenir !CID – L’art de bâtir sur-mesure, pour tous.Prenez rendez-vous dès maintenant avec Céline Saanoun au (Numéro supprimé)CONSTRUCTIONS IDEALE DEMEURE a sélectionné avec un partenaire foncier un terrain pour construire cette maison.
Neuillé-Pont-Pierre
TERRAIN ET MAISONOrigin 83 est une maison de plain-pied de 83 m² conçue pour offrir un espace de vie confortable et fonctionnel, idéal pour une famille. L’agencement privilégie la convivialité avec un espace jour spacieux et lumineux de 36,06 m², parfait pour les moments de partage. Les trois chambres, de tailles similaires, offrent à chacun son espace d’intimité, tandis que les espaces fonctionnels, tels que le cellier, le garage et la salle de bains, facilitent le quotidien.L’espace jour, véritable coeur de la maison, est baigné de lumière naturelle grâce à de larges ouvertures. Il offre un espace de vie ouvert et accueillant, idéal pour se détendre, recevoir des amis ou partager des repas en famille. Les chambres, quant à elles, sont conçues comme des havres de paix, offrant à chacun son espace personnel.Les espaces fonctionnels, tels que le cellier, le garage et la salle de bains, sont pensés pour faciliter le quotidien. Le dégagement central assure une circulation fluide entre les pièces, tandis que les toilettes séparées ajoutent une touche de confort supplémentaire. L’ensemble de la maison est conçu pour offrir un espace de vie agréable et pratique, où chaque membre de la famille se sentira chez soi.CONSTRUCTIONS IDEALE DEMEURE a sélectionné avec un partenaire foncier un terrain pour construire cette maison.
Neuillé-Pont-Pierre
TERRAIN ET MAISONDepuis 30 ans, Constructions Idéale Demeure se distingue par son savoir-faire dans la réalisation de maisons sur-mesure. Forte de son excellente santé financière, notre entreprise vous accompagne dans la création de la maison qui vous ressemble.Pourquoi nous faire confiance ?Taux immobiliers en baisse : C’est le moment idéal pour concrétiser votre projet de construction avec des conditions de prêt avantageuses.Offres attractives : Nous proposons des maisons de qualité, alliant confort et esthétique, à des prix compétitifs.Matériaux et artisans d’excellence : Nous collaborons avec des artisans qualifiés et sélectionnons des matériaux haut de gamme pour vous garantir une construction durable et performante.Suivi de chantier de A à Z : Nous vous accompagnons à chaque étape de votre projet, de la conception à la remise des clés, pour un résultat à la hauteur de vos attentes.Avec Constructions Idéale Demeure, réalisez votre maison sur-mesure en toute sérénité. Contactez Céline Saanoun au (Numéro supprimé) pour découvrir nos offres et commencer à bâtir votre futur.ETUDE GRATUITE DE VOTRE PROJETCONSTRUCTIONS IDEALE DEMEURE a sélectionné avec un partenaire foncier un terrain pour construire cette maison.
Neuillé-Pont-Pierre
TERRAIN ET MAISONDepuis 30 ans, Constructions Idéale Demeure se distingue par son savoir-faire dans la réalisation de maisons sur-mesure. Forte de son excellente santé financière, notre entreprise vous accompagne dans la création de la maison qui vous ressemble.Pourquoi nous faire confiance ?Taux immobiliers en baisse : C’est le moment idéal pour concrétiser votre projet de construction avec des conditions de prêt avantageuses.Offres attractives : Nous proposons des maisons de qualité, alliant confort et esthétique, à des prix compétitifs.Matériaux et artisans d’excellence : Nous collaborons avec des artisans qualifiés et sélectionnons des matériaux haut de gamme pour vous garantir une construction durable et performante.Suivi de chantier de A à Z : Nous vous accompagnons à chaque étape de votre projet, de la conception à la remise des clés, pour un résultat à la hauteur de vos attentes.Avec Constructions Idéale Demeure, réalisez votre maison sur-mesure en toute sérénité. Contactez Céline Saanoun au (Numéro supprimé) pour découvrir nos offres et commencer à bâtir votre futur.ETUDE GRATUITE DE VOTRE PROJETCONSTRUCTIONS IDEALE DEMEURE a sélectionné avec un partenaire foncier un terrain pour construire cette maison.
De 18 à 36 parmi 38 résultats
En savoir plus sur Neuillé-Pont-Pierre
Vous trouverez 38 terrain et maison disponibles à l’achat dans la ville de Neuillé-Pont-Pierre.
Les prix varient de 165 000€ à 385 000€. Le prix moyen constaté pour une annonce est de 233 389€.
Nos articles concernant Neuillé-Pont-Pierre
27/11/2023
02/11/2023
30/10/2023
20/10/2023
16/10/2023
16/10/2023