Maison à construire à Parçay-Meslay (37210)
Images
Description
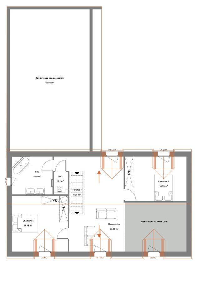
Maison moderne de 190m² avec prestations haut de gamme !
Découvrez cette magnifique maison à étage offrant un design épuré et contemporain. Vous serez séduit par son grand séjour avec un impressionnant vide sur hall, accentuant l'espace et la lumière naturelle. Cette maison comprend deux suites parentales pour un confort optimal, ainsi que deux autres chambres à l'étage. Son vaste espace de vie de plus de 54m² et sa cuisine fermée de 12m², allient intimité et fonctionnalité.
Un grand carport complète ce bien, pouvant accueillir deux voitures. Un vrai coup de coeur pour ceux qui cherchent espace, confort et élégance.
Je vous accompagne dans votre projet de la conception à la recherche foncière jusqu'à l'optimisation de votre financement, contactez-moi dès maintenant au (Numéro supprimé) - Julie Texier.
CONSTRUCTIONS IDEALE DEMEURE a sélectionné avec un partenaire foncier un terrain pour construire cette maison.
Logement susceptibles de vous intéresser
Nous vous proposons de découvrir aussi cette sélection de logements situés à moins de 10km de Parçay-Meslay et qui seraient susceptibles de vous intéresser.
Saint-Cyr-sur-Loire
TERRAINNous vous proposons un terrain spacieux de 800 m², situé dans la charmante commune de Saint-Cyr-sur-Loire, dans le département de l’Indre-et-Loire. Ce terrain est idéal pour réaliser votre projet de construction de maison, offrant une base parfaite pour donner vie à votre rêve immobilier. Proche de toutes les commodités, ce bien vous garantit confort et qualité de vie dans un environnement attrayant. Saint-Cyr-sur-Loire se distingue par son cadre de vie agréable, alliant tranquillité et proximité avec les services essentiels. Profitez de sa position stratégique, à proximité d’écoles, de commerces, et d’infrastructures de transport desservant les principaux axes routiers et autoroutiers. La ville bénéficie également d’une sécurité renforcée et d’un ensoleillement optimal, vous permettant de savourer des moments paisibles en toute sérénité. C’est l’opportunité rare d’acquérir un terrain dans un secteur très prisé de la région Centre-Val de Loire. Ce terrain offre un potentiel exceptionnel pour les acheteurs à la recherche d’une opportunité unique d’investir dans un futur lieu de vie. Ne laissez pas passer cette chance de construire la maison de vos rêves ! REF:RB2025
Saint-Cyr-sur-Loire
TERRAIN ET MAISONNous vous proposons cette maison neuve, modèle « »Access » », une perle de notre gamme Primaciel, spécialement conçue pour les primo-accédants à la recherche d’un habitat à la fois économique et innovant. Avec son incroyable rapport qualité/prix, l’Access se distingue par sa conception astucieuse et son engagement envers une isolation conforme aux dernières normes, le tout à un prix maîtrisé. Cette maison de plain-pied s’étend sur 73 m² et est judicieusement agencée pour maximiser le confort et l’espace de vie. Elle se compose de 4 pièces, dont 3 chambres spacieuses de plus de 9 m² chacune, promettant intimité et tranquillité pour tous les membres de la famille. Le cœur de cette maison est sans doute son espace de vie lumineux de près de 35 m², comprenant un séjour et une cuisine ouverte, idéal pour partager des moments conviviaux. Un cellier attenant de 3.5 m² offre un espace de rangement supplémentaire très pratique, tandis qu’une salle de bain fonctionnelle de près de 5 m² et des WC séparés viennent compléter l’ensemble.L’Access est également conçu pour évoluer avec vos besoins, grâce à ses combles perdus et ses combles aménageables, vous offrant la possibilité d’agrandir votre espace de vie selon vos envies. Les options les plus plébiscitées, telles qu’un Car Port ou un garage accolé, sont disponibles pour répondre à toutes vos attentes en matière de stationnement et de stockage.Mais ce qui distingue véritablement l’Access, c’est son engagement envers la durabilité et l’économie d’énergie. Cette maison est basse consommation et strictement conforme à la réglementation environnementale RE2020, vous assurant ainsi des économies significatives sur vos factures d’énergie tout en contribuant à la protection de l’environnement.En choisissant le modèle Access, vous optez pour une maison à prix malin, sans compromis sur la qualité et le confort, tout en étant assuré de vivre dans un logement respectueux de l’environnement. Une opportunité à ne pas manquer pour réal
La Membrolle-sur-Choisille
TERRAINNous avons le plaisir de vous présenter un terrain d’une superficie généreuse de 800 m², idéalement situé à La Membrolle-sur-Choisille, offrant un cadre parfait pour un projet de construction de maison. Ce terrain non viabilisé se distingue par son calme ambiant et son ensoleillement, garantissant ainsi une qualité de vie inégalée. Profitez de l’opportunité de dessiner la maison de vos rêves dans cet environnement agréable et paisible. La Membrolle-sur-Choisille, située dans le département de l’Indre-et-Loire au cœur de la région Centre-Val de Loire, est une commune dynamique à proximité de nombreux commerces et commodités. Les écoles à proximité assurent un cadre de vie familial idéal, tandis que les connexions aux transports et à l’axe routier important facilitent l’accès à Tours et aux alentours. Avec son ambiance conviviale et ses attraits locaux, cette ville constitue un cadre de vie prisé que vous serez ravi de découvrir. Ne manquez pas cette chance unique d’acquérir un terrain au potentiel exceptionnel. Pour les intéressés, n’hésitez pas à envisager ce projet d’avenir qui vous attend à La Membrolle-sur-Choisille ! REF:RB2025
La Membrolle-sur-Choisille
TERRAIN ET MAISONNous vous proposons cette maison neuve, modèle « »Access » », une perle de notre gamme Primaciel, spécialement conçue pour les primo-accédants à la recherche d’un habitat à la fois économique et innovant. Avec son incroyable rapport qualité/prix, l’Access se distingue par sa conception astucieuse et son engagement envers une isolation conforme aux dernières normes, le tout à un prix maîtrisé. Cette maison de plain-pied s’étend sur 73 m² et est judicieusement agencée pour maximiser le confort et l’espace de vie. Elle se compose de 4 pièces, dont 3 chambres spacieuses de plus de 9 m² chacune, promettant intimité et tranquillité pour tous les membres de la famille. Le cœur de cette maison est sans doute son espace de vie lumineux de près de 35 m², comprenant un séjour et une cuisine ouverte, idéal pour partager des moments conviviaux. Un cellier attenant de 3.5 m² offre un espace de rangement supplémentaire très pratique, tandis qu’une salle de bain fonctionnelle de près de 5 m² et des WC séparés viennent compléter l’ensemble.L’Access est également conçu pour évoluer avec vos besoins, grâce à ses combles perdus et ses combles aménageables, vous offrant la possibilité d’agrandir votre espace de vie selon vos envies. Les options les plus plébiscitées, telles qu’un Car Port ou un garage accolé, sont disponibles pour répondre à toutes vos attentes en matière de stationnement et de stockage.Mais ce qui distingue véritablement l’Access, c’est son engagement envers la durabilité et l’économie d’énergie. Cette maison est basse consommation et strictement conforme à la réglementation environnementale RE2020, vous assurant ainsi des économies significatives sur vos factures d’énergie tout en contribuant à la protection de l’environnement.En choisissant le modèle Access, vous optez pour une maison à prix malin, sans compromis sur la qualité et le confort, tout en étant assuré de vivre dans un logement respectueux de l’environnement. Une opportunité à ne pas manquer pour réal
Monnaie
TERRAINTerrain à bâtir d’une superficie de 240m², entièrement viabilisé. Emplacement idéal pour votre future construction. Très belle opportunité, contactez-moi dès maintenant Julie Texier au (Numéro supprimé)
Parçay-Meslay
TERRAINEMPLACEMENT IDEALTerrain à bâtir d’une superficie de 609 m², entièrement viabilisé à Parcay Meslay.Très belle opportunité, contactez-moi dès maintenant Julie Texier au (Numéro supprimé)
Parçay-Meslay
TERRAIN ET MAISONMaison moderne de 190m² avec prestations haut de gamme !Découvrez cette magnifique maison à étage offrant un design épuré et contemporain. Vous serez séduit par son grand séjour avec un impressionnant vide sur hall, accentuant l’espace et la lumière naturelle. Cette maison comprend deux suites parentales pour un confort optimal, ainsi que deux autres chambres à l’étage. Son vaste espace de vie de plus de 54m² et sa cuisine fermée de 12m², allient intimité et fonctionnalité.Un grand carport complète ce bien, pouvant accueillir deux voitures. Un vrai coup de coeur pour ceux qui cherchent espace, confort et élégance.Je vous accompagne dans votre projet de la conception à la recherche foncière jusqu’à l’optimisation de votre financement, contactez-moi dès maintenant au (Numéro supprimé) – Julie Texier.CONSTRUCTIONS IDEALE DEMEURE a sélectionné avec un partenaire foncier un terrain pour construire cette maison.
Monnaie
TERRAIN ET MAISON🏡 Maison évolutive 70m² – Confort et lumière au rendez-vous !Découvrez cette maison moderne et fonctionnelle de 70m², pensée pour évoluer avec vos besoins.✨ Espace de vie lumineux : un séjour ouvert de 40m², baigné de lumière naturelle grâce à ses grandes ouvertures.🛏️ Deux chambres confortables, idéales pour un couple, une petite famille ou un premier achat.🔄 Évolutive : possibilité d’agrandissement selon vos envies et projets futurs.Un cadre de vie agréable, moderne et adaptable ! Contactez-moi pour plus d’information au (Numéro supprimé)CONSTRUCTIONS IDEALE DEMEURE a sélectionné avec un partenaire foncier un terrain pour construire cette maison.
Notre-Dame-d'Oé
TERRAINTerrain à bâtir sur Notre-Dame-D »Oé de 408 m², viabilisé, dans un secteur prisé hors du secteur des bâtiments de France.Idéal pour votre projet de construction, nous vous accompagnerons dans l »ensemble de vos démarches : réalisation des plans sur-mesure de votre projet, démarches administratives, accompagnement dans votre financement.Proche de toutes commodités, la commune bénéficie d »écoles, commerces, et se situe à seulement 10min de Tours.Je reste disponible pour toutes demandes de renseignements, n »hésitez pas me contacter : Stéphane Digneton : (Numéro supprimé)
L’actualité immobilière à Parçay-Meslay
27/11/2023
02/11/2023
30/10/2023
20/10/2023
16/10/2023
16/10/2023