Maison à construire à Richelieu (37120)
Images
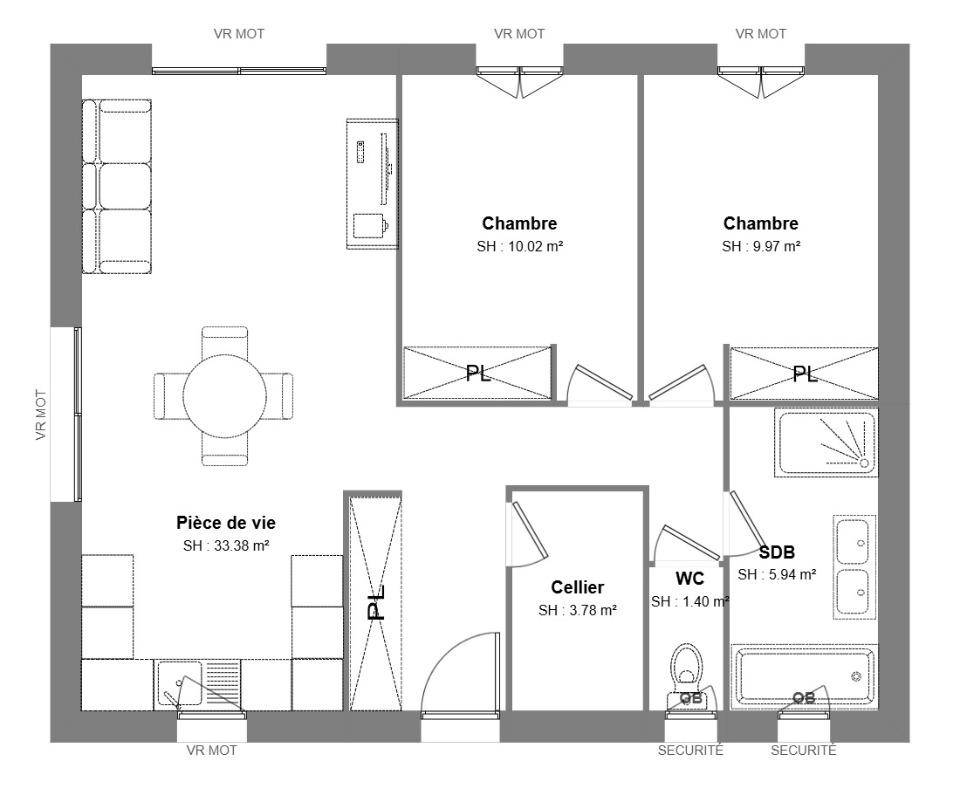
Description
Venez faire construire cette belle maison de 64 m² offrant un espace de vie très lumineux grâce à une triple exposition.
Elle comprend deux belles chambres avec placards intégrés pour un rangement optimisé.
La salle de bains, spacieuse, peut accueillir à la fois une douche, une baignoire et une double vasque pour un confort maximal.
Je reste disponible pour toutes demandes de renseignements, n'hésitez pas me contacter : Stéphane Digneton : (Numéro supprimé).
Logement susceptibles de vous intéresser
Nous vous proposons de découvrir aussi cette sélection de logements situés à moins de 10km de Richelieu et qui seraient susceptibles de vous intéresser.
Lémeré
TERRAIN ET MAISONNous vous proposons cette maison neuve, baptisée « »Harmonie » », un modèle qui incarne la quintessence de la maison familiale traditionnelle tout en répondant aux exigences contemporaines de confort et d’efficacité énergétique. Conçue pour fusionner convivialité et fonctionnalité, « »Harmonie » » est le choix privilégié de nos clients, devenant ainsi le produit phare de Maisons Concept.Cette élégante demeure de 100 m², dotée de 4 chambres et de 4 pièces au total, est l’incarnation parfaite de l’équilibre entre espace de vie généreux et intimité. Chaque chambre a été pensée pour offrir un cocon de confort et de tranquillité, répondant ainsi aux besoins de chaque membre de la famille.L’architecture d' » »Harmonie » » se distingue par son garage intégré et ses combles aménageables, offrant ainsi une flexibilité remarquable pour s’adapter à vos projets de vie, qu’il s’agisse d’un espace de travail à domicile, d’une salle de jeux pour les enfants ou d’une chambre supplémentaire.L’une des caractéristiques les plus séduisantes de cette maison est son engagement envers la durabilité et l’efficacité énergétique. Conforme à la norme RE2020, « »Harmonie » » est une maison basse consommation qui vous permettra de réduire significativement vos factures d’énergie tout en contribuant à la protection de l’environnement. Cette performance énergétique de pointe, alliée à une isolation optimale et à l’utilisation de matériaux de construction écologiques, fait d' » »Harmonie » » un investissement durable pour votre avenir.L’esthétique d' » »Harmonie » » n’est pas en reste, avec son avancée au niveau du garage et sa toiture à faible pente, elle conserve le charme intemporel de la maison classique tout en y ajoutant une touche d’originalité. Que vous soyez à la recherche de votre première maison ou que vous souhaitiez offrir à votre famille un espace de vie plus adapté, « »Harmonie » » est conçue pour s’adapter à vos rêves et à vos projets.Découvrez « »Harmonie » », où chaque détail a été pensé pour har
Lémeré
TERRAINNous vous proposons à la vente un terrain de 1596 m², situé dans la charmante commune de Lémeré, en Indre-et-Loire, au cœur de la région Centre-Val de Loire. Ce terrain, bien orienté, est idéal pour concrétiser votre projet de construction de maison, offrant ainsi l’opportunité de bâtir un véritable havre de paix selon vos envies et préférences. Bien que non viabilisé, ce terrain dispose d’un potentiel unique pour ceux qui souhaitent réaliser un investissement durable dans un cadre paisible. Lémeré est une commune attractive qui allie tranquillité et accessibilité, nichée entre nature et patrimoine. Vous serez à proximité des commodités locales, ainsi que des attractions remarquables de la région. La beauté des paysages environnants et l’hospitalité de ses lieux de vie constituent un cadre de vie idéal pour les familles et les amoureux de la nature. À seulement quelques minutes des villes voisines, vous bénéficierez également d’un accès facilité aux services essentiels, tout en profitant d’un environnement serein et harmonieux. Ne laissez pas passer cette occasion unique d’acquérir un terrain au fort potentiel dans un cadre exceptionnel. Contactez-nous dès maintenant pour en savoir plus sur cette belle opportunité d’achat ! À noter qu’en tant que constructeur, nous ne sommes pas mandatés pour réaliser la vente de ce terrain.
La Tour-Saint-Gelin
TERRAINNous vous proposons un superbe terrain à vendre situé dans le charmant lotissement de La Tour-Saint-Gelin. D’une superficie de 1000 m², ce terrain viabilisé est idéal pour concrétiser votre projet de construction de maison. Niché dans une ville offrant un cadre de vie agréable et paisible, il représente une occasion unique de bâtir une demeure à votre image, dans un environnement naturel privilégié. La Tour-Saint-Gelin, située en Indre-et-Loire, dans la région Centre-Val de Loire, est une commune dynamique qui saura séduire les amoureux de la nature et du patrimoine. À proximité, vous trouverez des commodités essentielles, telles que commerces, écoles et équipements sportifs. De plus, la ville est entourée d’attractions telles que de magnifiques châteaux et des sentiers de randonnée, offrant ainsi un cadre de vie riche en découvertes et en activité. Ce terrain bénéficie d’une localisation idéale pour allier tranquillité et accessibilité aux services. Ne manquez pas cette opportunité d’acquérir un terrain au potentiel exceptionnel. Contactez-nous dès aujourd’hui pour discuter de cette offre unique et envisager votre futur projet. À noter qu’en tant que constructeur, nous ne sommes pas mandatés pour réaliser la vente de ce terrain.
Assay
TERRAINÀ vendre, magnifique terrain non viabilisé de 2068 m² situé dans la charmante commune d’Assay, au cœur de l’Indre-et-Loire, dans la région Centre-Val de Loire. Ce terrain spacieux offre une opportunité unique pour concrétiser votre projet de construction de maison, dans un environnement paisible et agréable, propice à la vie familiale. Les caractéristiques de ce terrain vous permettent de laisser libre cours à votre imagination pour bâtir la maison de vos rêves. Assay, un petit trésor de la région, se distingue par son atmosphère conviviale et ses paysages pittoresques. Idéalement situé, ce terrain se trouve à proximité des commodités essentielles, tout en offrant un cadre de vie serein. La ville bénéficie d’un accès facile aux attractions locales, telles que les charmantes balades en pleine nature et les activités culturelles qui ponctuent la vie quotidienne de ses habitants. En choisissant ce terrain, vous vous offrez un cadre idéal qui combine tranquillité et proximité des services. Ne manquez pas cette occasion d’acquérir un terrain au potentiel remarquable pour concrétiser vos ambitions immobilières. Contactez-nous dès aujourd’hui pour explorer davantage cette opportunité unique. À noter qu’en tant que constructeur, nous ne sommes pas mandatés pour réaliser la vente de ce terrain.
Assay
TERRAIN ET MAISONNous vous proposons cette maison neuve, baptisée « »Privilège » », une demeure qui allie élégance et fonctionnalité sur une surface habitable de 72 m². Conçue pour répondre aux attentes des plus exigeants, elle offre un cadre de vie idéal avec ses 3 chambres et un total de 4 pièces, agencées de manière à optimiser chaque espace.Le modèle « »Privilège » » se distingue par son excellent rapport qualité/prix, vous garantissant ainsi un investissement judicieux. Dotée de combles aménageables, cette maison vous offre la liberté de personnaliser et d’agrandir votre espace de vie selon vos désirs et besoins futurs, une flexibilité rare qui s’adapte à l’évolution de votre famille.Construite dans le respect de la norme RT2020, la maison « »Privilège » » est synonyme de basse consommation énergétique. Elle est conforme à la réglementation environnementale RE2020, vous assurant ainsi des économies significatives sur vos factures d’énergie tout en contribuant à la protection de l’environnement. Ce modèle intègre également un garage, un atout non négligeable qui ajoute une valeur supplémentaire à votre propriété.Les options les plus plébiscitées par nos clients, telles que la basse consommation et la conformité à la RE2020, sont des caractéristiques centrales de ce modèle. « »Privilège » » est donc la maison idéale pour ceux qui recherchent un habitat neuf, moderne et respectueux de l’environnement.Avec « »Privilège » », vous faites le choix d’une maison qui combine harmonieusement esthétique et fonctionnalité. Les pièces de vie, situées au cœur de la maison, offrent un espace accueillant pour vos moments en famille ou entre amis. Le coin nuit, pensé pour le confort de chacun, peut accueillir confortablement jusqu’à 4 chambres.Opter pour le modèle « »Privilège » », c’est choisir une maison évolutive qui grandit avec vous, tout en bénéficiant dès aujourd’hui d’un confort et d’une qualité de vie exceptionnels. N’attendez plus pour faire de cette maison le foyer de vos rêves.
Richelieu
TERRAINNous sommes heureux de vous présenter ce terrain spacieux de 1 126 m², idéalement situé à Richelieu, au cœur du charmant département de l’Indre-et-Loire. Ce terrain non viabilisé offre de belles perspectives pour un projet de construction de maison, permettant ainsi de concrétiser votre rêve d’une habitation sur mesure. Bénéficiant d’un cadre paisible, cet emplacement exceptionnel vous séduira par son atmosphère authentique et ses atouts indéniables. Richelieu est une ville riche en histoire, offrant une qualité de vie inégalée entre nature et patrimoine culturel. Vous serez à proximité des commodités locales, des écoles et des commerces, tout en profitant des nombreuses attractions touristiques que la région a à offrir, telles que le célèbre Palais de Richelieu et ses jardins. La convivialité des habitants et les paysages pittoresques de la région Centre-Val de Loire ajoutent une touche de charme incomparable à ce secteur. Ce terrain est donc une occasion fantastique pour construire la maison de vos rêves dans un cadre enchanteur. N’attendez plus pour vous projeter dans un avenir épanouissant, ce terrain offre un potentiel immense pour les futurs acquéreurs. Saisissez cette opportunité unique dès aujourd’hui ! À noter qu’en tant que constructeur, nous ne sommes pas mandatés pour réaliser la vente de ce terrain.
La Tour-Saint-Gelin
TERRAIN ET MAISONNous vous proposons cette maison neuve, baptisée « »Privilège » », une demeure qui allie élégance et fonctionnalité sur une surface habitable de 68 m². Conçue pour répondre aux attentes des plus exigeants, elle offre un cadre de vie exceptionnel avec ses 2 chambres et un total de 3 pièces, agencées de manière à optimiser chaque espace.Le modèle « »Privilège » » se distingue par son excellent rapport qualité/prix, vous garantissant ainsi un investissement judicieux. L’une de ses caractéristiques principales réside dans ses combles aménageables, vous offrant la liberté et la flexibilité d’agrandir votre espace de vie selon vos besoins et vos envies. De plus, cette maison est conçue pour être en parfaite harmonie avec les normes environnementales les plus strictes, notamment la RT2020, assurant une performance énergétique de premier ordre.Dotée d’un garage intégré, « »Privilège » » combine commodité et esthétique, répondant ainsi aux critères les plus recherchés par nos clients. Mais ce qui rend cette maison véritablement unique, c’est son engagement envers la durabilité. Conforme à la RE2020, cette maison neuve est un modèle de basse consommation, vous permettant de réduire significativement vos dépenses énergétiques tout en contribuant à la protection de l’environnement.Choisir « »Privilège » », c’est opter pour une maison qui évolue avec vous. Que vous décidiez d’aménager les combles dès votre emménagement ou plus tard, cette maison s’adapte à votre rythme de vie, garantissant un confort et une qualité de vie inégalés.Ne manquez pas l’opportunité de faire de « »Privilège » » le foyer de vos rêves, où chaque détail a été pensé pour répondre à vos attentes les plus élevées. Contactez-nous dès maintenant pour plus d’informations et laissez-vous séduire par le charme et les avantages incomparables de cette maison exceptionnelle.
Richelieu
TERRAIN ET MAISONNous vous proposons cette maison neuve, baptisée « »City Cosy » », un véritable havre de paix alliant design, confort et respect de l’environnement. Avec une surface habitable de 86 m², cette maison est idéalement conçue pour répondre aux besoins d’une famille moderne, offrant 3 chambres et un total de 4 pièces, chacune pensée pour maximiser l’espace et la lumière naturelle.Le design de « »City Cosy » » ne laisse personne indifférent. Son architecture moderne, agrémentée d’une lucarne élégante, confère à la maison un caractère unique et une identité visuelle forte. Le car port intégré ajoute une touche pratique et esthétique, tandis que les options les plus plébiscitées telles qu’une pergola, un garage ou un sous-sol sont disponibles pour personnaliser votre maison selon vos désirs et besoins.Confort est le maître-mot de « »City Cosy » ». Chaque pièce est équipée des dernières innovations pour garantir un quotidien agréable et fonctionnel. La maison est conçue pour offrir un cadre de vie exceptionnel, où chaque membre de la famille peut trouver son espace et son intimité.Sur le plan écologique, « »City Cosy » » se distingue par sa basse consommation énergétique, conforme à la norme RE2020, la réglementation thermique la plus exigeante à ce jour. Cette maison est un investissement pour l’avenir, vous permettant de réaliser d’importantes économies d’énergie tout en réduisant votre empreinte carbone. La RT2020 garantit une isolation optimale, une ventilation efficace et l’utilisation de matériaux respectueux de l’environnement.En choisissant « »City Cosy » », vous optez pour une maison qui incarne le design, le confort et l’écologie. C’est l’assurance d’un habitat sain, économique et esthétiquement plaisant, idéal pour une famille cherchant à conjuguer vie moderne et respect de l’environnement. Avec un rapport qualité/prix exceptionnel, « »City Cosy » » est la promesse d’un foyer où il fait bon vivre, une invitation à poser vos valises dans un espace pensé pour le bonheur de tou
Richelieu
TERRAIN ET MAISONBelle maison traditionnelle de 85m² de plain pied avec un combles aménageables. Vous retrouverez 3 chambre spacieuses avec rangements intégrés, une salle de bain, un cellier et une grande pièce de vie ouverte de 40m².CONSTRUCTIONS IDEALE DEMEURE a sélectionné avec un partenaire foncier un terrain pour construire cette maison. Je reste disponible pour toutes demandes de renseignements, n’hésitez pas me contacter : Stéphane Digneton :(Numéro supprimé).
L’actualité immobilière à Richelieu
27/11/2023
02/11/2023
30/10/2023
20/10/2023
16/10/2023
16/10/2023