Images
Description
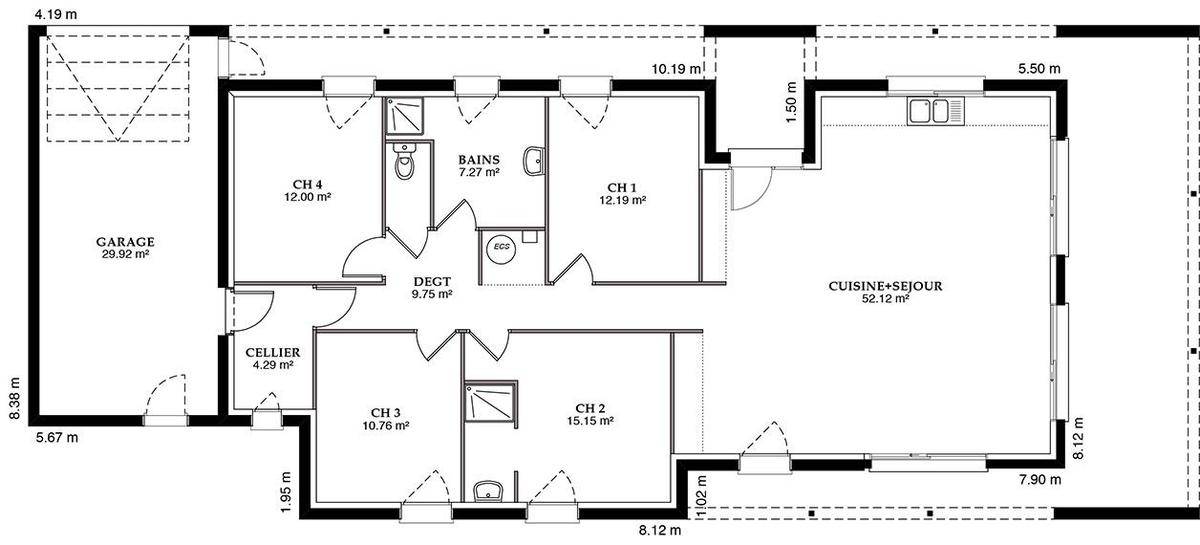
Nous vous proposons cette maison neuve, baptisée Linea, un modèle qui incarne la modernité, le charme et le raffinement. Conçue pour répondre aux attentes des plus exigeants, Linea offre un subtil mélange de confort et d'élégance, tout en s'inscrivant dans une démarche de respect de l'environnement. Avec une surface habitable de 110 m², cette maison basse consommation est parfaitement conforme à la norme RE2020, garantissant ainsi une efficacité énergétique optimale et un impact réduit sur l'environnement.
Linea se distingue par sa structure linéaire et épurée, caractérisée par un voile de béton qui lui confère solidité et durabilité. Elle dispose de 4 chambres spacieuses, offrant ainsi un espace de vie idéal pour une famille, et d'une pièce supplémentaire pouvant être aménagée selon vos besoins et envies. Le garage intégré ajoute une touche de praticité et de confort, en assurant un accès facile et sécurisé à votre domicile.
Les options les plus demandées par nos clients, telles que des solutions d'économie d'énergie avancées et des matériaux de construction écologiques, sont déjà intégrées dans ce modèle. Vous serez également séduits par la distribution intelligente des pièces, conçue pour maximiser l'espace et la lumière naturelle, tout en favorisant une basse consommation énergétique.
L'extérieur de la maison n'est pas en reste, avec ses portiques, sa pergola et ses voiles qui lui apportent un cachet unique. Ces éléments architecturaux ne sont pas seulement esthétiques ; ils contribuent également à l'efficacité énergétique de la maison, en offrant une protection solaire naturelle et en favorisant la ventilation.
En choisissant Linea, vous optez pour une maison qui allie esthétique, confort et respect de l'environnement. Une demeure où il fera bon vivre, conçue pour s'adapter à votre mode de vie et à vos aspirations.
Logement susceptibles de vous intéresser
Nous vous proposons de découvrir aussi cette sélection de logements situés à moins de 10km de Rivarennes et qui seraient susceptibles de vous intéresser.
Huismes
TERRAIN ET MAISONÀ vendre : Magnifique terrain viabilisé de 650 m² dans le centre bourg de Huismes. Ce terrain a tous les atouts pour séduire : il est plat, très bien orienté et situé dans un emplacement idéal. Vous profiterez d'un cadre de vie agréable au cœur du bourg, avec toutes les commodités à proximité. Ne laissez pas passer cette opportunité exceptionnelle ! Contactez-nous dès aujourd'hui pour plus d'informations et pour organiser une visite. Cette maison familiale moderne séduit par son architecture équilibrée et sa toiture à quatre pans, qui lui confèrent à la fois élégance et caractère. Au rez-de-chaussée, elle offre une vaste pièce de vie lumineuse ouverte sur la terrasse, idéale pour les moments de convivialité. On y trouve également une chambre avec dressing et salle d'eau privative, une cuisine fonctionnelle avec cellier, ainsi qu'un garage attenant. L'étage accueille trois chambres spacieuses, une salle de bains et un WC indépendant, offrant à chacun son espace de confort. Ce projet, entièrement personnalisable, allie modernité, praticité et bien-être familial, pour une maison aussi belle à vivre qu'à regarder. Pour vous assurer un confort de vie et conformément à la RE2025, nous avons choisi un mode de chauffage par PAC + plancher chauffant, volets roulants électriques. Prix hors décoration, revêtement de sol dans les chambres, frais de notaire, raccordements, dommage ouvrage. (Piscine non contractuelle et non comprise dans le prix. ). // Réf. : 2679-210819-JCT. Prix terrain : 34 000 €, hors frais d'agence à la charge de l'acquéreur. Ce terrain vous est proposé, par nos partenaires fonciers, dans le cadre d'un projet de construction avec nous. Les informations sur les risques auxquels ce bien est exposé sont disponibles sur le site Géorisques (www.georisques.gouv.fr). Prix maison : 300 000 €.
Huismes
TERRAIN ET MAISONÀ vendre : Magnifique terrain viabilisé de 650 m² dans le centre bourg de Huismes. Ce terrain a tous les atouts pour séduire : il est plat, très bien orienté et situé dans un emplacement idéal. Vous profiterez d'un cadre de vie agréable au cœur du bourg, avec toutes les commodités à proximité. Ne laissez pas passer cette opportunité exceptionnelle ! Contactez-nous dès aujourd'hui pour plus d'informations et pour organiser une visite. Laissez-vous séduire par cette maison familiale contemporaine au style élégant, mise en valeur par sa toiture à pans multiples qui lui confère un charme authentique. Parfaitement pensée pour le confort de toute la famille, elle offre une grande pièce de vie lumineuse, idéale pour se retrouver, ainsi que trois chambres dont une suite parentale avec dressing et salle d'eau privative et un bureau. Son garage intégré et son cellier attenant ajoutent une touche de praticité au quotidien. Cette maison allie modernité, espace et convivialité pour un cadre de vie chaleureux et harmonieux. Pour vous assurer un confort de vie et conformément à la RE2025, nous avons choisi un mode de chauffage par PAC + plancher chauffant, volets roulants électriques. Prix hors décoration, hors revêtement de sol dans les chambres, frais de notaire, raccordements, dommage ouvrage. (Piscine non contractuelle et non comprise dans le prix. ). // Réf. : 2678-210819-JCT. Prix terrain : 34 000 €, hors frais d'agence à la charge de l'acquéreur. Ce terrain vous est proposé, par nos partenaires fonciers, dans le cadre d'un projet de construction avec nous. Les informations sur les risques auxquels ce bien est exposé sont disponibles sur le site Géorisques (www.georisques.gouv.fr). Prix maison : 268 000 €.
Huismes
TERRAIN ET MAISONÀ vendre : Magnifique terrain viabilisé de 650 m² dans le centre bourg de Huismes. Ce terrain a tous les atouts pour séduire : il est plat, très bien orienté et situé dans un emplacement idéal. Vous profiterez d'un cadre de vie agréable au cœur du bourg, avec toutes les commodités à proximité. Ne laissez pas passer cette opportunité exceptionnelle ! Contactez-nous dès aujourd'hui pour plus d'informations et pour organiser une visite. Le modèle Islette séduit par son élégance intemporelle et son agencement en L parfaitement pensé. Avec ses 122 m² de plain-pied, cette maison contemporaine allie confort, fonctionnalité et luminosité, pour un cadre de vie à la fois convivial et apaisant. La pièce de vie centrale, baignée de lumière naturelle, devient le cœur de la maison, idéale pour partager des moments en famille ou entre amis. L’espace nuit, bien séparé, comprend 3 chambres, dont une suite parentale avec salle d’eau privative, ainsi qu’une seconde salle de bain pour encore plus de confort. Un cellier attenant à la cuisine, deux garages pratiques et une ouverture fluide sur le jardin complètent ce modèle au design soigné. Le modèle Islette se distingue par sa configuration astucieuse, son style modulable et ses prestations de qualité, pensées pour offrir un bien-être durable au quotidien. Pour vous assurer un confort de vie et conformément à la RE2025, nous avons choisi un mode de chauffage par PAC + plancher chauffant et volets roulants électriques. Prix hors décoration, frais de notaire, raccordements, dommage ouvrage. (Piscine non contractuelle et non comprise dans le prix. ). // Réf. : 2657-210819-JCT. Prix terrain : 34 000 €, hors frais d'agence à la charge de l'acquéreur. Ce terrain vous est proposé, par nos partenaires fonciers, dans le cadre d'un projet de construction avec nous. Les informations sur les risques auxquels ce bien est exposé sont disponibles sur le site Géorisques (www.georisques.gouv.fr). Prix maison : 304 000 €.
Huismes
TERRAINÀ vendre : Magnifique terrain viabilisé de 650 m² dans le centre bourg de Huismes. Ce terrain a tous les atouts pour séduire : il est plat, très bien orienté et situé dans un emplacement idéal. Vous profiterez d'un cadre de vie agréable au cœur du bourg, avec toutes les commodités à proximité. Ne laissez pas passer cette opportunité exceptionnelle ! Contactez-nous dès aujourd'hui pour plus d'informations et pour organiser une visite. // Réf. : T210819. Prix terrain : 34 000 €, hors frais d'agence et de notaire à la charge de l'acquéreur. Ce terrain vous est proposé, par nos partenaires fonciers, dans le cadre d'un projet de construction avec nous. Les informations sur les risques auxquels ce bien est exposé sont disponibles sur le site Géorisques (www.georisques.gouv.fr).
Rivarennes
TERRAINCharme à la Campagne près des Commerces et Écoles. Découvrez ce terrain idéalement situé pour votre projet de construction !. Localisation : Cadre campagne, à proximité immédiate des commerces et écoles. Superficie : 539 m² de terrain constructible. Équipements : Disponible avec accès à l'eau et à l'électricité. Assainissement : Individuel à prévoir, offrant flexibilité et contrôle. Ce terrain offre un cadre paisible et pratique pour bâtir la maison de vos rêves. Profitez d'un environnement familial et convivial tout en restant proche des commodités nécessaires. Idéal pour une vie en harmonie avec la nature tout en restant connecté à la vie urbaine. Pour plus de détails ou pour organiser une visite, n'hésitez pas à nous contacter dès maintenant !. // Réf. : T210620. Prix terrain : 39 000 €, hors frais d'agence et de notaire à la charge de l'acquéreur. Ce terrain vous est proposé, par nos partenaires fonciers, dans le cadre d'un projet de construction avec nous. Les informations sur les risques auxquels ce bien est exposé sont disponibles sur le site Géorisques (www.georisques.gouv.fr).
Cravant-les-Côteaux
TERRAIN37500 – CRAVANT-LES-COTEAUX – VILLAGE DE VIGNOBLE COTEAUX – TERRAIN – CONSTRUCTIBLE – non viabilisé 1 544. M² – OPPORTUNITE A SAISIR DANS CE VILLAGE DE VIGNOBLE COTEAUX – AOP CHINON Idéalement placé, ce terrain constructible non viabilisé offre une belle opportunité de construction, avec d'autres terrains également en vente par le même propriétaire . Profitez de la quiétude et du charme de ce village entouré de vignobles coteaux pour réaliser votre projet immobilier. Le terrain est en bon état général, prêt à accueillir votre future construction. De plus, il se trouve dans un village au patrimoine ancien très préservé, témoin d'une histoire d'architecture et de viticulture. con Ne manquez pas cette occasion unique de devenir propriétaire d'un terrain dans un village prisé pour son cadre authentique. . // Réf. : T210602. Prix terrain : 29 000 €, hors frais d'agence et de notaire à la charge de l'acquéreur. Ce terrain vous est proposé, par nos partenaires fonciers, dans le cadre d'un projet de construction avec nous. Les informations sur les risques auxquels ce bien est exposé sont disponibles sur le site Géorisques (www.georisques.gouv.fr).
Huismes
TERRAINTerrain de 650 m² à 5 Minutes de ChinonDécouvrez ce superbe terrain viabilisé de 650 m², situé dans une petite commune du Véron, à seulement 7 kilomètres de Chinon. Ce terrain est parfait pour ceux qui souhaitent allier vie citadine et sérénité dans un environnement calme et de qualité. Caractéristiques du terrain :. Surface totale : 650 m²Terrain viabiliséEnvironnement calme et de qualitéProximité : à seulement 7 kilomètres de ChinonPetite commune du VéronCe terrain offre un cadre idéal pour concrétiser votre projet de construction, tout en profitant de la tranquillité de la campagne et des avantages de la proximité de Chinon. Ne manquez pas cette opportunité ! Contactez-nous dès maintenant pour plus d'informations et pour organiser une visite. N'hésitez pas à nous contacter pour plus d'informations !. // Réf. : T210613. Prix terrain : 34 000 €, hors frais d'agence et de notaire à la charge de l'acquéreur. Ce terrain vous est proposé, par nos partenaires fonciers, dans le cadre d'un projet de construction avec nous. Les informations sur les risques auxquels ce bien est exposé sont disponibles sur le site Géorisques (www.georisques.gouv.fr).
Huismes
TERRAIN ET MAISONTerrain de 650 m² à 5 Minutes de ChinonDécouvrez ce superbe terrain viabilisé de 650 m², situé dans une petite commune du Véron, à seulement 7 kilomètres de Chinon. Ce terrain est parfait pour ceux qui souhaitent allier vie citadine et sérénité dans un environnement calme et de qualité. Caractéristiques du terrain :. Surface totale : 650 m²Terrain viabiliséEnvironnement calme et de qualitéProximité : à seulement 7 kilomètres de ChinonPetite commune du VéronCe terrain offre un cadre idéal pour concrétiser votre projet de construction, tout en profitant de la tranquillité de la campagne et des avantages de la proximité de Chinon. Ne manquez pas cette opportunité ! Contactez-nous dès maintenant pour plus d'informations et pour organiser une visite. N'hésitez pas à nous contacter pour plus d'informations !. Une maison spacieuse et astucieuse, idéale pour les terrains optimisés ! Grâce à son conception intelligente, cette maison s’intègre parfaitement sur des terrains plus restreints sans compromettre l’espace et le confort. Au rez-de-chaussée, une grande pièce de vie lumineuse vous accueille, offrant une harmonie parfaite entre salon, salle à manger et cuisine ouverte. Un cellier pratique vient compléter cet espace, facilitant le rangement au quotidien. Une salle d’eau et un WC indépendant apportent un confort supplémentaire. L’étage est dédié au repos avec quatre chambres bien agencées, permettant à chaque membre de la famille de disposer de son propre espace. Une salle de bain fonctionnelle et un second WC garantissent une organisation fluide pour toute la famille. Une maison moderne, compacte et optimisée, idéale pour profiter pleinement de votre terrain !. Pour vous assurer un confort de vie optimal et en conformité avec la RE2025, nous avons opté pour un système de chauffage par pompe à chaleur (PAC) avec plancher chauffant au rez-de-chaussée et radiateurs à l’étage. Le logement est également équipé de volets roulants électriques. Prix hors fourniture et pose : des appareils sanitaires (sauf système de chauffage et d'eau chaude sanitaire), du carrelage et de la faïence, des revêtements de sol dans les chambres. Hors décoration et aménagement intérieur et peinture. Hors raccordements, frais de notaire et dommage ouvrage. // Réf. : 1550-210613-BEF. Prix terrain : 34 000 €, hors frais d'agence à la charge de l'acquéreur. Ce terrain vous est proposé, par nos partenaires fonciers, dans le cadre d'un projet de construction avec nous. Les informations sur les risques auxquels ce bien est exposé sont disponibles sur le site Géorisques (www.georisques.gouv.fr). Prix maison : 166 250 €.
Huismes
TERRAIN ET MAISONTerrain de 650 m² à 5 Minutes de ChinonDécouvrez ce superbe terrain viabilisé de 650 m², situé dans une petite commune du Véron, à seulement 7 kilomètres de Chinon. Ce terrain est parfait pour ceux qui souhaitent allier vie citadine et sérénité dans un environnement calme et de qualité. Caractéristiques du terrain :. Surface totale : 650 m²Terrain viabiliséEnvironnement calme et de qualitéProximité : à seulement 7 kilomètres de ChinonPetite commune du VéronCe terrain offre un cadre idéal pour concrétiser votre projet de construction, tout en profitant de la tranquillité de la campagne et des avantages de la proximité de Chinon. Ne manquez pas cette opportunité ! Contactez-nous dès maintenant pour plus d'informations et pour organiser une visite. N'hésitez pas à nous contacter pour plus d'informations !. Fonctionnelle et bien distribuée, La maison CRETE saura vous séduire par ses espaces. Son hall d'entrée ouvre sur un bureau, des wc et une pièce de vie avec cuisine à l'américaine aménagée ayant un accès direct au cellier. Son espace nuit est composé de 3 chambres avec rangement et une salle de bains équipée, dissociées de l'espace bureau. Pour vous assurer un confort de vie et conformément à la RE2025, nous avons choisi un mode de chauffage par PAC + plancher chauffant, volets roulants électriques. Prix hors fourniture et pose : des appareils sanitaires (sauf système de chauffage et d'eau chaude sanitaire), du carrelage et de la faïence, des revêtements de sol dans les chambres. Hors décoration et aménagement intérieur et peinture. Hors raccordements, frais de notaire et dommage ouvrage. // Réf. : 766-210613-BEF. Prix terrain : 34 000 €, hors frais d'agence à la charge de l'acquéreur. Ce terrain vous est proposé, par nos partenaires fonciers, dans le cadre d'un projet de construction avec nous. Les informations sur les risques auxquels ce bien est exposé sont disponibles sur le site Géorisques (www.georisques.gouv.fr). Prix maison : 129 789 €.
L’actualité immobilière à Rivarennes
27/11/2023
02/11/2023
30/10/2023
20/10/2023
16/10/2023
16/10/2023