Maison à construire à Savigné-sur-Lathan (37340)
Images
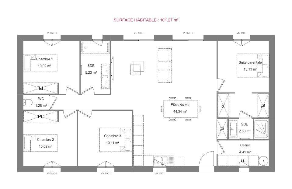
Description
Charmante maison familiale de plain-pied avec une disposition pratique.
Elle comprend 4 chambres, dont une suite parentale avec salle de bain privative et dressing.
Le séjour lumineux offre un espace ouvert de plus de 45 m² idéal pour se détendre et recevoir. Cette maison est parfaite pour une vie confortable en famille.
Nous réalisons votre projet sur-mesure, contactez-moi Julie Texier au (Numéro supprimé)
CONSTRUCTIONS IDEALE DEMEURE a sélectionné avec un partenaire foncier un terrain pour construire cette maison.
Logement susceptibles de vous intéresser
Nous vous proposons de découvrir aussi cette sélection de logements situés à moins de 10km de Savigné-sur-Lathan et qui seraient susceptibles de vous intéresser.
Savigné-sur-Lathan
TERRAIN ET MAISONCharmante maison familiale de plain-pied avec une disposition pratique.Elle comprend 4 chambres, dont une suite parentale avec salle de bain privative et dressing.Le séjour lumineux offre un espace ouvert de plus de 45 m² idéal pour se détendre et recevoir. Cette maison est parfaite pour une vie confortable en famille. Nous réalisons votre projet sur-mesure, contactez-moi Julie Texier au (Numéro supprimé)CONSTRUCTIONS IDEALE DEMEURE a sélectionné avec un partenaire foncier un terrain pour construire cette maison.
Ambillou
TERRAINSTOCKS TERRAINS DISPONIBLES auprès de Rodolphe MARY AU (Numéro supprimé)Situé sur la commune ; Ambillou (37340)Parcelle de 550m2, VIABILISE ET PRET A CONSTUIREEmplacement recherché et rare Pas de vis à vis et vraiment très calme, proche centre ville !!!pour 49000€A ne pas manquer !!
Ambillou
TERRAIN ET MAISONMaison spacieuse et bien pensée, vous seduira par sa configuration optimisée. La pièce de vie de forme en L, se compose d’une cuisine ouverte donnant sur le jardin avec son cellier traversant.2 chambres de 10 et 12m2, une salle d’eau avec sa douche et son vasque suspendu. L’ensemble avec un garage intégré;Imaginons ensemble la maison qui vous ressemble pour que votre projet prenne vie, contactez dès aujourd’hui Rodolphe MARY au (Numéro supprimé), conseiller technique de l’habitat.CONSTRUCTIONS IDEALE DEMEURE a sélectionné avec un partenaire foncier un terrain pour construire cette maison.
Ambillou
TERRAIN ET MAISONDécouvrez une réalisation résolument moderne et luxueuse à travers cette demeure sur mesure. A l’architecture contemporaine, apportant élégance et confort de vie. Vous accueille par un hall ouvert, avec un espace de rangement. L’espace à vivre est divisé en 3 parties, son espace billard, son espace salon séjour et sa cuisine intégrée avec son ilot central. Son espace nuit au rez de chaussée comprend une suite parentale complete, salle d’eau et wc séparé. Un bureau donnant sur un patio et un espace technique. Al’étage, 2 chambres avec espaces de rangement, une salle de bain et un wc séparé. Un double garage et un cellier la compose ;Imaginons ensemble la maison qui vous ressemble pour que votre projet prenne vie, contactez dès aujourd’hui Rodolphe MARY au (Numéro supprimé), conseiller technique de l’habitat.CONSTRUCTIONS IDEALE DEMEURE a sélectionné avec un partenaire foncier un terrain pour construire cette maison.
Ambillou
TERRAIN ET MAISONMaison avec comble aménagé de forme compacte, avec son décroché et son Porche qui lui donne son style.A l’entrée vous disposez d’un placard de rangement avec un escalier en quart tournant. L’espace est bien pensé pour laisser apparaitre une suite parentale avec sa salle d’eau privative. l’ espace à vivre est traversant et très lumineux.La cuisine est intégrée et donne acces à son cellier. A l’étage on retrouve 2 belles chambres avec ses espaces de rangement, wc séparé et une grande salle d’eaucomposé d’une douche et d’un meuble vasque. Un garage accolé de 15m2 le complète;Imaginons ensemble la maison qui vous ressemble pour que votre projet prenne vie, contactez dès aujourd’hui Rodolphe MARY au (Numéro supprimé), conseiller technique de l’habitat.CONSTRUCTIONS IDEALE DEMEURE a sélectionné avec un partenaire foncier un terrain pour construire cette maison.
Ambillou
TERRAIN ET MAISONUn Auvent compose cette maison sur la partie jardin pour aménager un espace détente, une table. Un porche vous accueil et acceder sur un hall d’entrée avec un espace de rangement. Une pièce de vie lumineuse et ouverte sur l’auvent.La cuisine associée dans le décroché, son cellier et l’acces à son garage intégré. Dans l’espace nuit, on retrouve 3 grandes chambres avec une salle d’eau de 6m2, un wc séparéImaginons ensemble la maison qui vous ressemble pour que votre projet prenne vie, contactez dès aujourd’hui Rodolphe MARY au (Numéro supprimé), conseiller technique de l’habitat.CONSTRUCTIONS IDEALE DEMEURE a sélectionné avec un partenaire foncier un terrain pour construire cette maison.
Ambillou
TERRAIN ET MAISONMaison avec son pignon en façade, vous séduira par son style. Vous accueille par son porche. Une grande pièce de vie ouverte avec un espace de rangement. une cuisine séparé par une cloison pour démarquer les volumes.L’espace nuit se compose de 3 belles chambres fonctionnelles avec ses placards de rangement, une grande salle d’eau avec douche et meuble vasque, ainsi que son Wc séparé. Un garage intégré de 15m2 et un cellier de 5m2Imaginons ensemble la maison qui vous ressemble pour que votre projet prenne vie, contactez dès aujourd’hui Rodolphe MARY au (Numéro supprimé), conseiller technique de l’habitat.CONSTRUCTIONS IDEALE DEMEURE a sélectionné avec un partenaire foncier un terrain pour construire cette maison.
Ambillou
TERRAIN ET MAISONMaison de plain pied rectangulaire. vous accueille avec son grand espace à vivre de 40m2. Une cuisine en U ouverte et bien penséeUn espace de nuit composé de 3 belles chambres avec ses espaces de rangement, une salle d’eau avec une douche, un meuble vasque et son wc séparé. Un garage intégré 15m2 et un cellier 5m2Imaginons ensemble la maison qui vous ressemble pour que votre projet prenne vie, contactez dès aujourd’hui Rodolphe MARY au (Numéro supprimé), conseiller technique de l’habitat.CONSTRUCTIONS IDEALE DEMEURE a sélectionné avec un partenaire foncier un terrain pour construire cette maison.
Ambillou
TERRAIN ET MAISONMaison avec comble aménagée de forme compacte. A l’entrée vous disposez d’un placard de rangement sur un espace à vivre traversant et très lumineux.La cuisine intégré en U avec ses confortables espaces de rangement. Dans l’espace nuit en rez de chaussée on retrouve 1 suite parentale avec sa salle d’eau privative.A l’étage, 3 belles chambres avec ses espaces de rangement, wc séparé et une grande salle de baincomposé d’une baignoire et d’un meuble vasque. Un garage accolé de 15m2 le complète ; Imaginons ensemble la maison qui vous ressemble pour que votre projet prenne vie, contactez dès aujourd’hui Rodolphe MARY au (Numéro supprimé), conseiller technique de l’habitat.CONSTRUCTIONS IDEALE DEMEURE a sélectionné avec un partenaire foncier un terrain pour construire cette maison.
L’actualité immobilière à Savigné-sur-Lathan
27/11/2023
02/11/2023
30/10/2023
20/10/2023
16/10/2023
16/10/2023