Terrain à vendre

Maison à construire à Saint-Épain (37800)

233000 €
110 m²
Saint-Épain
Indre-et-Loire (37)
TERRAIN ET MAISON
Réf externe: 3568353
Annonce publiée le 14 décembre 2025

Images

Description

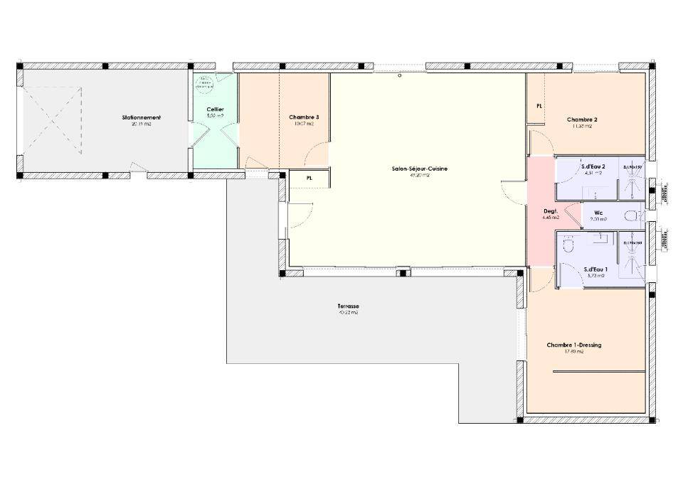
OPPORTUNITE A SAISIR - DEVENEZ PROPRIÉTAIRE DE VOTRE MAISON SUR-MESURE

Découvrez cette demeure conçue et bâtie avec tout le savoir-faire des Maisons de Stéphanie, constructeur reconnu pour ses 30 années d'expérience et son exigence de qualité.
Chaque détail est pensé pour votre confort et vos envies : une architecture élégante, des espaces lumineux et fonctionnels, et la possibilité d'adapter les plans selon votre mode de vie.

Saisissez dès maintenant l'opportunité de faire de cette maison votre nouveau lieu de vie !

📞 Contactez dès maintenant votre conseillère Tiphanie DUMOND des Maisons Stéphanie pour plus d'informations ou pour planifier une visite.

*2.47.48.09.30

N'attendez plus pour démarrer votre projet de construction, rencontrons-nous !

CONTACTER

Logement susceptibles de vous intéresser

173 506 €
95 m²

Villaines-les-Rochers

TERRAIN ET MAISON

Nous vous proposons cette maison neuve, baptisée «  »Dynamique » », un modèle à étage qui allie parfaitement fonctionnalité, esthétique et performance énergétique. Avec une surface habitable de 95 m², cette maison est conçue pour offrir un cadre de vie confortable et moderne à ses occupants. Elle comprend 2 chambres spacieuses et un total de 3 pièces, permettant ainsi une organisation de l’espace à la fois pratique et agréable.**Un prix très attractif**Le modèle Dynamique se distingue par son excellent rapport qualité/prix. Pensée pour satisfaire toutes vos attentes, cette maison ne fait aucun compromis sur la qualité et l’efficacité. Elle est conforme aux dernières normes en matière d’isolation et d’économie d’énergie, répondant ainsi parfaitement aux exigences de la réglementation environnementale RE2020. Cette maison basse consommation vous garantit des économies d’énergie significatives tout en respectant l’environnement.**Une maison modulable et personnalisable**La grande force de ce modèle réside dans sa capacité à s’adapter à vos besoins et à vos envies. Que vous optiez pour des combles aménagés ou aménageables, avec ou sans garage, le modèle Dynamique offre une flexibilité remarquable. Vous avez la possibilité de personnaliser votre maison en choisissant parmi une large gamme d’options très demandées par nos clients, telles qu’un garage accolé, des menuiseries en aluminium, un système de domotique avancé pour une maison connectée, ou encore un enduit bi-ton pour une façade à votre image.Cette maison est donc une toile vierge sur laquelle vous pouvez projeter vos rêves et vos aspirations, en la façonnant selon vos désirs. Que ce soit en termes d’aménagement intérieur, de choix des matériaux ou de solutions technologiques intégrées, le modèle Dynamique est conçu pour s’adapter à votre mode de vie et refléter votre personnalité.En choisissant le modèle Dynamique, vous optez pour une maison neuve, moderne et économe en énergie, qui saura vous accompagner

L’actualité immobilière à Saint-Épain

Image du post Pourquoi acheter un terrain en lotissement ? 27/11/2023
Lire l’article
Pourquoi acheter un terrain en lotissement ?
Image du post Vendre son terrain à un promoteur : comment procéder ? 02/11/2023
Lire l’article
Vendre son terrain à un promoteur : comment procéder ?
Image du post Diviser le terrain de sa maison pour le vendre : pourquoi et comment ? 30/10/2023
Lire l’article
Diviser le terrain de sa maison pour le vendre : pourquoi et comment ?
Image du post Acheter un terrain viabilisé : quels avantages ? 20/10/2023
Lire l’article
Acheter un terrain viabilisé : quels avantages ?
Image du post Les 7 étapes incontournables pour bien vendre votre terrain constructible 16/10/2023
Lire l’article
Les 7 étapes incontournables pour bien vendre votre terrain constructible
Image du post 5 points clés à vérifier pour l’achat d’un terrain constructible  16/10/2023
Lire l’article
5 points clés à vérifier pour l’achat d’un terrain constructible