Images
Description
Sur ce terrain, nous vous proposons cette maison neuve : la Conception, un modèle exclusif signé Maisons Concept, constructeur reconnu pour offrir le meilleur rapport qualité/prix du marché.
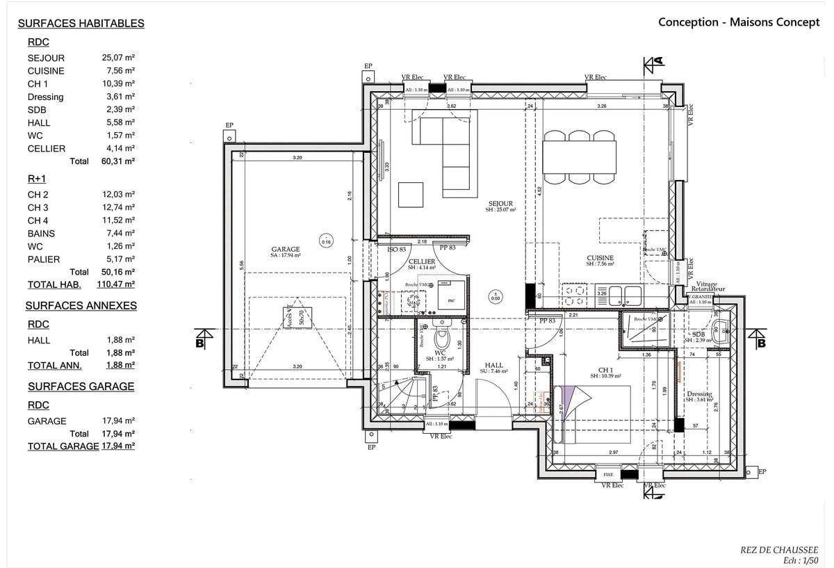
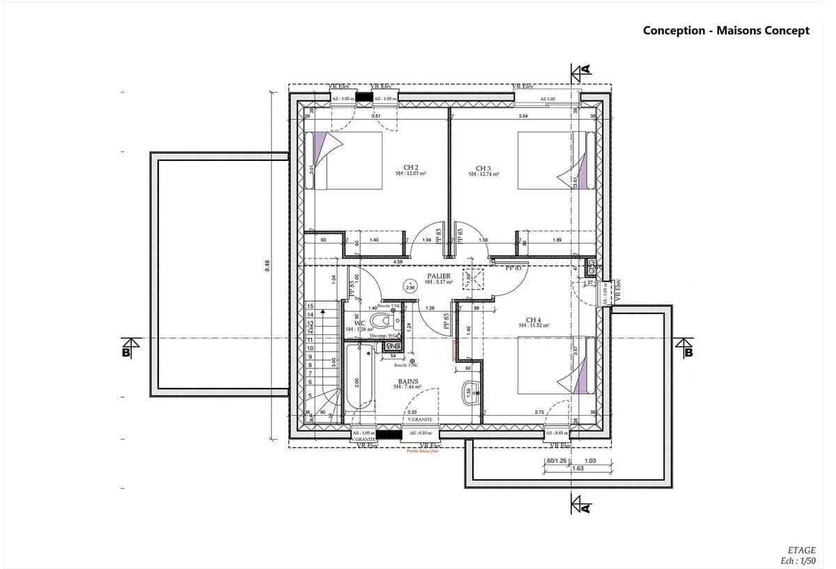
Cette maison contemporaine à étage, d’une superficie de 110 m², allie lignes traditionnelles et touches de design moderne pour une esthétique épurée et captivante. La Conception se distingue par son architecture compacte et son garage accolé à toit plat, garantissant une intégration harmonieuse dans son environnement.
À l’intérieur, la Conception est pensée pour le confort et la fonctionnalité. Elle offre 4 chambres spacieuses dont une suite parentale, ainsi qu’une vaste pièce de vie ouverte, idéale pour partager des moments conviviaux en famille ou entre amis. La dalle béton à l’étage assure une isolation phonique et thermique optimale, renforçant le confort au quotidien.
Cette maison neuve est conforme à la norme RE2020, gage de basse consommation énergétique et de respect des exigences environnementales les plus récentes. Les options les plus plébiscitées, telles que la domotique ou les menuiseries aluminium, sont disponibles afin de personnaliser votre future maison selon vos envies.
Optez pour la Conception et découvrez une maison où chaque détail est pensé pour offrir une expérience de vie harmonieuse et moderne. Ne manquez pas cette opportunité unique de devenir propriétaire d’un modèle alliant élégance, praticité et performance énergétique.
Logement susceptibles de vous intéresser
Nous vous proposons de découvrir aussi cette sélection de logements situés à moins de 10km de Saint-Épain et qui seraient susceptibles de vous intéresser.
Saint-Épain
TERRAIN ET MAISONTrès joli terrain de 890m2 dans secteur calme. Une maison pensée pour vous, compacte et pleine de charme ! Vous rêvez d’un chez-vous fonctionnel, moderne et confortable ? Ce modèle optimisé vous offre 3 chambres bien agencées, un espace de vie lumineux et ouvert de près de 37 m², une salle de bain + une salle d’eau, un cellier pratique et un garage intégré. Idéale pour un premier achat ou un investissement malin, cette maison a tout d’une grande !. Pour un confort optimal et conforme à la RE2025, cette maison dispose d’une PAC avec plancher chauffant et volets roulants électriques. À noter : Le prix indiqué exclut les revêtements de sol des chambres, la cuisine aménagée, la peinture, la décoration, les raccordements, les frais de notaire et l’assurance dommages-ouvrage. // Réf. : 41-213539-ALD. Prix terrain : 35 000 €, hors frais d'agence à la charge de l'acquéreur. Ce terrain vous est proposé, par nos partenaires fonciers, dans le cadre d'un projet de construction avec nous. Les informations sur les risques auxquels ce bien est exposé sont disponibles sur le site Géorisques (www.georisques.gouv.fr). Prix maison : 169 815 €.
Saché
TERRAINNous vous présentons ce terrain d’exception situé à Saché, au cœur de l’Indre-et-Loire, d’une superficie généreuse de 997 m². Ce bien unique offre un cadre idéal pour la conception de votre future maison, où vous pourrez exprimer pleinement vos envies et besoins en matière d’habitat. La tranquillité des lieux, combinée à la beauté naturelle environnante, en fait une opportunité à ne pas manquer. Saché, nichée dans la région Centre-Val de Loire, allie à merveille patrimoine et dynamisme. Vous profiterez de la proximité immédiate avec des attractions locales telles que les charmants châteaux de la Loire, ainsi que de commodités diversifiées allant des commerces aux écoles, qui rendent la vie quotidienne agréable et pratique. Sa situation géographique permet également d’accéder facilement aux axes de transport principaux, facilitant ainsi vos déplacements vers Tours et ses alentours. Ce terrain représente un potentiel magnifique pour construire la maison de vos rêves. Nous vous invitons à considérer cette opportunité d’achat unique. À noter qu’en tant que constructeur, nous ne sommes pas mandatés pour réaliser la vente de ce terrain.
Villaines-les-Rochers
TERRAINÀ la recherche d’un terrain idéal pour concrétiser votre projet de construction de maison?? Ne cherchez pas plus loin! Nous vous présentons ce terrain spacieux de 1251 m² situé à Villaines-les-Rochers, en Indre-et-Loire. Ce terrain non viabilisé offre un bel espace pour bâtir la maison de vos rêves, dans un cadre paisible et verdoyant, propice à la tranquillité et à l’épanouissement familial. Villaines-les-Rochers, charmante commune du Centre-Val de Loire, est réputée pour son environnement naturel enchanteur et son attractivité locale. Profitez de la proximité avec les commodités essentielles, tels que magasins, écoles et infrastructures sportives. La ville est également bien desservie par les axes routiers, facilitant l’accès aux villes environnantes. De plus, ses paysages pittoresques et ses richesses culturelles en font un lieu incontournable pour quiconque souhaite s’installer dans la région. Ce terrain offre un potentiel immense pour les futurs acheteurs souhaitant créer leur havre de paix. N’attendez plus pour saisir cette opportunité unique?! À noter qu’en tant que constructeur, nous ne sommes pas mandatés pour réaliser la vente de ce terrain.
Villaines-les-Rochers
TERRAIN ET MAISONNous vous proposons cette maison neuve, baptisée « »Dynamique » », un modèle à étage qui allie parfaitement fonctionnalité, esthétique et performance énergétique. Avec une surface habitable de 95 m², cette maison est conçue pour offrir un cadre de vie confortable et moderne à ses occupants. Elle comprend 2 chambres spacieuses et un total de 3 pièces, permettant ainsi une organisation de l’espace à la fois pratique et agréable.**Un prix très attractif**Le modèle Dynamique se distingue par son excellent rapport qualité/prix. Pensée pour satisfaire toutes vos attentes, cette maison ne fait aucun compromis sur la qualité et l’efficacité. Elle est conforme aux dernières normes en matière d’isolation et d’économie d’énergie, répondant ainsi parfaitement aux exigences de la réglementation environnementale RE2020. Cette maison basse consommation vous garantit des économies d’énergie significatives tout en respectant l’environnement.**Une maison modulable et personnalisable**La grande force de ce modèle réside dans sa capacité à s’adapter à vos besoins et à vos envies. Que vous optiez pour des combles aménagés ou aménageables, avec ou sans garage, le modèle Dynamique offre une flexibilité remarquable. Vous avez la possibilité de personnaliser votre maison en choisissant parmi une large gamme d’options très demandées par nos clients, telles qu’un garage accolé, des menuiseries en aluminium, un système de domotique avancé pour une maison connectée, ou encore un enduit bi-ton pour une façade à votre image.Cette maison est donc une toile vierge sur laquelle vous pouvez projeter vos rêves et vos aspirations, en la façonnant selon vos désirs. Que ce soit en termes d’aménagement intérieur, de choix des matériaux ou de solutions technologiques intégrées, le modèle Dynamique est conçu pour s’adapter à votre mode de vie et refléter votre personnalité.En choisissant le modèle Dynamique, vous optez pour une maison neuve, moderne et économe en énergie, qui saura vous accompagner
Saint-Épain
TERRAINDécouvrez ce terrain exceptionnel de 2097 m², situé dans la charmante commune de Saint-Épain, en Indre-et-Loire, au cœur de la région Centre-Val de Loire. Ce magnifique terrain non viabilisé offre une toile de fond idéale pour votre projet de construction de maison. Avec sa surface généreuse, ce bien vous permettra d’imaginer une habitation à votre goût, tout en profitant d’un cadre naturel apaisant. Saint-Épain est une ville pleine de charme, qui saura vous séduire par son ambiance conviviale et ses attractions locales. Située à proximité des commodités nécessaires au quotidien, vous trouverez écoles, commerces et activités récréatives accessibles à quelques minutes. Les paysages environnants sont également propices aux randonnées et aux sorties familiales, vous offrant ainsi une qualité de vie inestimable. Ce terrain, à la fois proche des axes de circulation et de la nature, représente une opportunité rare à ne pas manquer. Ne laissez pas passer cette chance de concrétiser votre rêve de construction dans un environnement privilégié. N’hésitez pas à nous contacter pour discuter de ce projet d’avenir. À noter qu’en tant que constructeur, nous ne sommes pas mandatés pour réaliser la vente de ce terrain.
Saint-Épain
TERRAIN ET MAISONTrès joli terrain de 890m2 dans secteur calme. Une maison familiale spacieuse et parfaitement agencée !. Avec ses 134 m² de surface habitable, ce modèle séduit par une configuration équilibrée et fluide. L’entrée dessert un vaste espace de vie central de près de 50 m², idéal pour partager, recevoir et profiter d’une belle luminosité. Le coin nuit, bien séparé, comprend 4 vraies chambres, deux WC, une salle de bain et une salle d’eau : une vraie réponse aux besoins d’une famille active. Un dressing spacieux, un grand cellier et un garage complètent ce plan bien pensé. Tout est réuni pour une vie de famille sereine dans une maison moderne, confortable et facile à vivre. Pour un confort optimal et conforme à la RE2025, cette maison dispose d’une PAC avec plancher chauffant et volets roulants électriques. À noter : Le prix indiqué exclut les revêtements de sol des chambres, la cuisine aménagée, la peinture, la décoration, les raccordements, les frais de notaire et l’assurance dommages-ouvrage. . // Réf. : 74-213539-ALD. Prix terrain : 35 000 €, hors frais d'agence à la charge de l'acquéreur. Ce terrain vous est proposé, par nos partenaires fonciers, dans le cadre d'un projet de construction avec nous. Les informations sur les risques auxquels ce bien est exposé sont disponibles sur le site Géorisques (www.georisques.gouv.fr). Prix maison : 286 057 €.
Trogues
TERRAINNous vous présentons ce magnifique terrain de 3090 m², situé dans la charmante commune de Trogues, au sein de l’Indre-et-Loire, région Centre-Val de Loire. Ce parcelle offre un potentiel exceptionnel pour un projet de construction résidentielle. Non viabilisé, ce terrain vous permet de concevoir une maison parfaitement adaptée à vos besoins et envies, dans un environnement paisible et verdoyant. La ville de Trogues, au cœur d’une région riche en histoire et en nature, est idéalement située à proximité de nombreuses commodités. Vous trouverez à proximité des services essentiels, des écoles et des commerces, ainsi que des activités de loisirs telles que des randonnées et des découvertes culturelles. Les paysages environnants et la tranquillité de la vie rurale ajoutent à l’attrait de ce terrain, tout en étant facilement accessible depuis les grandes villes. Le potentiel de ce terrain, dans un environnement accueillant et dynamique, fait de cette opportunité une occasion à ne pas manquer. Ne manquez pas la chance de concrétiser votre projet de rêve sur ce terrain unique, où tout est possible. N’hésitez pas à nous contacter pour plus d’informations sur cette offre rare. À noter qu’en tant que constructeur, nous ne sommes pas mandatés pour réaliser la vente de ce terrain.
Crissay-sur-Manse
TERRAINNous vous présentons un terrain exceptionnel de 1465 m², situé dans la charmante commune de Crissay-sur-Manse, en Indre-et-Loire. Ce bien, non viabilisé, offre un potentiel remarquable pour la construction de votre future maison. Entouré de paysages pittoresques et de verdure, ce terrain constitue une toile vierge idéale pour réaliser le projet de vos rêves dans un cadre paisible et agréable. Crissay-sur-Manse se situe au cœur de la belle région Centre-Val de Loire, réputée pour son patrimoine historique et sa tranquillité. Vous apprécierez la proximité des commodités locales, telles que les commerces, les écoles et les marchés, tout en étant à quelques encablures des attractions touristiques emblématiques de la région. Entre les châteaux renommés et les activités de plein air, cette ville offre un cadre de vie privilégié dans un environnement naturel préservé. Ne manquez pas cette opportunité unique d’acquérir un terrain offrant un potentiel infini pour votre projet d’habitation. Contactez-nous dès aujourd’hui pour explorer les multiples possibilités qui s’offrent à vous. À noter qu’en tant que constructeur, nous ne sommes pas mandatés pour réaliser la vente de ce terrain.
Neuil
TERRAINDécouvrez ce terrain exceptionnel de 515 m² situé dans la charmante commune de Neuil, au cœur d’Indre-et-Loire, dans la région dynamique de Centre-Val de Loire. Ce terrain non viabilisé offre une toile vierge idéale pour un projet de construction de maison, vous permettant de concrétiser vos rêves d’habitat sur mesure. Profitez d’un cadre de vie paisible, tout en bénéficiant d’un emplacement privilégié à proximité des commodités essentielles. Neuil est une ville qui allie tranquillité et accessibilité, séduit par ses paysages verdoyants et son atmosphère conviviale. En étant proche de la riche histoire culturelle de la région, vous pourrez profiter des châteaux de la Loire, des sentiers de randonnée pittoresques et des marchés locaux qui font la renommée du département. La ville est également bien desservie par des infrastructures scolaires et commerciales, offrant un cadre de vie épanouissant pour les familles et les amateurs de nature. Ne laissez pas passer cette occasion unique d’investir dans un lieu au fort potentiel. Ce terrain est une véritable opportunité d’achat à ne pas manquer pour ceux qui souhaitent bâtir leur avenir. N’hésitez pas à nous contacter pour plus d’informations. À noter qu’en tant que constructeur, nous ne sommes pas mandatés pour réaliser la vente de ce terrain.
L’actualité immobilière à Saint-Épain
27/11/2023
02/11/2023
30/10/2023
20/10/2023
16/10/2023
16/10/2023