Terrain à vendre

Maison à construire à Saint-Laurent-en-Gâtines (37380)

223400 €
75 m²
Saint-Laurent-en-Gâtines
Indre-et-Loire (37)
TERRAIN ET MAISON
Réf externe: 3545803
Annonce publiée le 14 décembre 2025

Images

Description

Origin 75 Nord
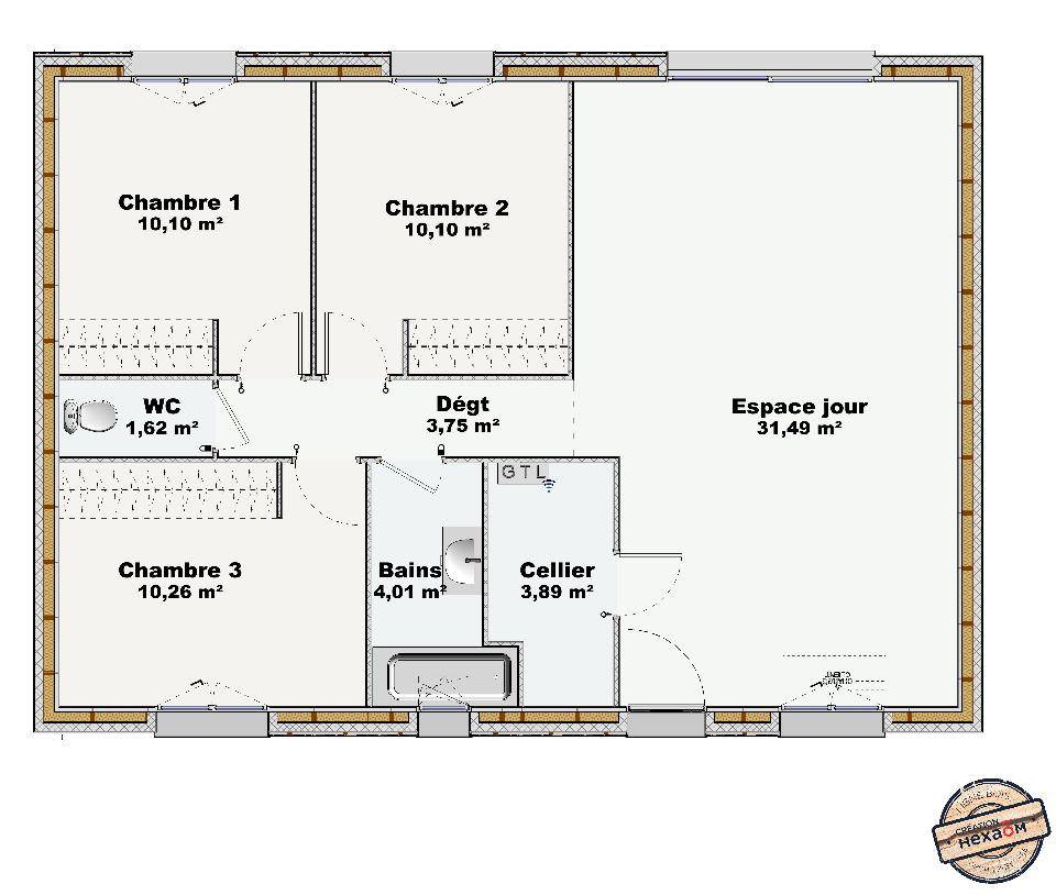
Ce plan présente une maison de plain-pied optimisée pour le confort et la fonctionnalité. Avec une surface habitable de 75 m², elle comprend trois chambres de tailles similaires (environ 10 m² chacune), un espace jour spacieux de 31 m², une salle de bains de 4 m², un cellier de 3,89 m², des WC séparés de 1,62 m² et un dégagement central de 3,75 m². La disposition des pièces favorise une circulation fluide et une utilisation efficace de l'espace. L'espace jour, baigné de lumière naturelle, constitue le coeur de la maison, idéal pour les moments de partage en famille ou entre amis.
La construction en ossature bois offre de nombreux avantages. Elle permet une excellente isolation thermique et acoustique, réduisant ainsi les besoins en chauffage et en climatisation. De plus, le bois est un matériau renouvelable et écologique, contribuant à la réduction de l'empreinte carbone de la maison. La préfabrication des éléments en bois permet également un montage rapide sur le chantier, réduisant les délais de construction. Enfin, le bois crée une atmosphère chaleureuse et naturelle, favorisant le bien-être des occupants.

Nous réalisons votre projet sur-mesure, contactez-moi Julie Texier au (Numéro supprimé)

CONSTRUCTIONS IDEALE DEMEURE a sélectionné avec un partenaire foncier un terrain pour construire cette maison.

CONTACTER

Logement susceptibles de vous intéresser

224 550 €
424 m²

Nouzilly

TERRAIN ET MAISON

Terrain de 424 m² situé à proximité des commodités du village. Accès rapide vers Monnaie et Tours Nord, idéal pour un projet de construction. Une maison spacieuse et astucieuse, idéale pour les terrains optimisés ! Grâce à son conception intelligente, cette maison s’intègre parfaitement sur des terrains plus restreints sans compromettre l’espace et le confort. Au rez-de-chaussée, une grande pièce de vie lumineuse vous accueille, offrant une harmonie parfaite entre salon, salle à manger et cuisine ouverte. Un cellier pratique vient compléter cet espace, facilitant le rangement au quotidien. Une salle d’eau et un WC indépendant apportent un confort supplémentaire. L’étage est dédié au repos avec quatre chambres bien agencées, permettant à chaque membre de la famille de disposer de son propre espace. Une salle de bain fonctionnelle et un second WC garantissent une organisation fluide pour toute la famille. Une maison moderne, compacte et optimisée, idéale pour profiter pleinement de votre terrain !. Pour vous assurer un confort de vie optimal et en conformité avec la RE2025, nous avons opté pour un système de chauffage par pompe à chaleur (PAC) avec plancher chauffant au rez-de-chaussée et radiateurs à l’étage. Le logement est également équipé de volets roulants électriques.  Prix hors fourniture et pose : des appareils sanitaires (sauf système de chauffage et d'eau chaude sanitaire), du carrelage et de la faïence, des revêtements de sol dans les chambres. Hors décoration et aménagement intérieur et peinture. Hors raccordements, frais de notaire et dommage ouvrage. // Réf. : 1550-213495-MGA. Prix terrain : 58 300 €, hors frais d'agence à la charge de l'acquéreur. Ce terrain vous est proposé, par nos partenaires fonciers, dans le cadre d'un projet de construction avec nous. Les informations sur les risques auxquels ce bien est exposé sont disponibles sur le site Géorisques (www.georisques.gouv.fr). Prix maison : 166 250 €.

224 710 €
504 m²

Saint-Laurent-en-Gâtines

TERRAIN ET MAISON

Dans une commune dynamique à 25 minutes de Tours Nord, terrain viabilisé dans un petit lotissement proche école primaire et commerces. Un équilibre parfait entre élégance et fonctionnalité !  Cette maison est conçue pour allier confort, modernité et espaces bien pensés. Un vaste espace de vie de plus de 43 m², baigné de lumière, invite à la convivialité, tandis que les trois chambres spacieuses assurent calme et intimité. Son garage attenant et son cellier astucieux complètent un agencement pensé pour un quotidien fluide et organisé. Moderne, fonctionnelle et évolutive, elle s’adapte à votre mode de vie et à vos envies.  Un cadre de vie idéal pour ceux qui veulent conjuguer confort et raffinement… Prêts à vous y projeter ? .  . Pour un confort optimal et conforme à la RE2025, cette maison dispose d’une PAC avec plancher chauffant et volets roulants électriques.   À noter : Le prix indiqué exclut les revêtements de sol des chambres, la cuisine aménagée, la peinture, la décoration, les raccordements, les frais de notaire et l’assurance dommages-ouvrage. // Réf. : 130-213573-JFB. Prix terrain : 55 300 €, hors frais d'agence à la charge de l'acquéreur. Ce terrain vous est proposé, par nos partenaires fonciers, dans le cadre d'un projet de construction avec nous. Les informations sur les risques auxquels ce bien est exposé sont disponibles sur le site Géorisques (www.georisques.gouv.fr). Prix maison : 169 410 €.

340 557 €
418 m²

Beaumont-Louestault

TERRAIN ET MAISON

Dans un environnement calme et agréable, terrain entièrement viabilisé proche toutes commodités. Une maison familiale spacieuse et parfaitement agencée !. Avec ses 134 m² de surface habitable, ce modèle séduit par une configuration équilibrée et fluide. L’entrée dessert un vaste espace de vie central de près de 50 m², idéal pour partager, recevoir et profiter d’une belle luminosité. Le coin nuit, bien séparé, comprend 4 vraies chambres, deux WC, une salle de bain et une salle d’eau : une vraie réponse aux besoins d’une famille active. Un dressing spacieux, un grand cellier et un garage complètent ce plan bien pensé. Tout est réuni pour une vie de famille sereine dans une maison moderne, confortable et facile à vivre. Pour un confort optimal et conforme à la RE2025, cette maison dispose d’une PAC avec plancher chauffant et volets roulants électriques.   À noter : Le prix indiqué exclut les revêtements de sol des chambres, la cuisine aménagée, la peinture, la décoration, les raccordements, les frais de notaire et l’assurance dommages-ouvrage.  . // Réf. : 74-213586-JFB. Prix terrain : 54 500 €, hors frais d'agence à la charge de l'acquéreur. Ce terrain vous est proposé, par nos partenaires fonciers, dans le cadre d'un projet de construction avec nous. Les informations sur les risques auxquels ce bien est exposé sont disponibles sur le site Géorisques (www.georisques.gouv.fr). Prix maison : 286 057 €.

279 702 €
504 m²

Saint-Laurent-en-Gâtines

TERRAIN ET MAISON

Dans une commune dynamique à 25 minutes de Tours Nord, terrain viabilisé dans un petit lotissement proche école primaire et commerces. Une maison qui s’adapte à vous, et non l’inverse !  Oubliez les plans figés, ici c’est vous qui donnez le ton ! Un vaste espace de vie de près de 50 m², baigné de lumière et pensé pour des moments de convivialité. Une chambre au rez-de-chaussée avec salle d’eau attenante, idéale pour votre confort ou celui de vos invités. À l’étage, trois chambres spacieuses et une salle de bain vous offrent un cocon parfait. Ajoutez à cela un garage pratique et un cellier malin, et vous obtenez une maison qui évolue avec vous.  Design, confort et flexibilité. Il ne manque que votre touche ! . Pour un confort optimal et conforme à la RE2025, cette maison dispose d’une PAC avec plancher chauffant, radiateurs à l’étage et volets roulants électriques.   À noter : Le prix indiqué exclut les revêtements de sol des chambres, la cuisine aménagée, la peinture, la décoration, les raccordements, les frais de notaire et l’assurance dommages-ouvrage.  . // Réf. : 113-213573-JFB. Prix terrain : 55 300 €, hors frais d'agence à la charge de l'acquéreur. Ce terrain vous est proposé, par nos partenaires fonciers, dans le cadre d'un projet de construction avec nous. Les informations sur les risques auxquels ce bien est exposé sont disponibles sur le site Géorisques (www.georisques.gouv.fr). Prix maison : 224 402 €.

278 902 €
418 m²

Beaumont-Louestault

TERRAIN ET MAISON

Dans un environnement calme et agréable, terrain entièrement viabilisé proche toutes commodités. Une maison qui s’adapte à vous, et non l’inverse !  Oubliez les plans figés, ici c’est vous qui donnez le ton ! Un vaste espace de vie de près de 50 m², baigné de lumière et pensé pour des moments de convivialité. Une chambre au rez-de-chaussée avec salle d’eau attenante, idéale pour votre confort ou celui de vos invités. À l’étage, trois chambres spacieuses et une salle de bain vous offrent un cocon parfait. Ajoutez à cela un garage pratique et un cellier malin, et vous obtenez une maison qui évolue avec vous.  Design, confort et flexibilité. Il ne manque que votre touche ! . Pour un confort optimal et conforme à la RE2025, cette maison dispose d’une PAC avec plancher chauffant, radiateurs à l’étage et volets roulants électriques.   À noter : Le prix indiqué exclut les revêtements de sol des chambres, la cuisine aménagée, la peinture, la décoration, les raccordements, les frais de notaire et l’assurance dommages-ouvrage.  . // Réf. : 113-213586-JFB. Prix terrain : 54 500 €, hors frais d'agence à la charge de l'acquéreur. Ce terrain vous est proposé, par nos partenaires fonciers, dans le cadre d'un projet de construction avec nous. Les informations sur les risques auxquels ce bien est exposé sont disponibles sur le site Géorisques (www.georisques.gouv.fr). Prix maison : 224 402 €.

L’actualité immobilière à Saint-Laurent-en-Gâtines

Image du post Pourquoi acheter un terrain en lotissement ? 27/11/2023
Lire l’article
Pourquoi acheter un terrain en lotissement ?
Image du post Vendre son terrain à un promoteur : comment procéder ? 02/11/2023
Lire l’article
Vendre son terrain à un promoteur : comment procéder ?
Image du post Diviser le terrain de sa maison pour le vendre : pourquoi et comment ? 30/10/2023
Lire l’article
Diviser le terrain de sa maison pour le vendre : pourquoi et comment ?
Image du post Acheter un terrain viabilisé : quels avantages ? 20/10/2023
Lire l’article
Acheter un terrain viabilisé : quels avantages ?
Image du post Les 7 étapes incontournables pour bien vendre votre terrain constructible 16/10/2023
Lire l’article
Les 7 étapes incontournables pour bien vendre votre terrain constructible
Image du post 5 points clés à vérifier pour l’achat d’un terrain constructible  16/10/2023
Lire l’article
5 points clés à vérifier pour l’achat d’un terrain constructible