Terrain et maison à vendre à Saint-Paterne-Racan (37370)
Saint-Paterne-Racan
TERRAIN ET MAISONBeau terrain viabilisé situé dans un environnement calme et agréable, à proximité du centre-bourg et de ses commodités. Cette maison familiale moderne séduit par son architecture équilibrée et sa toiture à quatre pans, qui lui confèrent à la fois élégance et caractère. Au rez-de-chaussée, elle offre une vaste pièce de vie lumineuse ouverte sur la terrasse, idéale pour les moments de convivialité. On y trouve également une chambre avec dressing et salle d'eau privative, une cuisine fonctionnelle avec cellier, ainsi qu'un garage attenant. L'étage accueille trois chambres spacieuses, une salle de bains et un WC indépendant, offrant à chacun son espace de confort. Ce projet, entièrement personnalisable, allie modernité, praticité et bien-être familial, pour une maison aussi belle à vivre qu'à regarder. Pour vous assurer un confort de vie et conformément à la RE2025, nous avons choisi un mode de chauffage par PAC + plancher chauffant, volets roulants électriques. Prix hors décoration, revêtement de sol dans les chambres, frais de notaire, raccordements, dommage ouvrage. (Piscine non contractuelle et non comprise dans le prix. ). // Réf. : 2679-210421-JCT. Prix terrain : 35 600 €, hors frais d'agence à la charge de l'acquéreur. Ce terrain vous est proposé, par nos partenaires fonciers, dans le cadre d'un projet de construction avec nous. Les informations sur les risques auxquels ce bien est exposé sont disponibles sur le site Géorisques (www.georisques.gouv.fr). Prix maison : 300 000 €.
Saint-Paterne-Racan
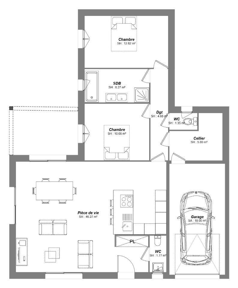
TERRAIN ET MAISONBeau terrain viabilisé situé dans un environnement calme et agréable, à proximité du centre-bourg et de ses commodités. Le modèle Islette séduit par son élégance intemporelle et son agencement en L parfaitement pensé. Avec ses 122 m² de plain-pied, cette maison contemporaine allie confort, fonctionnalité et luminosité, pour un cadre de vie à la fois convivial et apaisant. La pièce de vie centrale, baignée de lumière naturelle, devient le cœur de la maison, idéale pour partager des moments en famille ou entre amis. L’espace nuit, bien séparé, comprend 3 chambres, dont une suite parentale avec salle d’eau privative, ainsi qu’une seconde salle de bain pour encore plus de confort. Un cellier attenant à la cuisine, deux garages pratiques et une ouverture fluide sur le jardin complètent ce modèle au design soigné. Le modèle Islette se distingue par sa configuration astucieuse, son style modulable et ses prestations de qualité, pensées pour offrir un bien-être durable au quotidien. Pour vous assurer un confort de vie et conformément à la RE2025, nous avons choisi un mode de chauffage par PAC + plancher chauffant et volets roulants électriques. Prix hors décoration, frais de notaire, raccordements, dommage ouvrage. (Piscine non contractuelle et non comprise dans le prix. ). // Réf. : 2657-210421-JCT. Prix terrain : 35 600 €, hors frais d'agence à la charge de l'acquéreur. Ce terrain vous est proposé, par nos partenaires fonciers, dans le cadre d'un projet de construction avec nous. Les informations sur les risques auxquels ce bien est exposé sont disponibles sur le site Géorisques (www.georisques.gouv.fr). Prix maison : 304 000 €.
Saint-Paterne-Racan
TERRAIN ET MAISONBeau terrain viabilisé situé dans un environnement calme et agréable, à proximité du centre-bourg et de ses commodités. Laissez-vous séduire par cette maison familiale contemporaine au style élégant, mise en valeur par sa toiture à pans multiples qui lui confère un charme authentique. Parfaitement pensée pour le confort de toute la famille, elle offre une grande pièce de vie lumineuse, idéale pour se retrouver, ainsi que trois chambres dont une suite parentale avec dressing et salle d'eau privative et un bureau. Son garage intégré et son cellier attenant ajoutent une touche de praticité au quotidien. Cette maison allie modernité, espace et convivialité pour un cadre de vie chaleureux et harmonieux. Pour vous assurer un confort de vie et conformément à la RE2025, nous avons choisi un mode de chauffage par PAC + plancher chauffant, volets roulants électriques. Prix hors décoration, hors revêtement de sol dans les chambres, frais de notaire, raccordements, dommage ouvrage. (Piscine non contractuelle et non comprise dans le prix. ). // Réf. : 2678-210421-JCT. Prix terrain : 35 600 €, hors frais d'agence à la charge de l'acquéreur. Ce terrain vous est proposé, par nos partenaires fonciers, dans le cadre d'un projet de construction avec nous. Les informations sur les risques auxquels ce bien est exposé sont disponibles sur le site Géorisques (www.georisques.gouv.fr). Prix maison : 268 000 €.
Saint-Paterne-Racan
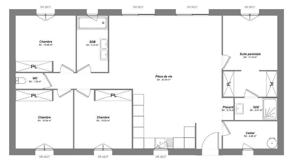
TERRAIN ET MAISONVous rêvez de faire construire ? Stéphane Digneton ( (Numéro supprimé))vous propose cette maison en L de 121m², avec 4 chambres dont une suite parentale. Elle comprend également 2 salles de bain, une belle pièce de vie lumineuse et un grand garage de plus de 20m². Entièrement personnalisable, n’hésitez pas à me contacter pour discuter de votre projet.CONSTRUCTIONS IDEALE DEMEURE a sélectionné avec un partenaire foncier un terrain pour construire cette maison.
Saint-Paterne-Racan
TERRAIN ET MAISONDécouvrez cette magnifique maison de plain-pied, idéale pour les familles, offrant un espace de vie généreux et des prestations de qualité.Caractéristiques principales :- Superficie : 110 m²- Pièce de vie lumineuse de 59 m² avec double exposition, parfaite pour accueillir vos moments en famille ou entre amis- 3 chambres confortables, chacune équipée de placards intégrés pour un rangement optimal- 2 WC séparés pour plus de praticité- Grand cellier attenant, idéal pour le stockage et l’organisation- Double garage, offrant un espace sécurisé pour vos véhicules et du rangement supplémentaireCette maison est située dans un quartier calme et recherché, à proximité des commodités et des écoles. Ne manquez pas cette opportunité de devenir propriétaire d’un bien spacieux et fonctionnel !Je reste disponible pour toutes demandes de renseignements, n’hésitez pas me contacter : Stéphane Digneton : (Numéro supprimé).CONSTRUCTIONS IDEALE DEMEURE a sélectionné avec un partenaire foncier un terrain pour construire cette maison.
Saint-Paterne-Racan
TERRAIN ET MAISONVoici une belle maison de 89m² à construire, offrant une grande pièce de vie lumineuse grâce à sa triple exposition. Elle comprend deux chambres confortables, une salle de bain équipée d’une douche et d’une baignoire, ainsi qu’un grand garage. Un atout majeur de cette maison est sa terrasse couverte, idéale pour profiter de l’extérieur en toute saison. De plus, elle est entièrement personnalisable selon vos envies et besoins.Je reste disponible pour toutes demandes de renseignements, n’hésitez pas me contacter : Stéphane Digneton : (Numéro supprimé).CONSTRUCTIONS IDEALE DEMEURE a sélectionné avec un partenaire foncier un terrain pour construire cette maison.
Saint-Paterne-Racan
TERRAIN ET MAISONVoici une belle maison à construire de 101m², comprenant quatre chambres dont une suite parentale. Elle dispose de deux salles de bain pour plus de confort. La grande pièce de vie de plus de 40m² est lumineuse grâce à ses deux baies vitrées. Cette maison allie espace et fonctionnalité pour toute la famille.Je reste disponible pour toutes demandes de renseignements, n’hésitez pas me contacter : Stéphane Digneton : (Numéro supprimé).CONSTRUCTIONS IDEALE DEMEURE a sélectionné avec un partenaire foncier un terrain pour construire cette maison.
Saint-Paterne-Racan
TERRAIN ET MAISONBelle maison de plain-pied d’une superficie totale de 82m².La disposition de cette maison permet d’opter pour un terrain avec une façade restreinte ainsi que s’adapter facilement aux exigences des terrains classés en bâtiments de France.Vous retrouverez dans cette jolie maison une pièce à vivre évolutive de 4m², un ensemble de 3 chambres, une salle d’eau ainsi d’un cellier et un WC.Concernant les prestations globales, vous retrouverez une pompe à chaleur, des menuiseries de couleur en aluminium, des combles aménageables…À vendre beau terrain constructible de 530 m², situé à Saint Paterne Racan, dans un environnement calme et agréable.Belle façade, idéal pour accueillir une maison familiale. Terrain viabilisé (eau, électricité, tout-à-l’égout, EDF, EP) Proche des commerces, écoles et transports.Prix : 34000 €Pour plus d’informations ou convenir d’une visite, n’hésitez à me contacter directement au (Numéro supprimé).
Saint-Paterne-Racan
TERRAIN ET MAISONBelle maison de plain-pied d’une superficie totale de 71m².Vous retrouverez dans cette jolie maison une pièce à vivre de 40m², un garage, un ensemble de 2 chambres, une salle d’eau ainsi d’un cellier et un WC.Concernant les prestations globales, vous retrouverez une pompe à chaleur couplée à un plancher chauffant, des menuiseries de couleur en aluminium, des combles aménageables…À vendre beau terrain constructible de 530 m², situé à Saint Paterne Racan, dans un environnement calme et agréable.Belle façade, idéal pour accueillir une maison familiale. Terrain viabilisé (eau, électricité, tout-à-l’égout, EDF, EP) Proche des commerces, écoles et transports.Prix : 34000 €Pour plus d’informations ou convenir d’une visite, n’hésitez à me contacter directement au (Numéro supprimé).
Saint-Paterne-Racan
TERRAIN ET MAISONJolie maison de type R+1 d’une superficie globale de 110m².Au rez-de-chaussée, vous trouverez un garage spacieux, une belle pièce de vie ainsi qu’un cellier.A l’étage, vous aurez la possibilité de faire entre trois et quatre chambres selon vos envies ainsi qu’une belle salle de bain.Concernant les prestations de la maison, vous retrouverez une pompe à chaleur couplée avec un plancher chauffant, des menuiseries de couleur en aluminium, un plancher béton, des ardoises artificielles…À vendre beau terrain constructible de 530 m², situé à Saint Paterne Racan, dans un environnement calme et agréable.Belle façade, idéal pour accueillir une maison familiale. Terrain viabilisé (eau, électricité, tout-à-l’égout, EDF, EP) Proche des commerces, écoles et transports.Prix : 34000 €Pour plus d’informations ou convenir d’une visite, n’hésitez à me contacter directement au (Numéro supprimé).
Saint-Paterne-Racan
TERRAIN ET MAISONA 20 minutes au Nord de Tours, dans une commune dynamique, belle parcelle entièrement viabilisée à proximité des commerces et des écoles. Un espace qui évolue avec vous ! Ici, tout est possible : un vaste salon-séjour lumineux de plus de 60 m², deux chambres confortables au rez-de-chaussée, et un étage modulable pour laisser libre cours à vos envies. Besoin d’une salle de jeux, d’un espace télétravail ou de chambres supplémentaires ? C’est vous qui décidez ! Avec une architecture élégante et un volume repensé pour la lumière, cette maison personnalisable n’attend que votre touche pour devenir votre chez-vous idéal. Une maison unique, pensée pour vous et par vous. Prêts à la façonner ?. Pour un confort optimal et conforme à la RE2025, cette maison dispose d’une PAC avec plancher chauffant, radiateurs à l’étage et volets roulants électriques. À noter : Le prix indiqué exclut les revêtements de sol des chambres, la cuisine aménagée, la peinture, la décoration, les raccordements, les frais de notaire et l’assurance dommages-ouvrage. (Piscine non contractuelle, non comprise dans le prix). // Réf. : 39-208441-JFB. Prix terrain : 26 500 €, hors frais d'agence à la charge de l'acquéreur. Ce terrain vous est proposé, par nos partenaires fonciers, dans le cadre d'un projet de construction avec nous. Les informations sur les risques auxquels ce bien est exposé sont disponibles sur le site Géorisques (www.georisques.gouv.fr). Prix maison : 310 850 €.
Saint-Paterne-Racan
TERRAIN ET MAISONA 20 minutes au Nord de Tours, dans une commune dynamique, belle parcelle entièrement viabilisée à proximité des commerces et des écoles. Une maison lumineuse et pleine de charme ! Avec son architecture élégante et intemporelle, cette maison séduit par ses volumes généreux et son agencement optimisé. Son grand espace de vie ouvert sur l’extérieur invite à la convivialité, tandis que ses 3 chambres bien pensées offrent confort et intimité. Un garage intégré et des espaces fonctionnels complètent ce cadre idéal pour toute la famille. Un intérieur chaleureux, une conception harmonieuse et un projet qui vous ressemble !Envie d’en savoir plus ? Faites le premier pas vers votre futur chez-vous !. . Pour un confort optimal et conforme à la RE2025, cette maison dispose d’une PAC avec plancher chauffant et volets roulants électriques. À noter : Le prix indiqué exclut les revêtements de sol des chambres, la cuisine aménagée, la peinture, la décoration, les raccordements, les frais de notaire et l’assurance dommages-ouvrage. // Réf. : 47-208441-JFB. Prix terrain : 26 500 €, hors frais d'agence à la charge de l'acquéreur. Ce terrain vous est proposé, par nos partenaires fonciers, dans le cadre d'un projet de construction avec nous. Les informations sur les risques auxquels ce bien est exposé sont disponibles sur le site Géorisques (www.georisques.gouv.fr). Prix maison : 167 124 €.
Saint-Paterne-Racan
TERRAIN ET MAISONA 20 minutes au Nord de Tours, dans une commune dynamique, belle parcelle entièrement viabilisée à proximité des commerces et des écoles. Une maison qui vous laisse toutes les possibilités ! Ici, l’espace et la lumière sont au rendez-vous ! Un vaste séjour de plus de 53 m², conçu pour accueillir vos moments de vie, et une cuisine qui ne demande qu’à être aménagée selon vos envies. Avec 4 belles chambres, dont une suite avec dressing et salle d’eau, chacun trouve son cocon. Deux salles de bain, un cellier malin, un garage fonctionnel… Tout est pensé pour un quotidien fluide et agréable. Une maison où chaque détail peut être façonné selon vos besoins… Prêts à vous projeter ?. . Pour un confort optimal et conforme à la RE2025, cette maison dispose d’une PAC avec plancher chauffant et volets roulants électriques. À noter : Le prix indiqué exclut les revêtements de sol des chambres, la cuisine aménagée, la peinture, la décoration, les raccordements, les frais de notaire et l’assurance dommages-ouvrage. // Réf. : 78-208441-JFB. Prix terrain : 26 500 €, hors frais d'agence à la charge de l'acquéreur. Ce terrain vous est proposé, par nos partenaires fonciers, dans le cadre d'un projet de construction avec nous. Les informations sur les risques auxquels ce bien est exposé sont disponibles sur le site Géorisques (www.georisques.gouv.fr). Prix maison : 284 048 €.
Saint-Paterne-Racan
TERRAIN ET MAISONNous vous proposons cette maison neuve, baptisée « »Topaze » », un modèle de charme issu de notre gamme Primaciel, conçu pour répondre aux attentes des familles modernes. Avec une superficie de 78 m², cette maison à construire offre un espace de vie optimisé et confortable, idéal pour un premier achat.La Topaze se distingue par son plan en L, offrant une architecture originale et une disposition intérieure fonctionnelle. Ce design permet de séparer judicieusement les espaces de vie et les zones de nuit, garantissant ainsi intimité et convivialité à ses habitants. Le porche d’entrée, élégant et accueillant, mène à un intérieur soigneusement agencé, composé de 4 pièces lumineuses, dont 3 chambres confortables, répondant parfaitement aux besoins d’une famille.L’intégration d’un garage offre non seulement un espace de stationnement sécurisé mais aussi un espace de rangement supplémentaire, essentiel pour une vie de famille organisée. Les options les plus plébiscitées, telles que l’enduit bi-ton et les baies coulissantes, sont disponibles pour personnaliser votre maison selon vos goûts et vos besoins, ajoutant une touche d’élégance et de modernité à votre façade et à votre espace de vie.Construite dans le respect des normes de la RE2020, cette maison basse consommation est un choix responsable, garantissant un confort optimal tout en minimisant votre empreinte écologique. La Topaze est donc une solution d’habitat durable, conçue pour réduire significativement vos factures énergétiques.En choisissant la Topaze, vous optez pour une maison qui allie esthétique, fonctionnalité et respect de l’environnement. Une opportunité à saisir pour les familles en quête d’un foyer chaleureux, durable et à leur image.
Saint-Paterne-Racan
TERRAIN ET MAISONNous vous proposons cette maison neuve, baptisée « »Élégance » », un modèle qui se distingue par sa forme en L, offrant à la fois style et fonctionnalité. Avec une surface habitable de 93 m², cette maison de plain-pied est conçue pour maximiser l’espace et le confort de ses résidents. Elle comprend un grand salon-séjour lumineux, ouvert sur une cuisine moderne, idéale pour partager des moments conviviaux en famille ou entre amis. L’architecture en L permet une séparation naturelle entre l’espace de vie et l’espace nuit, ce dernier étant composé de 3 chambres spacieuses, garantissant intimité et tranquillité. La maison dispose également d’un garage intégré, pratique pour sécuriser votre véhicule ou pour du stockage supplémentaire, ainsi qu’un cellier adjacent à la cuisine, parfait pour organiser vos provisions et ustensiles de cuisine.L’une des caractéristiques les plus appréciées de ce modèle est son enduit bi-ton, qui ajoute une touche d’élégance et de modernité à l’extérieur de la maison, la faisant ressortir dans n’importe quel environnement. Construite dans le respect des normes de la RE2020, cette maison basse consommation est un choix judicieux pour ceux qui cherchent à réduire leur empreinte écologique tout en bénéficiant d’un confort optimal. Elle est personnalisable selon vos besoins et vos envies, vous permettant de créer un foyer qui vous ressemble, adapté à votre mode de vie. » »Élégance » » est plus qu’une maison, c’est un lieu de vie pensé pour votre bien-être et celui de votre famille, où chaque détail a été conçu pour répondre à vos attentes les plus élevées. Ne manquez pas l’opportunité de construire la maison de vos rêves, un espace où chaque jour sera empreint de confort, de style et d’efficacité énergétique.
Saint-Paterne-Racan
TERRAIN ET MAISONNous vous proposons cette maison neuve, baptisée « »Graphite » », un modèle à étage qui combine habilement espace et élégance. Avec une surface habitable de 99 m², cette maison est conçue pour répondre aux besoins de confort et de fonctionnalité de ses résidents. Elle se distingue par son architecture soignée, offrant une avancée de façade avec un pignon qui lui confère une originalité remarquable tout en préservant un style traditionnel.La « »Graphite » » est composée de 4 chambres réparties intelligemment pour garantir l’intimité de chacun, et de 4 pièces conçues pour maximiser l’espace de vie commun. La dalle de l’étage en béton assure une solidité et une isolation phonique de qualité, tandis que les combles aménagés offrent un espace supplémentaire, idéal pour une salle de jeux, un bureau ou une chambre d’amis.La suite parentale, située au rez-de-chaussée, est pensée pour offrir un espace privé et confortable aux parents, avec un accès direct à la salle de bain et au dressing. Le garage accolé à la maison est un atout supplémentaire, offrant un espace de rangement pratique ou un abri sécurisé pour votre véhicule.Parmi les options les plus plébiscitées par nos clients, la « »Graphite » » peut être personnalisée avec des lucarnes, apportant plus de lumière et d’espace à l’étage, et des baies coulissantes, pour une ouverture élégante sur l’extérieur et une luminosité accrue dans les pièces de vie.Cette maison neuve est également conçue pour être basse consommation, conformément à la réglementation environnementale RE2020. Cela signifie que vous bénéficierez non seulement d’un confort optimal été comme hiver, mais aussi d’une réduction significative de vos factures énergétiques.Choisir la maison « »Graphite » », c’est opter pour une habitation qui allie esthétique, confort et respect de l’environnement. Une maison où il fera bon vivre, conçue pour s’adapter à votre mode de vie et à vos envies.
De 0 à 16 parmi 16 résultats
En savoir plus sur Saint-Paterne-Racan
Vous trouverez 16 terrain et maison disponibles à l’achat dans la ville de Saint-Paterne-Racan.
Les prix varient de 180 000€ à 339 600€. Le prix moyen constaté pour une annonce est de 252 343€.
Nos articles concernant Saint-Paterne-Racan
27/11/2023
02/11/2023
30/10/2023
20/10/2023
16/10/2023
16/10/2023