Maison à construire à Sainte-Maure-de-Touraine (37800)
Images
Description
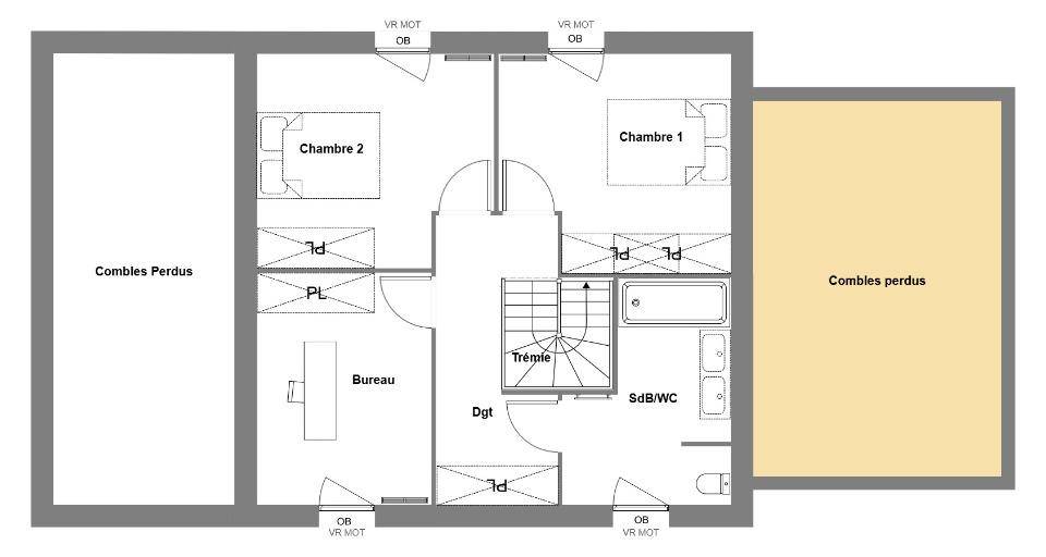
Offrez-vous une maison moderne et fonctionnelle à construire :
Surface de 127 m² : idéale pour toute la famille.
Rez-de-chaussée : suite parentale avec salle d'eau, garage attenant et belle pièce de vie spacieuse et lumineuse.
À l'étage : 3 chambres confortables et salle de bain.
Conception moderne et agencement optimisé.
Contactez-moi pour personnaliser votre future maison Julie (Numéro supprimé)
CONSTRUCTIONS IDEALE DEMEURE a sélectionné avec un partenaire foncier un terrain pour construire cette maison.
Logement susceptibles de vous intéresser
Nous vous proposons de découvrir aussi cette sélection de logements situés à moins de 10km de Sainte-Maure-de-Touraine et qui seraient susceptibles de vous intéresser.
Saint-Épain
TERRAIN ET MAISONTrès joli terrain de 890m2 dans secteur calme. Une maison pensée pour vous, compacte et pleine de charme ! Vous rêvez d’un chez-vous fonctionnel, moderne et confortable ? Ce modèle optimisé vous offre 3 chambres bien agencées, un espace de vie lumineux et ouvert de près de 37 m², une salle de bain + une salle d’eau, un cellier pratique et un garage intégré. Idéale pour un premier achat ou un investissement malin, cette maison a tout d’une grande !. Pour un confort optimal et conforme à la RE2025, cette maison dispose d’une PAC avec plancher chauffant et volets roulants électriques. À noter : Le prix indiqué exclut les revêtements de sol des chambres, la cuisine aménagée, la peinture, la décoration, les raccordements, les frais de notaire et l’assurance dommages-ouvrage. // Réf. : 41-213539-ALD. Prix terrain : 35 000 €, hors frais d'agence à la charge de l'acquéreur. Ce terrain vous est proposé, par nos partenaires fonciers, dans le cadre d'un projet de construction avec nous. Les informations sur les risques auxquels ce bien est exposé sont disponibles sur le site Géorisques (www.georisques.gouv.fr). Prix maison : 169 815 €.
Sepmes
TERRAIN ET MAISONTrès beau terrain de 1565m2 dans environnement calme, proche de Sainte-Maure-de-Touraine et de l'entrée d'autoroute A10. . Laissez-vous séduire par cette maison traditionnelle de 3 chambres, conçue pour offrir confort et convivialité grâce à son séjour lumineux et sa distribution parfaitement pensée. . Fonctionnelle, économique et agréable à vivre au quotidien, elle répond à tous les besoins modernes sans renoncer au charme authentique. Une belle opportunité pour concrétiser votre projet ! . Pour un confort optimal et conforme à la RE2025, cette maison dispose d’une PAC avec plancher chauffant et volets roulants électriques. À noter : Le prix indiqué exclut les revêtements de sol des chambres, la cuisine aménagée, la peinture, la décoration, les raccordements, les frais de notaire et l’assurance dommages ouvrage. . // Réf. : 2681-213525-ALD. Prix terrain : 16 000 €, hors frais d'agence à la charge de l'acquéreur. Ce terrain vous est proposé, par nos partenaires fonciers, dans le cadre d'un projet de construction avec nous. Les informations sur les risques auxquels ce bien est exposé sont disponibles sur le site Géorisques (www.georisques.gouv.fr). Prix maison : 132 034 €.
Saint-Épain
TERRAINDécouvrez ce terrain exceptionnel de 2097 m², situé dans la charmante commune de Saint-Épain, en Indre-et-Loire, au cœur de la région Centre-Val de Loire. Ce magnifique terrain non viabilisé offre une toile de fond idéale pour votre projet de construction de maison. Avec sa surface généreuse, ce bien vous permettra d’imaginer une habitation à votre goût, tout en profitant d’un cadre naturel apaisant. Saint-Épain est une ville pleine de charme, qui saura vous séduire par son ambiance conviviale et ses attractions locales. Située à proximité des commodités nécessaires au quotidien, vous trouverez écoles, commerces et activités récréatives accessibles à quelques minutes. Les paysages environnants sont également propices aux randonnées et aux sorties familiales, vous offrant ainsi une qualité de vie inestimable. Ce terrain, à la fois proche des axes de circulation et de la nature, représente une opportunité rare à ne pas manquer. Ne laissez pas passer cette chance de concrétiser votre rêve de construction dans un environnement privilégié. N’hésitez pas à nous contacter pour discuter de ce projet d’avenir. À noter qu’en tant que constructeur, nous ne sommes pas mandatés pour réaliser la vente de ce terrain.
Saint-Épain
TERRAIN ET MAISONTrès joli terrain de 890m2 dans secteur calme. Une maison familiale spacieuse et parfaitement agencée !. Avec ses 134 m² de surface habitable, ce modèle séduit par une configuration équilibrée et fluide. L’entrée dessert un vaste espace de vie central de près de 50 m², idéal pour partager, recevoir et profiter d’une belle luminosité. Le coin nuit, bien séparé, comprend 4 vraies chambres, deux WC, une salle de bain et une salle d’eau : une vraie réponse aux besoins d’une famille active. Un dressing spacieux, un grand cellier et un garage complètent ce plan bien pensé. Tout est réuni pour une vie de famille sereine dans une maison moderne, confortable et facile à vivre. Pour un confort optimal et conforme à la RE2025, cette maison dispose d’une PAC avec plancher chauffant et volets roulants électriques. À noter : Le prix indiqué exclut les revêtements de sol des chambres, la cuisine aménagée, la peinture, la décoration, les raccordements, les frais de notaire et l’assurance dommages-ouvrage. . // Réf. : 74-213539-ALD. Prix terrain : 35 000 €, hors frais d'agence à la charge de l'acquéreur. Ce terrain vous est proposé, par nos partenaires fonciers, dans le cadre d'un projet de construction avec nous. Les informations sur les risques auxquels ce bien est exposé sont disponibles sur le site Géorisques (www.georisques.gouv.fr). Prix maison : 286 057 €.
Trogues
TERRAINNous vous présentons ce magnifique terrain de 3090 m², situé dans la charmante commune de Trogues, au sein de l’Indre-et-Loire, région Centre-Val de Loire. Ce parcelle offre un potentiel exceptionnel pour un projet de construction résidentielle. Non viabilisé, ce terrain vous permet de concevoir une maison parfaitement adaptée à vos besoins et envies, dans un environnement paisible et verdoyant. La ville de Trogues, au cœur d’une région riche en histoire et en nature, est idéalement située à proximité de nombreuses commodités. Vous trouverez à proximité des services essentiels, des écoles et des commerces, ainsi que des activités de loisirs telles que des randonnées et des découvertes culturelles. Les paysages environnants et la tranquillité de la vie rurale ajoutent à l’attrait de ce terrain, tout en étant facilement accessible depuis les grandes villes. Le potentiel de ce terrain, dans un environnement accueillant et dynamique, fait de cette opportunité une occasion à ne pas manquer. Ne manquez pas la chance de concrétiser votre projet de rêve sur ce terrain unique, où tout est possible. N’hésitez pas à nous contacter pour plus d’informations sur cette offre rare. À noter qu’en tant que constructeur, nous ne sommes pas mandatés pour réaliser la vente de ce terrain.
Sepmes
TERRAIN ET MAISONTrès beau terrain de 1565m2 dans environnement calme, proche de Sainte-Maure-de-Touraine et de l'entrée d'autoroute A10. . Une maison spacieuse et bien pensée pour toute la famille ! Pensée pour allier confort et modernité, cette maison vous séduira par ses volumes optimisés et son agencement fonctionnel. Dès l’entrée, vous découvrez un vaste espace de vie, baigné de lumière, où le salon et la salle à manger offrent un cadre chaleureux pour des moments de partage. La cuisine ouverte, à la fois moderne et fonctionnelle, s’accompagne d’un cellier attenant, idéal pour faciliter le rangement et l’organisation du quotidien. Toujours au rez-de-chaussée, une suite parentale élégante avec salle d’eau privative offre un véritable espace de détente, parfait pour préserver son intimité. À l’étage, trois chambres confortables et bien agencées permettent à chacun d’avoir son espace personnel. Une spacieuse salle de bain vient compléter cet étage, assurant praticité et bien-être pour toute la famille. Pour vous assurer un confort de vie optimal et en conformité avec la RE2025, nous avons opté pour un système de chauffage par pompe à chaleur (PAC) avec plancher chauffant au rez-de-chaussée et radiateurs à l’étage. Le logement est également équipé de volets roulants électriques. Prix hors fourniture et pose : des appareils sanitaires (sauf système de chauffage et d'eau chaude sanitaire), du carrelage et de la faïence, des revêtements de sol dans les chambres. Hors décoration et aménagement intérieur et peinture. Hors raccordements, frais de notaire et dommage ouvrage. // Réf. : 2470-213525-ALD. Prix terrain : 16 000 €, hors frais d'agence à la charge de l'acquéreur. Ce terrain vous est proposé, par nos partenaires fonciers, dans le cadre d'un projet de construction avec nous. Les informations sur les risques auxquels ce bien est exposé sont disponibles sur le site Géorisques (www.georisques.gouv.fr). Prix maison : 161 986 €.
Saint-Épain
TERRAIN ET MAISONTrès joli terrain de 890m2 dans secteur calme. Idéale pour une première acquisition, charmante maison de plain-pied d’une surface habitable de 75 m² composée d’un espace de vie avec cuisine ouverte de 40 m² environ, un accès cellier et garage, une salle de bains avec baignoire, un wc séparé et deux chambres avec placards. Pour vous assurer un confort de vie et conformément à la RE2025, nous avons choisi un mode de chauffage par PAC + plancher chauffant, volets roulants électriques. Prix hors fourniture et pose : des appareils sanitaires (sauf système de chauffage et d'eau chaude sanitaire), du carrelage et de la faïence, des revêtements de sol dans les chambres. Hors décoration et aménagement intérieur et peinture. Hors raccordements, frais de notaire et dommage ouvrage. // Réf. : 1457-213539-ALD. Prix terrain : 35 000 €, hors frais d'agence à la charge de l'acquéreur. Ce terrain vous est proposé, par nos partenaires fonciers, dans le cadre d'un projet de construction avec nous. Les informations sur les risques auxquels ce bien est exposé sont disponibles sur le site Géorisques (www.georisques.gouv.fr). Prix maison : 116 327 €.
Saint-Épain
TERRAIN ET MAISONTrès joli terrain de 890m2 dans secteur calme. Un premier achat sans compromis ! Vous cherchez une maison moderne, fonctionnelle et accessible ? Ce modèle de 87 m² est idéal pour une première acquisition ! Son grand espace de vie de 45 m², baigné de lumière, offre une pièce centrale chaleureuse et conviviale. Côté nuit, 3 chambres bien agencées garantissent confort et intimité. Un garage attenant et un cellier pratique viennent compléter cet ensemble pensé pour un quotidien fluide et agréable. Facile à personnaliser, évolutive et pensée pour durer, cette maison coche toutes les cases !. Premier achat, premier projet… Prêts à vous lancer ? . Pour un confort optimal et conforme à la RE2025, cette maison dispose d’une PAC avec plancher chauffant et volets roulants électriques. À noter : Le prix indiqué exclut les revêtements de sol des chambres, la cuisine aménagée, la peinture, la décoration, les raccordements, les frais de notaire et l’assurance dommages-ouvrage. // Réf. : 31-213539-ALD. Prix terrain : 35 000 €, hors frais d'agence à la charge de l'acquéreur. Ce terrain vous est proposé, par nos partenaires fonciers, dans le cadre d'un projet de construction avec nous. Les informations sur les risques auxquels ce bien est exposé sont disponibles sur le site Géorisques (www.georisques.gouv.fr). Prix maison : 151 253 €.
Sepmes
TERRAIN ET MAISONTrès beau terrain de 1565m2 dans environnement calme, proche de Sainte-Maure-de-Touraine et de l'entrée d'autoroute A10. . Cette charmante maison de plain-pied vous accueille dans un très bel espace de vie très lumineux de plus de 40 m² avec cuisine ouverte et accès direct au cellier. Un dégagement dessert trois chambres, une salle de bains et wc indépendant. Pour vous assurer un confort de vie et conformément à la RE2025, nous avons choisi un mode de chauffage par PAC + plancher chauffant, volets roulants électriques. Prix hors fourniture et pose : des appareils sanitaires (sauf système de chauffage et d'eau chaude sanitaire), du carrelage et de la faïence, des revêtements de sol dans les chambres. Hors décoration et aménagement intérieur et peinture. Hors raccordements, frais de notaire et dommage ouvrage. // Réf. : 921-213525-ALD. Prix terrain : 16 000 €, hors frais d'agence à la charge de l'acquéreur. Ce terrain vous est proposé, par nos partenaires fonciers, dans le cadre d'un projet de construction avec nous. Les informations sur les risques auxquels ce bien est exposé sont disponibles sur le site Géorisques (www.georisques.gouv.fr). Prix maison : 114 324 €.
L’actualité immobilière à Sainte-Maure-de-Touraine
27/11/2023
02/11/2023
30/10/2023
20/10/2023
16/10/2023
16/10/2023