Maison à construire à Veigné (37250)
Images
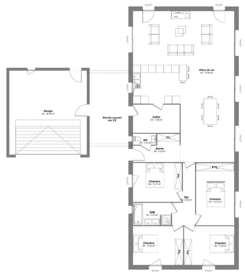
Description
Cette belle maison à construire de 150m² offre une grande pièce de vie lumineuse de plus de 74m² avec une triple exposition. Elle comprend quatre belles chambres spacieuses, idéales pour une famille. Un grand garage de 38m² permet de stationner facilement un véhicule et de bénéficier d'un espace de rangement supplémentaire. Enfin, un vaste porche couvert peut accueillir une voiture, offrant une protection supplémentaire contre les intempéries.
Je reste disponible pour toutes demandes de renseignements, n'hésitez pas me contacter : Stéphane Digneton : (Numéro supprimé).
CONSTRUCTIONS IDEALE DEMEURE a sélectionné avec un partenaire foncier un terrain pour construire cette maison.
Logement susceptibles de vous intéresser
Nous vous proposons de découvrir aussi cette sélection de logements situés à moins de 10km de Veigné et qui seraient susceptibles de vous intéresser.
Saint-Avertin
TERRAIN ET MAISONCe plan de maison à ossature bois se distingue par une architecture de plain-pied à la fois spacieuse et lumineuse, mettant en avant le confort et la convivialité. L’espace de vie principal, d’une superficie généreus, constitue le coeur de la demeure, offrant un cadre ouvert et accueillant. Les trois chambres, dont une suite parentale dotée de sa propre salle d’eau, garantissent intimité et bien-être à chacun de ses occupants. Les espaces fonctionnels, tels que le cellier, le garage ainsi que les deux salles d’eau, apportent une dimension pratique et facilitent le quotidien.La structure en bois assure une isolation thermique et acoustique optimale, créant une atmosphère chaleureuse et agréable en toutes saisons. Ce choix de matériau, renouvelable, s’inscrit pleinement dans une démarche de construction durable et respectueuse de l’environnement. L’agencement réfléchi et les volumes généreux font de cette maison un cadre de vie idéal, tant pour une famille que pour ceux en quête du confort d’une habitation de plain-pied.CONSTRUCTIONS IDÉALE DEMEURE, en collaboration avec un partenaire foncier, a soigneusement sélectionné un terrain propice à l’édification de ce projet d’exception.Curieux d’en savoir plus ? Contactez Céline Saanoun au (Numéro supprimé) pour découvrir ce projet et voir comment il pourrait devenir votre nouveau chez-vous !
Sorigny
TERRAINVenez découvrir cette opportunité de terrain à bâtir, proposé par l » »un de nos partenaires fonciers et en vue de faire un projet de construction par Constructions Idéale Demeure.N » »hésitez pas à contacter Céline SAANOUN au (Numéro supprimé) Optimisation des plans sur-mesureRecherche foncière approfonditPhoto non contractuelle
Saint-Avertin
TERRAIN ET MAISONVous rêvez d’une maison unique, conçue selon vos envies et vos besoins ? Avec CID HEXAOM, votre constructeur sur-mesure, imaginez et réalisez la maison de vos rêves, à un prix accessible pour tous.Pourquoi choisir CID HEXAOM ?Conception personnalisée : Votre maison, vos choix, 100% sur-mesure !Accessibilité : Une maison originale et adaptée à votre budget.Accompagnement complet : Du plan à la construction, nous sommes à vos côtés.Moderne, traditionnelle, écologique ou innovante – quelle que soit votre vision, nous la concrétisons.Contactez-nous dès aujourd’hui pour une étude GRATUITE et laissez-nous construire ensemble votre avenir !CID – L’art de bâtir sur-mesure, pour tous.Prenez rendez-vous dès maintenant avec Mme Céline SAANOUN au (Numéro supprimé)CONSTRUCTIONS IDEALE DEMEURE a sélectionné avec un partenaire foncier un terrain pour construire cette maison.
Veigné
TERRAINVenez découvrir cette opportunité de terrain à bâtir dans la commune de proposé par l » »un de nos partenaires fonciers et en vue de faire un projet de construction par Constructions Idéale Demeure.N » »hésitez pas à contacter Céline SAANOUN au (Numéro supprimé) qui se fera une joie de vous présenter un projet terrain + maison en accord avec vos attentes.Optimisation des plans sur-mesureRecherche foncière approfonditPhoto non contractuelle
Saint-Avertin
TERRAINVenez découvrir cette opportunité de terrain à bâtir, proposé par l » »un de nos partenaires fonciers et en vue de faire un projet de construction par Constructions Idéale Demeure.N » »hésitez pas à contacter votre Céline SAANOUN au (Numéro supprimé).Optimisation des plans sur-mesureRecherche foncière approfonditPhoto non contractuelle
Cormery
TERRAINVenez découvrir cette opportunité de terrain à bâtir, proposé par l » »un de nos partenaires fonciers et en vue de faire un projet de construction par Constructions Idéale Demeure.N » »hésitez pas à contacter Céline SAANOUN au (Numéro supprimé) Optimisation des plans sur-mesureRecherche foncière approfonditPhoto non contractuelle
Saint-Avertin
TERRAINVenez découvrir cette opportunité de terrain à bâtir, proposé par l » »un de nos partenaires fonciers et en vue de faire un projet de construction par Constructions Idéale Demeure.N » »hésitez pas à contacter votre Céline SAANOUN au (Numéro supprimé).Optimisation des plans sur-mesureRecherche foncière approfonditPhoto non contractuelle
Cormery
TERRAIN ET MAISONDécouvrez cette charmante maison alliant modernité et sobriété. Cette maison contemporaine dispose d’une chambre avec salle d’eau au RDC et de quatre chambres à l’étage , une salle de bain familiale, et d’une grande pièce à vivre baigné de lumières grâce à ses deux grandes baies. Cette maison possède également un double garage. Idéale pour y accueillir toute votre petite famille .Suivi du projet de A à ZOptimisation des plans sur mesures.N’hésitez pas à contacter Céline SAANOUN au (Numéro supprimé) Prix indicatif pour un projet de construction d’une maison individuelle, hors frais de branchements et raccordement aux réseaux publics, hors frais d’adaptations, hors aménagements intérieurs et extérieurs et hors options. Garanties et assurances obligatoires incluses. Terrain sélectionné et vu pour vous sous réserve de disponibilité et au prix indiqué par notre partenaire foncier, hors frais de notaire, hors frais annexes. Visuels non contractuels. Voir détails en agence.CONSTRUCTIONS IDEALE DEMEURE a sélectionné avec un partenaire foncier un terrain pour construire cette maison.
Sorigny
TERRAIN ET MAISONVous rêvez d’une maison unique, conçue selon vos envies et vos besoins ? Avec CID HEXAOM, votre constructeur sur-mesure, imaginez et réalisez la maison de vos rêves, à un prix accessible pour tous.Pourquoi choisir CID HEXAOM ?Conception personnalisée : Votre maison, vos choix, 100% sur-mesure !Accessibilité : Une maison originale et adaptée à votre budget.Accompagnement complet : Du plan à la construction, nous sommes à vos côtés.Moderne, traditionnelle, écologique ou innovante – quelle que soit votre vision, nous la concrétisons.Contactez-nous dès aujourd’hui pour une étude GRATUITE et laissez-nous construire ensemble votre avenir !CID – L’art de bâtir sur-mesure, pour tous.Prenez rendez-vous dès maintenant avec Mme Céline SAANOUN au (Numéro supprimé)CONSTRUCTIONS IDEALE DEMEURE a sélectionné avec un partenaire foncier un terrain pour construire cette maison.
L’actualité immobilière à Veigné
27/11/2023
02/11/2023
30/10/2023
20/10/2023
16/10/2023
16/10/2023