Maison à construire à Villiers-au-Bouin (37330)
Images
Description
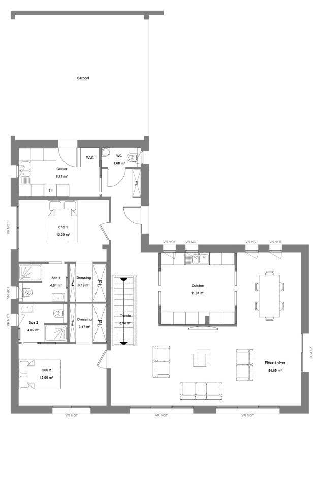
Maison moderne de 190m² avec prestations haut de gamme !
Découvrez cette magnifique maison à étage offrant un design épuré et contemporain. Vous serez séduit par son grand séjour avec un impressionnant vide sur hall, accentuant l'espace et la lumière naturelle. Cette maison comprend deux suites parentales pour un confort optimal, ainsi que deux autres chambres à l'étage. Son vaste espace de vie de plus de 54m² et sa cuisine fermée de 12m², allient intimité et fonctionnalité.
Un grand carport complète ce bien, pouvant accueillir deux voitures. Un vrai coup de coeur pour ceux qui cherchent espace, confort et élégance.
Je vous accompagne dans votre projet de la conception à la recherche foncière jusqu'à l'optimisation de votre financement, contactez-moi dès maintenant au (Numéro supprimé) - Julie Texier.
CONSTRUCTIONS IDEALE DEMEURE a sélectionné avec un partenaire foncier un terrain pour construire cette maison.
Logement susceptibles de vous intéresser
Nous vous proposons de découvrir aussi cette sélection de logements situés à moins de 10km de Villiers-au-Bouin et qui seraient susceptibles de vous intéresser.
Château-la-Vallière
TERRAIN ET MAISONDEVENEZ PROPRIÉTAIRE DE VOTRE MAISON SUR-MESURE – OPPORTUNITE A SAISIR Découvrez cette demeure conçue et bâtie avec tout le savoir-faire des Maisons de Stéphanie, constructeur reconnu pour ses 30 années d’expérience et son exigence de qualité.Chaque détail est pensé pour votre confort et vos envies : une architecture élégante, des espaces lumineux et fonctionnels, et la possibilité d’adapter les plans selon votre mode de vie.Saisissez dès maintenant l’opportunité de faire de cette maison votre nouveau lieu de vie !Contactez Maëlle VECHTE dès maintenant au *2 47 48 09 30 pour plus d’informations et concrétiser votre projet.
Château-la-Vallière
TERRAINEXCLUSIVITE – TERRAIN À BÂTIR – CHATEAU LA VALLIERE (37330)VOUS RÊVEZ DE VOUS INSTALLER EN TOURAINE, à proximité de toutes les commodités ? Découvrez ce terrain à bâtir idéal pour donner vie à votre projet de construction.Situé dans un environnement privilégié, ne tardez pas à visiter ce terrain RARE sur le secteur.Avec plus de 30 ans d’expérience, Maisons Stéphanie, constructeur de maisons individuelles, vous accompagne avec soin dans la conception de votre projet sur-mesure.Contactez Maëlle VECHTE dès aujourd’hui au *2 47 48 09 30 pour plus d’informations et concrétiser votre projet.
Château-la-Vallière
TERRAIN ET MAISONDEVENEZ PROPRIÉTAIRE DE VOTRE MAISON SUR-MESURE – OPPORTUNITE A SAISIR Découvrez cette demeure conçue et bâtie avec tout le savoir-faire des Maisons de Stéphanie, constructeur reconnu pour ses 30 années d’expérience et son exigence de qualité.Chaque détail est pensé pour votre confort et vos envies : une architecture élégante, des espaces lumineux et fonctionnels, et la possibilité d’adapter les plans selon votre mode de vie.Saisissez dès maintenant l’opportunité de faire de cette maison votre nouveau lieu de vie !Contactez Maëlle VECHTE dès maintenant au *2 47 48 09 30 pour plus d’informations et concrétiser votre projet.
Château-la-Vallière
TERRAIN ET MAISONDEVENEZ PROPRIÉTAIRE DE VOTRE MAISON SUR-MESURE – OPPORTUNITE A SAISIR Découvrez cette demeure conçue et bâtie avec tout le savoir-faire des Maisons de Stéphanie, constructeur reconnu pour ses 30 années d’expérience et son exigence de qualité.Chaque détail est pensé pour votre confort et vos envies : une architecture élégante, des espaces lumineux et fonctionnels, et la possibilité d’adapter les plans selon votre mode de vie.Saisissez dès maintenant l’opportunité de faire de cette maison votre nouveau lieu de vie !Contactez Maëlle VECHTE dès maintenant au *2 47 48 09 30 pour plus d’informations et concrétiser votre projet.
Château-la-Vallière
TERRAIN ET MAISONDEVENEZ PROPRIÉTAIRE DE VOTRE MAISON SUR-MESURE – OPPORTUNITE A SAISIR Découvrez cette demeure conçue et bâtie avec tout le savoir-faire des Maisons de Stéphanie, constructeur reconnu pour ses 30 années d’expérience et son exigence de qualité.Chaque détail est pensé pour votre confort et vos envies : une architecture élégante, des espaces lumineux et fonctionnels, et la possibilité d’adapter les plans selon votre mode de vie.Saisissez dès maintenant l’opportunité de faire de cette maison votre nouveau lieu de vie !Contactez Maëlle VECHTE dès maintenant au *2 47 48 09 30 pour plus d’informations et concrétiser votre projet.
Villiers-au-Bouin
TERRAIN ET MAISONMaison moderne de 190m² avec prestations haut de gamme !Découvrez cette magnifique maison à étage offrant un design épuré et contemporain. Vous serez séduit par son grand séjour avec un impressionnant vide sur hall, accentuant l’espace et la lumière naturelle. Cette maison comprend deux suites parentales pour un confort optimal, ainsi que deux autres chambres à l’étage. Son vaste espace de vie de plus de 54m² et sa cuisine fermée de 12m², allient intimité et fonctionnalité.Un grand carport complète ce bien, pouvant accueillir deux voitures. Un vrai coup de coeur pour ceux qui cherchent espace, confort et élégance.Je vous accompagne dans votre projet de la conception à la recherche foncière jusqu’à l’optimisation de votre financement, contactez-moi dès maintenant au (Numéro supprimé) – Julie Texier.CONSTRUCTIONS IDEALE DEMEURE a sélectionné avec un partenaire foncier un terrain pour construire cette maison.
Villiers-au-Bouin
TERRAIN ET MAISONCharmante maison familiale de plain-pied avec une disposition pratique.Elle comprend 4 chambres, dont une suite parentale avec salle de bain privative et dressing.Le séjour lumineux offre un espace ouvert de plus de 45 m² idéal pour se détendre et recevoir. Cette maison est parfaite pour une vie confortable en famille. Nous réalisons votre projet sur-mesure, contactez-moi Julie Texier au (Numéro supprimé)CONSTRUCTIONS IDEALE DEMEURE a sélectionné avec un partenaire foncier un terrain pour construire cette maison.
Villiers-au-Bouin
TERRAIN ET MAISONVotre future maison sur mesure : élégance, confort et modernité Découvrez cette maison à construire, pensée pour offrir des espaces de vie lumineux, généreux et fonctionnels.Chaque détail a été soigneusement conçu pour répondre aux attentes d’une vie confortable et harmonieuse. Au rez-de-chaussée : Un grand espace de vie ouvert de 70 m², idéal pour des moments de convivialité, avec une entrée dégagée équipée de rangements. Accès direct à une cuisine d’extérieur de 28 m², parfaite pour profiter des repas en plein air. Une suite parentale avec dressing et salle de bain, alliant intimité et confort. Les espaces de vie donnent sur une terrasse ensoleillée, offrant une possibilité de piscine pour des instants de détente. À l’étage : Une salle de détente modulable de 20 m², transformable selon vos besoins en salle de sport, bureau ou espace de loisirs. Trois chambres avec accès à un balcon commun, offrant un bel espace de partage et une vue dégagée. Une mezzanine de 12 m² surplombant le séjour, ajoutant une touche de style à l’ensemble. Une salle de bain de 10 m², spacieuse et moderne. Cette maison allie charme régional et touches contemporaines, tout en offrant des espaces intérieurs et extérieurs où la lumière est mise à l’honneur.Cette maison allie charme régional et touches contemporaines, tout en offrant des espaces intérieurs et extérieurs où la lumière est mise à l’honneur.Pour plus de renseignement, contactez moi au (Numéro supprimé)CONSTRUCTIONS IDEALE DEMEURE a sélectionné avec un partenaire foncier un terrain pour construire cette maison.
Villiers-au-Bouin
TERRAIN ET MAISONDécouvrez cette charmante maison en forme de L, accompagnée d’un garage, offrant de nombreuses possibilités d’aménagement. Idéale pour les familles à la recherche d’un espace fonctionnel, cette maison présente les caractéristiques suivantes :Grand séjour de 40 m²Agencement en L créant une séparation naturelle entre les espaces de jour et de nuitGarage et cellier3 Chambres Cette maison en L avec garage est une opportunité unique d’acquérir une propriété adaptable à vos besoins et vos envies. Nous réalisons votre projet sur-mesure, contactez-moi Julie Texier au (Numéro supprimé), je serai ravie de vous accompagner tout au long de votre projet de construction.CONSTRUCTIONS IDEALE DEMEURE a sélectionné avec un partenaire foncier un terrain pour construire cette maison.
L’actualité immobilière à Villiers-au-Bouin
27/11/2023
02/11/2023
30/10/2023
20/10/2023
16/10/2023
16/10/2023