Maison à construire à Saint-Lattier (38840)
Images
Description
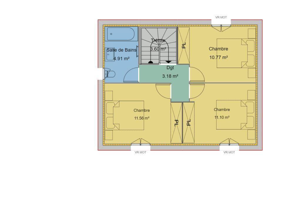
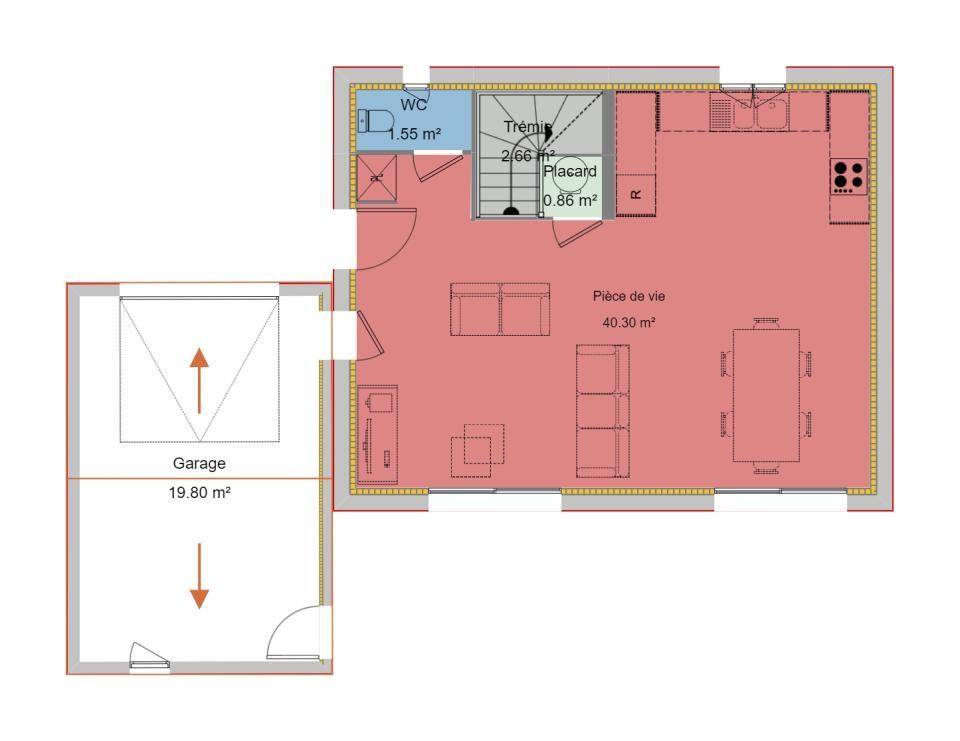
Sur une parcelle de 362 m² viabilisé dans une future résidence à bâtir, sur la commune de Saint hilaire du rosier (38840),proche de la commune de CHATTE, Saint Marcellin, découvrez ce projet de construction. Une maison contemporaine à étage pensée pour conjuguer style, fonctionnalité et confort. Avec sa toiture traditionnelle en tuiles, son enduit moderne et ses lignes épurées, cette réalisation incarne parfaitement l'élégance sobre et actuelle de la maison sur-mesure.
Dès l'entrée, les volumes généreux vous séduisent : un séjour lumineux de 45 m² prolongé par une vaste terrasse en bois, une cuisine ouverte sur le séjour. L'espace nuit à l'étage dessert trois chambres de taille équilibrée ainsi qu'une salle de bain fonctionnelle. Un cellier, deux WC, une salle d'eau et un garage de 20 m² complètent cet agencement pensé pour le quotidien. Construite selon vos envies, personnalisable dans les moindres détails. Conception respectant la réglementation RE 2020 pour un confort et des économies d'énergie au quotidien
Pourquoi choisir Maisons France Confort ?
Le savoir-faire et la solidité du leader national. Une maison 100 % personnalisable, adaptée à vos envies et votre budget. Des garanties CCMI pour construire en toute sérénité. Un accompagnement humain, local et sur mesure. Contactez Amandine Maggioni, votre conseillère Maisons France Confort à Anneyron, et donnez vie à votre projet dès aujourd'hui au (Numéro supprimé)
Logement susceptibles de vous intéresser
Nous vous proposons de découvrir aussi cette sélection de logements situés à moins de 10km de Saint-Lattier et qui seraient susceptibles de vous intéresser.
Saint-Lattier
TERRAIN ET MAISONSur une parcelle de 362 m² viabilisé dans une future résidence à bâtir, sur la commune de Saint hilaire du rosier (38840),proche de la commune de CHATTE, Saint Marcellin, découvrez ce projet de construction. Une maison contemporaine à étage pensée pour conjuguer style, fonctionnalité et confort. Avec sa toiture traditionnelle en tuiles, son enduit moderne et ses lignes épurées, cette réalisation incarne parfaitement l’élégance sobre et actuelle de la maison sur-mesure. Dès l’entrée, les volumes généreux vous séduisent : un séjour lumineux de 45 m² prolongé par une vaste terrasse en bois, une cuisine ouverte sur le séjour. L’espace nuit à l’étage dessert trois chambres de taille équilibrée ainsi qu’une salle de bain fonctionnelle. Un cellier, deux WC, une salle d’eau et un garage de 20 m² complètent cet agencement pensé pour le quotidien. Construite selon vos envies, personnalisable dans les moindres détails. Conception respectant la réglementation RE 2020 pour un confort et des économies d’énergie au quotidien Pourquoi choisir Maisons France Confort ?Le savoir-faire et la solidité du leader national. Une maison 100 % personnalisable, adaptée à vos envies et votre budget. Des garanties CCMI pour construire en toute sérénité. Un accompagnement humain, local et sur mesure. Contactez Amandine Maggioni, votre conseillère Maisons France Confort à Anneyron, et donnez vie à votre projet dès aujourd’hui au (Numéro supprimé)
Saint-Bonnet-de-Chavagne
TERRAIN💡 Déjà plus de 100 000 familles nous ont fait confiance, pourquoi pas vous ? Construisez votre maison avec le leader de la maison individuelle !Venez découvrir ce magnifique terrain plat, viabilisé de 369 m² dans une futur résidence à bâtir Un emplacement idéal pour concrétiser votre projet de vie dans un cadre calme et verdoyant à seulement quelques minutes de CHATTE et ces nombreux commerces. Avec Maisons France Confort, leader français de la construction de maisons individuelles depuis plus de 110 ans, profitez d’un accompagnement complet, du choix du terrain jusqu’à la remise des clés. Pourquoi choisir Maisons France Confort ?Le savoir-faire et la solidité du leader national,Une maison 100 % personnalisable, adaptée à vos envies et votre budget,Des garanties CCMI pour construire en toute sérénité,Un accompagnement humain, local et sur mesure. Contactez Amandine Maggioni, votre conseillère Maisons France Confort à Anneyron, et donnez vie à votre projet dès aujourd’hui au (Numéro supprimé)
Saint-Lattier
TERRAIN ET MAISONSur une parcelle de 362 m² viabilisé dans une future résidence à bâtir, sur la commune de Saint hilaire du rosier (38840), découvrez ce projet de construction,Cette maison d’une superficie de 70 m², optimisée et évolutive, elle se compose d’une pièce de vie d’une belle surface pour cette maison 3 pièces : plus de 30 m² avec cuisine ouverte. Cette pièce de vie profite d’une double exposition avec ses ouvertures. Les deux chambres, de plus de 10 m², sont chacune équipée d’un placard intégré. Le système de chauffage suggéré vous assurera le plus grand confort dans le respect de la RE 2020, tout en vous assurant de très substantielles économies. Maison prête à décorer, ne vous resterons que les peintures et la cuisine. Votre talent fera le reste ! Plan, disposition, système de chauffage, tout reste entièrement personnalisable selon vos envies. Construction sur vide sanitaire.Avec Maisons France Confort, vous bénéficiez de l’expérience du constructeur N°1 en France ainsi que de toutes les garanties du contrat CCMI pour construire en toute sérénité. Pour toutes étude de votre projet de construction contactez Amandine Maggioni au (Numéro supprimé), votre chargée de projet sur le secteur.
Saint-Lattier
TERRAINProjet de construction sur la commune de Saint hilaire du rosier (38840) MAISONS France CONFORT vous propose un terrain constructible de 362 m2 viabilisé, situé dans un secteur calme et à quelques minutes seulement de SAINT MARCELLIN , CHATTE commerces, écoles et services, ce beau terrain plat et entièrement viabilisé bénéficie d’une excellente exposition pour un ensoleillement optimal tout au long de la journée. Ce terrain constructible vous offre un cadre idéal pour concrétiser votre projet de vie.Contactez votre chargée de projet Amandine Maggioni dès aujourd’hui pour plus d’information et une étude gratuite de votre projet de construction.
Saint-Bonnet-de-Chavagne
TERRAIN ET MAISONSur une parcelle de 369 m² viabilisé dans une future résidence à bâtir, sur la commune de Saint hilaire du rosier (38840), découvrez ce projet de construction,Cette maison d’une superficie de 70 m², optimisée et évolutive, elle se compose d’une pièce de vie d’une belle surface pour cette maison 3 pièces : plus de 30 m² avec cuisine ouverte. Cette pièce de vie profite d’une double exposition avec ses ouvertures. Les deux chambres, de plus de 10 m², sont chacune équipée d’un placard intégré. Le système de chauffage suggéré vous assurera le plus grand confort dans le respect de la RE 2020, tout en vous assurant de très substantielles économies. Maison prête à décorer, ne vous resterons que les peintures et la cuisine. Votre talent fera le reste ! Plan, disposition, système de chauffage, tout reste entièrement personnalisable selon vos envies. Construction sur vide sanitaire.Avec Maisons France Confort, vous bénéficiez de l’expérience du constructeur N°1 en France ainsi que de toutes les garanties du contrat CCMI pour construire en toute sérénité. Pour toutes étude de votre projet de construction contactez Amandine Maggioni au (Numéro supprimé), votre chargée de projet sur le secteur.
Saint-Nazaire-en-Royans
TERRAINSur la commune de Saint-Nazaire-en-Royans, lieudit La Calagne, 5 parcelles pour une surface de plus de 18 000 m² en nature de landes et bois treillis sur lesquelles se trouve une ruine qui a été remontée d’environ 13 m². Présence d’une citerne. Rare à la vente !Cette annonce référence 294412 vous est présentée par votre agent commercial BSK Immobilier JEREMY SACLIER (EI) immatriculé au RSAC de ROMANS-SUR-ISERE (26100) sous le numéro 89394801800013.Prix du bien : 59 000,00 €Les honoraires d’agence sont à la charge du vendeur.Les informations sur les risques auxquels ce bien est exposé sont disponibles sur le site Géorisques : www.georisques.gouv.fr
Saint-Hilaire-du-Rosier
TERRAINTerrains à bâtir viabilisés et libres de constructeurs ! Découvrez notre offre de terrains constructibles à proximité du centre-ville de St Marcellin ! Notre programme ‘Le mont vanille’ s’est installé dans un environnement calme et naturel, bordé par les rivières de la Drôme et de l’Isère. La commune de Saint-Hilaire-du-Rosier est située à 18 km du centre-ville de Romans-sur-Isère (20min*)La ville de Saint-Hilaire-du-Rosier s’établie dans un cadre de vie privilégié, entouré de nature verdoyante, vous aurez à disposition plusieurs restaurants, commerces et services. Une micro-crèche est présente dans la commune. La gare ferroviaire de Saint-Hilaire-Saint-Nazaire se situe au sud de la ville et permet de rejoindre Valence en 30 min*.Tous les commerces et infrastructures nécessaires à votre quotidien se trouvent à moins de 10min* (7 km) du programme, dans la ville de La Baume-d’Hostun.Plusieurs terrains disponibles, contactez nous pour plus d’informations.*Prix à titre indicatif et non contractuels susceptibles d’évoluer jusqu’au lancement.Pour toutes informations complémentaires, prenez contact avec nous !
L’actualité immobilière à Saint-Lattier
27/11/2023
02/11/2023
30/10/2023
20/10/2023
16/10/2023
16/10/2023