Images
Description
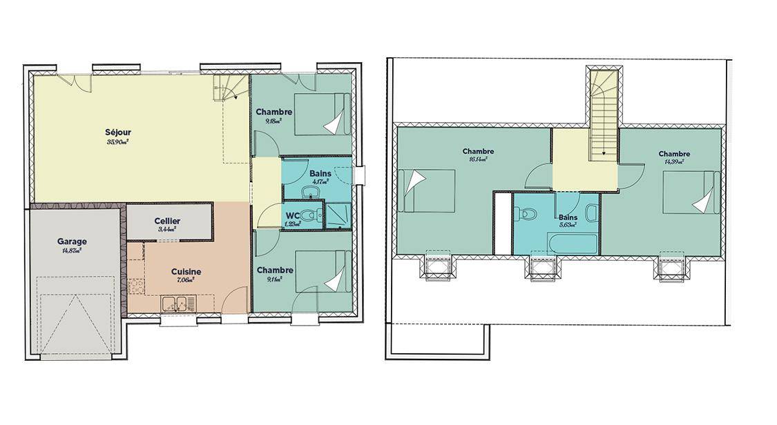
Sur ce terrain, nous vous proposons cette maison neuve : la Focus EVO, un modèle unique de 110 m² conçu par Babeau-Seguin, constructeur offrant le meilleur rapport qualité/prix du marché. Cette maison basse consommation est conforme à la norme RE2020, garantissant des performances énergétiques exceptionnelles.
La Focus EVO se distingue par son concept évolutif, alliant une maison neuve prête à vivre et une maison prête à finir. Livrée avec 73 m² habitables, elle est conçue pour évoluer avec vos besoins futurs. Grâce à ses combles aménageables, vous pouvez facilement augmenter votre surface habitable à 110 m², ajoutant ainsi deux chambres supplémentaires et une salle de bain, pour un total de 4 chambres et 2 salles de bains.
Les caractéristiques principales de cette maison incluent un garage intégré, un cellier, et des combles aménageables. Les options les plus demandées par nos clients, telles que la version Investisseur et les prises USB murales, sont également disponibles.
La Focus EVO est idéale pour tous ceux qui recherchent une maison complète à un prix compétitif. Elle comprend une grande pièce de jour traversante, 4 chambres, une salle de bain, et un garage de 15 m². Que vous soyez un jeune couple, un célibataire ou une famille en pleine expansion, cette maison saura s'adapter à vos besoins et à vos envies.
Ne manquez pas cette occasion unique de devenir propriétaire d'une maison évolutive, économe en énergie et conforme aux dernières normes environnementales. Contactez-nous dès aujourd'hui pour plus d'informations et pour planifier une visite.
Logement susceptibles de vous intéresser
Nous vous proposons de découvrir aussi cette sélection de logements situés à moins de 10km de Le Pin et qui seraient susceptibles de vous intéresser.
Montmorot
TERRAINSitué dans la charmante commune de Montmorot (39570), ce terrain de 1200 m² offre un cadre paisible et résidentiel pour la construction d’un futur projet immobilier. Montmorot, à proximité de Lons-le-Saunier, bénéficie d’un environnement verdoyant et calme, idéal pour les amoureux de la nature. Les commodités telles que les écoles, commerces et services essentiels sont facilement accessibles, offrant un quotidien pratique et agréable aux futurs résidents.Ce terrain non viabilisé, d’une surface de 1200 m², représente une belle opportunité pour concrétiser un projet de construction sur mesure. Sa surface généreuse offre de multiples possibilités d’aménagement, permettant la réalisation d’une habitation selon les besoins et les envies de ses futurs propriétaires. Bénéficiant d’un environnement calme et résidentiel, ce terrain à bâtir saura séduire ceux en quête d’un cadre de vie paisible et familial.Les informations sur les risques auxquels ce bien est exposé sont disponibles sur le site Géorisques : www.georisques.gouv.frPrix de vente : 58 000 €Honoraires charge vendeurContactez votre consultant megAgence : Nina CHAUDAT, Tél. : (Numéro supprimé), E-mail : (Email supprimé) – EI – Agent commercial immatriculé au RSAC de LONS-LE-SAUNIER sous le numéro 810 532 572
Geruge
TERRAIN ET MAISONSur ce terrain, nous vous proposons cette maison neuve : la Focus EVO, un modèle unique de 110 m² conçu par Babeau-Seguin, constructeur offrant le meilleur rapport qualité/prix du marché. Cette maison basse consommation est conforme à la norme RE2020, garantissant des performances énergétiques exceptionnelles.La Focus EVO se distingue par son concept évolutif, alliant une maison neuve prête à vivre et une maison prête à finir. Livrée avec 73 m² habitables, elle est conçue pour évoluer avec vos besoins futurs. Grâce à ses combles aménageables, vous pouvez facilement augmenter votre surface habitable à 110 m², ajoutant ainsi deux chambres supplémentaires et une salle de bain, pour un total de 4 chambres et 2 salles de bains.Les caractéristiques principales de cette maison incluent un garage intégré, un cellier, et des combles aménageables. Les options les plus demandées par nos clients, telles que la version Investisseur et les prises USB murales, sont également disponibles.La Focus EVO est idéale pour tous ceux qui recherchent une maison complète à un prix compétitif. Elle comprend une grande pièce de jour traversante, 4 chambres, une salle de bain, et un garage de 15 m². Que vous soyez un jeune couple, un célibataire ou une famille en pleine expansion, cette maison saura s’adapter à vos besoins et à vos envies.Ne manquez pas cette occasion unique de devenir propriétaire d’une maison évolutive, économe en énergie et conforme aux dernières normes environnementales. Contactez-nous dès aujourd’hui pour plus d’informations et pour planifier une visite.
Geruge
TERRAINNous vous présentons un terrain à vendre dans le charmant lotissement de Geruge, d’une surface généreuse de 2145 m² et viabilisé, offrant une opportunité exceptionnelle pour la construction de votre future maison. Ce terrain bénéficie d’une vue dégagée et se trouve dans un cadre champêtre, au calme, parfait pour ceux qui recherchent un cadre de vie paisible à 10 minutes de Lons le Saunier. Situé dans le département du Jura en Bourgogne-Franche-Comté, Geruge est un joli village. La beauté naturelle des environs et la tranquillité de cette région en font un lieu de choix pour bâtir votre foyer. Ne manquez pas cette occasion rare d’acquérir un terrain au potentiel immense, idéal pour concrétiser vos projets de construction. N’hésitez pas à nous contacter pour plus d’informations. À noter qu’en tant que constructeur, nous ne sommes pas mandatés pour réaliser la vente de ce terrain.
Le Pin
TERRAINÀ vendre, Projet Maison + terrain d’une superficie de 527 m², idéalement situé dans le charmant lotissement de Le Pin, dans le département du Jura. Ce terrain viabilisé et ensoleillé offre un cadre champêtre propice à la construction de votre future maison. Avec ses caractéristiques uniques, il constitue un emplacement privilégié pour concevoir votre projet immobilier en toute sérénité. Le Pin, située en Bourgogne-Franche-Comté, est une ville qui saura vous séduire par son ambiance paisible et ses multiples attractions locales. Profitez des nombreuses commodités à proximité, tels que les commerces, les écoles et les espaces verts dédiés aux loisirs. En outre, cette région est renommée pour ses paysages pittoresques et ses activités de plein air, faisant de Le Pin une commune où il fait bon vivre. La convivialité des habitants ajoute une touche chaleureuse à cet environnement dynamique. Ne manquez pas cette opportunité unique d’acquérir un terrain au potentiel exceptionnel ! Contactez-nous pour découvrir comment ce projet peut devenir votre réalité.
Le Pin
TERRAIN ET MAISONSur ce terrain, nous vous proposons cette maison neuve : la Focus EVO, un modèle unique de 110 m² conçu par Babeau-Seguin, constructeur offrant le meilleur rapport qualité/prix du marché. Cette maison basse consommation est conforme à la norme RE2020, garantissant des performances énergétiques exceptionnelles.La Focus EVO se distingue par son concept évolutif, alliant une maison neuve prête à vivre et une maison prête à finir. Livrée avec 73 m² habitables, elle est conçue pour évoluer avec vos besoins futurs. Grâce à ses combles aménageables, vous pouvez facilement augmenter votre surface habitable à 110 m², ajoutant ainsi deux chambres supplémentaires et une salle de bain, pour un total de 4 chambres et 2 salles de bains.Les caractéristiques principales de cette maison incluent un garage intégré, un cellier, et des combles aménageables. Les options les plus demandées par nos clients, telles que la version Investisseur et les prises USB murales, sont également disponibles.La Focus EVO est idéale pour tous ceux qui recherchent une maison complète à un prix compétitif. Elle comprend une grande pièce de jour traversante, 4 chambres, une salle de bain, et un garage de 15 m². Que vous soyez un jeune couple, un célibataire ou une famille en pleine expansion, cette maison saura s’adapter à vos besoins et à vos envies.Ne manquez pas cette occasion unique de devenir propriétaire d’une maison évolutive, économe en énergie et conforme aux dernières normes environnementales. Contactez-nous dès aujourd’hui pour plus d’informations et pour planifier une visite.
Lons-le-Saunier
TERRAINÀ vendre, sur la commune de Lons-le-Saunier, au cœur d’un environnement naturel privilégié, un magnifique terrain d’une superficie de 9 899 m², situé sur la route de Macornay. Ce bien rare bénéficie d’une vue imprenable sur la ville et les hauteurs environnantes, offrant un cadre de vie exceptionnel, à seulement quelques minutes du centre-ville.Le terrain, en pente , se prête parfaitement à un aménagement en terrasses ou en gradins, avec une orientation idéale pour capter la lumière. Il est bordé en partie haute par une zone naturelle classée, assurant une tranquillité pérenne et une préservation du cadre paysager.L’atout majeur de cette propriété réside dans le fait qu’elle est vendue avec un permis valide, autorisant la réalisation d’un ensemble de 38 logements, pour une surface de plancher de 2 754 m² qui peut être évolutive. Le découpage parcellaire, facilité par un coefficient favorable, permet une optimisation du projet, que ce soit sous forme de logements intermédiaires, individuels groupés ou petits collectifs.Deux options s’offrent à l’acquéreur : soit reprendre le permis et le projet tel qu’il a été conçu par le promoteur initial, soit retravailler un nouveau projet à partir du terrain et de ses caractéristiques.La localisation, sur les hauteurs de Lons-le-Saunier, au calme, tout en restant proche des accès routiers et de toutes les commodités, en fait un emplacement recherché, parfaitement adapté à une opération de qualité.Pour tout complément d’information ou pour recevoir le dossier complet, n’hésitez pas à me contacter. C’est une opportunité rare, idéale pour un promoteur soucieux de conjuguer rentabilité et qualité de vie alors je vous attends! Les honoraires sont à la charge du vendeur.Les informations sur les risques auxquels ce bien est exposé sont disponibles sur le site Géorisques : www. georisques. gouv. fr.Réseau Immobilier CAPIFRANCE – Votre agent commercial (RSAC N(Numéro supprimé) – Greffe de CHALON SUR SAONE) Didier MICHELIN Entrepreneur Individuel (Numéro supprimé) – Réf.916112
Lons-le-Saunier
TERRAINSitué dans un quartier résidentiel calme et recherché de Lons-le-Saunier, ce terrain d’une surface de 700 m² offre un cadre idéal pour concrétiser votre projet de maison. Issu d’un futur détachement de parcelle, il sera vendu borné et à viabiliser (raccordements aux réseaux en bordure).En légère pente, il bénéficie d’une belle vue dégagée sur l’environnement naturel, parfait pour une construction contemporaine avec sous-sol ou demi-niveau. La parcelle se trouve à proximité immédiate des commerces, des écoles et des services, tout en offrant un cadre de vie paisible et agréable.Le terrain à fait l’objet d’une étude géotechnique , conforme à la réglementation en vigueur. Le certificat d’urbanisme opérationnel peut être transmis sur demande.Le prix de vente est fixé à 70 000 euros. Une belle opportunité à saisir sur le secteur pour concrétiser un projet de résidence principale dans un environnement de qualité.Pour tout renseignement complémentaire ou pour organiser une visite, je reste à votre disposition, contactez moi!Didier Michelin – CapifranceConseiller immobilier spécialiste neuf et du secteur local Les honoraires sont à la charge du vendeur.Les informations sur les risques auxquels ce bien est exposé sont disponibles sur le site Géorisques : www. georisques. gouv. fr.Réseau Immobilier CAPIFRANCE – Votre agent commercial (RSAC N(Numéro supprimé) – Greffe de CHALON SUR SAONE) Didier MICHELIN Entrepreneur Individuel (Numéro supprimé) – Réf.914862
Mantry
TERRAIN ET MAISONSur ce terrain, nous vous proposons cette maison neuve : la Versière. Avec ses 112 m² de surface habitable, cette maison se distingue par son plan en V, offrant un brin d’originalité et une grande habitabilité. Elle dispose de 4 chambres et de 4 pièces, parfaitement adaptées pour accueillir une famille.La Versière vous permet de choisir entre une toiture à 2 pans ou à 4 pans, selon vos préférences esthétiques. De plus, vous avez la possibilité d’ajouter un garage ou un sous-sol, pour encore plus de praticité et de rangement.Les grandes baies coulissantes apportent une luminosité naturelle exceptionnelle à l’intérieur de la maison, créant une atmosphère chaleureuse et accueillante. Les options les plus demandées par nos clients, telles que les menuiseries en aluminium et la domotique, sont également disponibles pour personnaliser votre maison selon vos besoins et vos envies.Cette maison de plain-pied est 100% économique grâce au respect de la nouvelle réglementation énergétique RE2020, ce qui en fait une maison basse consommation. Vous bénéficierez ainsi d’un confort optimal tout en réalisant des économies d’énergie.Le constructeur Babeau-Seguin, reconnu pour offrir le meilleur rapport qualité/prix du marché, vous garantit une construction de haute qualité, conforme aux normes les plus récentes.Ne manquez pas cette opportunité unique de devenir propriétaire d’une maison neuve, moderne et économe en énergie. Contactez-nous dès maintenant pour plus d’informations et pour planifier une visite de ce projet exceptionnel.
Mantry
TERRAINNous vous présentons un terrain d’une généreuse superficie de 1400 m², situé à Mantry, dans le département du Jura. Idéalement placé pour la réalisation de votre projet de construction de maison. Contactez-nous dès aujourd’hui pour découvrir ce bien rare sur le marché.
L’actualité immobilière à Le Pin
13/10/2023