Images
Description
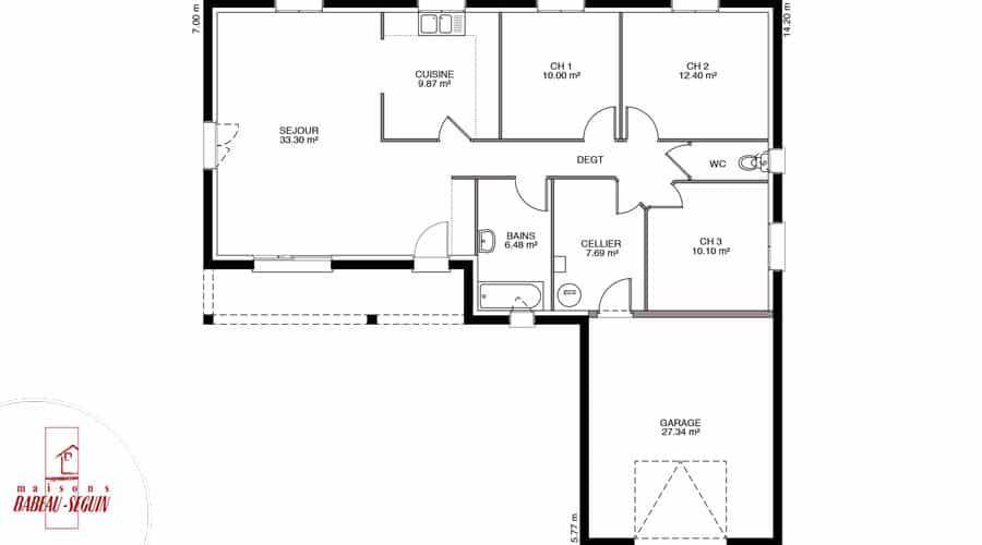
Sur ce terrain, nous vous proposons cette maison neuve, la Sauvetière, conçue par Babeau-Seguin, constructeur reconnu pour offrir le meilleur rapport qualité/prix du marché.
La Sauvetière est sans aucun doute à classer dans la catégorie maison moderne de notre catalogue. Cette maison plain-pied traditionnelle de 80 m² vous séduira par son audacieux plan en forme de L et ses touches résolument modernes. Elle dispose de 3 pièces, dont 2 chambres confortables, et d'un vaste séjour lumineux.
L'architecture en L de la Sauvetière abrite un garage accolé, offrant un accès direct à la maison. Vous avez le choix entre une toiture à 2 pans ou à 4 pans, selon vos préférences esthétiques.
Cette maison neuve est basse consommation et conforme à la RE2020, garantissant des performances énergétiques optimales et un confort de vie inégalé.
Ne manquez pas cette opportunité unique de devenir propriétaire d'une maison moderne, économe en énergie et parfaitement adaptée à vos besoins. Contactez-nous dès maintenant pour plus d'informations et pour planifier une visite du terrain.
Logement susceptibles de vous intéresser
Nous vous proposons de découvrir aussi cette sélection de logements situés à moins de 10km de Messia-sur-Sorne et qui seraient susceptibles de vous intéresser.
Val-Sonnette
TERRAINLibre choix du constructeur pour ce terrain N°11 à vendre à VAL-SONNETTE dans un lotissement au calme.Terrain rare et situation recherchéeSituationA 11 km, 15 mn de Lons Le SaunierA 61 km, 56 mn de DoleA 12 km, 13 mn de OrchampsAccès autoroute Péage de Beaurepaire – A39 – Sortie N°8, A39, 71580 Beaurepaire-en-Bresse à 10 km, 14 mnProximité de l’hôpital du Jura – Site de Lons le Saunier 11 km, 15 mnTerrain profitant d’une belle exposition toute la journéeTerrain prêt à bâtir, viabilisé et bornéEau potable, eaux usées, gaz, électricité et télécomRécupération des eaux pluviales sur la parcelleEquipements de qualités :Aménagements pérennes (voirie, éclairage public, traitement des eaux pluviales)Services de proximité :Commerces et servicesEcoles, cantine, garderieTransport en communsMaison médicale ou médecins et spécialistesNombreuses associations sportives et culturelsCe bien est proposé en libre choix de constructeur.Les informations sur les risques auxquels ce bien est exposé sont disponibles sur le site GEORISQUESREF;1_5_808
Val-Sonnette
TERRAINLibre choix du constructeur pour ce terrain N°14 à vendre à VAL-SONNETTE dans un lotissement au calme.Terrain rare et situation recherchéeSituationA 11 km, 15 mn de Lons Le SaunierA 61 km, 56 mn de DoleA 12 km, 13 mn de OrchampsAccès autoroute Péage de Beaurepaire – A39 – Sortie N°8, A39, 71580 Beaurepaire-en-Bresse à 10 km, 14 mnProximité de l’hôpital du Jura – Site de Lons le Saunier 11 km, 15 mnTerrain profitant d’une belle exposition toute la journéeTerrain prêt à bâtir, viabilisé et bornéEau potable, eaux usées, gaz, électricité et télécomRécupération des eaux pluviales sur la parcelleEquipements de qualités :Aménagements pérennes (voirie, éclairage public, traitement des eaux pluviales)Services de proximité :Commerces et servicesEcoles, cantine, garderieTransport en communsMaison médicale ou médecins et spécialistesNombreuses associations sportives et culturelsCe bien est proposé en libre choix de constructeur.Les informations sur les risques auxquels ce bien est exposé sont disponibles sur le site GEORISQUESREF;1_5_811
Val-Sonnette
TERRAINLibre choix du constructeur pour ce terrain N°15 à vendre à VAL-SONNETTE dans un lotissement au calme.Terrain rare et situation recherchéeSituationA 11 km, 15 mn de Lons Le SaunierA 61 km, 56 mn de DoleA 12 km, 13 mn de OrchampsAccès autoroute Péage de Beaurepaire – A39 – Sortie N°8, A39, 71580 Beaurepaire-en-Bresse à 10 km, 14 mnProximité de l’hôpital du Jura – Site de Lons le Saunier 11 km, 15 mnTerrain profitant d’une belle exposition toute la journéeTerrain prêt à bâtir, viabilisé et bornéEau potable, eaux usées, gaz, électricité et télécomRécupération des eaux pluviales sur la parcelleEquipements de qualités :Aménagements pérennes (voirie, éclairage public, traitement des eaux pluviales)Services de proximité :Commerces et servicesEcoles, cantine, garderieTransport en communsMaison médicale ou médecins et spécialistesNombreuses associations sportives et culturelsCe bien est proposé en libre choix de constructeur.Les informations sur les risques auxquels ce bien est exposé sont disponibles sur le site GEORISQUESREF;1_5_812
Val-Sonnette
TERRAINLibre choix du constructeur pour ce terrain N°13 à vendre à VAL-SONNETTE dans un lotissement au calme.Terrain rare et situation recherchéeSituationA 11 km, 15 mn de Lons Le SaunierA 61 km, 56 mn de DoleA 12 km, 13 mn de OrchampsAccès autoroute Péage de Beaurepaire – A39 – Sortie N°8, A39, 71580 Beaurepaire-en-Bresse à 10 km, 14 mnProximité de l’hôpital du Jura – Site de Lons le Saunier 11 km, 15 mnTerrain profitant d’une belle exposition toute la journéeTerrain prêt à bâtir, viabilisé et bornéEau potable, eaux usées, gaz, électricité et télécomRécupération des eaux pluviales sur la parcelleEquipements de qualités :Aménagements pérennes (voirie, éclairage public, traitement des eaux pluviales)Services de proximité :Commerces et servicesEcoles, cantine, garderieTransport en communsMaison médicale ou médecins et spécialistesNombreuses associations sportives et culturelsCe bien est proposé en libre choix de constructeur.Les informations sur les risques auxquels ce bien est exposé sont disponibles sur le site GEORISQUESREF;1_5_810
Val-Sonnette
TERRAINLibre choix du constructeur pour ce terrain N°12 à vendre à VAL-SONNETTE dans un lotissement au calme.Terrain rare et situation recherchéeSituationA 11 km, 15 mn de Lons Le SaunierA 61 km, 56 mn de DoleA 12 km, 13 mn de OrchampsAccès autoroute Péage de Beaurepaire – A39 – Sortie N°8, A39, 71580 Beaurepaire-en-Bresse à 10 km, 14 mnProximité de l’hôpital du Jura – Site de Lons le Saunier 11 km, 15 mnTerrain profitant d’une belle exposition toute la journéeTerrain prêt à bâtir, viabilisé et bornéEau potable, eaux usées, gaz, électricité et télécomRécupération des eaux pluviales sur la parcelleEquipements de qualités :Aménagements pérennes (voirie, éclairage public, traitement des eaux pluviales)Services de proximité :Commerces et servicesEcoles, cantine, garderieTransport en communsMaison médicale ou médecins et spécialistesNombreuses associations sportives et culturelsCe bien est proposé en libre choix de constructeur.Les informations sur les risques auxquels ce bien est exposé sont disponibles sur le site GEORISQUESREF;1_5_809
Montmorot
TERRAINSitué dans la charmante commune de Montmorot (39570), ce terrain de 1200 m² offre un cadre paisible et résidentiel pour la construction d’un futur projet immobilier. Montmorot, à proximité de Lons-le-Saunier, bénéficie d’un environnement verdoyant et calme, idéal pour les amoureux de la nature. Les commodités telles que les écoles, commerces et services essentiels sont facilement accessibles, offrant un quotidien pratique et agréable aux futurs résidents.Ce terrain non viabilisé, d’une surface de 1200 m², représente une belle opportunité pour concrétiser un projet de construction sur mesure. Sa surface généreuse offre de multiples possibilités d’aménagement, permettant la réalisation d’une habitation selon les besoins et les envies de ses futurs propriétaires. Bénéficiant d’un environnement calme et résidentiel, ce terrain à bâtir saura séduire ceux en quête d’un cadre de vie paisible et familial.Les informations sur les risques auxquels ce bien est exposé sont disponibles sur le site Géorisques : www.georisques.gouv.frPrix de vente : 58 000 €Honoraires charge vendeurContactez votre consultant megAgence : Nina CHAUDAT, Tél. : (Numéro supprimé), E-mail : (Email supprimé) – EI – Agent commercial immatriculé au RSAC de LONS-LE-SAUNIER sous le numéro 810 532 572
Geruge
TERRAIN ET MAISONSur ce terrain, nous vous proposons cette maison neuve : la Focus EVO, un modèle unique de 110 m² conçu par Babeau-Seguin, constructeur offrant le meilleur rapport qualité/prix du marché. Cette maison basse consommation est conforme à la norme RE2020, garantissant des performances énergétiques exceptionnelles.La Focus EVO se distingue par son concept évolutif, alliant une maison neuve prête à vivre et une maison prête à finir. Livrée avec 73 m² habitables, elle est conçue pour évoluer avec vos besoins futurs. Grâce à ses combles aménageables, vous pouvez facilement augmenter votre surface habitable à 110 m², ajoutant ainsi deux chambres supplémentaires et une salle de bain, pour un total de 4 chambres et 2 salles de bains.Les caractéristiques principales de cette maison incluent un garage intégré, un cellier, et des combles aménageables. Les options les plus demandées par nos clients, telles que la version Investisseur et les prises USB murales, sont également disponibles.La Focus EVO est idéale pour tous ceux qui recherchent une maison complète à un prix compétitif. Elle comprend une grande pièce de jour traversante, 4 chambres, une salle de bain, et un garage de 15 m². Que vous soyez un jeune couple, un célibataire ou une famille en pleine expansion, cette maison saura s’adapter à vos besoins et à vos envies.Ne manquez pas cette occasion unique de devenir propriétaire d’une maison évolutive, économe en énergie et conforme aux dernières normes environnementales. Contactez-nous dès aujourd’hui pour plus d’informations et pour planifier une visite.
Geruge
TERRAINNous vous présentons un terrain à vendre dans le charmant lotissement de Geruge, d’une surface généreuse de 2145 m² et viabilisé, offrant une opportunité exceptionnelle pour la construction de votre future maison. Ce terrain bénéficie d’une vue dégagée et se trouve dans un cadre champêtre, au calme, parfait pour ceux qui recherchent un cadre de vie paisible à 10 minutes de Lons le Saunier. Situé dans le département du Jura en Bourgogne-Franche-Comté, Geruge est un joli village. La beauté naturelle des environs et la tranquillité de cette région en font un lieu de choix pour bâtir votre foyer. Ne manquez pas cette occasion rare d’acquérir un terrain au potentiel immense, idéal pour concrétiser vos projets de construction. N’hésitez pas à nous contacter pour plus d’informations. À noter qu’en tant que constructeur, nous ne sommes pas mandatés pour réaliser la vente de ce terrain.
Le Pin
TERRAINÀ vendre, Projet Maison + terrain d’une superficie de 527 m², idéalement situé dans le charmant lotissement de Le Pin, dans le département du Jura. Ce terrain viabilisé et ensoleillé offre un cadre champêtre propice à la construction de votre future maison. Avec ses caractéristiques uniques, il constitue un emplacement privilégié pour concevoir votre projet immobilier en toute sérénité. Le Pin, située en Bourgogne-Franche-Comté, est une ville qui saura vous séduire par son ambiance paisible et ses multiples attractions locales. Profitez des nombreuses commodités à proximité, tels que les commerces, les écoles et les espaces verts dédiés aux loisirs. En outre, cette région est renommée pour ses paysages pittoresques et ses activités de plein air, faisant de Le Pin une commune où il fait bon vivre. La convivialité des habitants ajoute une touche chaleureuse à cet environnement dynamique. Ne manquez pas cette opportunité unique d’acquérir un terrain au potentiel exceptionnel ! Contactez-nous pour découvrir comment ce projet peut devenir votre réalité.
L’actualité immobilière à Messia-sur-Sorne
27/11/2023
02/11/2023
30/10/2023
20/10/2023
16/10/2023
16/10/2023