Maison à construire à Bénesse-Maremne (40230)
Images
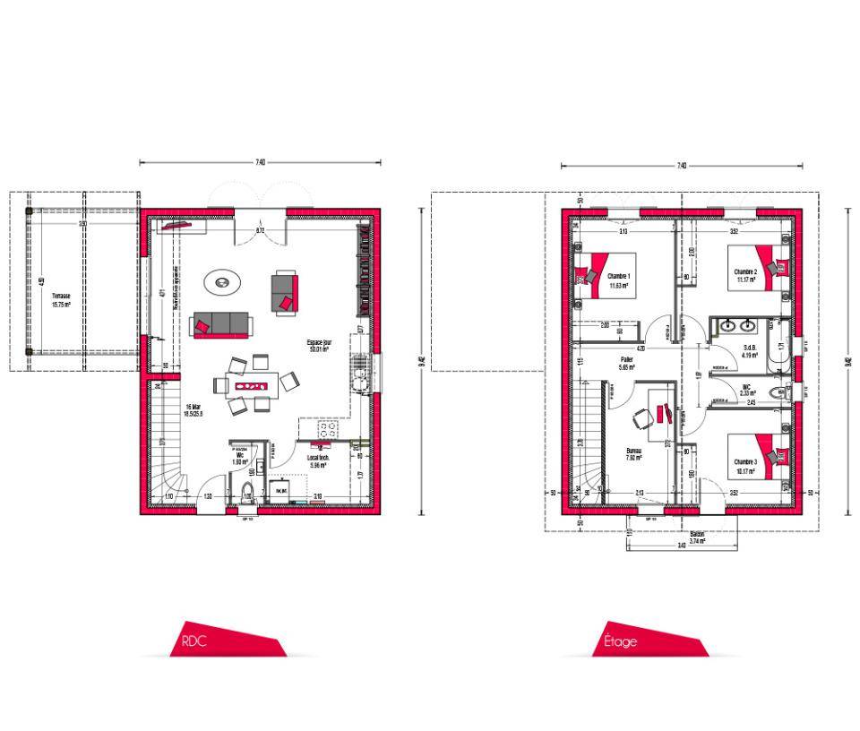
Description
Maison à construire à Benesse Maremne (40 landes)
Imaginons ensemble votre maison sur ce magnifique terrain bien exposé proche de la plage.
Un emplacement de choix pour ce terrain d'environ 592 m² viabilisé.
Personnalisons ensemble votre projet en fonction de vos envies.
Contactez votre agence Couleur Villas à Labenne, Costosseque Théo (Numéro supprimé)
Terrain proposé par un partenaire foncier selon disponibilité dans le cadre d'un projet de construction avec Couleur Villas. Les descriptions, photographies, surfaces et prix illustrant l'annonce sont fournies à titre indicatif et ne sont pas contractuels. Non soumis au DPE. Différents modèles disponibles.
Logement susceptibles de vous intéresser
Nous vous proposons de découvrir aussi cette sélection de logements situés à moins de 10km de Bénesse-Maremne et qui seraient susceptibles de vous intéresser.
Saubrigues
TERRAINBelle parcelle de 526m², viabilisée, située dans un petit lotissement de 10 lots seulement.Au calme.Emprise au sol maximale : 210 m²Surface de plancher maximale : 250 m²160 000 euros HFNN’hésitez pas à nous contacter pour tous renseignements complémentaires et pour un RDV afin de concevoir ensemble votre projet d’habitation.Les informations sur les risques auxquels ce bien est exposé sont disponibles sur le site Géorisques (Lien supprimé)
Seignosse
TERRAIN ET MAISONTerrain de 946m² au cœur d'un nouveau lotissement entièrement viabilisé. Emplacement privilégié à proximité des plages océanes, vous rejoignez Hossegor en 10min. Possibilité de construire jusqu'à 280m² au sol. . Un style unique, un confort absolu – et si c’était votre maison ? Ici, chaque détail a été pensé pour allier design, espace et bien-être. Une suite parentale avec dressing et salle d’eau, un séjour lumineux, une cuisine qui donne envie de partager… Cette maison est un véritable cocon moderne et fonctionnel. À l’étage, deux belles chambres, une salle de bains et des espaces optimisés pour que chacun profite pleinement de son intimité. Besoin de plus ? Cette maison s’adapte à vos envies : un bureau, un espace détente, une salle de jeux ? C’est vous qui décidez !. Pour un confort optimal et conforme à la RE2025, cette maison dispose d’une PAC avec plancher chauffant, radiateurs à l’étage et volets roulants électriques. À noter : Le prix indiqué exclut les revêtements de sol des chambres, la cuisine aménagée, la peinture, la décoration, les raccordements, les frais de notaire et l’assurance dommages-ouvrage. Contactez-nous dès aujourd’hui pour concrétiser votre projet et façonner votre futur chez-vous !. // Réf. : 1661-210492-PEL. Prix terrain : 545 000 €, hors frais d'agence à la charge de l'acquéreur. Ce terrain vous est proposé, par nos partenaires fonciers, dans le cadre d'un projet de construction avec nous. Les informations sur les risques auxquels ce bien est exposé sont disponibles sur le site Géorisques (www.georisques.gouv.fr). Prix maison : 247 579 €.
Seignosse
TERRAIN ET MAISONTerrain de 946m² au cœur d'un nouveau lotissement entièrement viabilisé. Emplacement privilégié à proximité des plages océanes, vous rejoignez Hossegor en 10min. Possibilité de construire jusqu'à 280m² au sol. . Maison de plain-pied de 138 m² habitables pour votre famille dont son cœur de vie de 72 m² vous séduira à coup sûr ; d’un côté la suite parentale de 20 m², de l’autre deux chambres et salle de bains toute équipée. Enfin une buanderie vous donne accès au garage double de 32 m². Pour vous assurer un confort de vie et conformément à la RE2025, nous avons choisi un mode de chauffage par PAC + plancher chauffant, volets roulants électriques. Prix hors peinture, décoration, revêtements de sol dans les chambres, cuisine équipée), frais de notaire, raccordements, dommage ouvrage. . // Réf. : 529-210492-PEL. Prix terrain : 545 000 €, hors frais d'agence à la charge de l'acquéreur. Ce terrain vous est proposé, par nos partenaires fonciers, dans le cadre d'un projet de construction avec nous. Les informations sur les risques auxquels ce bien est exposé sont disponibles sur le site Géorisques (www.georisques.gouv.fr). Prix maison : 255 387 €.
Seignosse
TERRAIN ET MAISONTerrain de 946m² au cœur d'un nouveau lotissement entièrement viabilisé. Emplacement privilégié à proximité des plages océanes, vous rejoignez Hossegor en 10min. Possibilité de construire jusqu'à 280m² au sol. . Idéal résidence secondaire ou premier investissement, aucune place de perdue pour cette charmante maison de plain-pied de forme rectangulaire et d'environ 100 m² habitables : Un espace de vie très convivial de plus de 47 m², très lumineux, avec cuisine ouverte. Côté nuit, trois chambres avec placards, une salle de bains et wc séparés. Pour vous assurer un confort de vie et conformément à la RE2025, nous avons choisi un mode de chauffage par PAC + plancher chauffant, volets roulants électriques. Prix hors peinture, décoration, revêtements de sol dans les chambres, cuisine équipée), frais de notaire, raccordements, dommage ouvrage. . // Réf. : 1729-210492-PEL. Prix terrain : 545 000 €, hors frais d'agence à la charge de l'acquéreur. Ce terrain vous est proposé, par nos partenaires fonciers, dans le cadre d'un projet de construction avec nous. Les informations sur les risques auxquels ce bien est exposé sont disponibles sur le site Géorisques (www.georisques.gouv.fr). Prix maison : 180 320 €.
Seignosse
TERRAINTerrain de 410m² au cœur d'un nouveau lotissement entièrement viabilisé. Emplacement privilégié à proximité des plages océanes, vous rejoignez Hossegor en 10min. // Réf. : T210490. Prix terrain : 260 000 €, hors frais d'agence et de notaire à la charge de l'acquéreur. Ce terrain vous est proposé, par nos partenaires fonciers, dans le cadre d'un projet de construction avec nous. Les informations sur les risques auxquels ce bien est exposé sont disponibles sur le site Géorisques (www.georisques.gouv.fr).
Seignosse
TERRAINTerrain de 520m² au cœur d'un nouveau lotissement entièrement viabilisé. Emplacement privilégié à proximité des plages océanes, vous rejoignez Hossegor en 10min. Possibilité de construire jusqu'à 150m² au sol. . // Réf. : T210491. Prix terrain : 320 000 €, hors frais d'agence et de notaire à la charge de l'acquéreur. Ce terrain vous est proposé, par nos partenaires fonciers, dans le cadre d'un projet de construction avec nous. Les informations sur les risques auxquels ce bien est exposé sont disponibles sur le site Géorisques (www.georisques.gouv.fr).
Seignosse
TERRAINTerrain de 946m² au cœur d'un nouveau lotissement entièrement viabilisé. Emplacement privilégié à proximité des plages océanes, vous rejoignez Hossegor en 10min. Possibilité de construire jusqu'à 280m² au sol. . // Réf. : T210492. Prix terrain : 545 000 €, hors frais d'agence et de notaire à la charge de l'acquéreur. Ce terrain vous est proposé, par nos partenaires fonciers, dans le cadre d'un projet de construction avec nous. Les informations sur les risques auxquels ce bien est exposé sont disponibles sur le site Géorisques (www.georisques.gouv.fr).
Seignosse
TERRAINTerrain à bâtir entièrement viabilisé et plat sur la commune de Seignosse, idéalement placé dans un coin au calme dans un petit quartier paisible. A quelques minutes de Hossegor et des plages océanes. . // Réf. : T210472. Prix terrain : 290 000 €, hors frais d'agence et de notaire à la charge de l'acquéreur. Ce terrain vous est proposé, par nos partenaires fonciers, dans le cadre d'un projet de construction avec nous. Les informations sur les risques auxquels ce bien est exposé sont disponibles sur le site Géorisques (www.georisques.gouv.fr).
Seignosse
TERRAIN ET MAISONTerrain à bâtir entièrement viabilisé et plat sur la commune de Seignosse, idéalement placé dans un coin au calme dans un petit quartier paisible. A quelques minutes de Hossegor et des plages océanes. . Familiale et fonctionnelle, cette maison rectangulaire de plain-pied vous séduira par un espace de vie de 50 m² très lumineux avec sa baie vitrée et ses ouvertures, une cuisine ouverte vous permettra de communiquer aisément. Du côté de l’espace nuit, un dégagement dessert 1 chambre parentale avec dressing et salle d’eau, trois chambres avec rangement, une salle de bain et un wc séparé. Pour vous assurer un confort de vie et conformément à la RE2025, nous avons choisi un mode de chauffage par PAC + plancher chauffant, volets roulants électriques. Prix hors fourniture et pose : des appareils sanitaires (sauf système de chauffage et d'eau chaude sanitaire), du carrelage et de la faïence, des revêtements de sol dans les chambres. Hors décoration et aménagement intérieur et peinture. Hors raccordements, frais de notaire et dommage ouvrage. // Réf. : 2195-210472-NEH. Prix terrain : 290 000 €, hors frais d'agence à la charge de l'acquéreur. Ce terrain vous est proposé, par nos partenaires fonciers, dans le cadre d'un projet de construction avec nous. Les informations sur les risques auxquels ce bien est exposé sont disponibles sur le site Géorisques (www.georisques.gouv.fr). Prix maison : 139 041 €.
L’actualité immobilière à Bénesse-Maremne
27/11/2023
02/11/2023
30/10/2023
20/10/2023
16/10/2023
16/10/2023