Maison à construire à Castets (40260)
Images
Description
🏡 Terrain + Maison à vendre - Castets (40260)
À vendre, projet de construction sur la commune de Castets, dans un cadre calme et recherché.
Terrain d'environ 751m²
Maison neuve à construire, personnalisable selon vos envies
Proche commerces, écoles et accès autoroute A63
À seulement 20 minutes de Dax et 25 minutes des plages landaises
Idéal pour un projet de vie entre forêt et océan, dans un environnement paisible.
👉 Agence Couleur Villas Labenne
📞 Costossèque Théo (Numéro supprimé)
Logement susceptibles de vous intéresser
Nous vous proposons de découvrir aussi cette sélection de logements situés à moins de 10km de Castets et qui seraient susceptibles de vous intéresser.
Castets
TERRAIN ET MAISONDans le centre ville de Castets, ce terrain de 547m² est au coeur d'un lotissement entièrement viabilisé. Emprise au sol possible : 200m². . Un style unique, un confort absolu – et si c’était votre maison ? Ici, chaque détail a été pensé pour allier design, espace et bien-être. Une suite parentale avec dressing et salle d’eau, un séjour lumineux, une cuisine qui donne envie de partager… Cette maison est un véritable cocon moderne et fonctionnel. À l’étage, deux belles chambres, une salle de bains et des espaces optimisés pour que chacun profite pleinement de son intimité. Besoin de plus ? Cette maison s’adapte à vos envies : un bureau, un espace détente, une salle de jeux ? C’est vous qui décidez !. Pour un confort optimal et conforme à la RE2025, cette maison dispose d’une PAC avec plancher chauffant, radiateurs à l’étage et volets roulants électriques. À noter : Le prix indiqué exclut les revêtements de sol des chambres, la cuisine aménagée, la peinture, la décoration, les raccordements, les frais de notaire et l’assurance dommages-ouvrage. Contactez-nous dès aujourd’hui pour concrétiser votre projet et façonner votre futur chez-vous !. // Réf. : 1661-210838-PEL. Prix terrain : 82 000 €, hors frais d'agence à la charge de l'acquéreur. Ce terrain vous est proposé, par nos partenaires fonciers, dans le cadre d'un projet de construction avec nous. Les informations sur les risques auxquels ce bien est exposé sont disponibles sur le site Géorisques (www.georisques.gouv.fr). Prix maison : 247 579 €.
Castets
TERRAIN ET MAISONDans le centre ville de Castets, ce terrain de 547m² est au coeur d'un lotissement entièrement viabilisé. Emprise au sol possible : 200m². . Premier investissement ou résidence secondiare, cette maison de plain-pied en L est faite pour vous : Très belle pièce de vie très lumineuse de plus de 45 m² oouverte sur le jardin. L’espace nuit est composé de trois chambres avec tous les rangements nécessaires ainsi que d’une salle de bains et des wc séparés. Le plus de cette maison est sans nul doute son garage intégré. Pour vous assurer un confort de vie et conformément à la RE2025, nous avons choisi un mode de chauffage par PAC + plancher chauffant, volets roulants électriques. Prix hors peinture, décoration, revêtements de sol dans les chambres, cuisine équipée), frais de notaire, raccordements, dommage ouvrage. // Réf. : 1714-210838-PEL. Prix terrain : 82 000 €, hors frais d'agence à la charge de l'acquéreur. Ce terrain vous est proposé, par nos partenaires fonciers, dans le cadre d'un projet de construction avec nous. Les informations sur les risques auxquels ce bien est exposé sont disponibles sur le site Géorisques (www.georisques.gouv.fr). Prix maison : 187 600 €.
Castets
TERRAIN ET MAISONDans le centre ville de Castets, ce terrain de 547m² est au coeur d'un lotissement entièrement viabilisé. Emprise au sol possible : 200m². . Idéale premier investissement ou résidence secondaire : Cette charmante maison de plain-pied vous séduira par ses volumes et agencement. Un très bel espace de vie de plus de 42 m² avec coin cuisine, très lumineux grâce à ses ouvertures, baie vitrée donnant directement sur le jardin. Côté nuit, un petit dégagement dessert trois chambres dont 1 belle suite parentale avec dressing, salle d'eau, une salle de bains et wc séparés. Pour vous assurer un confort de vie et conformément à la RE2025, nous avons choisi un mode de chauffage par PAC + plancher chauffant, volets roulants électriques. Prix hors peinture, décoration, revêtements de sol dans les chambres, cuisine équipée), frais de notaire, raccordements, dommage ouvrage. // Réf. : 1728-210838-PEL. Prix terrain : 82 000 €, hors frais d'agence à la charge de l'acquéreur. Ce terrain vous est proposé, par nos partenaires fonciers, dans le cadre d'un projet de construction avec nous. Les informations sur les risques auxquels ce bien est exposé sont disponibles sur le site Géorisques (www.georisques.gouv.fr). Prix maison : 188 015 €.
Castets
TERRAINDans le centre ville de Castets, ce terrain de 547m² est au coeur d'un lotissement entièrement viabilisé. Emprise au sol possible : 200m². . // Réf. : T210838. Prix terrain : 82 000 €, hors frais d'agence et de notaire à la charge de l'acquéreur. Ce terrain vous est proposé, par nos partenaires fonciers, dans le cadre d'un projet de construction avec nous. Les informations sur les risques auxquels ce bien est exposé sont disponibles sur le site Géorisques (www.georisques.gouv.fr).
Castets
TERRAIN ET MAISONTrès beau terrain dans un petit lotissement. Une surface de 720 m² en bord de forêt avec une piste qui amène au centre village. Familiale et fonctionnelle cette maison de 106 m² habitables vous séduira par ses volumes et son aménagement. Son très bel espace de vie de 47 m² environ avec sa cuisine ouverte avec accès direct au jardin grâce à sa baie vitrée. L’espace nuit est composé d’une suite parentale avec dressing et salle d’eau privative, à l’opposé trois chambres avec rangements, une salle de bains indépendantePour vous assurer un confort de vie et conformèment à la RE2025, nous avons chosi un mode de chauffage par PAC + plancher chauffant, volets roulants électriques, Prix hors fourniture et pose : des appareils sanitaires (sauf système de chauffage et d'eau chaude sanitaire), du carrelage et de la faïence, des revêtements de sol dans les chambres. Hors décoration et aménagement intérieur et peinture. Hors raccordements, frais de notaire et dommage ouvrage. // Réf. : 2227-210736-BAS. Prix terrain : 103 000 €, hors frais d'agence à la charge de l'acquéreur. Ce terrain vous est proposé, par nos partenaires fonciers, dans le cadre d'un projet de construction avec nous. Les informations sur les risques auxquels ce bien est exposé sont disponibles sur le site Géorisques (www.georisques.gouv.fr). Prix maison : 140 004 €.
Castets
TERRAIN ET MAISONTrès beau terrain dans un petit lotissement. Une surface de 720 m² en bord de forêt avec une piste qui amène au centre village. Fonctionnelle et lumineuse, cette maison de plain-pied vous propose un espace de vie de plus de 42 m²ouvert sur le jardin et sa cuisine ouverte aménagée avec un accès direct au cellier et à son garage intégré. La partie nuit est composée de trois chambres avec rangement, une salle de bain et wc indépendantPour vous assurer un confort de vie et conformèment à la RE2025, nous avons chosi un mode de chauffage par PAC + plancher chauffant, volets roulants électriques, Prix hors fourniture et pose : des appareils sanitaires (sauf système de chauffage et d'eau chaude sanitaire), du carrelage et de la faïence, des revêtements de sol dans les chambres. Hors décoration et aménagement intérieur et peinture. Hors raccordements, frais de notaire et dommage ouvrage. // Réf. : 2223-210736-BAS. Prix terrain : 103 000 €, hors frais d'agence à la charge de l'acquéreur. Ce terrain vous est proposé, par nos partenaires fonciers, dans le cadre d'un projet de construction avec nous. Les informations sur les risques auxquels ce bien est exposé sont disponibles sur le site Géorisques (www.georisques.gouv.fr). Prix maison : 122 320 €.
Castets
TERRAIN ET MAISONTrès beau terrain dans un petit lotissement. Une surface de 720 m² en bord de forêt avec une piste qui amène au centre village. Transformez votre maison avec Evolia. Avec Evolia, construisez la maison de vos rêves, étape par étape. Profitez d'une modularité unique et faites de votre foyer un espace évolutif et adaptable à chaque moment de votre vie. Notre atout majeur ? Un garage de 41 m² transformable en un espace de vie exceptionnel. Ce vaste garage peut devenir trois chambres supplémentaires et une salle d'eau, vous permettant d'agrandir votre maison sans déménagement et en maximisant chaque mètre carré pour répondre à vos besoins changeants. Prix hors fourniture et pose : des appareils sanitaires (sauf système de chauffage et d'eau chaude sanitaire), du carrelage, de la faïence, de la cuisine aménagée, des revêtements de sol dans les chambres. Hors décoration, aménagement intérieur, peinture, raccordements, frais de notaire et dommage ouvrage. (Surface habitable 49 m²+garage 41 m²). // Réf. : 2602-210736-BAS. Prix terrain : 103 000 €, hors frais d'agence à la charge de l'acquéreur. Ce terrain vous est proposé, par nos partenaires fonciers, dans le cadre d'un projet de construction avec nous. Les informations sur les risques auxquels ce bien est exposé sont disponibles sur le site Géorisques (www.georisques.gouv.fr). Prix maison : 91 142 €.
Castets
TERRAINTrès beau terrain dans un petit lotissement. Une surface de 720 m² en bord de forêt avec une piste qui amène au centre village. // Réf. : T210736. Prix terrain : 103 000 €, hors frais d'agence et de notaire à la charge de l'acquéreur. Ce terrain vous est proposé, par nos partenaires fonciers, dans le cadre d'un projet de construction avec nous. Les informations sur les risques auxquels ce bien est exposé sont disponibles sur le site Géorisques (www.georisques.gouv.fr).
Saint-Michel-Escalus
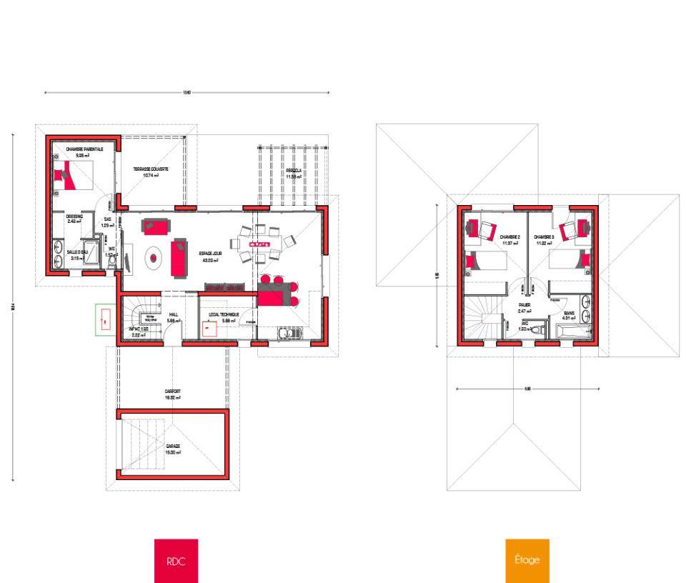
TERRAIN ET MAISONBelle maison familiale de 150 m² à Saint-Michel-EscalusSituée sur la commune paisible de Saint-Michel-Escalus, cette charmante maison à étage offre 150 m² habitables et de très belles prestations. Idéale pour une famille, elle allie confort, espace et luminosité.Au rez-de-chaussée, vous découvrirez une vaste pièce de vie baignée de lumière grâce à ses trois grandes baies vitrées donnant sur la terrasse. La cuisine ouverte offre un bel espace convivial, parfait pour partager des moments en famille ou entre amis.Toujours au rez-de-chaussée, une suite parentale vous assure tout le confort souhaité avec sa salle d’eau privative et son dressing.À l’étage, la maison dispose de trois chambres spacieuses, d’une salle de bains et d’un WC indépendant. L’ensemble est fonctionnel, lumineux et très bien entretenu.À l’extérieur, vous profiterez d’un garage double, d’un carport, d’une terrasse couverte ainsi que d’une pergola, parfaits pour apprécier les beaux jours dans un cadre verdoyant et calme.Cette maison allie confort moderne et charme. Elle se situe dans un environnement agréable, à proximité de la nature, tout en restant proche des commodités et des plages landaises.Pour plus de renseignements contactez M Sagette Franck au (Numéro supprimé)
L’actualité immobilière à Castets
27/11/2023
02/11/2023
30/10/2023
20/10/2023
16/10/2023
16/10/2023