Maison neuve à Dax (40100)
Images
Description
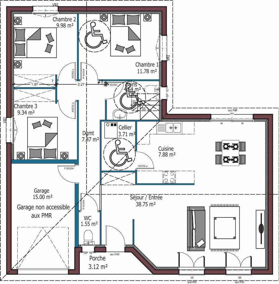
Cécile PÉNICAUT (Numéro supprimé) des maisons MCA vous propose d'adapter le modèle Atlanta, sur un terrain de 420m2, idéalement situé sur la commune de Dax, dans un nouveau lotissement.
Dédié aux investisseurs, laissez-vous séduire par ce modèle de maison en L, entièrement adapté aux normes PMR . Avec son garage intégré et ses 3 chambres, chacune disposant d'un emplacement placard, cette villa lumineuse et généreuse facilitera le quotidien des familles. La cuisine est en partie ouverte sur le vaste salon-séjour tourné vers le jardin. Les lignes définies par le porche apportent une touche d'originalité à cette maison.
Vous serez séduits par le beau volume de ses chambres, et la grande luminosité de son espace de vie.
Le prix affiché comprend le terrain, les frais de notaire, les frais annexes (raccordements, bornage), et cette maison livrée prête à décorer.
Pour vous accompagner dans votre projet de construction personnalisé, contactez vite Cécile PÉNICAUT au (Numéro supprimé) 66 à l'agence MCA Saint Paul Lès Dax, afin qu'elle vous accompagne et vous guide dans les démarches 🗝️🌟🏡
Logement susceptibles de vous intéresser
Nous vous proposons de découvrir aussi cette sélection de logements situés à moins de 10km de Dax et qui seraient susceptibles de vous intéresser.
Saugnac-et-Cambran
TERRAINA Saugnac et Cambran, dans un lotissement aménagé, terrain 366 m² entièrement viabilisé, dans un cadre au calme. . // Réf. : T210614. Prix terrain : 50 000 €, hors frais d'agence et de notaire à la charge de l'acquéreur. Ce terrain vous est proposé, par nos partenaires fonciers, dans le cadre d'un projet de construction avec nous. Les informations sur les risques auxquels ce bien est exposé sont disponibles sur le site Géorisques (www.georisques.gouv.fr).
Saugnac-et-Cambran
TERRAIN ET MAISONA Saugnac et Cambran, dans un lotissement aménagé, terrain 366 m² entièrement viabilisé, dans un cadre au calme. . Fonctionnelle et bien distribuée, La maison CRETE saura vous séduire par ses espaces. Son hall d'entrée ouvre sur un bureau, des wc et une pièce de vie avec cuisine à l'américaine aménagée ayant un accès direct au cellier. Son espace nuit est composé de 3 chambres avec rangement et une salle de bains équipée, dissociées de l'espace bureau. Pour vous assurer un confort de vie et conformément à la RE2025, nous avons choisi un mode de chauffage par PAC + plancher chauffant, volets roulants électriques. Prix hors fourniture et pose : des appareils sanitaires (sauf système de chauffage et d'eau chaude sanitaire), du carrelage et de la faïence, des revêtements de sol dans les chambres. Hors décoration et aménagement intérieur et peinture. Hors raccordements, frais de notaire et dommage ouvrage. // Réf. : 2171-210614-CED. Prix terrain : 50 000 €, hors frais d'agence à la charge de l'acquéreur. Ce terrain vous est proposé, par nos partenaires fonciers, dans le cadre d'un projet de construction avec nous. Les informations sur les risques auxquels ce bien est exposé sont disponibles sur le site Géorisques (www.georisques.gouv.fr). Prix maison : 125 851 €.
Saugnac-et-Cambran
TERRAIN ET MAISONA Saugnac et Cambran, dans un lotissement aménagé, terrain 366 m² entièrement viabilisé, dans un cadre au calme. . Idéale pour une première acquisition, charmante maison de plain-pied d’une surface habitable de 75 m² composée d’un espace de vie avec cuisine ouverte de 40 m² environ, un accès cellier et garage, une salle de bains avec baignoire, un wc séparé et deux chambres avec placards. Pour vous assurer un confort de vie et conformément à la RE2025, nous avons choisi un mode de chauffage par PAC + plancher chauffant, volets roulants électriques. Prix hors fourniture et pose : des appareils sanitaires (sauf système de chauffage et d'eau chaude sanitaire), du carrelage et de la faïence, des revêtements de sol dans les chambres. Hors décoration et aménagement intérieur et peinture. Hors raccordements, frais de notaire et dommage ouvrage. // Réf. : 2215-210614-CED. Prix terrain : 50 000 €, hors frais d'agence à la charge de l'acquéreur. Ce terrain vous est proposé, par nos partenaires fonciers, dans le cadre d'un projet de construction avec nous. Les informations sur les risques auxquels ce bien est exposé sont disponibles sur le site Géorisques (www.georisques.gouv.fr). Prix maison : 121 350 €.
Saugnac-et-Cambran
TERRAIN ET MAISONA Saugnac et Cambran, dans un lotissement aménagé, terrain 366 m² entièrement viabilisé, dans un cadre au calme. . Traditionnelle et familiale, cette maison est idéalement agencée en deux volumes distincts, l'espace de vie et la zone de nuit. Son espace de vie traversant avec sa cuisine US bénéficie de deux orientations qui favorisent la luminosité. Son espace nuit est composé de 4 belles chambres avec rangements, d'une salle de bains, et des wc séparésPour vous assurer un confort de vie et conformèment à la RE2025, nous avons chosi un mode de chauffage par PAC + plancher chauffant, volets roulants électriques, Prix hors fourniture et pose : des appareils sanitaires (sauf système de chauffage et d'eau chaude sanitaire), du carrelage et de la faïence, des revêtements de sol dans les chambres. Hors décoration et aménagement intérieur et peinture. Hors raccordements, frais de notaire et dommage ouvrage. // Réf. : 2169-210614-CED. Prix terrain : 50 000 €, hors frais d'agence à la charge de l'acquéreur. Ce terrain vous est proposé, par nos partenaires fonciers, dans le cadre d'un projet de construction avec nous. Les informations sur les risques auxquels ce bien est exposé sont disponibles sur le site Géorisques (www.georisques.gouv.fr). Prix maison : 129 586 €.
Saugnac-et-Cambran
TERRAINA Saugnac et Cambran, dans un lotissement aménagé, terrain 366 m² entièrement viabilisé, dans un cadre au calme. . // Réf. : T210614. Prix terrain : 50 000 €, hors frais d'agence et de notaire à la charge de l'acquéreur. Ce terrain vous est proposé, par nos partenaires fonciers, dans le cadre d'un projet de construction avec nous. Les informations sur les risques auxquels ce bien est exposé sont disponibles sur le site Géorisques (www.georisques.gouv.fr).
Seyresse
TERRAINA SEYRESSE, terrain 408 m² dans lotissement aménagé, situé proche de DAX, entièrement viabilisé avec TAE. // Réf. : T210497. Prix terrain : 60 558 €, hors frais d'agence et de notaire à la charge de l'acquéreur. Ce terrain vous est proposé, par nos partenaires fonciers, dans le cadre d'un projet de construction avec nous. Les informations sur les risques auxquels ce bien est exposé sont disponibles sur le site Géorisques (www.georisques.gouv.fr).
Narrosse
TERRAINA Narrosse, terrain 900 m² à viabiliser avec raccordement au TAE possible, situé 10 minutes de DAX. // Réf. : T210504. Prix terrain : 149 265 €, hors frais d'agence et de notaire à la charge de l'acquéreur. Ce terrain vous est proposé, par nos partenaires fonciers, dans le cadre d'un projet de construction avec nous. Les informations sur les risques auxquels ce bien est exposé sont disponibles sur le site Géorisques (www.georisques.gouv.fr).
Saint-Paul-lès-Dax
TERRAINA Saint Paul lès Dax, terrain 528 m² en cours de viabilisation, situé proche des commodités et en retrait de la route. . // Réf. : T210509. Prix terrain : 120 000 €, hors frais d'agence et de notaire à la charge de l'acquéreur. Ce terrain vous est proposé, par nos partenaires fonciers, dans le cadre d'un projet de construction avec nous. Les informations sur les risques auxquels ce bien est exposé sont disponibles sur le site Géorisques (www.georisques.gouv.fr).
Saint-Paul-lès-Dax
TERRAIN ET MAISONA Saint Paul lès Dax, terrain 528 m² en cours de viabilisation, situé proche des commodités et en retrait de la route. . Familiale et fonctionnelle cette maison de plain-pied vous séduira par ses volumes, son très bel espace de vie de plus de 43 m² avec cuisine ouverte très lumineuse grâce à ses nombreuses ouvertures US, et cellier indépendant. La partie nuit est composée de 4 chambres avec rangement, une salle de bains et wc indépendantPour vous assurer un confort de vie et conformèment à la RE2025, nous avons chosi un mode de chauffage par PAC + plancher chauffant, volets roulants électriques, Prix hors fourniture et pose : des appareils sanitaires (sauf système de chauffage et d'eau chaude sanitaire), du carrelage et de la faïence, des revêtements de sol dans les chambres. Hors décoration et aménagement intérieur et peinture. Hors raccordements, frais de notaire et dommage ouvrage. // Réf. : 2201-210509-CED. Prix terrain : 120 000 €, hors frais d'agence à la charge de l'acquéreur. Ce terrain vous est proposé, par nos partenaires fonciers, dans le cadre d'un projet de construction avec nous. Les informations sur les risques auxquels ce bien est exposé sont disponibles sur le site Géorisques (www.georisques.gouv.fr). Prix maison : 129 017 €.
L’actualité immobilière à Dax
27/11/2023
02/11/2023
30/10/2023
20/10/2023
16/10/2023
16/10/2023