Maison à construire à Hinx (40180)
Images
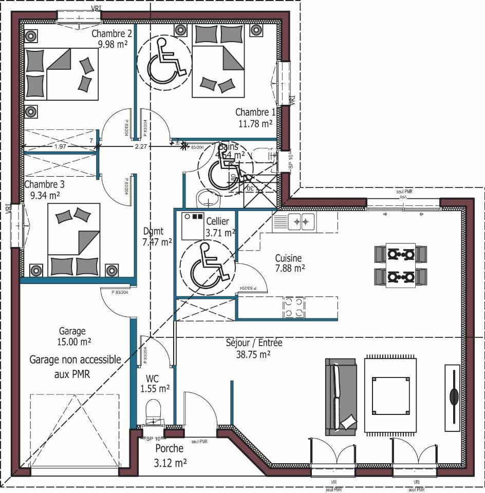
Description
Cécile PÉNICAUT (Numéro supprimé) des maisons MCA, vous propose d'adapter le modèle Atlanta Investisseurs, sur cette parcelle de 427m², idéalement située dans un nouveau lotissement, sur la commune de Hinx, aux portes de Dax. 🚗
Dédié aux investisseurs, laissez-vous séduire par ce modèle de maison en L, entièrement adapté aux normes PMR. Avec son garage intégré et ses 3 chambres, chacune disposant d'un emplacement placard, cette villa lumineuse et généreuse facilitera le quotidien des familles. La cuisine est en partie ouverte sur le vaste salon-séjour tourné vers le jardin. Les lignes définies par le porche apportent une touche d'originalité à cette maison.
Vous serez séduits par le beau volume de ses chambres, et la grande luminosité de son espace de vie.
Le prix affiché comprend le terrain, les frais de notaire, les frais annexes (raccordements, bornage), et cette maison livrée prête à décorer.
Pour vous accompagner dans votre projet de construction personnalisé, contactez vite Cécile PÉNICAUT au (Numéro supprimé) 66 à l'agence MCA Saint Paul Lès Dax, afin qu'elle vous accompagne et vous guide dans les démarches 🗝️🌟🏡
Logement susceptibles de vous intéresser
Nous vous proposons de découvrir aussi cette sélection de logements situés à moins de 10km de Hinx et qui seraient susceptibles de vous intéresser.
Saugnac-et-Cambran
TERRAINA Saugnac et Cambran, dans un lotissement aménagé, terrain 366 m² entièrement viabilisé, dans un cadre au calme. . // Réf. : T210614. Prix terrain : 50 000 €, hors frais d'agence et de notaire à la charge de l'acquéreur. Ce terrain vous est proposé, par nos partenaires fonciers, dans le cadre d'un projet de construction avec nous. Les informations sur les risques auxquels ce bien est exposé sont disponibles sur le site Géorisques (www.georisques.gouv.fr).
Saugnac-et-Cambran
TERRAIN ET MAISONA Saugnac et Cambran, dans un lotissement aménagé, terrain 366 m² entièrement viabilisé, dans un cadre au calme. . Fonctionnelle et bien distribuée, La maison CRETE saura vous séduire par ses espaces. Son hall d'entrée ouvre sur un bureau, des wc et une pièce de vie avec cuisine à l'américaine aménagée ayant un accès direct au cellier. Son espace nuit est composé de 3 chambres avec rangement et une salle de bains équipée, dissociées de l'espace bureau. Pour vous assurer un confort de vie et conformément à la RE2025, nous avons choisi un mode de chauffage par PAC + plancher chauffant, volets roulants électriques. Prix hors fourniture et pose : des appareils sanitaires (sauf système de chauffage et d'eau chaude sanitaire), du carrelage et de la faïence, des revêtements de sol dans les chambres. Hors décoration et aménagement intérieur et peinture. Hors raccordements, frais de notaire et dommage ouvrage. // Réf. : 2171-210614-CED. Prix terrain : 50 000 €, hors frais d'agence à la charge de l'acquéreur. Ce terrain vous est proposé, par nos partenaires fonciers, dans le cadre d'un projet de construction avec nous. Les informations sur les risques auxquels ce bien est exposé sont disponibles sur le site Géorisques (www.georisques.gouv.fr). Prix maison : 125 851 €.
Saugnac-et-Cambran
TERRAIN ET MAISONA Saugnac et Cambran, dans un lotissement aménagé, terrain 366 m² entièrement viabilisé, dans un cadre au calme. . Idéale pour une première acquisition, charmante maison de plain-pied d’une surface habitable de 75 m² composée d’un espace de vie avec cuisine ouverte de 40 m² environ, un accès cellier et garage, une salle de bains avec baignoire, un wc séparé et deux chambres avec placards. Pour vous assurer un confort de vie et conformément à la RE2025, nous avons choisi un mode de chauffage par PAC + plancher chauffant, volets roulants électriques. Prix hors fourniture et pose : des appareils sanitaires (sauf système de chauffage et d'eau chaude sanitaire), du carrelage et de la faïence, des revêtements de sol dans les chambres. Hors décoration et aménagement intérieur et peinture. Hors raccordements, frais de notaire et dommage ouvrage. // Réf. : 2215-210614-CED. Prix terrain : 50 000 €, hors frais d'agence à la charge de l'acquéreur. Ce terrain vous est proposé, par nos partenaires fonciers, dans le cadre d'un projet de construction avec nous. Les informations sur les risques auxquels ce bien est exposé sont disponibles sur le site Géorisques (www.georisques.gouv.fr). Prix maison : 121 350 €.
Saugnac-et-Cambran
TERRAIN ET MAISONA Saugnac et Cambran, dans un lotissement aménagé, terrain 366 m² entièrement viabilisé, dans un cadre au calme. . Traditionnelle et familiale, cette maison est idéalement agencée en deux volumes distincts, l'espace de vie et la zone de nuit. Son espace de vie traversant avec sa cuisine US bénéficie de deux orientations qui favorisent la luminosité. Son espace nuit est composé de 4 belles chambres avec rangements, d'une salle de bains, et des wc séparésPour vous assurer un confort de vie et conformèment à la RE2025, nous avons chosi un mode de chauffage par PAC + plancher chauffant, volets roulants électriques, Prix hors fourniture et pose : des appareils sanitaires (sauf système de chauffage et d'eau chaude sanitaire), du carrelage et de la faïence, des revêtements de sol dans les chambres. Hors décoration et aménagement intérieur et peinture. Hors raccordements, frais de notaire et dommage ouvrage. // Réf. : 2169-210614-CED. Prix terrain : 50 000 €, hors frais d'agence à la charge de l'acquéreur. Ce terrain vous est proposé, par nos partenaires fonciers, dans le cadre d'un projet de construction avec nous. Les informations sur les risques auxquels ce bien est exposé sont disponibles sur le site Géorisques (www.georisques.gouv.fr). Prix maison : 129 586 €.
Saugnac-et-Cambran
TERRAINA Saugnac et Cambran, dans un lotissement aménagé, terrain 366 m² entièrement viabilisé, dans un cadre au calme. . // Réf. : T210614. Prix terrain : 50 000 €, hors frais d'agence et de notaire à la charge de l'acquéreur. Ce terrain vous est proposé, par nos partenaires fonciers, dans le cadre d'un projet de construction avec nous. Les informations sur les risques auxquels ce bien est exposé sont disponibles sur le site Géorisques (www.georisques.gouv.fr).
Cassen
TERRAINCécile Pénicaut des maisons MCA vous présente ce grand terrain de 911 m2, entièrement viabilisé en eau, électricité, téléphone et tout à l’égout situé sur la commune de Cassen, 6 minutes de Pontonx, 10 minutes de Tartas et 25 minutes de DAXCe terrain est prêt à recevoir votre nouvelle constructionContactez Cécile Pénicaut au (Numéro supprimé) pour plus de renseignements
Cassen
TERRAIN ET MAISONCécile PÉNICAUT (Numéro supprimé) des maisons MCA vous propose d’adapter le modèle Pavot, sur cette jolie parcelle de 911 m2, située sur la commune de CassenCette maison de plain pied, possède un salon-séjour tourné vers le jardin, une espace bureau fermé, une cuisine ouverte avec son cellier attenant, ce qui offre un espace jour de près de 38m2. Le coté nuit est composé de 2 chambres avec placards, une salle de bains, un wc séparés, et une suite parentale avec dressing et salle d’eau privative. Vous serez séduits par ses volumes optimisés et sa fonctionnalité.Le prix affiché comprend le terrain, les frais de notaire, les frais de raccordements et de pluviales, les frais annexes (taxe aux raccordements, bornage, adaptation des fondations), et cette maison livrée prête à décorer.N’attendez plus, contactez vite Cécile PÉNICAUT au (Numéro supprimé) à l’agence MCA Saint Paul Lès Dax , afin qu’elle vous guide dans les démarches et vous accompagne dans ce projet de construction personnalisé 🗝️🌟🏡
Narrosse
TERRAINA Narrosse, terrain 900 m² à viabiliser avec raccordement au TAE possible, situé 10 minutes de DAX. // Réf. : T210504. Prix terrain : 149 265 €, hors frais d'agence et de notaire à la charge de l'acquéreur. Ce terrain vous est proposé, par nos partenaires fonciers, dans le cadre d'un projet de construction avec nous. Les informations sur les risques auxquels ce bien est exposé sont disponibles sur le site Géorisques (www.georisques.gouv.fr).
Narrosse
TERRAIN ET MAISONA Narrosse, terrain 900 m² à viabiliser avec raccordement au TAE possible, situé 10 minutes de DAX. Une maison spacieuse et fonctionnelle, idéale pour toute la famille ! Avec son design moderne et son agencement optimisé, cette maison offre un cadre de vie agréable et lumineux, parfait pour répondre aux besoins de chacun. Au rez-de-chaussée, vous profitez d’un vaste espace de vie ouvert, alliant salon, salle à manger et cuisine dans une atmosphère chaleureuse et conviviale. Un cellier pratique facilite l’organisation et le rangement du quotidien. La suite parentale avec dressing et salle d’eau privative garantit un confort optimal aux parents, offrant un véritable espace d’intimité. À l’étage, trois belles chambres bien réparties permettent à toute la famille de disposer de son propre cocon. Une grande salle de bain et un WC indépendant complètent cet étage pour plus de praticité. Une maison élégante, confortable et pensée pour s’adapter aux modes de vie modernes !. Pour vous assurer un confort de vie optimal et en conformité avec la RE2025, nous avons opté pour un système de chauffage par pompe à chaleur (PAC) avec plancher chauffant au rez-de-chaussée et radiateurs à l’étage. Le logement est également équipé de volets roulants électriques. Prix hors fourniture et pose : des appareils sanitaires (sauf système de chauffage et d'eau chaude sanitaire), du carrelage et de la faïence, des revêtements de sol dans les chambres. Hors décoration et aménagement intérieur et peinture. Hors raccordements, frais de notaire et dommage ouvrage. // Réf. : 2235-210504-CED. Prix terrain : 149 265 €, hors frais d'agence à la charge de l'acquéreur. Ce terrain vous est proposé, par nos partenaires fonciers, dans le cadre d'un projet de construction avec nous. Les informations sur les risques auxquels ce bien est exposé sont disponibles sur le site Géorisques (www.georisques.gouv.fr). Prix maison : 175 302 €.
L’actualité immobilière à Hinx
27/11/2023
02/11/2023
30/10/2023
20/10/2023
16/10/2023
16/10/2023