Maison à construire à Labenne (40530)
Images
Description
🏡 Terrain + Maison - Emplacement exceptionnel à Labenne, à deux pas de l'océan
Découvrez une opportunité rare sur la côte landaise : un terrain viabilisé idéalement situé à Labenne, dans un secteur recherché, calme et très prisé, à seulement quelques minutes à pied ou à vélo de l'océan.
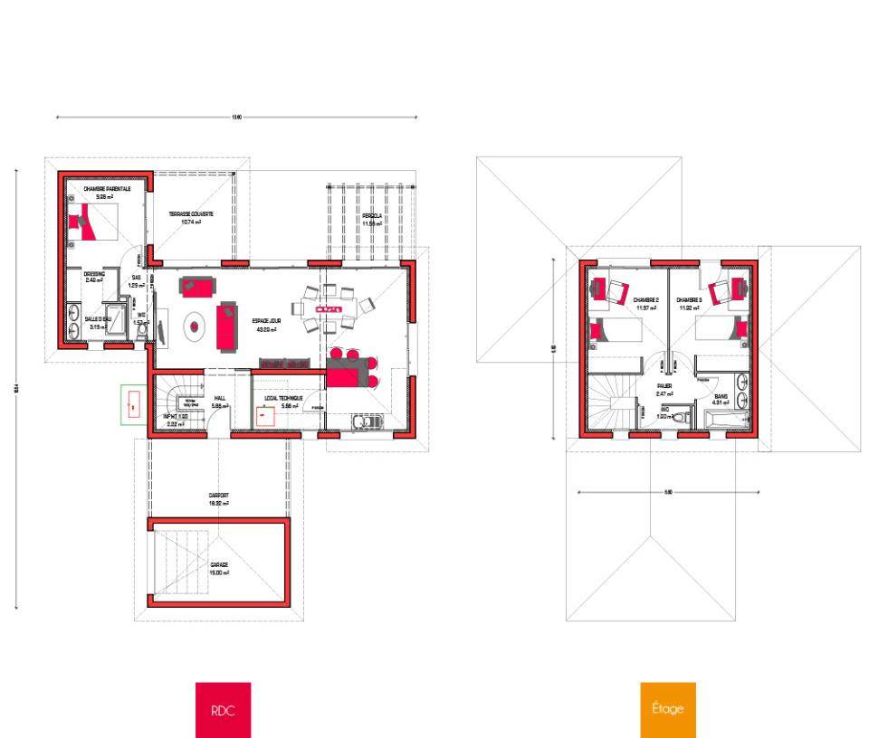
Ce projet comprend :
👉 Un terrain parfaitement orienté, prêt à construire, dans un environnement naturel préservé.
👉 Une maison moderne et fonctionnelle, entièrement personnalisable selon vos envies : configuration familiale, suite parentale, grande pièce de vie lumineuse, terrasse, garage...
👉 Un cadre de vie privilégié, entre plage, commerces de proximité, pistes cyclables et forêt landaise.
Points forts :
Viabilisé : eau, électricité, tout-à-l'égout déjà en place
Proximité immédiate de l'océan
Quartier calme, ambiance bord de mer
Construction conforme RE2020
📞 COSTOSSEQUE THEO- Couleur Villas Labenne (Numéro supprimé)
Logement susceptibles de vous intéresser
Nous vous proposons de découvrir aussi cette sélection de logements situés à moins de 10km de Labenne et qui seraient susceptibles de vous intéresser.
Saubrigues
TERRAIN ET MAISONAmélie DABA des Maisons MCA à Capbreton, vous propose d’adapter le modèle Urbis, sur ce joli terrain d’environ 526m², situé dans un quartier recherché, sur la commune de Saubrigues, à environ 25 minutes de Bayonne, et 10 minutes de la plage de Capbreton.Cette maison à étage dispose d’un hall d’entrée avec placard, wc, et cellier. Vous arrivez ensuite dans l’espace cuisine, et enfin le grand salon tourné vers le jardin grâce à ses deux grandes baies vitrées. L’étage est consacré à l’espace nuit avec 4 chambres, une salle de bains avec douche et baignoire, un WC séparé. Un garage attenant et communiquant vient compléter cette belle maison de ville.Vous serez séduits par ses volumes optimisés pour une grande famille, et son garage attenant.Le prix inclus les frais de notaire et de raccordement. Contactez vite votre conseillère Amélie DABA au (Numéro supprimé) à l’agence MCA de Capbreton, afin qu’elle vous guide dans les démarches et vous accompagne dans ce projet de construction personnalisé.
Saubrigues
TERRAIN ET MAISONAmélie DABA des Maisons MCA à Capbreton, vous propose d’adapter le modèle Atlanta, sur ce joli terrain d’environ 526m², situé dans un quartier recherché, sur la commune de Saubrigues, à environ 25 minutes de Bayonne, et 10 minutes de la plage de Capbreton.Cette maison familiale en L avec garage, dispose d’un hall d’entrée avec placard, un magnifique séjour lumineux donnant sur le jardin, et une cuisine ouverte avec cellier attenant pour un espace de vie de plus de 51m2. L’espace nuit est composé de 3 chambres avec placards, une salle de bains et WC séparés. Un garage de 15m2 vient compléter ce bel ensemble.Vous serez séduits par le beau volume de ses chambres, et la grande luminosité de son espace de vie.Le prix inclus les frais de notaire et de raccordement. Contactez vite votre conseillère Amélie DABA au (Numéro supprimé) à l’agence MCA de Capbreton, afin qu’elle vous guide dans les démarches et vous accompagne dans ce projet de construction personnalisé.
Boucau
TERRAIN ET MAISONÉmilie PINEAU des MCA à Anglet, vous propose d’adapter le modèle Pavot, sur ce joli terrain d’environ 600m², située sur la commune de Boucau à seulement 15 min de Bayonne. LIMITE TARNOS (Haut Boucau), au calme dans un cadre verdoyant.Vous serez séduits par ses volumes optimisés et sa fonctionnalité. Cette maison de plain pied peut être agencée selon vos besoins, pour une surface totale d’environ 100m2. Le coin nuit est composé de 2 chambres, une salle de bains, avec wc séparé. Vous disposerez également d’une suite parentale.Ce projet peut-être modifié sur mesure : agencement des plans, moduler le nombre de chambres, option garage, réduire ou agrandir la surface habitable…Le prix inclus les raccordements, assurances et viabilisation. Hors frais de notaire.Vous souhaitez une maison totalement sur-mesure qui vous ressemble ? Vous êtes au bon endroit ! Contactez vite votre conseillère Émilie PINEAU (Numéro supprimé) à l’agence MCA d’Anglet, pour une étude personnalisée de votre projet. Chez MAISONS DE LA COTE ATLANTIQUE nous sommes à votre écoute et nos conseillers vous accompagnent tout au long de votre projet de construction. Le terrain de cette offre vous est proposé dans le cadre d’un projet de construction MCA. * Visuels non contractuels.
Bénesse-Maremne
TERRAIN ET MAISONAmélie DABA des Maisons MCA à Capbreton, vous propose d’adapter le modèle Atlanta, sur ce joli terrain d’environ 676m², située dans un quartier calme, sur la commune de Benesse Maremne, à 15 minutes de Bayonne.Cette maison familiale en L avec garage, dispose d’un hall d’entrée avec placard, un magnifique séjour lumineux donnant sur le jardin, et une cuisine ouverte avec cellier attenant, pour un espace de vie de près de 55m2. L’espace nuit est composé de 3 chambres avec placards, une salle de bains, WC séparés, et une suite parentale avec salle d’eau. Un garage de 15m2 vient compléter ce bel ensemble.Vous serez séduits par le beau volume de ses chambres, et la grande luminosité de son espace de vie.Le prix inclus les frais de notaire et de raccordement. Contactez vite votre conseillère Amélie DABA au (Numéro supprimé) à l’agence MCA de Capbreton, afin qu’elle vous guide dans les démarches et vous accompagne dans ce projet de construction personnalisé.
Saint-Martin-de-Seignanx
TERRAIN ET MAISONAmélie DABA des Maisons MCA à Capbreton, vous propose d’adapter le modèle Prisma, sur ce joli terrain d’environ 578m², située dans un quartier recherché, au calme, dans un environnement boisé, sur la commune de Saint Martin de Seignanx, à environ 20 minutes de Bayonne, et 15 minutes de la plage de Ondres.Cette maison contemporaine dispose d’un hall avec placard de rangement, un salon-séjour spacieux et lumineux, une cuisine ouverte sur la pièce de vie. Et un espace nuit composé de 3 chambres de plus de 10 m², une salle de bains avec douche et baignoire et un WC séparé. Quelque soit l’orientation de votre terrain, la Prisma vous permet de profiter d’une exposition Sud du salon/séjour. Vous serez également séduit par son porche couvert. Le prix affiché comprend le terrain, les frais de notaire, les frais de raccordements et de pluviales, les frais annexes (taxe aux raccordements, bornage), et cette maison livrée prête à décorer (prévoir peinture et cuisine).Contactez vite votre conseillère Amélie DABA au (Numéro supprimé) à l’agence MCA de Capbreton, afin qu’elle vous guide dans les démarches et vous accompagne dans ce projet de construction personnalisé.
Saubrigues
TERRAINAmélie DABA des Maisons MCA à Capbreton, vous propose de découvrir ce beau terrain d’environ 526m², sur la commune de Saubrigues.Situé à 25 minutes de Bayonne, dans un quartier prisé, à proximité du centre ville, de ses commerces, et de l’école.Vous pourrez également profiter de la plage de Capbreton à moins de 10 minutes.Contactez vite votre conseillère Amélie DABA au (Numéro supprimé), afin qu’elle vous guide dans les démarches et vous accompagne dans ce projet de construction personnalisé.
Labenne
TERRAIN ET MAISONAmélie DABA des Maisons MCA à Capbreton, vous propose d’adapter le modèle Eos, sur ce joli terrain de 492m², située dans un petit lotissement, sur la commune de Labenne, à environ 20 minutes de Bayonne.Cette maison contemporaine est optimisée pour votre confort de vie. Elle offre un très beau hall d’accueil avec un grand espace de rangement. Il dessert 3 chambres dont une suite parentale, une salle de bains, un WC séparé et également un coin bureau ! L’espace de vie de près de 45m2 est baigné de lumière grâce à un bow-window donnant sur une terrasse avec pergola, il dispose également d’une belle cuisine fonctionnelle avec cellier attenant et garage communiquant. Cette maison est idéale pour accueillir votre famille et vos amis de manière chaleureuse.Le prix affiché comprend le terrain, les frais de notaire, les frais annexes (raccordements, bornage, etc….) et cette maison livrée prête à décorer, aux normes RE2020.Contactez vite votre conseillère Amélie DABA au (Numéro supprimé) à l’agence MCA de Capbreton, afin qu’elle vous guide dans les démarches et vous accompagne dans ce projet de construction personnalisé.
Labenne
TERRAINAmélie DABA des Maisons MCA à Capbreton, vous propose de découvrir ce terrain d’environ 492m², sur la commune de Labenne.Situé à 20 minutes de Bayonne (en voiture ou en train), vous aurez accès à toutes les commodités du centre ville, commerces, services médicaux, crèches, école maternelle / primaire et collège.Vous pourrez également profiter de la plage à moins de 10 minutes par la piste cyclable.Ce terrain situé dans un lotissement, au calme, sera vendu entièrement viabilisé en eau, électricité, téléphone et tout à l’égout.Contactez vite votre conseillère Amélie DABA au (Numéro supprimé), afin qu’elle vous guide dans les démarches et vous accompagne dans ce projet de construction personnalisé.
Bénesse-Maremne
TERRAINAmélie DABA des Maisons MCA à Capbreton, vous propose de découvrir ce terrain d’environ 533m², sur la commune de Benesse Maremne.Situé à 15 minutes de Bayonne par l’autoroute, dans un quartier calme, à proximité du centre ville, de ses commerces, et de l’école.Vous serez également à proximité de la plage de Capbreton.Contactez vite votre conseillère Amélie DABA au (Numéro supprimé), afin qu’elle vous guide dans les démarches et vous accompagne dans ce projet de construction personnalisé.
L’actualité immobilière à Labenne
27/11/2023
02/11/2023
30/10/2023
20/10/2023
16/10/2023
16/10/2023