Maison à construire à Mées (40990)
Images
Description
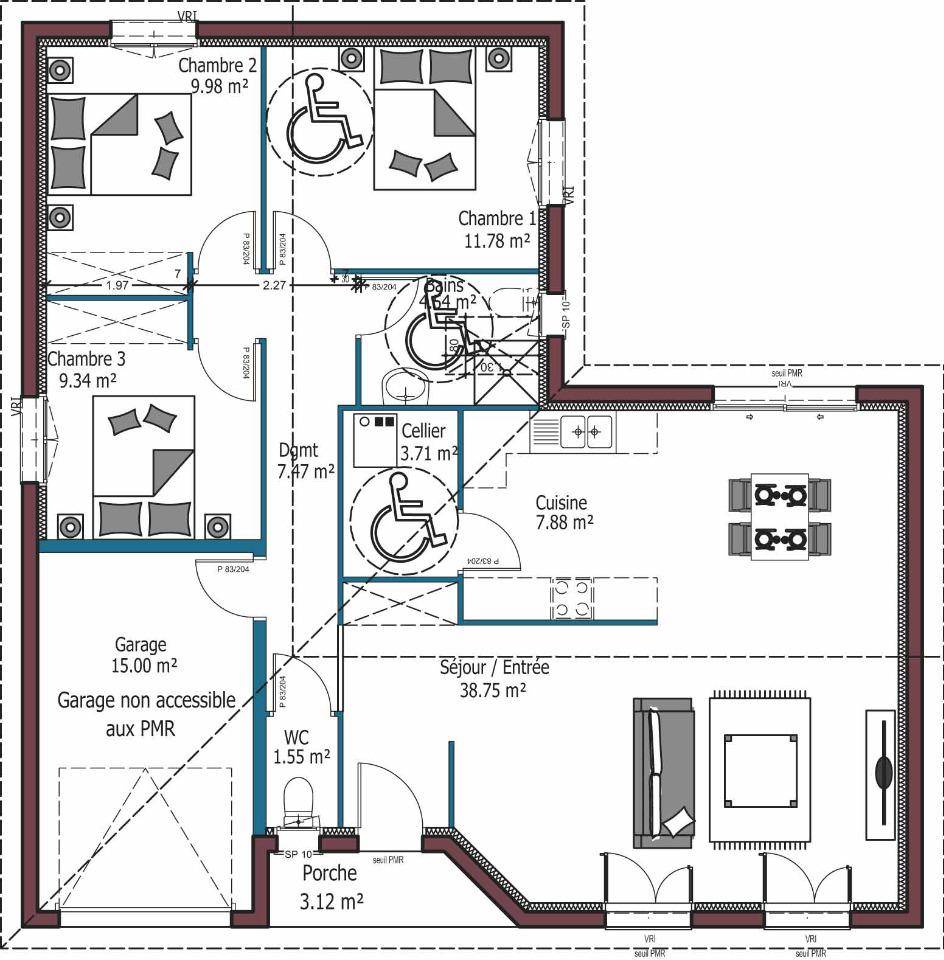
Cécile PÉNICAUT (Numéro supprimé) des maisons MCA vous propose d'adapter le modèle Atlanta investisseur, sur ce joli terrain d'environ 572m², située sur la commune de Mées, dans un petit lotissement de 6 lots, aux portes de Dax, avec un accès direct à la quatre voies direction Bayonne / Mont de Marsan. 🚗
Dédié aux investisseurs, laissez-vous séduire par ce modèle de maison en L, entièrement adapté aux normes PMR. Avec son garage intégré et ses 3 chambres, chacune disposant d'un emplacement placard, cette villa lumineuse et généreuse facilitera le quotidien des familles. La cuisine est en partie ouverte sur le vaste salon-séjour tourné vers le jardin. Les lignes définies par le porche apportent une touche d'originalité à cette maison.
Vous serez séduits par le beau volume de ses chambres, et la grande luminosité de son espace de vie.
Le prix affiché comprend le terrain, les frais de notaire, les frais annexes (raccordements, bornage, asl), et cette maison livrée prête à décorer.
Pour vous accompagner dans votre projet de construction personnalisé, contactez vite Cécile PÉNICAUT au (Numéro supprimé) 66 à l'agence MCA Saint Paul Lès Dax, afin qu'elle vous accompagne et vous guide dans les démarches 🗝️🌟🏡
Logement susceptibles de vous intéresser
Nous vous proposons de découvrir aussi cette sélection de logements situés à moins de 10km de Mées et qui seraient susceptibles de vous intéresser.
Seyresse
TERRAINA SEYRESSE, terrain 408 m² dans lotissement aménagé, situé proche de DAX, entièrement viabilisé avec TAE. // Réf. : T210497. Prix terrain : 60 558 €, hors frais d'agence et de notaire à la charge de l'acquéreur. Ce terrain vous est proposé, par nos partenaires fonciers, dans le cadre d'un projet de construction avec nous. Les informations sur les risques auxquels ce bien est exposé sont disponibles sur le site Géorisques (www.georisques.gouv.fr).
Narrosse
TERRAINA Narrosse, terrain 900 m² à viabiliser avec raccordement au TAE possible, situé 10 minutes de DAX. // Réf. : T210504. Prix terrain : 149 265 €, hors frais d'agence et de notaire à la charge de l'acquéreur. Ce terrain vous est proposé, par nos partenaires fonciers, dans le cadre d'un projet de construction avec nous. Les informations sur les risques auxquels ce bien est exposé sont disponibles sur le site Géorisques (www.georisques.gouv.fr).
Saint-Paul-lès-Dax
TERRAINA Saint Paul lès Dax, terrain 528 m² en cours de viabilisation, situé proche des commodités et en retrait de la route. . // Réf. : T210509. Prix terrain : 120 000 €, hors frais d'agence et de notaire à la charge de l'acquéreur. Ce terrain vous est proposé, par nos partenaires fonciers, dans le cadre d'un projet de construction avec nous. Les informations sur les risques auxquels ce bien est exposé sont disponibles sur le site Géorisques (www.georisques.gouv.fr).
Saint-Paul-lès-Dax
TERRAIN ET MAISONA Saint Paul lès Dax, terrain 528 m² en cours de viabilisation, situé proche des commodités et en retrait de la route. . Familiale et fonctionnelle cette maison de plain-pied vous séduira par ses volumes, son très bel espace de vie de plus de 43 m² avec cuisine ouverte très lumineuse grâce à ses nombreuses ouvertures US, et cellier indépendant. La partie nuit est composée de 4 chambres avec rangement, une salle de bains et wc indépendantPour vous assurer un confort de vie et conformèment à la RE2025, nous avons chosi un mode de chauffage par PAC + plancher chauffant, volets roulants électriques, Prix hors fourniture et pose : des appareils sanitaires (sauf système de chauffage et d'eau chaude sanitaire), du carrelage et de la faïence, des revêtements de sol dans les chambres. Hors décoration et aménagement intérieur et peinture. Hors raccordements, frais de notaire et dommage ouvrage. // Réf. : 2201-210509-CED. Prix terrain : 120 000 €, hors frais d'agence à la charge de l'acquéreur. Ce terrain vous est proposé, par nos partenaires fonciers, dans le cadre d'un projet de construction avec nous. Les informations sur les risques auxquels ce bien est exposé sont disponibles sur le site Géorisques (www.georisques.gouv.fr). Prix maison : 129 017 €.
Saint-Paul-lès-Dax
TERRAIN ET MAISONA Saint Paul lès Dax, terrain 528 m² en cours de viabilisation, situé proche des commodités et en retrait de la route. . Familiale et fonctionnelle cette maison de 106 m² habitables vous séduira par ses volumes et son aménagement. Son très bel espace de vie de 47 m² environ avec sa cuisine ouverte avec accès direct au jardin grâce à sa baie vitrée. L’espace nuit est composé d’une suite parentale avec dressing et salle d’eau privative, à l’opposé trois chambres avec rangements, une salle de bains indépendantePour vous assurer un confort de vie et conformèment à la RE2025, nous avons chosi un mode de chauffage par PAC + plancher chauffant, volets roulants électriques, Prix hors fourniture et pose : des appareils sanitaires (sauf système de chauffage et d'eau chaude sanitaire), du carrelage et de la faïence, des revêtements de sol dans les chambres. Hors décoration et aménagement intérieur et peinture. Hors raccordements, frais de notaire et dommage ouvrage. // Réf. : 2227-210509-CED. Prix terrain : 120 000 €, hors frais d'agence à la charge de l'acquéreur. Ce terrain vous est proposé, par nos partenaires fonciers, dans le cadre d'un projet de construction avec nous. Les informations sur les risques auxquels ce bien est exposé sont disponibles sur le site Géorisques (www.georisques.gouv.fr). Prix maison : 140 004 €.
Saint-Paul-lès-Dax
TERRAIN ET MAISONA Saint Paul lès Dax, terrain 528 m² en cours de viabilisation, situé proche des commodités et en retrait de la route. . Une maison élégante et bien pensée pour un quotidien confortable ! Avec ses espaces généreux et son agencement optimisé, cette maison est idéale pour une vie de famille harmonieuse. Au rez-de-chaussée, profitez d’un grand espace de vie ouvert, baigné de lumière, où le salon, la salle à manger et la cuisine se rejoignent en toute fluidité. Un cellier pratique, une salle d’eau et un WC indépendant viennent compléter cet espace. Une chambre au rez-de-chaussée offre une flexibilité précieuse. L’étage se compose de trois belles chambres, parfaites pour accueillir toute la famille. Une grande salle de bain, un second WC et un palier fonctionnel assurent un confort optimal. Une maison moderne, spacieuse et conçue pour répondre à toutes vos attentes !. Pour vous assurer un confort de vie optimal et en conformité avec la RE2025, nous avons opté pour un système de chauffage par pompe à chaleur (PAC) avec plancher chauffant au rez-de-chaussée et radiateurs à l’étage. Le logement est également équipé de volets roulants électriques. Prix hors fourniture et pose : des appareils sanitaires (sauf système de chauffage et d'eau chaude sanitaire), du carrelage et de la faïence, des revêtements de sol dans les chambres. Hors décoration et aménagement intérieur et peinture. Hors raccordements, frais de notaire et dommage ouvrage. // Réf. : 2511-210509-CED. Prix terrain : 120 000 €, hors frais d'agence à la charge de l'acquéreur. Ce terrain vous est proposé, par nos partenaires fonciers, dans le cadre d'un projet de construction avec nous. Les informations sur les risques auxquels ce bien est exposé sont disponibles sur le site Géorisques (www.georisques.gouv.fr). Prix maison : 174 773 €.
Narrosse
TERRAIN ET MAISONA Narrosse, terrain 900 m² à viabiliser avec raccordement au TAE possible, situé 10 minutes de DAX. Une maison spacieuse et fonctionnelle, idéale pour toute la famille ! Avec son design moderne et son agencement optimisé, cette maison offre un cadre de vie agréable et lumineux, parfait pour répondre aux besoins de chacun. Au rez-de-chaussée, vous profitez d’un vaste espace de vie ouvert, alliant salon, salle à manger et cuisine dans une atmosphère chaleureuse et conviviale. Un cellier pratique facilite l’organisation et le rangement du quotidien. La suite parentale avec dressing et salle d’eau privative garantit un confort optimal aux parents, offrant un véritable espace d’intimité. À l’étage, trois belles chambres bien réparties permettent à toute la famille de disposer de son propre cocon. Une grande salle de bain et un WC indépendant complètent cet étage pour plus de praticité. Une maison élégante, confortable et pensée pour s’adapter aux modes de vie modernes !. Pour vous assurer un confort de vie optimal et en conformité avec la RE2025, nous avons opté pour un système de chauffage par pompe à chaleur (PAC) avec plancher chauffant au rez-de-chaussée et radiateurs à l’étage. Le logement est également équipé de volets roulants électriques. Prix hors fourniture et pose : des appareils sanitaires (sauf système de chauffage et d'eau chaude sanitaire), du carrelage et de la faïence, des revêtements de sol dans les chambres. Hors décoration et aménagement intérieur et peinture. Hors raccordements, frais de notaire et dommage ouvrage. // Réf. : 2235-210504-CED. Prix terrain : 149 265 €, hors frais d'agence à la charge de l'acquéreur. Ce terrain vous est proposé, par nos partenaires fonciers, dans le cadre d'un projet de construction avec nous. Les informations sur les risques auxquels ce bien est exposé sont disponibles sur le site Géorisques (www.georisques.gouv.fr). Prix maison : 175 302 €.
Narrosse
TERRAIN ET MAISONA Narrosse, terrain 900 m² à viabiliser avec raccordement au TAE possible, situé 10 minutes de DAX. Idéal premier achat, cette maison de plain-pied fonctionnelle et lumineuse vous propose une vaste pièce de vie éclairée par sa grande baie vitrée avec cuisine ouverte, deux chambres avec rangement, salle de bains et cellier indépendantPour vous assurer un confort de vie et conformèment à la RE2025, nous avons chosi un mode de chauffage par PAC + plancher chauffant, volets roulants électriques, Prix hors fourniture et pose : des appareils sanitaires (sauf système de chauffage et d'eau chaude sanitaire), du carrelage et de la faïence, des revêtements de sol dans les chambres. Hors décoration et aménagement intérieur et peinture. Hors raccordements, frais de notaire et dommage ouvrage. // Réf. : 2187-210504-CED. Prix terrain : 149 265 €, hors frais d'agence à la charge de l'acquéreur. Ce terrain vous est proposé, par nos partenaires fonciers, dans le cadre d'un projet de construction avec nous. Les informations sur les risques auxquels ce bien est exposé sont disponibles sur le site Géorisques (www.georisques.gouv.fr). Prix maison : 98 412 €.
Narrosse
TERRAIN ET MAISONA Narrosse, terrain 900 m² à viabiliser avec raccordement au TAE possible, situé 10 minutes de DAX. Fonctionnelle et bien distribuée, La maison CRETE saura vous séduire par ses espaces. Son hall d'entrée ouvre sur un bureau, des wc et une pièce de vie avec cuisine à l'américaine aménagée ayant un accès direct au cellier. Son espace nuit est composé de 3 chambres avec rangement et une salle de bains équipée, dissociées de l'espace bureau. Pour vous assurer un confort de vie et conformément à la RE2025, nous avons choisi un mode de chauffage par PAC + plancher chauffant, volets roulants électriques. Prix hors fourniture et pose : des appareils sanitaires (sauf système de chauffage et d'eau chaude sanitaire), du carrelage et de la faïence, des revêtements de sol dans les chambres. Hors décoration et aménagement intérieur et peinture. Hors raccordements, frais de notaire et dommage ouvrage. // Réf. : 2171-210504-CED. Prix terrain : 149 265 €, hors frais d'agence à la charge de l'acquéreur. Ce terrain vous est proposé, par nos partenaires fonciers, dans le cadre d'un projet de construction avec nous. Les informations sur les risques auxquels ce bien est exposé sont disponibles sur le site Géorisques (www.georisques.gouv.fr). Prix maison : 125 851 €.
L’actualité immobilière à Mées
27/11/2023
02/11/2023
30/10/2023
20/10/2023
16/10/2023
16/10/2023