Maison à construire à Messanges (40660)
Images
Description
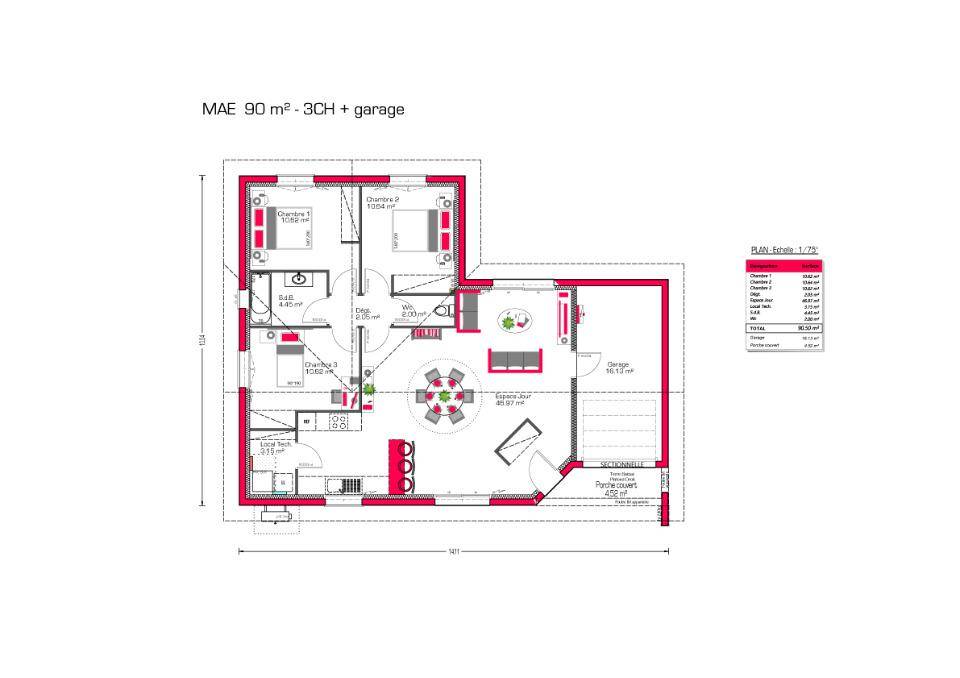
Sur la commune de Messanges, dans les Landes, charmante maison de plain-pied d'environ 90 m² habitables, implantée sur un beau terrain de 670 m².
Cette maison, lumineuse et fonctionnelle, se compose d'une pièce de vie spacieuse avec cuisine ouverte, offrant un agréable espace de convivialité donnant sur la terrasse et le jardin. Elle dispose de trois chambres confortables, idéales pour accueillir famille et amis, ainsi qu'une salle de bains et des toilettes séparées.
Un garage attenant vient compléter l'ensemble, offrant un espace pratique pour stationner ou stocker du matériel. Le jardin, plat et bien entretenu, laisse de nombreuses possibilités d'aménagement, que ce soit pour installer une piscine, créer un potager ou simplement profiter du calme des lieux.
La maison bénéficie d'un emplacement privilégié, à proximité du centre du village, des commerces, des écoles et des superbes plages landaises, accessibles en quelques minutes à vélo ou en voiture. Le cadre est paisible, verdoyant et typiquement landais, idéal pour une résidence principale comme pour une maison de vacances.
Si vous recherchez une habitation confortable, bien située et prête à vivre au coeur de Messanges, cette maison saura vous séduire par son charme et son potentiel.
Pour plus d'informations contactez M Sagette Franck au (Numéro supprimé).
Logement susceptibles de vous intéresser
Nous vous proposons de découvrir aussi cette sélection de logements situés à moins de 10km de Messanges et qui seraient susceptibles de vous intéresser.
Soustons
TERRAIN ET MAISONProjet de construction de maison neuve à Soustons.Terrain viabilisé de 1237 m² hors lotissement. Magnifique maison de 140 m² avec 4 chambres dont 1 suite parentale avec sa salle d’eau et son dressing, 3 salles d’eau supplémentaires, 2 WC, 1 cellier et un séjour – salon cuisine de plus de 50 m².Ce projet est proposé par IGC construction Angresse, il pourra être modifié et finalisé selon vos souhaits et votre budget.681 150 euros HFN, contrat de maison prête à décorer ( reste à votre charge les peintures intérieurs, l’aménagement de la cuisine et des placards ).Les informations sur les risques auxquels ce bien est exposé sont disponibles sur le site Géorisques : (Lien supprimé)
Messanges
TERRAINVenez découvrir ce très beau terrain de 670 m² situé dans un lotissement paisible sur la commune de Messanges, au coeur des Landes. Idéalement placé, ce terrain offre un cadre de vie agréable, entre océan, forêt et village, à seulement quelques minutes des plages et des pistes cyclables.Le terrain est entièrement viabilisé (eau, électricité, tout-à-l’égout). Réalisons ensemble le projet de maison qui vous ressemble. Sa superficie de 670 m² permet d’envisager une belle construction tout en conservant un agréable espace extérieur. L’environnement est calme, verdoyant et typique du littoral landais, parfait pour une résidence principale, secondaire ou un investissement locatif.Messanges est une charmante commune du Sud des Landes, très appréciée pour sa qualité de vie, son atmosphère conviviale et sa proximité avec Vieux-Boucau, Moliets et Soustons.N’hésitez pas à me contacter pour plus d’informations, Franck Sagette au (Numéro supprimé).
Messanges
TERRAIN ET MAISONSur la commune de Messanges, dans les Landes, charmante maison de plain-pied d’environ 90 m² habitables, implantée sur un beau terrain de 670 m².Cette maison, lumineuse et fonctionnelle, se compose d’une pièce de vie spacieuse avec cuisine ouverte, offrant un agréable espace de convivialité donnant sur la terrasse et le jardin. Elle dispose de trois chambres confortables, idéales pour accueillir famille et amis, ainsi qu’une salle de bains et des toilettes séparées.Un garage attenant vient compléter l’ensemble, offrant un espace pratique pour stationner ou stocker du matériel. Le jardin, plat et bien entretenu, laisse de nombreuses possibilités d’aménagement, que ce soit pour installer une piscine, créer un potager ou simplement profiter du calme des lieux.La maison bénéficie d’un emplacement privilégié, à proximité du centre du village, des commerces, des écoles et des superbes plages landaises, accessibles en quelques minutes à vélo ou en voiture. Le cadre est paisible, verdoyant et typiquement landais, idéal pour une résidence principale comme pour une maison de vacances.Si vous recherchez une habitation confortable, bien située et prête à vivre au coeur de Messanges, cette maison saura vous séduire par son charme et son potentiel.Pour plus d’informations contactez M Sagette Franck au (Numéro supprimé).
Moliets-et-Maa
TERRAIN ET MAISONÀ vendre – Belle maison contemporaine à étage à Moliets (Landes)Venez découvrir cette superbe maison familiale de 130 m² habitables, idéalement située sur un terrain de 611 m², dans un environnement.Description du bien :Rez-de-chaussée :Une suite parentale lumineuse avec grande baie vitrée, salle d’eau et dressingUn séjour spacieux et lumineux, ouvert sur l’extérieur grâce à deux grandes baies vitréesUne cuisine moderne (à équiper selon vos goûts)Garage attenant et accès direct à la terrasseÉtage :3 chambres confortablesSalle de bains familialeWC indépendantExtérieurs :Terrasse agréable pour vos repas d’étéTerrain idéal pour accueillir piscine ou jardin paysagerCette maison allie espace, luminosité et modernité, parfaite pour une famille ou une résidence secondaire proche de l’océan et du golf de Moliets.Localisation : à quelques minutes des plages, du golf et des commodités.Pour plus d’informations contactez M Sagette Franck au (Numéro supprimé)
Moliets-et-Maa
TERRAIN ET MAISONÀ vendre : charmante maison familiale, proche plages et golf Moliets-et-MaaSituée dans la belle commune côtière de Moliets-et-Maa, cette maison lumineuse de 3 chambres avec garage est implantée sur un terrain de 612 m² joliment exposé.La maison offre un espace de vie convivial et fonctionnel :Grand séjour, éclairé par deux grandes baies vitrées ouvrant sur le jardin,Cuisine indépendante (ou ouverte, selon votre configuration),3 chambres confortables,Salle de bain, WC séparés,Garage attenant + stationnement extérieur.Un cadre de vie privilégiéMoliets-et-Maâ séduit par son équilibre entre nature préservée et vie de village. Vous profiterez :Des plages immenses de sable fin et des spots de surf réputés,Du Golf de Moliets, reconnu internationalement,De la réserve naturelle du Courant d’Huchet, un lieu unique entre océan et forêt,D’une ambiance conviviale, avec commerces, restaurants et marché local en saison.Que vous recherchiez une résidence principale, une maison de vacances ou un investissement locatif, cette propriété est une opportunité rare sur un secteur très recherché de la côte landaise.Moliets-et-Maâ (40660) à 10 min de Léon, 25 min d’Hossegor et 45 min de Dax.Pour plus de renseignements contactez M Sagette Franck au (Numéro supprimé)
Soustons
TERRAINTrès belle parcelle de terrain à Soustons issue d’un partage, hors lotissement, d’une surface de 1202m² proche de l’étang.Plat et viabilisé, prêt à recevoir votre projet de construction.325000 euros HFNN’hésitez pas à nous contacter et à prendre rdv afin d’étudier ensemble votre future habitation.Les informations sur les risques auxquels ce bien est exposé sont disponibles sur le site Géorisques (Lien supprimé)
Messanges
TERRAINNathalie PENICAUT des maisons MCA Soustons, vous propose de découvrir ce beau terrain d’environ 703m², situé hors lotissement, sur la commune très prisée de Messanges.Le terrain est situé au calme, à l’orée d’une forêt Landaise, à proximité du centre, de l’école et de ses commodités, mais également à 8 minutes de la plage en vélo !A saisir rapidement, rare sur le secteur !Ne tardez pas, contactez Nathalie PENICAUT au (Numéro supprimé) à l’agence MCA de Soustons, afin qu’elle vous guide dans les démarches et vous accompagne dans ce projet de construction personnalisé, aux normes RE2020.
Messanges
TERRAIN ET MAISONNathalie PENICAUT des maisons MCA Soustons, vous propose d’adapter le modèle Aurore, sur ce beau terrain d’environ 703m2, idéalement situé hors lotissement, sur la commune de Messanges, à 8 minutes en vélo de la plage.Une maison aux lignes sobres dont l’entrée est marquée par un agréable porche. D’une superficie de 128m2, ce modèle offre un hall d’entrée avec cellier et WC séparés, un espace jour fonctionnel avec une cuisine semi ouverte, un cellier attenant et un séjour de 41m2 tourné vers le jardin. L’espace nuit est quant à lui composé de 3 chambres avec placards, un bureau, et une salle de bains. Elle dispose également d’une suite parentale à l’écart, avec sa propre salle d’eau. Vous serez séduits par ses volumes optimisés, son garage attenant et communiquant avec le cellier et l’emplacement placards prévu dans chaque chambre.Le prix affiché comprend le terrain, les frais de notaire, les frais annexes (raccordements, bornage), et cette maison livrée prête à décorer.Ne tardez pas, rare opportunité sur le secteur, contactez Nathalie PENICAUT au (Numéro supprimé) à l’agence MCA de Soustons, afin qu’elle vous guide dans les démarches et vous accompagne dans ce projet de construction personnalisé, aux normes RE2020.
Messanges
TERRAIN ET MAISONNathalie PENICAUT des maisons MCA Soustons, vous propose d’adapter le modèle Birdie, sur ce beau terrain d’environ 703m2, idéalement situé hors lotissement, sur la commune de Messanges, à 8 minutes en vélo de la plage.Cette grande maison de plus de 130 m² est idéale pour accueillir votre famille. Elle est composée de 4 chambres (3 à l’étage avec une salle de bains et Wc séparés, ainsi qu’une suite parentale au rez-de-chaussée), d’un beau séjour lumineux de près de 40m2, d’une cuisine séparée, d’un cellier/buanderie et d’un double garage attenant. Cette maison possède plus d’un atout pour vous séduire, et reste entièrement personnalisable pour s’adapter à vos besoins.Le prix affiché comprend le terrain, les frais de notaire, les frais annexes (raccordements, bornage), et cette maison livrée prête à décorer.Ne tardez pas, rare opportunité sur le secteur, contactez Nathalie PENICAUT au (Numéro supprimé) à l’agence MCA de Soustons, afin qu’elle vous guide dans les démarches et vous accompagne dans ce projet de construction personnalisé, aux normes RE2020.
L’actualité immobilière à Messanges
27/11/2023
02/11/2023
30/10/2023
20/10/2023
16/10/2023
16/10/2023