Maison à construire à Mimizan (40200)
Images
Description
VENTE d'une maison T4 (112 m²) à Pontenx-les-Forges
IDÉALEMENT SITUÉE - MAISON 4 PIÈCES NEUVE
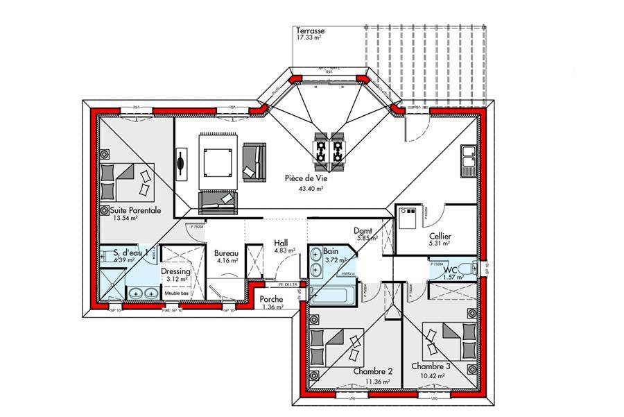
À 21 km de l'océan Atlantique, notre agence Batisoft Bordeaux est heureuse de vous proposer cette maison de 4 pièces de plain-pied de 112 m² et de 655 m² de terrain idéalement située dans Pontenx-les-Forges (40200).
Conçue de plain-pied, elle inclut trois chambres, une cuisine et une salle de bains. Cette maison est neuve.
La maison se trouve dans un quartier recherché. On y trouve une école primaire. Il y a un accès à l'autoroute A63 à 16 km. Il y a deux tennis, un commerce, une boulangerie et une épicerie à proximité de la maison.
Elle est à vendre pour la somme de 298 000 €.
Prenez contact avec Franck DELAGE (tél : (Numéro supprimé)) pour tout renseignement sur la maison, sur les modalités de vente ou sur les démarches à suivre.
Logement susceptibles de vous intéresser
Nous vous proposons de découvrir aussi cette sélection de logements situés à moins de 10km de Mimizan et qui seraient susceptibles de vous intéresser.
Mimizan
TERRAIN ET MAISONMaison à étage 110 m² + garage – 3 chambres + bureau – Mimizan Plage Situation exceptionnelle à 100 mètres du courant !Découvrez cette belle maison contemporaine de 110 m² habitables (plus garage), idéalement située à Mimizan Plage, dans un environnement calme et unique à deux pas de l’eau.Composition :3 chambres spacieuses, dont une suite parentale avec salle d’eau privative et dressing1 bureau de 9,62 m² (idéal télétravail ou chambre d’appoint)Séjour lumineux avec une belle exposition, baigné de lumière grâce à de larges baies vitréesCuisine ouverte sur la pièce de vieGarage attenantExtérieur :Terrain de 393 m², bien orienté et facile d’entretienEnvironnement paisible, à seulement 100 m du courant et à quelques minutes de l’océanLes plus :Maison récente et fonctionnelleTrès belle luminositéEmplacement rare à Mimizan PlagePour plus d’informations contactez M Sagette Franck au (Numéro supprimé)
Saint-Paul-en-Born
TERRAINA SAINT PAUL EN BORN, terrain 762 m² viabilisé avec TAE, situé dans un environnement au calme. A 10 min du Lac d'Aureilhan. // Réf. : T210502. Prix terrain : 128 400 €, hors frais d'agence et de notaire à la charge de l'acquéreur. Ce terrain vous est proposé, par nos partenaires fonciers, dans le cadre d'un projet de construction avec nous. Les informations sur les risques auxquels ce bien est exposé sont disponibles sur le site Géorisques (www.georisques.gouv.fr).
Saint-Paul-en-Born
TERRAIN ET MAISONA SAINT PAUL EN BORN, terrain 762 m² viabilisé avec TAE, situé dans un environnement au calme. A 10 min du Lac d'Aureilhan. Fonctionnelle et spacieuse, cette maison de plain-pied vous propose un bel espace de vie de 41 m² environ lumineux et traversant. Sa cuisine est ouverte sur le séjour et a un accès direct au cellier. Son espace nuit est composé de trois belles chambres avec rangements, d'une salle de bains et de wc séparésPour vous assurer un confort de vie et conformèment à la RE2025, nous avons chosi un mode de chauffage par PAC + plancher chauffant, volets roulants électriques, Prix hors fourniture et pose : des appareils sanitaires (sauf système de chauffage et d'eau chaude sanitaire), du carrelage et de la faïence, des revêtements de sol dans les chambres. Hors décoration et aménagement intérieur et peinture. Hors raccordements, frais de notaire et dommage ouvrage. // Réf. : 2167-210502-CED. Prix terrain : 128 400 €, hors frais d'agence à la charge de l'acquéreur. Ce terrain vous est proposé, par nos partenaires fonciers, dans le cadre d'un projet de construction avec nous. Les informations sur les risques auxquels ce bien est exposé sont disponibles sur le site Géorisques (www.georisques.gouv.fr). Prix maison : 119 957 €.
Saint-Paul-en-Born
TERRAIN ET MAISONA SAINT PAUL EN BORN, terrain 762 m² viabilisé avec TAE, situé dans un environnement au calme. A 10 min du Lac d'Aureilhan. Bien pensée et fonctionnelle. Avec son architecture en L et de plain-pied, la maison CARNEY vous séduira par sa cuisine ouverte sur un bel espace de vie lumineux et ses trois chambresPour vous assurer un confort de vie et conformèment à la RE2025, nous avons chosi un mode de chauffage par PAC + plancher chauffant, volets roulants électriques, Prix hors fourniture et pose : des appareils sanitaires (sauf système de chauffage et d'eau chaude sanitaire), du carrelage et de la faïence, des revêtements de sol dans les chambres. Hors décoration et aménagement intérieur et peinture. Hors raccordements, frais de notaire et dommage ouvrage. // Réf. : 2165-210502-CED. Prix terrain : 128 400 €, hors frais d'agence à la charge de l'acquéreur. Ce terrain vous est proposé, par nos partenaires fonciers, dans le cadre d'un projet de construction avec nous. Les informations sur les risques auxquels ce bien est exposé sont disponibles sur le site Géorisques (www.georisques.gouv.fr). Prix maison : 115 715 €.
Saint-Paul-en-Born
TERRAIN ET MAISONA SAINT PAUL EN BORN, terrain 762 m² viabilisé avec TAE, situé dans un environnement au calme. A 10 min du Lac d'Aureilhan. Découvrez EVOLIA, votre future maison évolutive ! Bienvenue dans l'avenir de l'habitat avec EVOLIA, une maison évolutive, modulable et transformable. Grâce à ses configurations flexibles et ses nombreuses options de personnalisation, EVOLIA vous offre un confort inégalé et une modernité à un prix abordable. Faites de vos rêves de propriété une réalité et commencez à bâtir votre futur dès aujourd'hui ! Votre avenir commence ici ! Contactez-nous dès maintenant pour plus d'informations. Prix hors fourniture et pose : des appareils sanitaires (sauf système de chauffage et d'eau chaude sanitaire), du carrelage, de la faïence, de la cuisine aménagée, des revêtements de sol dans les chambres. Hors décoration et aménagement intérieur et peinture. Hors raccordements, frais de notaire et dommage ouvrage. // Réf. : 2456-210502-CED. Prix terrain : 128 400 €, hors frais d'agence à la charge de l'acquéreur. Ce terrain vous est proposé, par nos partenaires fonciers, dans le cadre d'un projet de construction avec nous. Les informations sur les risques auxquels ce bien est exposé sont disponibles sur le site Géorisques (www.georisques.gouv.fr). Prix maison : 69 442 €.
Saint-Paul-en-Born
TERRAINA SAINT PAUL EN BORN, terrain 762 m² viabilisé avec TAE, situé dans un environnement au calme. A 10 min du Lac d'Aureilhan. // Réf. : T210502. Prix terrain : 128 400 €, hors frais d'agence et de notaire à la charge de l'acquéreur. Ce terrain vous est proposé, par nos partenaires fonciers, dans le cadre d'un projet de construction avec nous. Les informations sur les risques auxquels ce bien est exposé sont disponibles sur le site Géorisques (www.georisques.gouv.fr).
Aureilhan
TERRAINCarine VIENAT des Maisons MCA à Biscarrosse, vous propose de découvrir ce terrain de 498m2 situé sur la commune d’Aureilhan.Idéalement situé, à 5 minutes de Mimizan, dans un environnement calme. Le terrain sera vendu viabilisé.Idéal pour votre résidence principale ou de vacances !A saisir rapidement !N’hésitez pas à contacter Carine VIENAT au (Numéro supprimé) à l’agence MCA de Biscarrosse, afin qu’elle vous guide dans les démarches, et vous accompagne dans ce projet de construction personnalisé.
Aureilhan
TERRAIN ET MAISONCarine VIENAT des Maisons MCA à Biscarrosse, vous propose d’adapter le modèle Lys, sur un terrain de 498m2, idéalement situé sur la commune d’Aureilhan.Cette maison de 49m2 a tout d’une grande ! Elle est composée d’un espace à vivre traversant, avec cuisine ouverte. Et un espace nuit composé de 2 belles chambres avec placards et une salle d’eau avec WC. Son plus : un garage vient compléter ce bel ensemble, et pourra à terme devenir une suite parentale !Ce modèle saura vous plaira grâce à son agencement optimisé au maximum, et la possibilité de la faire évoluer facilement. Elle est idéale pour un premier achat, un investissement locatif ou saisonnier, mais aussi pour loger un proche en complément de votre résidence principale, car elle est également conçue pour être adaptée aux normes PMR.Le prix affiché comprend le terrain, les frais de notaire, les frais annexes (raccordements, bornage), et cette maison livrée prête à décorer (prévoir carrelage et cuisine).N’hésitez pas à contacter Carine VIENAT au (Numéro supprimé) à l’agence MCA de Biscarrosse, afin qu’elle vous guide dans les démarches, et vous accompagne dans ce projet de construction personnalisé.
Aureilhan
TERRAIN ET MAISONCarine VIENAT des Maisons MCA à Biscarrosse, vous propose d’adapter le modèle Paradis, sur un terrain de 498m2, idéalement situé sur la commune d’Aureilhan.Cette maison dispose d’un hall d’entrée avec placard, un beau salon / séjour tourné vers le jardin, une cuisine ouverte et un cellier attenant, soit un espace de vie de plus de 40m2. Le coin nuit est composé de 3 chambres avec placards, une salle de bains et un WC séparé.Cette maison coquette vous plaira grâce à sa simplicité et son agencement bien pensé pour votre confort de vie. Ce projet peut-être modifié sur mesure, et il existe en différentes superficies, allant de 64m2 à 110m2, afin de s’adapter au mieux à votre mode de vieLe prix affiché comprend le terrain, les frais de notaire, les frais annexes (raccordements, bornage), et cette maison livrée prête à décorer (prévoir carrelage et cuisine).N’hésitez pas à contacter Carine VIENAT au (Numéro supprimé) à l’agence MCA de Biscarrosse, afin qu’elle vous guide dans les démarches, et vous accompagne dans ce projet de construction personnalisé.
L’actualité immobilière à Mimizan
27/11/2023
02/11/2023
30/10/2023
20/10/2023
16/10/2023
16/10/2023