Maison à construire à Sanguinet (40460)
Images
Description
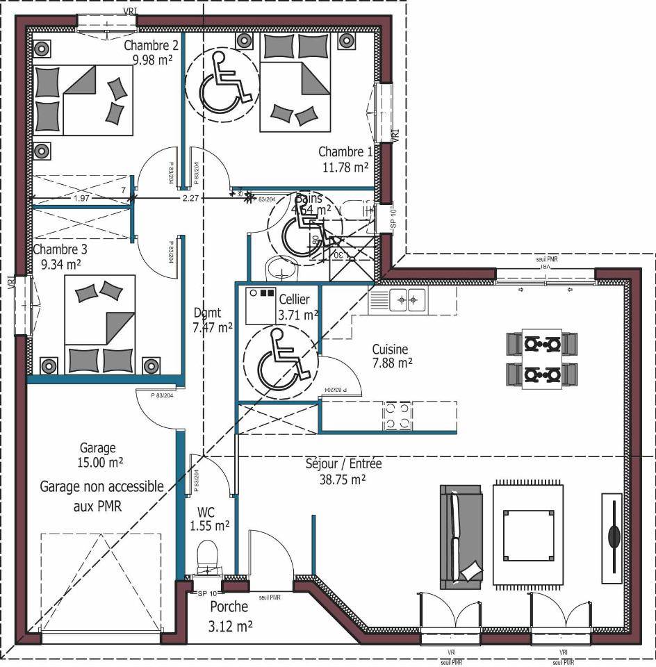
Thierry MANO des maisons MCA à Biscarrosse, vous propose d'implanter le modèle Atlanta, sur ce terrain de 627m2, situé la commune de Sanguinet, aux portes du Bassin d'Arcachon.
Dédié aux investisseurs, laissez-vous séduire par ce modèle de maison en L, entièrement adapté aux normes PMR. Avec son garage intégré et ses 3 chambres, chacune disposant d'un emplacement placard, cette villa lumineuse et généreuse facilitera le quotidien des familles. La cuisine est en partie ouverte sur le vaste salon-séjour tourné vers le jardin. Les lignes définies par le porche apportent une touche d'originalité à cette maison.
Vous serez séduits par le beau volume de ses chambres, et la grande luminosité de son espace de vie.
Rare opportunité sur le secteur !
Le prix affiché comprend le terrain, les frais de notaire, les frais annexes (raccordements, asl, bornage), et cette maison livrée prête à décorer.
Pour vous accompagner dans votre projet de construction personnalisé, contactez vite Thierry MANO (Numéro supprimé) à l'agence MCA de Biscarrosse, il vous accompagnera dans les démarches et la conception de votre maison.
Logement susceptibles de vous intéresser
Nous vous proposons de découvrir aussi cette sélection de logements situés à moins de 10km de Sanguinet et qui seraient susceptibles de vous intéresser.
Sanguinet
TERRAIN ET MAISONCarine VIENAT des Maisons MCA à Biscarrosse, vous propose d’adapter le modèle Lavande, sur un terrain de 650m2, idéalement situé sur la commune de Sanguinet, à proximité du lac, mais aussi à 10 minutes du Bassin d’Arcachon ! Idéalement optimisée, cette maison dispose d’un agréable hall d’entrée avec placard de rangement et WC séparés. L’espace jour est composé d’une belle pièce de vie avec cuisine ouverte, et cellier attenant, pour un espace à vivre de plus de 30m2 baigné de lumière. L’espace nuit est quant à lui composé de deux chambres avec placard, une salle de bains, et une suite parentale avec dressing et salle d’eau privative. Un garage attenant et communiquant par le hall vient compléter cette maison.Vous apprécierez ses volumes optimisés et sa suite parentale.Le prix affiché comprend le terrain, les frais de notaire, les frais annexes (raccordements, bornage), et cette maison livrée prête à décorer.N’hésitez pas à contacter Carine VIENAT au (Numéro supprimé) à l’agence MCA de Biscarrosse, afin qu’elle vous guide dans les démarches, et vous accompagne dans ce projet de construction personnalisé.
Sanguinet
TERRAIN ET MAISONCarine VIENAT des Maisons MCA à Biscarrosse, vous propose d’adapter le modèle Atlanta, sur un terrain de 650m2, idéalement situé sur la commune de Sanguinet, à proximité du lac, mais aussi à 10 minutes du Bassin d’Arcachon ! Cette maison familiale en L avec garage, dispose d’un hall d’entrée avec placard, un magnifique séjour lumineux donnant sur le jardin, et une cuisine ouverte avec cellier attenant pour un espace de vie de plus de 51m2. L’espace nuit est composé de 3 chambres avec placards, une salle de bains et WC séparés. Un garage de 15m2 vient compléter ce bel ensemble.Vous serez séduits par le beau volume de ses chambres, et la grande luminosité de son espace de vie.Le prix affiché comprend le terrain, les frais de notaire, les frais annexes (raccordements, bornage), et cette maison livrée prête à décorer.N’hésitez pas à contacter Carine VIENAT au (Numéro supprimé) à l’agence MCA de Biscarrosse, afin qu’elle vous guide dans les démarches, et vous accompagne dans ce projet de construction personnalisé.
Sanguinet
TERRAINCarine VIENAT des Maisons MCA à Biscarrosse, vous propose de découvrir ce terrain d’environ 650m2.Idéalement situé dans sur la commune de Sanguinet, à proximité du lac, mais aussi à 10 minutes du Bassin d’Arcachon ! Le terrain sera vendu viabilisé.Rare sur le secteur !Idéal pour y faire construire votre résidence principale ou de vacances.N’hésitez pas à contacter Carine VIENAT au (Numéro supprimé) à l’agence MCA de Biscarrosse, afin qu’elle vous guide dans les démarches, et vous accompagne dans ce projet de construction personnalisé.
Sanguinet
TERRAIN ET MAISONCarine VIENAT des Maisons MCA à Biscarrosse, vous propose d’adapter le modèle Lumière, sur un terrain de 650m2, idéalement situé sur la commune de Sanguinet, à proximité du lac, mais aussi à 10 minutes du Bassin d’Arcachon ! Cette maison contemporaine est composée d’un vaste salon prolongé par une cuisine ouverte, vous profiterez donc d’un espace de vie de plus de 45m². Grâce aux nombreuses baies vitrées, le séjour est très lumineux et donne directement sur le jardin et la terrasse couverte. Elle dispose également d’un espace nuit composé de deux chambres et une salle de bains, et à l’écart, une grande suite parentale de plus de 25 m², composée d’un dressing et d’une salle d’eau indépendante. Vous serez séduits par le grand et lumineux espace de vie, et la suite parentale indépendante.Le prix affiché comprend le terrain, les frais de notaire, les frais annexes (raccordements, bornage), et cette maison livrée prête à décorer.N’hésitez pas à contacter Carine VIENAT au (Numéro supprimé) à l’agence MCA de Biscarrosse, afin qu’elle vous guide dans les démarches, et vous accompagne dans ce projet de construction personnalisé.
Sanguinet
TERRAIN ET MAISONThierry MANO des maisons MCA à Biscarrosse, vous propose d’implanter le modèle Jasmin, sur ce terrain de 627m2, situé la commune de Sanguinet, aux portes du Bassin d’Arcachon.Cette maison familiale de plain pied, dispose d’une belle pièce de vie avec cuisine ouverte, pour un espace à vivre de plus de 30m2 baigné de lumière. L’espace nuit est quant à lui composé de quatre chambres, une salle de bains, et un wc séparé. Un garage attenant vient compléter cette maison.Vous apprécierez ses volumes optimisés et ses 4 chambres.Rare opportunité sur le secteur !Le prix affiché comprend le terrain, les frais de notaire, les frais annexes (raccordements, asl, bornage), et cette maison livrée prête à décorer.Pour vous accompagner dans votre projet de construction personnalisé, contactez vite Thierry MANO (Numéro supprimé) à l’agence MCA de Biscarrosse, il vous accompagnera dans les démarches et la conception de votre maison.
Sanguinet
TERRAINThierry MANO des maisons MCA à Biscarrosse, vous propose de découvrir ce terrain de 627m². Idéalement situé sur l’agréable commune de Sanguinet, ce terrain est prêt à accueillir votre résidence principale ou secondaire pour toute la famille.Proche du centre ville et de ses commodités, à quelques minutes du lac, et aux portes du Bassin d’Arcachon !Rare opportunité sur le secteur !Pour vous accompagner dans votre projet de construction personnalisé, contactez vite Thierry MANO (Numéro supprimé) à l’agence MCA de Biscarrosse, il vous accompagnera dans les démarches et la conception de votre maison.
Sanguinet
TERRAIN ET MAISONThierry MANO des maisons MCA à Biscarrosse, vous propose d’implanter le modèle Evolution, sur ce terrain de 627m2, situé la commune de Sanguinet, aux portes du Bassin d’Arcachon.Cette maison résolument contemporaine à toit plat où il fait bon vivre, sera un havre de paix pour votre famille. Vous entrerez dans un petit vestibule, puis arriverez dans le magnifique séjour en L de plus de 47m2, baigné de lumière grâce à ses 4 grandes baies vitrées. La cuisine est semi-ouverte à l’écart, avec un cellier attenant et communiquant avec le garage. La partie nuit est composée de 3 chambres, une salle de bains et un WC séparé. Une belle terrasse couverte vient parfaire cette très belle maison.Vous serez séduits par son coté moderne, sa magnifique pièce de vie et sa terrasse couverte.Rare opportunité sur le secteur !Le prix affiché comprend le terrain, les frais de notaire, les frais annexes (raccordements, asl, bornage), et cette maison livrée prête à décorer.Pour vous accompagner dans votre projet de construction personnalisé, contactez vite Thierry MANO (Numéro supprimé) à l’agence MCA de Biscarrosse, il vous accompagnera dans les démarches et la conception de votre maison.
Sanguinet
TERRAIN ET MAISONThierry MANO des maisons MCA à Biscarrosse, vous propose d’implanter le modèle Atlanta, sur ce terrain de 627m2, situé la commune de Sanguinet, aux portes du Bassin d’Arcachon.Dédié aux investisseurs, laissez-vous séduire par ce modèle de maison en L, entièrement adapté aux normes PMR. Avec son garage intégré et ses 3 chambres, chacune disposant d’un emplacement placard, cette villa lumineuse et généreuse facilitera le quotidien des familles. La cuisine est en partie ouverte sur le vaste salon-séjour tourné vers le jardin. Les lignes définies par le porche apportent une touche d’originalité à cette maison.Vous serez séduits par le beau volume de ses chambres, et la grande luminosité de son espace de vie.Rare opportunité sur le secteur !Le prix affiché comprend le terrain, les frais de notaire, les frais annexes (raccordements, asl, bornage), et cette maison livrée prête à décorer.Pour vous accompagner dans votre projet de construction personnalisé, contactez vite Thierry MANO (Numéro supprimé) à l’agence MCA de Biscarrosse, il vous accompagnera dans les démarches et la conception de votre maison.
Sanguinet
TERRAIN ET MAISONCarine VIENAT des Maisons MCA à Biscarrosse, vous propose d’adapter le modèle Paradis, sur un terrain de 508m2, idéalement situé sur la commune de Sanguinet, à proximité du lac, mais aussi à 10 minutes du Bassin d’Arcachon ! Cette maison dispose d’un hall d’entrée, un beau salon / séjour tourné vers le jardin, une cuisine ouverte avec son cellier attenant, soit un espace de vie de plus de 50m2. Le coin nuit est composé de 4 chambres, une salle de bains avec douche et baignoire et un WC séparé.Cette maison coquette vous plaira grâce à sa simplicité et son agencement bien pensé pour votre confort de vie. Ce projet peut-être modifié sur mesure, et il existe en différentes superficies, allant de 64m2 à 110m2, afin de s’adapter au mieux à votre mode de vieLe prix affiché comprend le terrain, les frais de notaire, les frais annexes (raccordements, bornage), et cette maison livrée prête à décorer.N’hésitez pas à contacter Carine VIENAT au (Numéro supprimé) à l’agence MCA de Biscarrosse, afin qu’elle vous guide dans les démarches, et vous accompagne dans ce projet de construction personnalisé.
L’actualité immobilière à Sanguinet
27/11/2023
02/11/2023
30/10/2023
20/10/2023
16/10/2023
16/10/2023