Maison à construire à Saint-Yaguen (40400)
Images
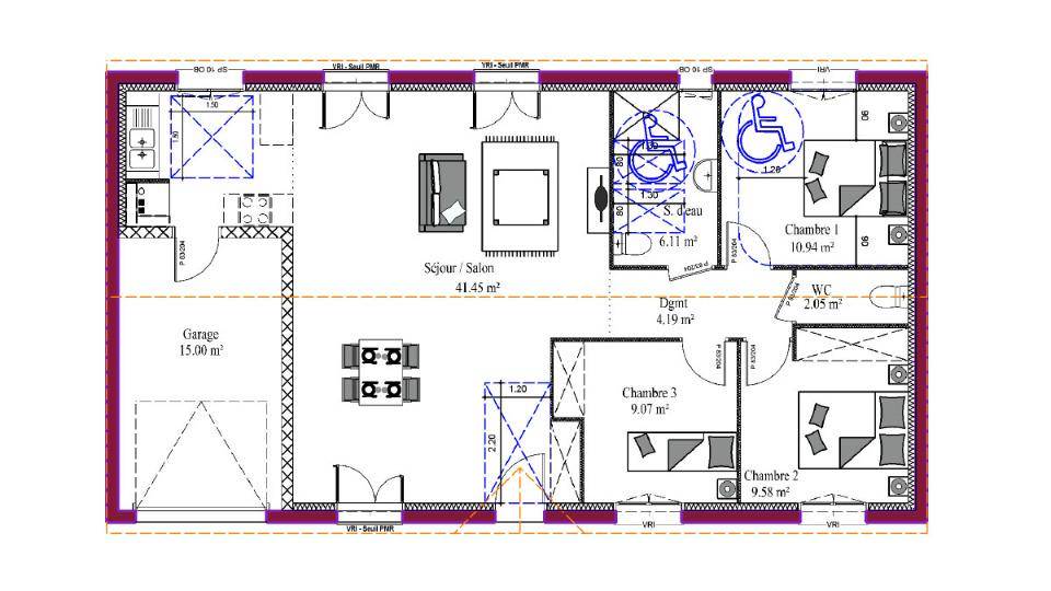
Description
Frédéric PINTO des maisons MCA de Mont de Marsan, vous propose d'adapter le modèle Arpège, sur ce beau terrain plat de 675m2 situé sur la commune de Saint Yaguen, à proximité de Mont de Marsan.
Spécialement conçu pour les investisseurs, adaptée aux normes PMR pour le locatif, cette maison dispose d'un hall d'entrée avec placard, un beau salon / séjour tourné vers le jardin, et une cuisine ouverte, soit un espace de vie de plus de 40m2. Le coin nuit est composé de 3 chambres avec placards, une salle d'eau et un WC séparé.
Cette maison coquette vous plaira grâce à sa simplicité et son agencement bien pensé.
N'attendez plus, contactez vite Frédéric PINTO au (Numéro supprimé) à l'agence commerciale MCA de Mont de Marsan, afin qu'il vous guide dans les démarches et vous accompagne dans votre projet de construction personnalisé.
*Terrain et frais de notaire inclus
Logement susceptibles de vous intéresser
Nous vous proposons de découvrir aussi cette sélection de logements situés à moins de 10km de Saint-Yaguen et qui seraient susceptibles de vous intéresser.
Saint-Martin-d'Oney
TERRAINFrédéric PINTO des maisons MCA, vous propose ce beau terrain d’une surface de 706m2 situé sur la commune de Saint Martin d’Oney, à moins de 20 minutes de Mont de Marsan.Vous serez donc à proximité de toutes les commodités, commerces, écoles (crèche, primaire, collège, lycée), gare, infrastructures sportives et services médicaux.Ce terrain entièrement viabilisé, vous est proposé dans le cadre d’une construction MCA, en collaboration avec notre partenaire foncier.Pour plus d’informations contactez notre conseiller Frédéric PINTO au (Numéro supprimé) à l’agence commerciale MCA de Mont de Marsan, afin d’établir avec lui votre projet de construction personnalisé.
Saint-Martin-d'Oney
TERRAIN ET MAISONFrédéric PINTO des Maisons MCA, vous propose le modèle Optima, implanté sur ce beau terrain d’environ 935m², sur la commune de Saint Martin d’Oney, à moins de 20 minutes de Mont de Marsan.Cette maison possède un grand salon-séjour tourné vers le jardin, une cuisine ouverte avec son cellier attenant, ce qui offre un espace jour de près de 38m2, le coté nuit est composé de 3 chambres avec placards, une salle de bains et wc séparés. Un garage communiquant de 15 m2 vient compléter ce bel ensemble. Ce modèle saura vous plaire grâce à son agencement idéalement pensé pour votre confort de vie, et l’optimisation des espaces.Contactez vite Frédéric PINTO au (Numéro supprimé) à l’agence commerciale MCA de Mont-de-Marsan, afin d’établir avec lui votre projet de construction personnalisé.*prix frais de notaire inclus, maison prête à décorer, hors frais de raccordements.
Saint-Yaguen
TERRAIN ET MAISONFrédéric PINTO des maisons MCA de Mont de Marsan, vous propose d’adapter le modèle Arpège, sur ce beau terrain plat de 675m2 situé sur la commune de Saint Yaguen, à proximité de Mont de Marsan.Spécialement conçu pour les investisseurs, adaptée aux normes PMR pour le locatif, cette maison dispose d’un hall d’entrée avec placard, un beau salon / séjour tourné vers le jardin, et une cuisine ouverte, soit un espace de vie de plus de 40m2. Le coin nuit est composé de 3 chambres avec placards, une salle d’eau et un WC séparé.Cette maison coquette vous plaira grâce à sa simplicité et son agencement bien pensé.N’attendez plus, contactez vite Frédéric PINTO au (Numéro supprimé) à l’agence commerciale MCA de Mont de Marsan, afin qu’il vous guide dans les démarches et vous accompagne dans votre projet de construction personnalisé.*Terrain et frais de notaire inclus
Saint-Yaguen
TERRAIN ET MAISONFrédéric PINTO des maisons MCA de Mont de Marsan, vous propose d’adapter le modèle Lavande, sur ce beau terrain plat de 675m2 situé sur la commune de Saint Yaguen, à proximité de Mont de Marsan.Idéalement optimisée, cette maison dispose d’un agréable hall d’entrée avec placard de rangement et WC séparés. L’espace jour est composé d’une belle pièce de vie avec cuisine ouverte, et cellier attenant, pour un espace à vivre de plus de 30m2 baigné de lumière. L’espace nuit est quant à lui composé de deux chambres avec placard, une salle de bains, et une suite parentale avec dressing et salle d’eau privative. Un garage attenant et communiquant par le hall vient compléter cette maison.Vous apprécierez ses volumes optimisés et sa suite parentale.N’attendez plus, contactez vite Frédéric PINTO au (Numéro supprimé) à l’agence commerciale MCA de Mont de Marsan, afin qu’il vous guide dans les démarches et vous accompagne dans votre projet de construction personnalisé.*Terrain et frais de notaire inclus
Saint-Martin-d'Oney
TERRAIN ET MAISONFrédéric PINTO des Maisons MCA, vous propose le modèle Paradis, implanté sur ce beau terrain d’environ 935m², sur la commune de Saint Martin d’Oney, à moins de 20 minutes de Mont de Marsan.Cette maison dispose d’un hall d’entrée avec placard, un beau salon / séjour tourné vers le jardin, une cuisine ouverte avec son cellier attenant, soit un espace de vie de près de 33m2. Le coin nuit est composé de 3 chambres, une salle de bains et un WC séparé.Cette maison coquette vous plaira grâce à sa simplicité et son agencement bien pensé pour votre confort de vie. Contactez vite Frédéric PINTO au (Numéro supprimé) à l’agence commerciale MCA de Mont-de-Marsan, afin d’établir avec lui votre projet de construction personnalisé.*prix frais de notaire inclus, maison prête à décorer, hors frais de raccordements.
Saint-Yaguen
TERRAINFrédéric PINTO des maisons MCA de Mont de Marsan, vous propose ce beau terrain d’une surface de 675m2, situé sur la commune de Saint Yaguen.Situé à proximité de Mont de Marsan, vous aurez accès à toutes les commodités.Idéal pour votre future construction MCA, ce terrain est vendu entièrement viabilisé.Pour plus d’informations contactez Frédéric PINTO au (Numéro supprimé) à l’agence commerciale MCA de Mont de Marsan, afin d’établir avec lui votre projet de construction personnalisé.
Saint-Yaguen
TERRAIN ET MAISONFrédéric PINTO des maisons MCA de Mont de Marsan, vous propose d’adapter le modèle Prisma, sur ce beau terrain plat de 675m2 situé sur la commune de Saint Yaguen, à proximité de Mont de Marsan.Cette maison contemporaine dispose d’un hall avec placard de rangement, un salon-séjour spacieux et lumineux, une cuisine ouverte sur la pièce de vie. Et un espace nuit composé de 3 chambres de plus de 10 m², une salle de bains avec douche et baignoire et un WC séparé. Quelque soit l’orientation de votre terrain, la Prisma vous permet de profiter d’une exposition Sud du salon/séjour. Vous serez également séduit par son porche couvert. N’attendez plus, contactez vite Frédéric PINTO au (Numéro supprimé) à l’agence commerciale MCA de Mont de Marsan, afin qu’il vous guide dans les démarches et vous accompagne dans votre projet de construction personnalisé.*Terrain et frais de notaire inclus
Carcarès-Sainte-Croix
TERRAIN🏡 Jessyca Théneau, des Maisons MCA, vous propose ce terrain de 800m2🌳 Lotissement sur la commune de Carcarès-Sainte-Croix – Idéal pour les Familles / Premier achat 🌳Venez construire votre future maison dans un charmant lotissement, situé au coeur de Carcarès-Saint-Croix, un village paisible et propice à la vie de famille.Ici, vous profiterez d’un cadre de vie calme, entouré par la nature des Landes, tout en étant à mi-chemin de Dax et Mont-de-Marsan et toutes les commodités à moins de 5km sur Tartas.Ce lotissement vous propose :12 terrains disponibles 🏞, de 800 à 1 000 m², au prix attractif de 68€/m², soit à partir de 54 400€ 💶Viabilisation complète ✅, desservis par le tout à l’égoutEnvironnement familial sécurisé 👨👩👧👦, idéal pour élever vos enfantsAtouts pour les familles :École primaire 🏫 sur place, à quelques minutes à piedCollège à Tartas, commune voisine, avec transports scolaires assurés 🚌Cadre de vie paisible et sécurisé avec de nombreuses activités en plein air pour toute la famille (randonnées, balades, nature) 🚶♀️🚴♂️🌟 Ne manquez pas cette opportunité de vous installer dans un village à taille humaine, où vos enfants pourront grandir en toute sérénité et profiter des avantages de la vie à la campagne, avec toutes les infrastructures nécessaires à proximité.📞 Contactez Jessyca Théneau au (Numéro supprimé) -Agence MCA de St Paul-lès-Dax pour plus d’informations et pour choisir votre futur terrain! Une occasion unique à ne pas manquer ! 🏡🌿
Saint-Martin-d'Oney
TERRAIN ET MAISONJean Philippe VILLENAVE (Numéro supprimé) des Maisons MCA, vous propose le modèle Aurore, implanté sur ce beau terrain d’environ 935m², sur la commune de Saint Martin d’Oney, à moins de 20 minutes de Mont de Marsan.Une maison aux lignes sobres dont l’entrée est marquée par un agréable porche. D’une superficie de 111m2, ce modèle offre un hall d’entrée avec cellier et WC séparés, un beau séjour de plus de 40m2 tourné vers le jardin, et une grande cuisine fermée. L’espace nuit est quant à lui composé de 3 chambres avec placards, regroupés autour de la salle de bains. Elle dispose également d’une suite parentale à l’écart, avec sa propre salle d’eau. Vous serez séduits par ses volumes optimisés, son garage attenant et communiquant avec la cuisine et l’emplacement placard prévu dans chaque chambre.Ce plan reste personnalisable afin de s’adapter à votre mode de vie.Ne laissez pas passer cette rare opportunité sur le secteur, contactez vite votre conseiller Jean Philippe VILLENAVE au (Numéro supprimé), afin qu’il vous guide dans les démarches et vous accompagne dans ce projet de construction personnalisé.*prix frais de notaire inclus, maison prête à décorer, hors frais de raccordements.
L’actualité immobilière à Saint-Yaguen
27/11/2023
02/11/2023
30/10/2023
20/10/2023
16/10/2023
16/10/2023