Images
Description
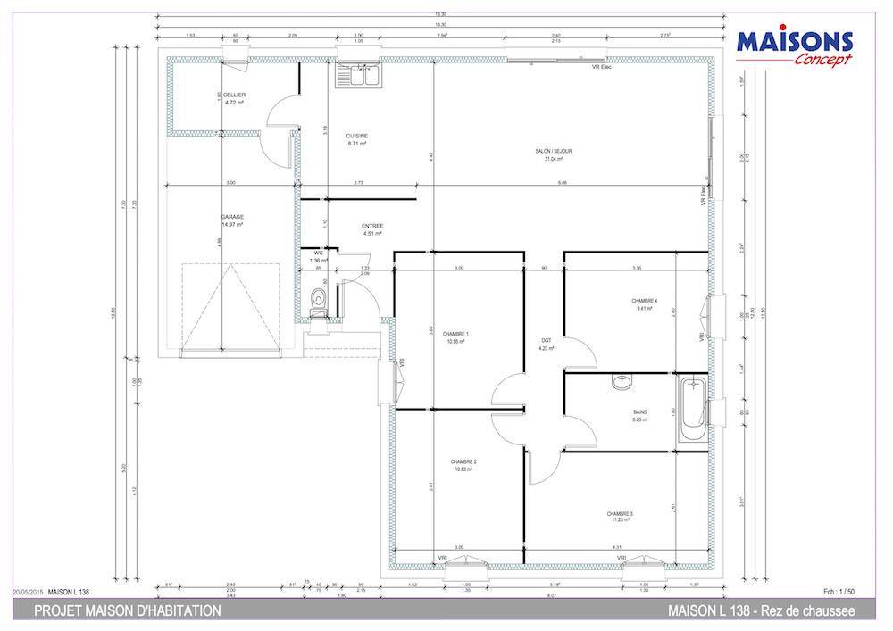
Nous vous proposons cette maison neuve, baptisée ""Élégance"", un modèle qui se distingue par sa forme en L, offrant à la fois style et fonctionnalité. Avec une surface habitable de 93 m², cette maison de plain-pied est conçue pour maximiser l'espace et le confort de ses résidents. Elle comprend un grand salon-séjour lumineux, ouvert sur une cuisine moderne, idéale pour partager des moments conviviaux en famille ou entre amis.
L'architecture en L permet une séparation naturelle entre l'espace de vie et l'espace nuit, ce dernier étant composé de 3 chambres spacieuses, garantissant intimité et tranquillité. La maison dispose également d'un garage intégré, pratique pour sécuriser votre véhicule ou pour du stockage supplémentaire, ainsi qu'un cellier adjacent à la cuisine, parfait pour organiser vos provisions et ustensiles de cuisine.
L'une des caractéristiques les plus appréciées de ce modèle est son enduit bi-ton, qui ajoute une touche d'élégance et de modernité à l'extérieur de la maison, la faisant ressortir dans n'importe quel environnement.
Construite dans le respect des normes de la RE2020, cette maison basse consommation est un choix judicieux pour ceux qui cherchent à réduire leur empreinte écologique tout en bénéficiant d'un confort optimal. Elle est personnalisable selon vos besoins et vos envies, vous permettant de créer un foyer qui vous ressemble, adapté à votre mode de vie.
""Élégance"" est plus qu'une maison, c'est un lieu de vie pensé pour votre bien-être et celui de votre famille, où chaque détail a été conçu pour répondre à vos attentes les plus élevées. Ne manquez pas l'opportunité de construire la maison de vos rêves, un espace où chaque jour sera empreint de confort, de style et d'efficacité énergétique.
Logement susceptibles de vous intéresser
Nous vous proposons de découvrir aussi cette sélection de logements situés à moins de 10km de Cormeray et qui seraient susceptibles de vous intéresser.
Cormeray
TERRAIN ET MAISONNous vous proposons cette maison neuve, modèle « »City » », une conception moderne et écologique, parfaitement adaptée à la vie urbaine sur des terrains de dimensions réduites. Avec une surface habitable de 86 m², cette maison basse consommation est non seulement un choix économique mais aussi un engagement envers l’environnement, conformément à la norme RE2020.Le modèle « »City » » se distingue par son architecture intelligente, offrant un espace de vie spacieux et lumineux au rez-de-chaussée, comprenant un séjour agréable ouvert sur une cuisine américaine, idéal pour des moments conviviaux en famille ou entre amis. La maison est conçue pour maximiser le confort et l’espace, avec la possibilité de choisir entre un toit à 2 ou 4 pans, selon vos préférences.Cette maison comprend 3 chambres bien agencées, permettant à chaque membre de la famille de bénéficier de son propre espace. Au rez-de-chaussée, vous trouverez une suite parentale avec salle d’eau privative, offrant intimité et confort. À l’étage, deux autres chambres se partagent une salle de bain indépendante avec WC, conçue pour faciliter le quotidien.L’un des atouts majeurs de ce modèle est son garage, disponible en version intégrée ou accolée, selon le plan choisi, offrant ainsi une solution pratique pour le stationnement et le rangement supplémentaire. De plus, répondant à la demande croissante de nos clients, nous proposons en option la possibilité d’ajouter un sous-sol, offrant encore plus d’espace de stockage ou la possibilité d’aménager une pièce supplémentaire selon vos besoins.La maison « »City » » est avant tout conçue dans le respect des dernières normes énergétiques, garantissant une faible consommation énergétique et un confort optimal en toutes saisons. Ce modèle représente donc un investissement durable pour votre avenir, alliant économie d’énergie, respect de l’environnement et qualité de vie.Ne manquez pas l’opportunité de construire la maison de vos rêves, une maison qui répond à vos attentes
Saint-Gervais-la-Forêt
TERRAIN ET MAISONNous vous proposons cette maison neuve, baptisée « »Graphite » », un modèle à étage qui combine habilement espace et élégance. Avec une surface habitable de 99 m², cette maison est conçue pour répondre aux besoins de confort et de fonctionnalité de ses résidents. Elle se distingue par son architecture soignée, offrant une avancée de façade avec un pignon qui lui confère une originalité remarquable tout en préservant un style traditionnel.La « »Graphite » » est composée de 4 chambres réparties intelligemment pour garantir l’intimité de chacun, et de 4 pièces conçues pour maximiser l’espace de vie commun. La dalle de l’étage en béton assure une solidité et une isolation phonique de qualité, tandis que les combles aménagés offrent un espace supplémentaire, idéal pour une salle de jeux, un bureau ou une chambre d’amis.La suite parentale, située au rez-de-chaussée, est pensée pour offrir un espace privé et confortable aux parents, avec un accès direct à la salle de bain et au dressing. Le garage accolé à la maison est un atout supplémentaire, offrant un espace de rangement pratique ou un abri sécurisé pour votre véhicule.Parmi les options les plus plébiscitées par nos clients, la « »Graphite » » peut être personnalisée avec des lucarnes, apportant plus de lumière et d’espace à l’étage, et des baies coulissantes, pour une ouverture élégante sur l’extérieur et une luminosité accrue dans les pièces de vie.Cette maison neuve est également conçue pour être basse consommation, conformément à la réglementation environnementale RE2020. Cela signifie que vous bénéficierez non seulement d’un confort optimal été comme hiver, mais aussi d’une réduction significative de vos factures énergétiques.Choisir la maison « »Graphite » », c’est opter pour une habitation qui allie esthétique, confort et respect de l’environnement. Une maison où il fera bon vivre, conçue pour s’adapter à votre mode de vie et à vos envies.
Les Montils
TERRAINNous vous proposons à la vente un magnifique terrain de 557 m², idéalement situé à Les Montils. Ce terrain, entièrement viabilisé, se distingue par sa surface généreuse et son environnement serein, parfait pour réaliser votre projet de construction de maison. Profitez d’une exclusivité rare dans cette charmante commune, où la tranquillité rencontre la commodité de la vie quotidienne. Les Montils, nichée dans le département de Loir-et-Cher, est une ville vivante qui offre un accès rapide aux commodités essentielles. Vous trouverez à proximité des commerces de proximité, des restaurants et des écoles, avec un ramassage scolaire à deux pas du terrain. Son ambiance paisible, alliée à une localisation stratégique, vous permettra de profiter d’une qualité de vie exceptionnelle. De plus, la région est connue pour ses paysages pittoresques et ses activités culturelles, renforçant encore son attrait. Ne manquez pas cette opportunité d’acquérir un terrain au potentiel prometteur à Les Montils. Contactez-nous dès maintenant pour découvrir ce bien d’exception et donner vie à votre projet immobilier dans un cadre ressourçant et agréable. À noter qu’en tant que constructeur, nous ne sommes pas mandatés pour réaliser la vente de ce terrain.
Les Montils
TERRAIN ET MAISONNous vous proposons cette maison neuve, baptisée « »Dynamique » », un modèle à étage qui allie parfaitement fonctionnalité, esthétique et performance énergétique. Avec une surface habitable de 95 m², cette maison est conçue pour offrir un cadre de vie confortable et moderne à ses occupants. Elle comprend 2 chambres spacieuses et un total de 3 pièces, permettant ainsi une organisation de l’espace à la fois pratique et agréable.**Un prix très attractif**Le modèle Dynamique se distingue par son excellent rapport qualité/prix. Pensée pour satisfaire toutes vos attentes, cette maison ne fait aucun compromis sur la qualité et l’efficacité. Elle est conforme aux dernières normes en matière d’isolation et d’économie d’énergie, répondant ainsi parfaitement aux exigences de la réglementation environnementale RE2020. Cette maison basse consommation vous garantit des économies d’énergie significatives tout en respectant l’environnement.**Une maison modulable et personnalisable**La grande force de ce modèle réside dans sa capacité à s’adapter à vos besoins et à vos envies. Que vous optiez pour des combles aménagés ou aménageables, avec ou sans garage, le modèle Dynamique offre une flexibilité remarquable. Vous avez la possibilité de personnaliser votre maison en choisissant parmi une large gamme d’options très demandées par nos clients, telles qu’un garage accolé, des menuiseries en aluminium, un système de domotique avancé pour une maison connectée, ou encore un enduit bi-ton pour une façade à votre image.Cette maison est donc une toile vierge sur laquelle vous pouvez projeter vos rêves et vos aspirations, en la façonnant selon vos désirs. Que ce soit en termes d’aménagement intérieur, de choix des matériaux ou de solutions technologiques intégrées, le modèle Dynamique est conçu pour s’adapter à votre mode de vie et refléter votre personnalité.En choisissant le modèle Dynamique, vous optez pour une maison neuve, moderne et économe en énergie, qui saura vous accompagner
Mont-près-Chambord
TERRAINMagnifique terrain à bâtir sur la commune de Mont-près-Chambord, d'une superficie d'environ 900 m². Cadre verdoyant et calme, idéale pour votre projet de construction. N'hésitez pas à me contacter!. // Réf. : T210635. Prix terrain : 68 000 €, hors frais d'agence et de notaire à la charge de l'acquéreur. Ce terrain vous est proposé, par nos partenaires fonciers, dans le cadre d'un projet de construction avec nous. Les informations sur les risques auxquels ce bien est exposé sont disponibles sur le site Géorisques (www.georisques.gouv.fr).
Chitenay
TERRAINMagnifique terrain à bâtir sur la commune de Chitenay, d'une superficie d'environ 1400 m². Cadre verdoyant et calme, idéale pour votre projet de construction. N'hésitez pas à me contacter!. // Réf. : T210640. Prix terrain : 69 999 €, hors frais d'agence et de notaire à la charge de l'acquéreur. Ce terrain vous est proposé, par nos partenaires fonciers, dans le cadre d'un projet de construction avec nous. Les informations sur les risques auxquels ce bien est exposé sont disponibles sur le site Géorisques (www.georisques.gouv.fr).
Mont-pr��s-Chambord
TERRAINMagnifique terrain à bâtir sur la commune de Mont-Près-Chambord, d'une superficie d'environ 800 m². Cadre verdoyant et calme, idéale pour votre projet de construction. N'hésitez pas à me contacter!. // Réf. : T210633. Prix terrain : 76 999 €, hors frais d'agence et de notaire à la charge de l'acquéreur. Ce terrain vous est proposé, par nos partenaires fonciers, dans le cadre d'un projet de construction avec nous. Les informations sur les risques auxquels ce bien est exposé sont disponibles sur le site Géorisques (www.georisques.gouv.fr).
Mont-près-Chambord
TERRAIN ET MAISONMagnifique terrain à bâtir sur la commune de Mont-près-Chambord, d'une superficie d'environ 900 m². Cadre verdoyant et calme, idéale pour votre projet de construction. N'hésitez pas à me contacter!. Maison rectangulaire de plain-pied de plus de 100 m² habitables qui vous séduira par son espace de vie traversant baigné de lumière grâce à ses ouvertures, un cellier et un garage accessible de la cuisine ouverte. Pour l’espace nuit, 4 chambres, une salle de bains avec douche et baignoire, un wc séparé. Pour vous assurer un confort de vie et conformément à la RE2025, nous avons choisi un mode de chauffage par PAC + plancher chauffant, volets roulants électriques. Prix hors fourniture et pose : des appareils sanitaires (sauf système de chauffage et d'eau chaude sanitaire), du carrelage et de la faïence, des revêtements de sol dans les chambres. Hors décoration et aménagement intérieur et peinture. Hors raccordements, frais de notaire et dommage ouvrage. // Réf. : 1440-210635-CLP. Prix terrain : 68 000 €, hors frais d'agence à la charge de l'acquéreur. Ce terrain vous est proposé, par nos partenaires fonciers, dans le cadre d'un projet de construction avec nous. Les informations sur les risques auxquels ce bien est exposé sont disponibles sur le site Géorisques (www.georisques.gouv.fr). Prix maison : 143 680 €.
Mont-près-Chambord
TERRAIN ET MAISONMagnifique terrain à bâtir sur la commune de Mont-près-Chambord, d'une superficie d'environ 900 m². Cadre verdoyant et calme, idéale pour votre projet de construction. N'hésitez pas à me contacter!. Une maison élégante et bien pensée pour un quotidien confortable ! Avec ses espaces généreux et son agencement optimisé, cette maison est idéale pour une vie de famille harmonieuse. Au rez-de-chaussée, profitez d’un grand espace de vie ouvert, baigné de lumière, où le salon, la salle à manger et la cuisine se rejoignent en toute fluidité. Un cellier pratique, une salle d’eau et un WC indépendant viennent compléter cet espace. Une chambre au rez-de-chaussée offre une flexibilité précieuse. L’étage se compose de trois belles chambres, parfaites pour accueillir toute la famille. Une grande salle de bain, un second WC et un palier fonctionnel assurent un confort optimal. Une maison moderne, spacieuse et conçue pour répondre à toutes vos attentes !. Pour vous assurer un confort de vie optimal et en conformité avec la RE2025, nous avons opté pour un système de chauffage par pompe à chaleur (PAC) avec plancher chauffant au rez-de-chaussée et radiateurs à l’étage. Le logement est également équipé de volets roulants électriques. Prix hors fourniture et pose : des appareils sanitaires (sauf système de chauffage et d'eau chaude sanitaire), du carrelage et de la faïence, des revêtements de sol dans les chambres. Hors décoration et aménagement intérieur et peinture. Hors raccordements, frais de notaire et dommage ouvrage. // Réf. : 2504-210635-CLP. Prix terrain : 68 000 €, hors frais d'agence à la charge de l'acquéreur. Ce terrain vous est proposé, par nos partenaires fonciers, dans le cadre d'un projet de construction avec nous. Les informations sur les risques auxquels ce bien est exposé sont disponibles sur le site Géorisques (www.georisques.gouv.fr). Prix maison : 162 044 €.
L’actualité immobilière à Cormeray
27/11/2023
02/11/2023
30/10/2023
20/10/2023
16/10/2023
16/10/2023