Images
Description
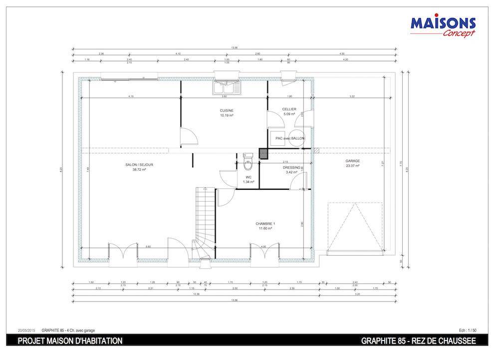
Nous vous proposons cette maison neuve, baptisée ""Graphite"", un modèle à étage qui combine habilement espace et élégance. Avec une surface habitable de 99 m², cette maison est conçue pour répondre aux besoins de confort et de fonctionnalité de ses résidents. Elle se distingue par son architecture soignée, offrant une avancée de façade avec un pignon qui lui confère une originalité remarquable tout en préservant un style traditionnel.
La ""Graphite"" est composée de 4 chambres réparties intelligemment pour garantir l'intimité de chacun, et de 4 pièces conçues pour maximiser l'espace de vie commun. La dalle de l'étage en béton assure une solidité et une isolation phonique de qualité, tandis que les combles aménagés offrent un espace supplémentaire, idéal pour une salle de jeux, un bureau ou une chambre d'amis.
La suite parentale, située au rez-de-chaussée, est pensée pour offrir un espace privé et confortable aux parents, avec un accès direct à la salle de bain et au dressing. Le garage accolé à la maison est un atout supplémentaire, offrant un espace de rangement pratique ou un abri sécurisé pour votre véhicule.
Parmi les options les plus plébiscitées par nos clients, la ""Graphite"" peut être personnalisée avec des lucarnes, apportant plus de lumière et d'espace à l'étage, et des baies coulissantes, pour une ouverture élégante sur l'extérieur et une luminosité accrue dans les pièces de vie.
Cette maison neuve est également conçue pour être basse consommation, conformément à la réglementation environnementale RE2020. Cela signifie que vous bénéficierez non seulement d'un confort optimal été comme hiver, mais aussi d'une réduction significative de vos factures énergétiques.
Choisir la maison ""Graphite"", c'est opter pour une habitation qui allie esthétique, confort et respect de l'environnement. Une maison où il fera bon vivre, conçue pour s'adapter à votre mode de vie et à vos envies.
Logement susceptibles de vous intéresser
Nous vous proposons de découvrir aussi cette sélection de logements situés à moins de 10km de Herbault et qui seraient susceptibles de vous intéresser.
La Chapelle-Vendômoise
TERRAINNous vous présentons un terrain exceptionnel à vendre de 846 m², idéalement situé à La Chapelle-Vendômoise, dans le département du Loir-et-Cher, au cœur de la région Centre-Val de Loire. Ce terrain, entièrement viabilisé, est parfait pour la réalisation de votre projet de construction de maison. Son emplacement privilégié vous permettra de concevoir un espace de vie unique dans un cadre agréable et dynamique. La Chapelle-Vendômoise est une commune offrant de nombreux attraits grâce à son centre-ville vivant et accessible. Vous bénéficierez de la proximité immédiate des commerces et commodités essentielles pour votre quotidien. En outre, la région est connue pour son ambiance conviviale et ses paysages pittoresques, vous permettant de profiter d’un cadre de vie calme tout en restant connecté aux services urbains. Ce terrain représente donc une opportunité en or pour réaliser votre rêve immobilier dans une localité qui allie tranquillité et commodités. Ne manquez pas cette chance d’acquérir un terrain au potentiel incroyable. Contactez-nous dès aujourd’hui pour davantage d’informations et laissez libre cours à votre imagination. À noter qu’en tant que constructeur, nous ne sommes pas mandatés pour réaliser la vente de ce terrain.
La Chapelle-Vendômoise
TERRAIN ET MAISONNous vous proposons cette maison neuve, baptisée Futura, une construction qui allie tradition et modernité, conçue spécialement pour répondre aux besoins des familles d’aujourd’hui. Avec une surface habitable de 84 m², cette maison basse consommation est non seulement économique mais aussi respectueuse de l’environnement, conformément aux exigences de la norme RE2020.La Futura se distingue par son excellent rapport qualité/prix, faisant d’elle un choix privilégié pour les primo-accédants. Elle se compose de 4 pièces lumineuses, dont 3 chambres confortables, parfaites pour accueillir une famille. Son agencement intérieur a été pensé pour maximiser l’espace et le confort, offrant ainsi un cadre de vie agréable et fonctionnel.Au cœur de cette maison, vous trouverez un vaste salon de 36 m², jouxtant une cuisine ouverte de 10 m². Cet espace de vie ouvert, d’environ 50 m², est idéal pour partager des moments conviviaux en famille ou entre amis. La maison comprend également un garage intégré de 15 m², accessible via un cellier pratique de 5,5 m², optimisant ainsi l’espace de rangement et la fonctionnalité de la maison.La Futura bénéficie d’une charpente fermette à entraits porteurs 3 appuis, avec une toiture à pente de 45°, et des combles aménagés, offrant ainsi un espace supplémentaire pouvant être personnalisé selon vos besoins et vos envies. Pour répondre aux demandes spécifiques de chacun, la Futura est entièrement personnalisable. Parmi les options les plus prisées, vous pouvez choisir un crépis coloré pour la façade, des menuiseries en aluminium pour une touche moderne et une pergola pour agrémenter votre espace extérieur, créant ainsi un lieu de vie unique qui vous ressemble.Opter pour la Futura, c’est choisir une maison à la fois économique, écologique et confortable, conçue pour s’adapter à votre style de vie et à vos aspirations. Ne manquez pas l’opportunité de construire la maison de vos rêves, une maison où il fait bon vivre, jour après jour.
Herbault
TERRAIN ET MAISONTerrain à bâtir à vendre à HERBAUL, très belle parcelle constructible d'environ 1800 m², clos de mur sur rue et avec vue dégagée sur la forêt sur l'arrière. Idéal pour le projet de votre vie, n'attendez plus contactez moi!. Familiale et fonctionnelle cette maison de plain-pied vous séduira par ses volumes, son très bel espace de vie de plus de 43 m² avec cuisine ouverte très lumineuse grâce à ses nombreuses ouvertures US, et cellier indépendant. La partie nuit est composée de 4 chambres avec rangement, une salle de bains et wc indépendant. Pour vous assurer un confort de vie et conformément à la RE2025, nous avons choisi un mode de chauffage par PAC + plancher chauffant, volets roulants électriques. Prix hors fourniture et pose : des appareils sanitaires (sauf système de chauffage et d'eau chaude sanitaire), du carrelage et de la faïence, des revêtements de sol dans les chambres. Hors décoration et aménagement intérieur et peinture. Hors raccordements, frais de notaire et dommage ouvrage. // Réf. : 1011-209795-CLP. Prix terrain : 74 990 €, hors frais d'agence à la charge de l'acquéreur. Ce terrain vous est proposé, par nos partenaires fonciers, dans le cadre d'un projet de construction avec nous. Les informations sur les risques auxquels ce bien est exposé sont disponibles sur le site Géorisques (www.georisques.gouv.fr). Prix maison : 136 832 €.
Herbault
TERRAIN ET MAISONTerrain à bâtir à vendre à HERBAUL, très belle parcelle constructible d'environ 1800 m², clos de mur sur rue et avec vue dégagée sur la forêt sur l'arrière. Idéal pour le projet de votre vie, n'attendez plus contactez moi!. Une maison compacte et astucieuse, idéale pour tous les terrains ! Pensée pour optimiser chaque mètre carré, cette maison combine modernité et praticité pour un confort au quotidien. Au rez-de-chaussée, une pièce de vie lumineuse et spacieuse accueille un espace salon et salle à manger convivial, ainsi qu’une cuisine ouverte, parfaite pour le partage et la convivialité. Un cellier discret facilite le rangement, et un WC indépendant vient compléter cet espace fonctionnel. À l’étage, trois chambres bien agencées offrent à chacun son espace personnel. Une salle de bain moderne, un WC supplémentaire et un dégagement optimisé assurent praticité et fluidité dans la vie de tous les jours. Un design intelligent, une optimisation parfaite de l’espace et une adaptabilité idéale aux terrains de toutes tailles ! Pour vous assurer un confort de vie optimal et en conformité avec la RE2025, nous avons opté pour un système de chauffage par pompe à chaleur (PAC) avec plancher chauffant au rez-de-chaussée et radiateurs à l’étage. Le logement est également équipé de volets roulants électriques. Prix hors fourniture et pose : des appareils sanitaires (sauf système de chauffage et d'eau chaude sanitaire), du carrelage et de la faïence, des revêtements de sol dans les chambres. Hors décoration et aménagement intérieur et peinture. Hors raccordements, frais de notaire et dommage ouvrage. // Réf. : 684-209795-CLP. Prix terrain : 74 990 €, hors frais d'agence à la charge de l'acquéreur. Ce terrain vous est proposé, par nos partenaires fonciers, dans le cadre d'un projet de construction avec nous. Les informations sur les risques auxquels ce bien est exposé sont disponibles sur le site Géorisques (www.georisques.gouv.fr). Prix maison : 148 343 €.
Herbault
TERRAIN ET MAISONTerrain à bâtir à vendre à HERBAUL, très belle parcelle constructible d'environ 1800 m², clos de mur sur rue et avec vue dégagée sur la forêt sur l'arrière. Idéal pour le projet de votre vie, n'attendez plus contactez moi!. Fonctionnelle et spacieuse, cette maison de plain-pied vous propose un bel espace de vie de 41 m² environ lumineux et traversant. Sa cuisine est ouverte sur le séjour et a un accès direct au cellier. Son espace nuit est composé de trois belles chambres avec rangements, d'une salle de bains et de wc séparés. Pour vous assurer un confort de vie et conformément à la RE2025, nous avons choisi un mode de chauffage par PAC + plancher chauffant, volets roulants électriques. Prix hors fourniture et pose : des appareils sanitaires (sauf système de chauffage et d'eau chaude sanitaire), du carrelage et de la faïence, des revêtements de sol dans les chambres. Hors décoration et aménagement intérieur et peinture. Hors raccordements, frais de notaire et dommage ouvrage. // Réf. : 730-209795-CLP. Prix terrain : 74 990 €, hors frais d'agence à la charge de l'acquéreur. Ce terrain vous est proposé, par nos partenaires fonciers, dans le cadre d'un projet de construction avec nous. Les informations sur les risques auxquels ce bien est exposé sont disponibles sur le site Géorisques (www.georisques.gouv.fr). Prix maison : 125 114 €.
Herbault
TERRAINTerrain à bâtir à vendre à HERBAUL, très belle parcelle constructible d'environ 1800 m², clos de mur sur rue et avec vue dégagée sur la forêt sur l'arrière. Idéal pour le projet de votre vie, n'attendez plus contactez moi!. // Réf. : T209795. Prix terrain : 74 990 €, hors frais d'agence et de notaire à la charge de l'acquéreur. Ce terrain vous est proposé, par nos partenaires fonciers, dans le cadre d'un projet de construction avec nous. Les informations sur les risques auxquels ce bien est exposé sont disponibles sur le site Géorisques (www.georisques.gouv.fr).
Herbault
TERRAIN ET MAISONTerrain à bâtir à vendre à HERBAUL, très belle parcelle constructible d'environ 1800 m², clos de mur sur rue et avec vue dégagée sur la forêt sur l'arrière. Idéal pour le projet de votre vie, n'attendez plus contactez moi!. Design moderne & volumes optimisés ! Découvrez cette maison personnalisable, pensée pour conjuguer espace et luminosité. Avec 4 chambres, dont une suite parentale au rez-de-chaussée, et deux salles d’eau, chacun profite de son confort. Son vaste salon-séjour de 42 m² ouvert sur une cuisine lumineuse crée un cadre de vie chaleureux et convivial. Un agencement intelligent, un garage pratique et des finitions soignées… Imaginez, personnalisez et réalisez votre projet de vie !. Pour un confort optimal et conforme à la RE2025, cette maison dispose d’une PAC avec plancher chauffant, radiateurs à l’étage et volets roulants électriques. À noter : Le prix indiqué exclut les revêtements de sol des chambres, la cuisine aménagée, la peinture, la décoration, les raccordements, les frais de notaire et l’assurance dommages-ouvrage. // Réf. : 101-209795-CLP. Prix terrain : 74 990 €, hors frais d'agence à la charge de l'acquéreur. Ce terrain vous est proposé, par nos partenaires fonciers, dans le cadre d'un projet de construction avec nous. Les informations sur les risques auxquels ce bien est exposé sont disponibles sur le site Géorisques (www.georisques.gouv.fr). Prix maison : 267 720 €.
Herbault
TERRAIN ET MAISONTerrain à bâtir à vendre à HERBAUL, très belle parcelle constructible d'environ 1800 m², clos de mur sur rue et avec vue dégagée sur la forêt sur l'arrière. Idéal pour le projet de votre vie, n'attendez plus contactez moi!. Un cocon moderne et fonctionnel, pensé pour vous ! Découvrez cette maison au design intelligent, où chaque espace est optimisé pour conjuguer confort et praticité. Son vaste espace de vie baigné de lumière est l’endroit idéal pour partager des moments chaleureux. Avec 3 chambres bien séparées, dont une suite parentale avec salle d’eau privative, un vestiaire pratique, un cellier attenant à la cuisine, et un garage double, cette maison est faite pour simplifier votre quotidien. Un intérieur fluide, une architecture élégante et des espaces qui respirent : imaginez-vous déjà chez vous !. . Pour un confort optimal et conforme à la RE2025, cette maison dispose d’une PAC avec plancher chauffant et volets roulants électriques. À noter : Le prix indiqué exclut les revêtements de sol des chambres, la cuisine aménagée, la peinture, la décoration, les raccordements, les frais de notaire et l’assurance dommages-ouvrage. . // Réf. : 149-209795-CLP. Prix terrain : 74 990 €, hors frais d'agence à la charge de l'acquéreur. Ce terrain vous est proposé, par nos partenaires fonciers, dans le cadre d'un projet de construction avec nous. Les informations sur les risques auxquels ce bien est exposé sont disponibles sur le site Géorisques (www.georisques.gouv.fr). Prix maison : 231 486 €.
Herbault
TERRAIN ET MAISONTerrain à bâtir à vendre à HERBAUL, très belle parcelle constructible d'environ 1800 m², clos de mur sur rue et avec vue dégagée sur la forêt sur l'arrière. Idéal pour le projet de votre vie, n'attendez plus contactez moi!. Le cocon idéal pour une première acquisition ! À la recherche d’un chez-vous accessible et fonctionnel ? Cette maison est parfaite pour un premier achat ! Son espace de vie lumineux de près de 40 m² invite à la convivialité, tandis que ses 2 chambres cosy offrent un coin nuit confortable et bien pensé. Un garage attenant et un cellier pratique complètent ce cocon malin et optimisé. Facile à vivre, évolutive et personnalisable, elle coche toutes les cases pour bien débuter ! Et si c’était le point de départ de votre nouvelle vie ?. Pour un confort optimal et conforme à la RE2025, cette maison dispose d’une PAC avec plancher chauffant et volets roulants électriques. À noter : Le prix indiqué exclut les revêtements de sol des chambres, la cuisine aménagée, la peinture, la décoration, les raccordements, les frais de notaire et l’assurance dommages-ouvrage. // Réf. : 13-209795-CLP. Prix terrain : 74 990 €, hors frais d'agence à la charge de l'acquéreur. Ce terrain vous est proposé, par nos partenaires fonciers, dans le cadre d'un projet de construction avec nous. Les informations sur les risques auxquels ce bien est exposé sont disponibles sur le site Géorisques (www.georisques.gouv.fr). Prix maison : 126 423 €.
L’actualité immobilière à Herbault
27/11/2023
02/11/2023
30/10/2023
20/10/2023
16/10/2023
16/10/2023