Images
Description
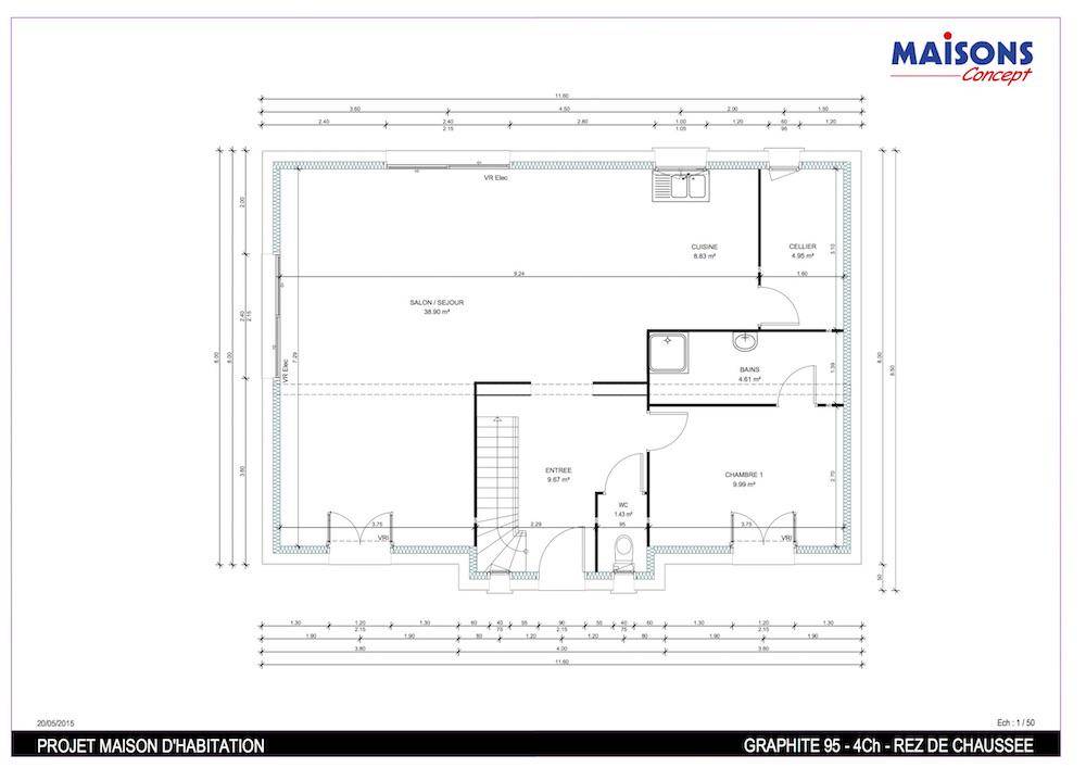
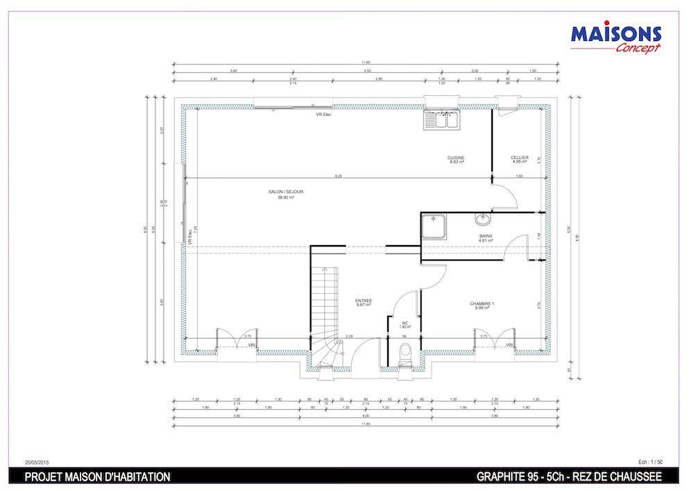
Nous vous proposons cette maison neuve, baptisée ""Graphite"", un modèle à étage qui combine habilement espace et élégance. Avec une surface habitable de 99 m², cette maison est conçue pour répondre aux besoins de confort et de fonctionnalité de ses résidents. Elle se distingue par son architecture soignée, offrant une avancée de façade avec un pignon qui lui confère une originalité remarquable tout en préservant un style traditionnel.
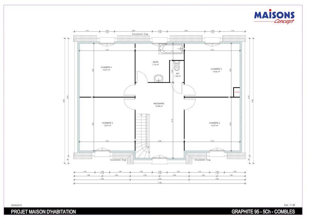
La ""Graphite"" est composée de 4 chambres réparties intelligemment pour garantir l'intimité de chacun, et de 4 pièces conçues pour maximiser l'espace de vie commun. La dalle de l'étage en béton assure une solidité et une isolation phonique de qualité, tandis que les combles aménagés offrent un espace supplémentaire, idéal pour une salle de jeux, un bureau ou une chambre d'amis.
La suite parentale, située au rez-de-chaussée, est pensée pour offrir un espace privé et confortable aux parents, avec un accès direct à la salle de bain et au dressing. Le garage accolé à la maison est un atout supplémentaire, offrant un espace de rangement pratique ou un abri sécurisé pour votre véhicule.
Parmi les options les plus plébiscitées par nos clients, la ""Graphite"" peut être personnalisée avec des lucarnes, apportant plus de lumière et d'espace à l'étage, et des baies coulissantes, pour une ouverture élégante sur l'extérieur et une luminosité accrue dans les pièces de vie.
Cette maison neuve est également conçue pour être basse consommation, conformément à la réglementation environnementale RE2020. Cela signifie que vous bénéficierez non seulement d'un confort optimal été comme hiver, mais aussi d'une réduction significative de vos factures énergétiques.
Choisir la maison ""Graphite"", c'est opter pour une habitation qui allie esthétique, confort et respect de l'environnement. Une maison où il fera bon vivre, conçue pour s'adapter à votre mode de vie et à vos envies.
Logement susceptibles de vous intéresser
Nous vous proposons de découvrir aussi cette sélection de logements situés à moins de 10km de Valloire-sur-Cisse et qui seraient susceptibles de vous intéresser.
Valloire-sur-Cisse
TERRAINNous vous présentons un terrain viabilisé d’une surface généreuse, idéalement situé au cœur de Chouzy-sur-Cisse, dans le département du Loir-et-Cher. Ce terrain offre une opportunité rare pour concrétiser votre projet de construction de maison. Sa configuration unique et son exposition ensoleillée garantissent un cadre de vie agréable et paisible dans un environnement propice à l’épanouissement familial. Ne manquez pas la chance de réaliser votre rêve dans cette charmante commune. Chouzy-sur-Cisse est une ville dynamique et accueillante, nichée en plein Centre-Val de Loire, offrant un accès facile à de nombreuses attractions locales. À proximité, vous trouverez une variété de commerces, des écoles pour les jeunes familles, ainsi que des commodités qui rendent la vie quotidienne agréable. La tranquillité de cette commune, accompagnée de son ambiance conviviale, en fait un lieu de vie idéal. Profitez de balades en bord de Cisse et de tous les avantages d’un cadre naturel préservé. Ce terrain représente une opportunité d’achat exceptionnelle pour ceux qui souhaitent construire leur maison dans un environnement privilégié. Ne laissez pas passer cette chance unique de faire partie de cette belle communauté. À noter qu’en tant que constructeur, nous ne sommes pas mandatés pour réaliser la vente de ce terrain.
Valloire-sur-Cisse
TERRAIN ET MAISONNous vous proposons cette maison neuve, baptisée « »Graphite » », un modèle à étage qui combine habilement espace et élégance. Avec une surface habitable de 99 m², cette maison est conçue pour répondre aux besoins de confort et de fonctionnalité de ses résidents. Elle se distingue par son architecture soignée, offrant une avancée de façade avec un pignon qui lui confère une originalité remarquable tout en préservant un style traditionnel.La « »Graphite » » est composée de 4 chambres réparties intelligemment pour garantir l’intimité de chacun, et de 4 pièces conçues pour maximiser l’espace de vie commun. La dalle de l’étage en béton assure une solidité et une isolation phonique de qualité, tandis que les combles aménagés offrent un espace supplémentaire, idéal pour une salle de jeux, un bureau ou une chambre d’amis.La suite parentale, située au rez-de-chaussée, est pensée pour offrir un espace privé et confortable aux parents, avec un accès direct à la salle de bain et au dressing. Le garage accolé à la maison est un atout supplémentaire, offrant un espace de rangement pratique ou un abri sécurisé pour votre véhicule.Parmi les options les plus plébiscitées par nos clients, la « »Graphite » » peut être personnalisée avec des lucarnes, apportant plus de lumière et d’espace à l’étage, et des baies coulissantes, pour une ouverture élégante sur l’extérieur et une luminosité accrue dans les pièces de vie.Cette maison neuve est également conçue pour être basse consommation, conformément à la réglementation environnementale RE2020. Cela signifie que vous bénéficierez non seulement d’un confort optimal été comme hiver, mais aussi d’une réduction significative de vos factures énergétiques.Choisir la maison « »Graphite » », c’est opter pour une habitation qui allie esthétique, confort et respect de l’environnement. Une maison où il fera bon vivre, conçue pour s’adapter à votre mode de vie et à vos envies.
Chailles
TERRAINTrès beau terrain à bâtir d'une superficie d'environ 700 m² sur la commune de Chailles, cadre verdoyant et calme. Idéal pour votre futur projet de construction de maison individuelle, n'attendez plus contactez moi!. // Réf. : T210994. Prix terrain : 52 999 €, hors frais d'agence et de notaire à la charge de l'acquéreur. Ce terrain vous est proposé, par nos partenaires fonciers, dans le cadre d'un projet de construction avec nous. Les informations sur les risques auxquels ce bien est exposé sont disponibles sur le site Géorisques (www.georisques.gouv.fr).
Saint-Sulpice-de-Pommeray
TERRAINTrès beau terrain à bâtir d'une superficie d'environ 600 m² sur la commune de Saint Sulpice de Pommeray, cadre verdoyant et calme. Idéal pour votre futur projet de construction de maison individuelle, n'attendez plus contactez moi!. // Réf. : T211000. Prix terrain : 54 000 €, hors frais d'agence et de notaire à la charge de l'acquéreur. Ce terrain vous est proposé, par nos partenaires fonciers, dans le cadre d'un projet de construction avec nous. Les informations sur les risques auxquels ce bien est exposé sont disponibles sur le site Géorisques (www.georisques.gouv.fr).
Blois
TERRAINTrès beau terrain à bâtir d'une superficie d'environ 450 m² sur la commune de Blois, cadre verdoyant et calme. Idéal pour votre futur projet de construction de maison individuelle, n'attendez plus contactez moi!. // Réf. : T210983. Prix terrain : 70 500 €, hors frais d'agence et de notaire à la charge de l'acquéreur. Ce terrain vous est proposé, par nos partenaires fonciers, dans le cadre d'un projet de construction avec nous. Les informations sur les risques auxquels ce bien est exposé sont disponibles sur le site Géorisques (www.georisques.gouv.fr).
Saint-Sulpice-de-Pommeray
TERRAIN ET MAISONTrès beau terrain à bâtir d'une superficie d'environ 600 m² sur la commune de Saint Sulpice de Pommeray, cadre verdoyant et calme. Idéal pour votre futur projet de construction de maison individuelle, n'attendez plus contactez moi!. Une maison compacte et astucieuse, idéale pour tous les terrains ! Pensée pour optimiser chaque mètre carré, cette maison combine modernité et praticité pour un confort au quotidien. Au rez-de-chaussée, une pièce de vie lumineuse et spacieuse accueille un espace salon et salle à manger convivial, ainsi qu’une cuisine ouverte, parfaite pour le partage et la convivialité. Un cellier discret facilite le rangement, et un WC indépendant vient compléter cet espace fonctionnel. À l’étage, trois chambres bien agencées offrent à chacun son espace personnel. Une salle de bain moderne, un WC supplémentaire et un dégagement optimisé assurent praticité et fluidité dans la vie de tous les jours. Un design intelligent, une optimisation parfaite de l’espace et une adaptabilité idéale aux terrains de toutes tailles ! Pour vous assurer un confort de vie optimal et en conformité avec la RE2025, nous avons opté pour un système de chauffage par pompe à chaleur (PAC) avec plancher chauffant au rez-de-chaussée et radiateurs à l’étage. Le logement est également équipé de volets roulants électriques. Prix hors fourniture et pose : des appareils sanitaires (sauf système de chauffage et d'eau chaude sanitaire), du carrelage et de la faïence, des revêtements de sol dans les chambres. Hors décoration et aménagement intérieur et peinture. Hors raccordements, frais de notaire et dommage ouvrage. // Réf. : 684-211000-CLP. Prix terrain : 54 000 €, hors frais d'agence à la charge de l'acquéreur. Ce terrain vous est proposé, par nos partenaires fonciers, dans le cadre d'un projet de construction avec nous. Les informations sur les risques auxquels ce bien est exposé sont disponibles sur le site Géorisques (www.georisques.gouv.fr). Prix maison : 148 343 €.
Saint-Sulpice-de-Pommeray
TERRAIN ET MAISONTrès beau terrain à bâtir d'une superficie d'environ 600 m² sur la commune de Saint Sulpice de Pommeray, cadre verdoyant et calme. Idéal pour votre futur projet de construction de maison individuelle, n'attendez plus contactez moi!. Cette maison de plain-pied en L, fonctionnelle et spacieuse vous propose un bel espace de vie lumineux et traversant. Sa cuisine est ouverte sur le séjour et a un accès direct au cellier. Son espace nuit est composé de trois belles chambres dont une suite parentale avec dressing et salle de bain privative, une deuxième salle de bains équipé ainsi que des wc séparés. Pour vous assurer un confort de vie et conformément à la RE2025, nous avons choisi un mode de chauffage par PAC + plancher chauffant, volets roulants électriques. Prix hors fourniture et pose : des appareils sanitaires (sauf système de chauffage et d'eau chaude sanitaire), du carrelage et de la faïence, des revêtements de sol dans les chambres. Hors décoration et aménagement intérieur et peinture. Hors raccordements, frais de notaire et dommage ouvrage. // Réf. : 784-211000-CLP. Prix terrain : 54 000 €, hors frais d'agence à la charge de l'acquéreur. Ce terrain vous est proposé, par nos partenaires fonciers, dans le cadre d'un projet de construction avec nous. Les informations sur les risques auxquels ce bien est exposé sont disponibles sur le site Géorisques (www.georisques.gouv.fr). Prix maison : 136 813 €.
Saint-Sulpice-de-Pommeray
TERRAIN ET MAISONTrès beau terrain à bâtir d'une superficie d'environ 600 m² sur la commune de Saint Sulpice de Pommeray, cadre verdoyant et calme. Idéal pour votre futur projet de construction de maison individuelle, n'attendez plus contactez moi!. Idéale pour une première acquisition, charmante maison de plain-pied d’une surface habitable de 75 m² composée d’un espace de vie avec cuisine ouverte de 40 m² environ, un accès cellier et garage, une salle de bains avec baignoire, un wc séparé et deux chambres avec placards. Pour vous assurer un confort de vie et conformément à la RE2025, nous avons choisi un mode de chauffage par PAC + plancher chauffant, volets roulants électriques. Prix hors fourniture et pose : des appareils sanitaires (sauf système de chauffage et d'eau chaude sanitaire), du carrelage et de la faïence, des revêtements de sol dans les chambres. Hors décoration et aménagement intérieur et peinture. Hors raccordements, frais de notaire et dommage ouvrage. // Réf. : 1457-211000-CLP. Prix terrain : 54 000 €, hors frais d'agence à la charge de l'acquéreur. Ce terrain vous est proposé, par nos partenaires fonciers, dans le cadre d'un projet de construction avec nous. Les informations sur les risques auxquels ce bien est exposé sont disponibles sur le site Géorisques (www.georisques.gouv.fr). Prix maison : 116 327 €.
Chailles
TERRAIN ET MAISONTrès beau terrain à bâtir d'une superficie d'environ 700 m² sur la commune de Chailles, cadre verdoyant et calme. Idéal pour votre futur projet de construction de maison individuelle, n'attendez plus contactez moi!. Adoptez Evolia et faites évoluer votre maison en toute sérénité. Evolia est idéale pour les jeunes familles et les couples, offrant une maison de base avec 2 chambres et un garage de 41 m². Transformez ce garage en 2 chambres supplémentaires et une salle d'eau, sans déménager vous permettant d'agrandir votre maison sans déménagement et en maximisant chaque mètre carré pour répondre à vos besoins changeants. Prix hors fourniture et pose : appareils sanitaires, carrelage, faïence, cuisine aménagée, revêtements de sol dans les chambres, décoration, aménagement intérieur, peinture, raccordements, frais de notaire et dommage ouvrage. Surface habitable : 49 m² + garage 41 m². // Réf. : 2607-210994-CLP. Prix terrain : 52 999 €, hors frais d'agence à la charge de l'acquéreur. Ce terrain vous est proposé, par nos partenaires fonciers, dans le cadre d'un projet de construction avec nous. Les informations sur les risques auxquels ce bien est exposé sont disponibles sur le site Géorisques (www.georisques.gouv.fr). Prix maison : 99 249 €.
L’actualité immobilière à Valloire-sur-Cisse
27/11/2023
02/11/2023
30/10/2023
20/10/2023
16/10/2023
16/10/2023