Maison à construire à Champdieu (42600)
Images
Description
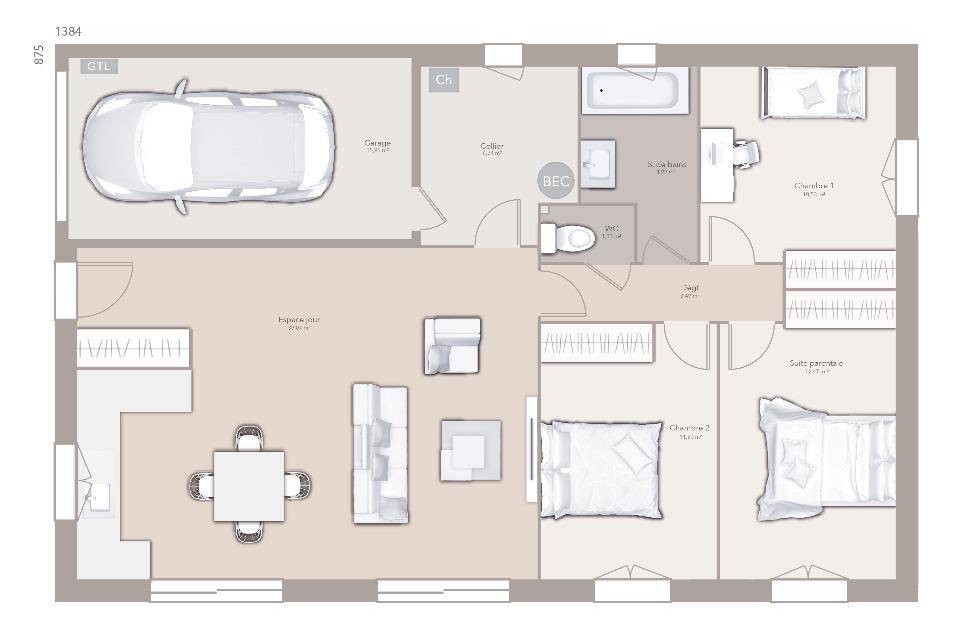
Maison T4 (90 m²) en vente à Champdieu
IDÉALEMENT SITUÉE - MAISON 4 PIÈCES NEUVE
En vente idéalement située dans Champdieu (42600), nous sommes ravis de vous proposer cette maison de 4 pièces de plain-pied de 90 m² et de 1 832 m² de terrain. Conçue de plain-pied, elle offre trois chambres, une cuisine et une salle de bains.
Cette maison est neuve.
Cette maison se situe dans un secteur convoité. Il y a l'École Primaire Champdieu à moins de 10 minutes à pied. Niveau transports en commun, on trouve la gare Montbrison à moins de 10 minutes en voiture. L'autoroute A72 est accessible à 12 km. Il y a un tennis, une bibliothèque, une boulangerie, une épicerie et une boucherie-charcuterie dans les environs.
Elle est à vendre pour la somme de 250 000 €.
Contactez Philippe MONNIER ((Numéro supprimé)) pour toute question sur la maison ou sur les démarches à suivre. Maisons France Confort Monistrol-sur-Loire est là pour vous accompagner à toutes les étapes de l'achat.
Annonce proposée par un Agent Commercial Partenaire.
Logement susceptibles de vous intéresser
Nous vous proposons de découvrir aussi cette sélection de logements situés à moins de 10km de Champdieu et qui seraient susceptibles de vous intéresser.
Champdieu
TERRAINVENTE : terrain de 1 832 m² à ChampdieuIDÉALEMENT SITUÉÀ Champdieu (42600) idéalement situé, projetez la maison de vos rêves sur ce terrain de 1 832 m² dont 735 m2 constructible. Il bénéficie d’une exposition sud-ouest. Dans un quartier convoité, le terrain est proche des écoles et des commerces. Il y a l’École Primaire Champdieu à moins de 10 minutes à pied. Côté transports en commun, on trouve la gare Montbrison à moins de 10 minutes en voiture. L’autoroute A72 est accessible à 12 km. Il y a un tennis, une bibliothèque, une boulangerie, une boucherie-charcuterie et une épicerie à proximité du bien.Son prix de vente est de 79 000 €. Prenez contact avec Philippe MONNIER ((Numéro supprimé)) pour obtenir de plus amples renseignements sur le terrain. Maisons France Confort Monistrol-sur-Loire vous accompagne dans toutes vos démarches et à toutes les étapes de votre projet.Annonce proposée par un Agent Commercial Partenaire.
Champdieu
TERRAIN ET MAISONVENTE : maison F4 (80 m²) à ChampdieuIDÉALEMENT SITUÉE – MAISON 4 PIÈCES NEUVEÀ vendre : nous vous proposons cette maison de 4 pièces de plain-pied de 80 m², idéalement située dans Champdieu (42600). Son intérieur comporte trois chambres, une cuisine et une salle de bains.Le terrain de cette maison est de 1 832 m².La maison est neuve.Cette maison est située dans un quartier attractif. Il y a l’École Primaire Champdieu à moins de 10 minutes à pied. Côté transports en commun, on trouve la gare Montbrison à moins de 10 minutes en voiture. L’autoroute A72 est accessible à 12 km. Il y a un tennis, une bibliothèque, une boulangerie, une épicerie et une boucherie-charcuterie à proximité de la maison.Elle est proposée à l’achat pour 246 000 €.Contactez Philippe MONNIER (tél : (Numéro supprimé)) pour tout renseignement sur le bien.Annonce proposée par un Agent Commercial Partenaire.
Champdieu
TERRAIN ET MAISONMaison T4 (90 m²) à vendre à ChampdieuIDÉALEMENT SITUÉE – MAISON 4 PIÈCES NEUVEVotre agence Maisons France Confort Andrézieux-Bouthéon est ravie de vous présenter cette maison de 4 pièces de plain-pied de 90 m² idéalement située dans Champdieu (42600).Son intérieur est composé de trois chambres, d’une cuisine et d’une salle de bains. Cette maison est neuve.Le terrain de la propriété est de 1 820 m².Cette maison se trouve dans un quartier attractif. Il y a l’École Primaire Champdieu à moins de 10 minutes à pied. Niveau transports, on trouve la gare Montbrison à moins de 10 minutes en voiture. Il y a un accès à l’autoroute A72 à 12 km. Il y a un tennis, une bibliothèque, une boulangerie, une boucherie-charcuterie et une épicerie dans les environs.Elle est proposée à l’achat pour 268 000 €.Contactez notre constructeur (Philippe MONNIER : (Numéro supprimé)) pour plus de renseignements sur le bien. Concrétisez vos projets immobiliers avec Maisons France Confort Andrézieux-Bouthéon.Annonce proposée par un Agent Commercial Partenaire.
Champdieu
TERRAIN ET MAISONChampdieu : maison T4 (84 m²) en venteIDÉALEMENT SITUÉE – MAISON 4 PIÈCES NEUVEEn vente : venez découvrir, idéalement située dans Champdieu (42600), cette maison de 4 pièces de plain-pied de 84 m² et de 1 832 m² de terrain.Conçue de plain-pied, elle est composée de trois chambres, d’une cuisine et de deux salles de bains. Cette maison est neuve.La maison se trouve dans un secteur attractif. Il y a l’École Primaire Champdieu à moins de 10 minutes à pied. Niveau transports, on trouve la gare Montbrison à moins de 10 minutes en voiture. L’autoroute A72 est accessible à 12 km. Il y a un tennis, une bibliothèque, une boulangerie, une boucherie-charcuterie et une épicerie à quelques minutes à peine.Elle est à vendre pour la somme de 244 000 €.Prenez contact avec notre agence (MONNIER Philippe : (Numéro supprimé)) pour tout renseignement sur la maison, sur les démarches à suivre ou sur les modalités de vente. Faites de vos projets immobiliers une réalité avec Maisons France Confort Monistrol-sur-Loire.Annonce proposée par un Agent Commercial Partenaire.
Champdieu
TERRAIN ET MAISONMaison T5 (100 m²) en vente à ChampdieuIDÉALEMENT SITUÉE – MAISON 5 PIÈCES NEUVEÀ vendre : Maisons France Confort Monistrol-sur-Loire vous propose, idéalement située dans Champdieu (42600), cette maison de 5 pièces de plain-pied de 100 m² et de 1 832 m² de terrain.Son intérieur comporte quatre chambres, une cuisine et deux salles de bains. La maison est neuve.Cette maison est située dans un secteur recherché. L’École Primaire Champdieu est implantée à moins de 10 minutes à pied. Côté transports en commun, il y a la gare Montbrison à moins de 10 minutes en voiture. L’autoroute A72 est accessible à 12 km. On trouve un tennis, une bibliothèque, une boulangerie, une épicerie et une boucherie-charcuterie à quelques minutes du bien.Elle est à vendre pour la somme de 270 000 €.Prenez contact avec notre agence (Philippe MONNIER : (Numéro supprimé)) pour toute information sur la maison, sur les démarches à suivre ou sur les modalités de vente. Concrétisez vos projets immobiliers avec Maisons France Confort Monistrol-sur-Loire.Annonce proposée par un Agent Commercial Partenaire.
Champdieu
TERRAIN ET MAISONVENTE : maison de 4 pièces (84 m²) à ChampdieuIDÉALEMENT SITUÉE – MAISON 4 PIÈCES NEUVEEn vente : idéalement située dans Champdieu (42600), nous sommes ravis de vous présenter cette maison de 4 pièces de plain-pied de 84 m² et de 1 820 m² de terrain.Conçue de plain-pied, elle est composée de trois chambres, d’une cuisine et de deux salles de bains. Cette maison est neuve.Cette maison est située dans un quartier convoité. L’École Primaire Champdieu est implantée à moins de 10 minutes à pied. Niveau transports, on trouve la gare Montbrison à moins de 10 minutes en voiture. L’autoroute A72 est accessible à 12 km. Il y a un tennis, une bibliothèque, une boulangerie, une épicerie et une boucherie-charcuterie à proximité du logement.Elle est proposée à l’achat pour 244 000 €.Contactez Philippe MONNIER (tél : (Numéro supprimé)) pour obtenir de plus amples renseignements sur la maison, sur les modalités de vente ou sur les démarches à suivre. Maisons France Confort Andrézieux-Bouthéon est là pour vous accompagner dans tous vos projets immobiliers.Annonce proposée par un Agent Commercial Partenaire.
Champdieu
TERRAIN ET MAISONVENTE d’une maison de 4 pièces (90 m²) à ChampdieuIDÉALEMENT SITUÉE – MAISON 4 PIÈCES NEUVEEn vente idéalement située dans Champdieu (42600), nous sommes ravis de vous proposer cette maison de 4 pièces de plain-pied de 90 m² et de 1 820 m² de terrain.Elle compte trois chambres, une cuisine et une salle de bains. La maison est neuve.La maison est située dans un quartier recherché. On trouve l’École Primaire Champdieu à moins de 10 minutes à pied. Côté transports en commun, il y a la gare Montbrison à moins de 10 minutes en voiture. Il y a un accès à l’autoroute A72 à 12 km. On trouve un tennis, une bibliothèque, une boulangerie, une boucherie-charcuterie et une épicerie à proximité du bien.Elle est proposée à l’achat pour 250 000 €.Prenez contact avec Philippe MONNIER (tél : (Numéro supprimé)) pour tout renseignement sur la maison ou sur les démarches à suivre.Annonce proposée par un Agent Commercial Partenaire.
Champdieu
TERRAIN ET MAISONVENTE : maison de 4 pièces (90 m²) à ChampdieuIDÉALEMENT SITUÉE – MAISON 4 PIÈCES NEUVENous sommes ravis de vous proposer cette maison de 4 pièces de plain-pied de 90 m² à vendre, idéalement située dans Champdieu (42600).Elle comporte trois chambres, une cuisine et une salle de bains. Cette maison est neuve.Le terrain du bien est de 1 832 m².La maison se trouve dans un secteur attractif. Il y a l’École Primaire Champdieu à moins de 10 minutes à pied. Niveau transports, on trouve la gare Montbrison à moins de 10 minutes en voiture. L’autoroute A72 est accessible à 12 km. Il y a un tennis, une bibliothèque, une boulangerie, une boucherie-charcuterie et une épicerie dans les environs.Elle est à vendre pour la somme de 268 000 €.N’hésitez pas à prendre contact avec notre agence (Philippe MONNIER : (Numéro supprimé)) pour obtenir de plus amples informations sur la maison. Maisons France Confort Monistrol-sur-Loire vous accompagne à toutes les étapes de votre projet et dans tous vos projets immobiliers.Annonce proposée par un Agent Commercial Partenaire.
Champdieu
TERRAIN ET MAISONVENTE : maison T4 (80 m²) à ChampdieuIDÉALEMENT SITUÉE – MAISON 4 PIÈCES NEUVEEn vente idéalement située dans Champdieu (42600), nous sommes heureux de vous présenter cette maison de 4 pièces de plain-pied de 80 m² et de 1 832 m² de terrain. Elle comporte trois chambres, une cuisine et une salle de bains.La maison est neuve.Ce bien se situe dans un secteur attractif. On trouve l’École Primaire Champdieu à moins de 10 minutes à pied. Niveau transports en commun, il y a la gare Montbrison à moins de 10 minutes en voiture. On trouve un accès à l’autoroute A72 à 12 km. On trouve un tennis, une bibliothèque, une boulangerie, une épicerie et une boucherie-charcuterie à proximité.Son prix de vente est de 246 000 €.N’hésitez pas à prendre contact avec Philippe MONNIER (tél : (Numéro supprimé)) pour plus de renseignements sur la maison.Annonce proposée par un Agent Commercial Partenaire.
L’actualité immobilière à Champdieu
27/11/2023
02/11/2023
30/10/2023
20/10/2023
16/10/2023
16/10/2023